ᐅ Grundstück Einfamilienhaus C630 Heinz von Heiden am Standort Sachsen
Erstellt am: 22.04.22 14:54
O
OberhäslichO
Oberhäslich22.04.22 14:54Ich habe hier im Forum schon einige Beiträge durchgeschmökert und auch hin und wieder mal etwas beigetragen. Heute möchte ich die Gelegenheit nutzen um mal eine Art Tagebuch von unserem Vorhaben zu posten, schlussendlich um auch in Zukunft mal die ganze Sache Revue passieren zu lassen und zu schauen was hätte besser laufen können - für mich selber als Lerneffekt.
Wir werden in Sachsen, in der Nähe von Dippoldiswalde bauen (22 Minuten und 19km von Dresden entfernt). Aktuell wohnen wir in Dresden in einer Mietwohnung. Unsere Arbeitsstellen werden auch weiterhin in Dresden sein, home office ist so 1-2 Tage die Woche geplant. Zu erwähnen ist noch, dass unser gemeinsames Kind bei uns wohnt und meine beiden größeren Kinder aus der ersten Partnerschaft ab und zu mal bei uns schlafen.
Gefunden haben wir das Grundstück Ende 2021, da war das Angebot über 165t€ schon ein paar Monate online. Es wollte keiner so richtig haben, da auf dem 3.100qm Grundstück einmal ein Biotop (alte Streuobstwiese) im hinteren Bereich ist, was nicht bebaut werden darf und es weiterhin links uns rechts mittig einen anderen Eigentümer gibt. Wir haben sozusagen ein dienendes Grundstück mit Grunddienstbarkeiten (Wasser, Strom etc.). Da ich eher positiv eingestellt bin und sowas als Chance sehe, mussten wir das Grundstück also einfach haben. Schlussendlich haben wir es nach verhandeln für 130t€ bekommen (für mich persönlich ein Schnäppchen :cool 🙂. Der ET vom herrschenden Grundstück (1x Haus links, 1x Grundstück mit Bungalow rechts) ist bereits 86 und im Betreuten Wohnen. Mit seinen Nachfolgern haben wir schon besprochen früher oder später einen Tausch oder Kauf in Erwägung zu ziehen.
Prinzipiell sind wir einfach eingestellt. Alles kann Standard sein, funktional sein und seinen Zweck erfüllen. Für etwas das optisch etwas hermacht geben wir nicht gern extra Geld aus (Stichwort Farbe) und auch sonst kaufe und sammel ich Dinge für den Hausbau und das Grundstück viel über ebay Kleinanzeigen zusammen. Derzeit viel das Gartengestaltung betrifft, da wird auch viel verschenkt 🙂
Ich bin mit Spaß bei der Sache und kümmere mich zu 99% um die Abwicklung und Planung, meine Freundin vertraut mir da voll und ganz. Es ist auf jeden Fall von Vorteil und entspannt ungemein, wenn man nicht wegen jeder Fliese diskutieren muss :p. Zudem entscheide ich auch schnell. Wir bauen mit Heinz von Heiden, weil ich der Meinung bin, dass hier Preis-Leistungsverhältnis stimmt. Was am Ende dabei rauskommt, mal sehen - bei 50.000 gebauten Häusern ist aber Vertrauen vorhanden.
Kein Bebauungsplan. Bau nach Umgebungsbebauung, da Dorf. Mischgebiet, offene Bebauung nach §34 Abs. 1
Größe des Grundstücks: 3.152 qm
Hang: 5%
Geschossigkeit. 2 Vollgeschosse
Dachform: SD 25 Grad
Stilrichtung: Landhaus
Ausrichtung: Terrasse Nord-West
weitere Vorgaben: seitens Abwasser Betrieb: Zisterne (alte, aber gute 3 Kammer-Klärgrube schon vorhanden, wird dafür genutzt)
Anforderungen der Bauherren
Keller, Geschosse: kein Keller, 2 Vollgeschosse
Anzahl der Personen, Alter: 3 (M: 36, W: 36, Kind 3)
Raumbedarf im EG, OG: jeweils 80qm
Büro: Familiennutzung oder Homeoffice?: ja, ein Büro/Hobby im OG
Schlafgäste pro Jahr: hin- und wieder ja, dafür ein Gästezimmer und -Duschbad im EG (auch falls man im Alter mal nicht mehr hoch kommen sollte)
offene oder geschlossene Architektur: EG eher offen, OG geschlossen
konservativ oder moderne Bauweise: beides
offene Küche, Kochinsel: offene Küche ohne Kochinsel
Anzahl Essplätze: 12 (Tisch ist schon vorhanden, daher keine Kochinsel)
Kamin: ist geplant, Hausbauer möchte 6t€ für einen Gemauerten (Hausmitte) finde ich ungüngstig. Möchte daher einen Edelstahl an der Außenwand selber nachrüsten
Musik/Stereowand: nachrangig wichtig
Balkon, Dachterrasse: nein, schlechtes Kosten-Nutzen-Verhältnis bei so einem großen Grundstück
Garage, Carport: Stahlblechgarage 6x8 mit SD, 3,30m hoch und mit el. Tor für den Mann im Haus :p
Nutzgarten, Treibhaus: erst einmal unwichtig
weitere Wünsche/Besonderheiten/Tagesablauf, gern auch Begründungen, warum dieses oder das nicht sein soll: mein großer Wunsch ist auf jeden Fall ein Kamin, dieser muss aber raumluftunabhängig sein, da das Haus KfW55 Standard hat. Da erhoffe ich mir hier noch ein paar Infos im Forum zur Nachrüstung eines Edelstahlkamins.
Hausentwurf
Von wem stammt die Planung:
-Planer eines Bauunternehmens: Heinz von Heiden Fertighaus C630 (Das Unveränderliche)
-Architekt: Heinz von Heiden
-Do-it-Yourself: Maler- und Bodenlegearbeiten, Fliesenarbeiten, Erdaushub, Außenanlagen und Erdarbeiten Medien
Was gefällt besonders? Warum?
Uns gefällt besonders der offene Bereich Eingang-Wohnzimmer-Küche mit verglaster Front mit Blick in den Garten. Der Grundriss hat uns auch sofort überzeugt. Und natürlich das Platzangebot mit 160qm. Wir haben akutell 91qm 🙂
Was gefällt nicht? Warum?
Es heißt nicht umsonst das Unveränderliche, Wände können nicht verändert werden. Dafür war es 30-40t€ günstiger.
Preisschätzung lt Architekt/Planer: Festpreisvertrag im Februar mit 15 Monate Preisgarantie unterschrieben:
~260t€ inkl. Sonderausstattung (Standard: ~235t€)
Darin enthalten: Luft-luftwärmepumpe mit Speicher, große Kontrollierte-Wohnraumlüftung, el. Rollläden EG+OG, Fußbodenheizung EG+OG, komplettes Material außer Fliesen, Boden, Wand
favorisierte Heiztechnik: Luft-luftwärmepumpe - ist nicht änderbar
Wenn Ihr verzichten müsst, auf welche Details/Ausbauten
-könnt Ihr verzichten: OG Vollgeschoss, große Kontrollierte-Wohnraumlüftung, el. Rollläden, Photovoltaik (Vorbereitung)
-könnt Ihr nicht verzichten: Kamin, 6 Zimmer
Warum ist der Entwurf so geworden, wie er jetzt ist?
Standardentwurf vom Planer?
Ja
Welche Wünsche wurden vom Architekten umgesetzt?
Änderung von Fenstern und Zugang zum Elternbad über Schlafzimmer
Was macht ihn in Euren Augen besonders gut oder schlecht?
Offene Bauweise, große und ausreichend Zimmer
Finanzierung
Über unsere örtliche Sparkasse. Grundstück derzeit noch variabel mit 1,8% und Haus über 15 Jahre auch zu 1,8%. Eigenkapital so um die 17%. Monatl. Belastung müsste bei ca. 1.380€ sein. Gesamtkosten um die 460t€.
Baukosten pro qm ohne Baunebenkosten: 260t€/160qm: ~1.625€/qm
Baukosten pro qm mit Baunebenkosten: 322t€/160qm: ~2.012€/qm
Kosten Grundstück ohne Nebenkosten: 130t€/3.152qm: 41,24€/qm
Kosten Grundstück mt Nebenkosten: 147t€/3.152qm: ~47€/qm
Den Beitrag schreibe ich wie gesagt hauptsächlich für mich als "Tagebuch" um alles mal schriftlich feszuhalten. Vielleicht kommt es dann auch in den Bauordner mit rein, den ich penibel führe - Buchhalter 🙄 😀 Für Anregungen, Meinung, Tipps aber auch Kritik als Denkanstoß bin ich jederzeit dankbar. Fragen ergeben sich dann sicherlich mit der Zeit. Man findet ja viel im Internt und anderen Beiträgen.
Für Fragen zum Haus, Kosten, Hausanbieter etc. bin ich jederzeit offen.








Wir werden in Sachsen, in der Nähe von Dippoldiswalde bauen (22 Minuten und 19km von Dresden entfernt). Aktuell wohnen wir in Dresden in einer Mietwohnung. Unsere Arbeitsstellen werden auch weiterhin in Dresden sein, home office ist so 1-2 Tage die Woche geplant. Zu erwähnen ist noch, dass unser gemeinsames Kind bei uns wohnt und meine beiden größeren Kinder aus der ersten Partnerschaft ab und zu mal bei uns schlafen.
Gefunden haben wir das Grundstück Ende 2021, da war das Angebot über 165t€ schon ein paar Monate online. Es wollte keiner so richtig haben, da auf dem 3.100qm Grundstück einmal ein Biotop (alte Streuobstwiese) im hinteren Bereich ist, was nicht bebaut werden darf und es weiterhin links uns rechts mittig einen anderen Eigentümer gibt. Wir haben sozusagen ein dienendes Grundstück mit Grunddienstbarkeiten (Wasser, Strom etc.). Da ich eher positiv eingestellt bin und sowas als Chance sehe, mussten wir das Grundstück also einfach haben. Schlussendlich haben wir es nach verhandeln für 130t€ bekommen (für mich persönlich ein Schnäppchen :cool 🙂. Der ET vom herrschenden Grundstück (1x Haus links, 1x Grundstück mit Bungalow rechts) ist bereits 86 und im Betreuten Wohnen. Mit seinen Nachfolgern haben wir schon besprochen früher oder später einen Tausch oder Kauf in Erwägung zu ziehen.
Prinzipiell sind wir einfach eingestellt. Alles kann Standard sein, funktional sein und seinen Zweck erfüllen. Für etwas das optisch etwas hermacht geben wir nicht gern extra Geld aus (Stichwort Farbe) und auch sonst kaufe und sammel ich Dinge für den Hausbau und das Grundstück viel über ebay Kleinanzeigen zusammen. Derzeit viel das Gartengestaltung betrifft, da wird auch viel verschenkt 🙂
Ich bin mit Spaß bei der Sache und kümmere mich zu 99% um die Abwicklung und Planung, meine Freundin vertraut mir da voll und ganz. Es ist auf jeden Fall von Vorteil und entspannt ungemein, wenn man nicht wegen jeder Fliese diskutieren muss :p. Zudem entscheide ich auch schnell. Wir bauen mit Heinz von Heiden, weil ich der Meinung bin, dass hier Preis-Leistungsverhältnis stimmt. Was am Ende dabei rauskommt, mal sehen - bei 50.000 gebauten Häusern ist aber Vertrauen vorhanden.
Kein Bebauungsplan. Bau nach Umgebungsbebauung, da Dorf. Mischgebiet, offene Bebauung nach §34 Abs. 1
Größe des Grundstücks: 3.152 qm
Hang: 5%
Geschossigkeit. 2 Vollgeschosse
Dachform: SD 25 Grad
Stilrichtung: Landhaus
Ausrichtung: Terrasse Nord-West
weitere Vorgaben: seitens Abwasser Betrieb: Zisterne (alte, aber gute 3 Kammer-Klärgrube schon vorhanden, wird dafür genutzt)
Anforderungen der Bauherren
Keller, Geschosse: kein Keller, 2 Vollgeschosse
Anzahl der Personen, Alter: 3 (M: 36, W: 36, Kind 3)
Raumbedarf im EG, OG: jeweils 80qm
Büro: Familiennutzung oder Homeoffice?: ja, ein Büro/Hobby im OG
Schlafgäste pro Jahr: hin- und wieder ja, dafür ein Gästezimmer und -Duschbad im EG (auch falls man im Alter mal nicht mehr hoch kommen sollte)
offene oder geschlossene Architektur: EG eher offen, OG geschlossen
konservativ oder moderne Bauweise: beides
offene Küche, Kochinsel: offene Küche ohne Kochinsel
Anzahl Essplätze: 12 (Tisch ist schon vorhanden, daher keine Kochinsel)
Kamin: ist geplant, Hausbauer möchte 6t€ für einen Gemauerten (Hausmitte) finde ich ungüngstig. Möchte daher einen Edelstahl an der Außenwand selber nachrüsten
Musik/Stereowand: nachrangig wichtig
Balkon, Dachterrasse: nein, schlechtes Kosten-Nutzen-Verhältnis bei so einem großen Grundstück
Garage, Carport: Stahlblechgarage 6x8 mit SD, 3,30m hoch und mit el. Tor für den Mann im Haus :p
Nutzgarten, Treibhaus: erst einmal unwichtig
weitere Wünsche/Besonderheiten/Tagesablauf, gern auch Begründungen, warum dieses oder das nicht sein soll: mein großer Wunsch ist auf jeden Fall ein Kamin, dieser muss aber raumluftunabhängig sein, da das Haus KfW55 Standard hat. Da erhoffe ich mir hier noch ein paar Infos im Forum zur Nachrüstung eines Edelstahlkamins.
Hausentwurf
Von wem stammt die Planung:
-Planer eines Bauunternehmens: Heinz von Heiden Fertighaus C630 (Das Unveränderliche)
-Architekt: Heinz von Heiden
-Do-it-Yourself: Maler- und Bodenlegearbeiten, Fliesenarbeiten, Erdaushub, Außenanlagen und Erdarbeiten Medien
Was gefällt besonders? Warum?
Uns gefällt besonders der offene Bereich Eingang-Wohnzimmer-Küche mit verglaster Front mit Blick in den Garten. Der Grundriss hat uns auch sofort überzeugt. Und natürlich das Platzangebot mit 160qm. Wir haben akutell 91qm 🙂
Was gefällt nicht? Warum?
Es heißt nicht umsonst das Unveränderliche, Wände können nicht verändert werden. Dafür war es 30-40t€ günstiger.
Preisschätzung lt Architekt/Planer: Festpreisvertrag im Februar mit 15 Monate Preisgarantie unterschrieben:
~260t€ inkl. Sonderausstattung (Standard: ~235t€)
Darin enthalten: Luft-luftwärmepumpe mit Speicher, große Kontrollierte-Wohnraumlüftung, el. Rollläden EG+OG, Fußbodenheizung EG+OG, komplettes Material außer Fliesen, Boden, Wand
favorisierte Heiztechnik: Luft-luftwärmepumpe - ist nicht änderbar
Wenn Ihr verzichten müsst, auf welche Details/Ausbauten
-könnt Ihr verzichten: OG Vollgeschoss, große Kontrollierte-Wohnraumlüftung, el. Rollläden, Photovoltaik (Vorbereitung)
-könnt Ihr nicht verzichten: Kamin, 6 Zimmer
Warum ist der Entwurf so geworden, wie er jetzt ist?
Standardentwurf vom Planer?
Ja
Welche Wünsche wurden vom Architekten umgesetzt?
Änderung von Fenstern und Zugang zum Elternbad über Schlafzimmer
Was macht ihn in Euren Augen besonders gut oder schlecht?
Offene Bauweise, große und ausreichend Zimmer
Finanzierung
Über unsere örtliche Sparkasse. Grundstück derzeit noch variabel mit 1,8% und Haus über 15 Jahre auch zu 1,8%. Eigenkapital so um die 17%. Monatl. Belastung müsste bei ca. 1.380€ sein. Gesamtkosten um die 460t€.
Baukosten pro qm ohne Baunebenkosten: 260t€/160qm: ~1.625€/qm
Baukosten pro qm mit Baunebenkosten: 322t€/160qm: ~2.012€/qm
Kosten Grundstück ohne Nebenkosten: 130t€/3.152qm: 41,24€/qm
Kosten Grundstück mt Nebenkosten: 147t€/3.152qm: ~47€/qm
Den Beitrag schreibe ich wie gesagt hauptsächlich für mich als "Tagebuch" um alles mal schriftlich feszuhalten. Vielleicht kommt es dann auch in den Bauordner mit rein, den ich penibel führe - Buchhalter 🙄 😀 Für Anregungen, Meinung, Tipps aber auch Kritik als Denkanstoß bin ich jederzeit dankbar. Fragen ergeben sich dann sicherlich mit der Zeit. Man findet ja viel im Internt und anderen Beiträgen.
Für Fragen zum Haus, Kosten, Hausanbieter etc. bin ich jederzeit offen.
P
Pinkiponk22.04.22 18:04Oberhäslich schrieb:
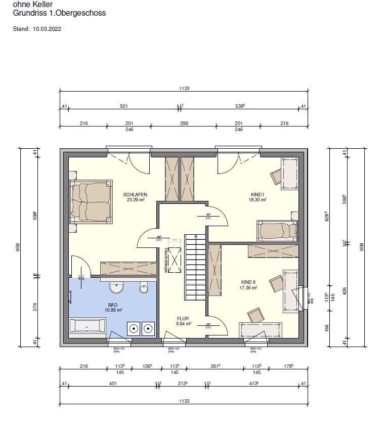
[ATTACH alt="GR_OG.JPG"]71302[/ATTACH]Erst einmal ein herzliches Willkommen hier im Forum. Schön, dass Du uns an Deinem Projekt teilhaben lässt. :-)Ich nehme an, Ihr habt Euch etwas dabei gedacht, dass man das Badezimmer im OG nicht vom Flur aus betreten kann? D.h. somit, dass das Kind/die Kinder, wenn sie mal alleine ins Bad gehen können, das Badezimmer im EG benutzen sollten oder sehe ich das falsch?
Danke schon einmal für Deine Antwort. 🙂
P
Pinkiponk22.04.22 18:24Pinkiponk schrieb:
...Nachtrag: Herzlichen Glückwunsch übrigens noch zu dem günstigen Grundstück. Wir bauen auch in Sachsen/Landkreis Leipzig und haben für unser erschlossenes Grundstück Größe 567qm 147.500 Euro ohne Nebenkosten bezahlt. Auch unser Haus, obwohl einfachste Bauweise, ohne viel SchnickSchnack und erheblich kleiner als Euer Haus, wird um einiges teurer. Da habt Ihr gute Entscheidungen getroffen. Mit Klugheit spart man ordentlich Geld. :-)O
Oberhäslich22.04.22 18:52Wir haben vor 3 Jahren eine neu sanierte Mietwohnung bezogen und haben den Zugang zum Hauptbad auch über unser Schlafzimmer. Ich muss sagen wir finden das gut so. Die Kleine ist aktuell noch mit bei uns im Bad, die anderen Gäste gehen auf das Gäste-WC. Wenn sie älter ist geht sie dann immer runter ins Duschbad, so der Plan. Finde ich jetzt unproblematisch, dass unser Kind eine Etage runter muss 😀. Wichtig war mir dass Gäste direkt vom Gästezimmer ins Bad kommen. Ursprünglich ist bei Heinz von Heiden die Tür zum Bad im Flur aber wir mögen es übers Schlafzimmer. So ist der Weg kurz, wenn man Nachts mal nackt rüber muss 😉. Und 2 Türen nehmen zu viel Platz weg und vermitteln den Eindruck von einem Durchgangsbad.
Heinz von Heiden hat ein paar "Unveränderliche" Häuser im Angebot. Unser C630 kostet als Standard ca. 235t€. Als Variante mit verschiebbaren Wänden kostet es ab ca. 270t€ aufwärts. Da uns der Grundriss so gefällt, passt es ja gut. Und ja, die Wände sind fest, wir können aber mit dem Maurer persönlich nochmal reden. Ich möchte die Wand zwischen Kinder- und Schlafzimmer Richtung Schlafzimmer verschieben damit das Kinderzimmer größer wird und eine große Nische für ein Hochbett entsteht. Ob das so klappt muss ich sehen.
Das Bad brauchen wir nicht größer, unser jetziges ist ca. 8qm groß. Außerdem halten wir uns höchstens 10-15 Minuten am Tag im Bad auf 🙂
Danke pinkipong für den herzlichen Empfang. Die Preise sind zum Glück hier im Osten und speziell Erzgebirge noch bezahlbar. Sind aber jetzt in den letzten Monaten steil angestiegen.
Heute war meine gestellte Bauvoranfrage nach genau 3 Monaten im Briefkasten. In allen Punkten genehmigt, das war schlimmer als Prüfungsangst beim öffnen 🙄 😀 Jetzt kann es richtig losgehen...
Heinz von Heiden hat ein paar "Unveränderliche" Häuser im Angebot. Unser C630 kostet als Standard ca. 235t€. Als Variante mit verschiebbaren Wänden kostet es ab ca. 270t€ aufwärts. Da uns der Grundriss so gefällt, passt es ja gut. Und ja, die Wände sind fest, wir können aber mit dem Maurer persönlich nochmal reden. Ich möchte die Wand zwischen Kinder- und Schlafzimmer Richtung Schlafzimmer verschieben damit das Kinderzimmer größer wird und eine große Nische für ein Hochbett entsteht. Ob das so klappt muss ich sehen.
Das Bad brauchen wir nicht größer, unser jetziges ist ca. 8qm groß. Außerdem halten wir uns höchstens 10-15 Minuten am Tag im Bad auf 🙂
Danke pinkipong für den herzlichen Empfang. Die Preise sind zum Glück hier im Osten und speziell Erzgebirge noch bezahlbar. Sind aber jetzt in den letzten Monaten steil angestiegen.
Heute war meine gestellte Bauvoranfrage nach genau 3 Monaten im Briefkasten. In allen Punkten genehmigt, das war schlimmer als Prüfungsangst beim öffnen 🙄 😀 Jetzt kann es richtig losgehen...
K
Klinkerstyle22.04.22 19:19Glückwunsch zu dem großen Grundstück.
Was für Auflagen gibt es noch bei einem Biotop, ausser das da nicht bebaut werden darf?
Mein Name lässt es zwar nicht unbedingt vermuten, aber wir bauen in Chemnitz. Auch wesentlich teurer und ohne Schnickschnack, aber auch bezugsfertig ohne Eigenleistung. Ich folge dir gerne bei deinem Bau ☺️.
Was für Auflagen gibt es noch bei einem Biotop, ausser das da nicht bebaut werden darf?
Mein Name lässt es zwar nicht unbedingt vermuten, aber wir bauen in Chemnitz. Auch wesentlich teurer und ohne Schnickschnack, aber auch bezugsfertig ohne Eigenleistung. Ich folge dir gerne bei deinem Bau ☺️.
Ähnliche Themen