ᐅ Rechteckiges Einfamilienhaus auf schmalen Grundstück
Erstellt am: 03.08.20 12:40
Hallo werte Gemeinde,
nun geh' ich freiwillig zum Schafott und stell den Stand unserer Planung vor.
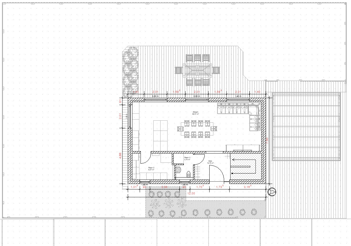
Wir planen derzeit den Bau unseres Einfamilienhaus. Ein Grundstück mit den Maßen 30x18,8m ist vorhanden. Ausrichtung des Grundstücks ist NO-SW.
Auf Nord- und Süd-Seite sind Nachbarn. Ost-Seite ist die Straße/Einfahrt und gegenüber liegend ein Neubau Mehrfamilienhaus. Daher möchten wir eine
Ausrichtung der Wohnräume & Terrasse nach Westen.
Die Entscheidung ist für einen regionalen GU gefallen welcher jedes Haus individuell plant und umsetzt. Es wird monolithisch nach Energieeinsparverordnung gebaut.
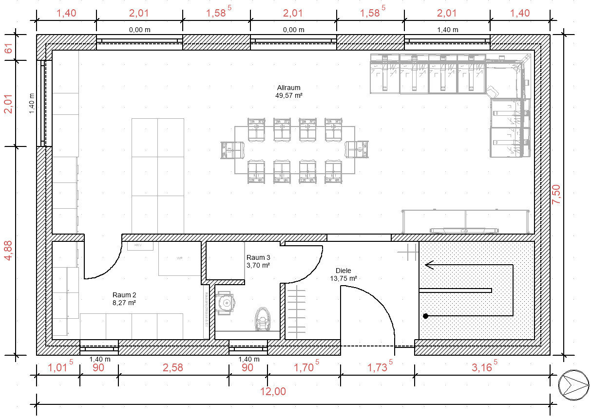
Der Grundrissentwurf ohne Möbel stammt vom Planer des GU und resultiert aus unseren Gesprächen. Ich habe diese dann nachgezeichnet und mit
entsprechender möblierung dem "Worst-Case" versehen. Was bedeutet das? Wir haben z.B. nicht immer 10 Personen im Essbereich. Hier wird bei Bedarf
ein Tisch dazu gestellt. Der Platz dafür sollte jedoch da sein. Genauso verhält es sich im Arbeitszimmer. Dies wird zu 99% immer AZ bleiben.
Falls doch mal Nachwuchs dazukommen sollte, muss daraus ein AZ/GZ werden. Auch hier sollte der Platz da sein. Der zweite Arbeitsbereich wandert
dann vom KZ in die Galerie. Insofern stellt die Möblierung z.T. mehr Zukunft als Gegenwart dar. In jedem Fall aber mit reellen Maßen.
Nun zum Fragebogen:
Bebauungsplan/Einschränkungen
Größe des Grundstücks 564qm
Hang nein
Grundflächenzahl 0,4
Geschossflächenzahl 0,8
Baufenster, Baulinie und -grenze 3m umlaufen
Randbebauung
Anzahl Stellplatz 4
Geschossigkeit 2 Vollgeschosse
Dachform Freie Bauweise
Stilrichtung Freie Bauweise
Ausrichtung NW-SO
Maximale Höhen/Begrenzungen nein
weitere Vorgaben nein
Anforderungen der Bauherren
Stilrichtung, Dachform, Gebäudetyp: 2 Vollgeschosse
Anzahl der Personen, Alter: Er 34, Sie 27, keine Kinder geplant (dennoch "worst case" Planung mit einem Kind")
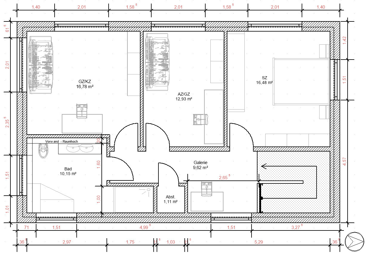
Raumbedarf im EG, OG: EG Allraum, Hauswirtschaftsraum/HAR, Dusch-WC, Platz für Garderobe / OG: Glalerie mit Arbeitsplatz, Schlafzimmer, AZ/GZ, Multifunktionsraum (AZ2/GZ/KZ)
Büro: Er 100% Home-Office, Sie 40% Home-Office (falls doch Kind, soll ein kleiner Arbeitsbereich in der Galerie eingerichtet werden)
Schlafgäste pro Jahr: 0-1
offene oder geschlossene Architektur: offen
konservativ oder moderne Bauweise: modern
offene Küche, Kochinsel: Kochinsel - Küche nehmen wir mit
Anzahl Essplätze - 10 für Familienfeiern (3-5x pro Jahr)
Kamin - Nein
Musik/Stereowand - Nein
Balkon, Dachterrasse - Nein
Garage, Carport - Doppelcarport
Nutzgarten, Treibhaus - Gartenhütte
weitere Wünsche/Besonderheiten/Tagesablauf, gern auch Begründungen, warum dieses oder das nicht sein soll
Funktionsräume zur Ost-Seite (Straßenseite), Wohnräume zur West-Seite (nicht einsehbar), Terrasse zur West-Seite, wird sind überhaupt keine
Süd-Terrassen Menschen. Da bleib ich lieber drin.
Über die relle Wirkung des Allraums bin ich mir noch unschlüssig (schlauchig ja/nein). Hier kann sicherlich mit Möblierung, Farbgestaltung und
Deko optisch etwas "Länge" rausgenommen werden.
Hausentwurf
Von wem stammt die Planung: Planer desBauunternehmens
Was gefällt besonders? Warum? Offener Allraum, Ausrichtung nach Westen
Was gefällt nicht? Warum?
Evtl zu wenig Garderobenplatz, wobei wir derzeit mit 2 lfd Meter auch gut zurecht kommen. Treppenantritt im Eingangsbereich (die Kröte haben wir schon geschluckt).
Preisschätzung lt Architekt/Planer: 260.000€
Persönliches Preislimit fürs Haus, inkl Ausstattung: exkl. Baunebenkosten, Garten, Carport etc. 300.000€
favorisierte Heiztechnik: Luft-Wasser-Wärmepumpe
Wenn Ihr verzichten müsst, auf welche Details/Ausbauten
-könnt Ihr verzichten: Podesttreppe, Küche direkt am Hauseingang
-könnt Ihr nicht verzichten: Ausrichtung der Wohnräume nach Westen, Schlafzimmer im Norden
Warum ist der Entwurf so geworden, wie er jetzt ist? ZB
Der Entwurf ist nach gemeinsamen Gesprächen mit dem Planer vom GU entstanden. Nach dem Raumprogramm, dem Grundstück und unseren Wünschen zu Ausrichtung.
Was ist die wichtigste/grundlegende Frage zum Grundriss in 130 Zeichen zusammengefasst?
Ist der Grundriss insofern stimmig oder haben wir eine Betriebsblindheit entwickelt und übersehen grobe Planungsfehler?
In diesem Sinne, vielen Dank!





nun geh' ich freiwillig zum Schafott und stell den Stand unserer Planung vor.
Wir planen derzeit den Bau unseres Einfamilienhaus. Ein Grundstück mit den Maßen 30x18,8m ist vorhanden. Ausrichtung des Grundstücks ist NO-SW.
Auf Nord- und Süd-Seite sind Nachbarn. Ost-Seite ist die Straße/Einfahrt und gegenüber liegend ein Neubau Mehrfamilienhaus. Daher möchten wir eine
Ausrichtung der Wohnräume & Terrasse nach Westen.
Die Entscheidung ist für einen regionalen GU gefallen welcher jedes Haus individuell plant und umsetzt. Es wird monolithisch nach Energieeinsparverordnung gebaut.
Der Grundrissentwurf ohne Möbel stammt vom Planer des GU und resultiert aus unseren Gesprächen. Ich habe diese dann nachgezeichnet und mit
entsprechender möblierung dem "Worst-Case" versehen. Was bedeutet das? Wir haben z.B. nicht immer 10 Personen im Essbereich. Hier wird bei Bedarf
ein Tisch dazu gestellt. Der Platz dafür sollte jedoch da sein. Genauso verhält es sich im Arbeitszimmer. Dies wird zu 99% immer AZ bleiben.
Falls doch mal Nachwuchs dazukommen sollte, muss daraus ein AZ/GZ werden. Auch hier sollte der Platz da sein. Der zweite Arbeitsbereich wandert
dann vom KZ in die Galerie. Insofern stellt die Möblierung z.T. mehr Zukunft als Gegenwart dar. In jedem Fall aber mit reellen Maßen.
Nun zum Fragebogen:
Bebauungsplan/Einschränkungen
Größe des Grundstücks 564qm
Hang nein
Grundflächenzahl 0,4
Geschossflächenzahl 0,8
Baufenster, Baulinie und -grenze 3m umlaufen
Randbebauung
Anzahl Stellplatz 4
Geschossigkeit 2 Vollgeschosse
Dachform Freie Bauweise
Stilrichtung Freie Bauweise
Ausrichtung NW-SO
Maximale Höhen/Begrenzungen nein
weitere Vorgaben nein
Anforderungen der Bauherren
Stilrichtung, Dachform, Gebäudetyp: 2 Vollgeschosse
Anzahl der Personen, Alter: Er 34, Sie 27, keine Kinder geplant (dennoch "worst case" Planung mit einem Kind")
Raumbedarf im EG, OG: EG Allraum, Hauswirtschaftsraum/HAR, Dusch-WC, Platz für Garderobe / OG: Glalerie mit Arbeitsplatz, Schlafzimmer, AZ/GZ, Multifunktionsraum (AZ2/GZ/KZ)
Büro: Er 100% Home-Office, Sie 40% Home-Office (falls doch Kind, soll ein kleiner Arbeitsbereich in der Galerie eingerichtet werden)
Schlafgäste pro Jahr: 0-1
offene oder geschlossene Architektur: offen
konservativ oder moderne Bauweise: modern
offene Küche, Kochinsel: Kochinsel - Küche nehmen wir mit
Anzahl Essplätze - 10 für Familienfeiern (3-5x pro Jahr)
Kamin - Nein
Musik/Stereowand - Nein
Balkon, Dachterrasse - Nein
Garage, Carport - Doppelcarport
Nutzgarten, Treibhaus - Gartenhütte
weitere Wünsche/Besonderheiten/Tagesablauf, gern auch Begründungen, warum dieses oder das nicht sein soll
Funktionsräume zur Ost-Seite (Straßenseite), Wohnräume zur West-Seite (nicht einsehbar), Terrasse zur West-Seite, wird sind überhaupt keine
Süd-Terrassen Menschen. Da bleib ich lieber drin.
Über die relle Wirkung des Allraums bin ich mir noch unschlüssig (schlauchig ja/nein). Hier kann sicherlich mit Möblierung, Farbgestaltung und
Deko optisch etwas "Länge" rausgenommen werden.
Hausentwurf
Von wem stammt die Planung: Planer desBauunternehmens
Was gefällt besonders? Warum? Offener Allraum, Ausrichtung nach Westen
Was gefällt nicht? Warum?
Evtl zu wenig Garderobenplatz, wobei wir derzeit mit 2 lfd Meter auch gut zurecht kommen. Treppenantritt im Eingangsbereich (die Kröte haben wir schon geschluckt).
Preisschätzung lt Architekt/Planer: 260.000€
Persönliches Preislimit fürs Haus, inkl Ausstattung: exkl. Baunebenkosten, Garten, Carport etc. 300.000€
favorisierte Heiztechnik: Luft-Wasser-Wärmepumpe
Wenn Ihr verzichten müsst, auf welche Details/Ausbauten
-könnt Ihr verzichten: Podesttreppe, Küche direkt am Hauseingang
-könnt Ihr nicht verzichten: Ausrichtung der Wohnräume nach Westen, Schlafzimmer im Norden
Warum ist der Entwurf so geworden, wie er jetzt ist? ZB
Der Entwurf ist nach gemeinsamen Gesprächen mit dem Planer vom GU entstanden. Nach dem Raumprogramm, dem Grundstück und unseren Wünschen zu Ausrichtung.
Was ist die wichtigste/grundlegende Frage zum Grundriss in 130 Zeichen zusammengefasst?
Ist der Grundriss insofern stimmig oder haben wir eine Betriebsblindheit entwickelt und übersehen grobe Planungsfehler?
In diesem Sinne, vielen Dank!
Ein möglicher Planungsfehler könnte das Budget sein, aber mangels Informationen (Ausstattung, Eigenleistung) lässt sich das schwer einschätzen. Generell ist das Münsterland vermutlich eher günstig, aber dass Ihr bei geschätzten 150 m² Wohnfläche (?) unter 300 TEUR landen werdet, halte ich für relativ unwahrscheinlich - wohlgemerkt ohne Garage, Nebenkosten usw. usf.
Danke für den Hinweis @K1300S ... hab es zum Anlass genommen die Kalkulation nochmal durchzugehen.
Uns liegt ein Angebot über 260.000€ für den o.g. Grundriss vor (~150qm ist richtig). Darin enthalten sind Fliesen (EG komplett Material 35€/qm + Bad OG) , Mehrgründungsaufwand von 13.000€, farbige Fenster/Türen, Elektrische Aluminium Rollläden, Plizkopfverriegelung EG, geflieste Dusche OG, Doppelwaschtisch OG, Eingangstür mit Seitenteil, Sohlbänke Naturstein außen&innen, Mehrsparteneinführung sowie Kosten für Genehmigungsplanung.
Maler / restliche Bodenbeläge sind mit 15.000€ veranschlagt (Angebot eines befreundeten Malermeisters liegt vor).
Der Rest ist derzeit als Aufmusterungspuffer geplant. Neben einem zweiten Puffer.
Additiv kommen dann natürlich noch Außenanlagen, Baunebenkosten, Bauzeitzinsen, Umzug usw. drauf. Gesamte Bausumme liegt bei 400.000+.
Uns liegt ein Angebot über 260.000€ für den o.g. Grundriss vor (~150qm ist richtig). Darin enthalten sind Fliesen (EG komplett Material 35€/qm + Bad OG) , Mehrgründungsaufwand von 13.000€, farbige Fenster/Türen, Elektrische Aluminium Rollläden, Plizkopfverriegelung EG, geflieste Dusche OG, Doppelwaschtisch OG, Eingangstür mit Seitenteil, Sohlbänke Naturstein außen&innen, Mehrsparteneinführung sowie Kosten für Genehmigungsplanung.
Maler / restliche Bodenbeläge sind mit 15.000€ veranschlagt (Angebot eines befreundeten Malermeisters liegt vor).
Der Rest ist derzeit als Aufmusterungspuffer geplant. Neben einem zweiten Puffer.
Additiv kommen dann natürlich noch Außenanlagen, Baunebenkosten, Bauzeitzinsen, Umzug usw. drauf. Gesamte Bausumme liegt bei 400.000+.
P
pagoni202003.08.20 14:08Wir haben eine ähnliche Hausform, daher weiß ich, dass der "Schlauch" gut bedacht sein muss, damit er nicht so wirkt und es so Manchem nicht gefällt.
Wir haben Luftraum/Galerie sowie auch sehr viel an Fensterflächen. Gerade größere Fensterflächen würden mir bei Deinem Grundriss bislang noch fehlen.
Du solltest unbedingt reale Möbelmaße einzeichnen, den "Notfall 3-4 Mal pro Jahr, bekommt man ja immer irgendwie hin; dafür muss man ein Haus nicht extra vorbereiten. Auch würde ich vlt. ein leichtes/mobiles Möbelstück o.ä. zwischen Bereichen bedenken.
Aus den 50qm Allraum kann man schon etwas machen.
Im OG finde ich Euer Schlafzimmer recht klein und das Bad mit nach außen öffnender Tür eine planerische Fehlleistung, die ich nicht so haben möchte.
Wir haben Luftraum/Galerie sowie auch sehr viel an Fensterflächen. Gerade größere Fensterflächen würden mir bei Deinem Grundriss bislang noch fehlen.
Du solltest unbedingt reale Möbelmaße einzeichnen, den "Notfall 3-4 Mal pro Jahr, bekommt man ja immer irgendwie hin; dafür muss man ein Haus nicht extra vorbereiten. Auch würde ich vlt. ein leichtes/mobiles Möbelstück o.ä. zwischen Bereichen bedenken.
Aus den 50qm Allraum kann man schon etwas machen.
Im OG finde ich Euer Schlafzimmer recht klein und das Bad mit nach außen öffnender Tür eine planerische Fehlleistung, die ich nicht so haben möchte.
Ähnliche Themen