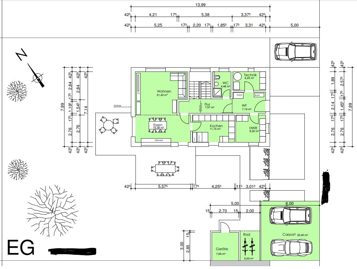
ᐅ Grundriss klassisches Einfamilienhaus auf 700qm Grundstück mit Ostzugang
Erstellt am: 05.10.21 00:20
M
Mitch404Hey Leute,
viele von euch dürften das ja kennen, auf einmal ist man zu dritt und merkt, dass die aktuelle Wohnung auf Sicht zu klein sein wird.
Meine Frau und ich wollen uns deshalb ein Einfamilienhaus gönnen.
Aktuell sind wir dabei mit dem Architekten für den wir uns entschieden haben den Grundriss zu erarbeiten.
Bebauungsplan/Einschränkungen
Größe des Grundstücks: 700qm
kein Hang
Grundflächenzahl: 0,3
Geschossflächenzahl: 0,6
Anzahl Stellplatz: 2
Geschossigkeit: 2 Vollgeschosse, bei 2 Vollgeschossen Kniestock nicht erlaubt
Dachform: Satteldach
Anforderungen der Bauherren
Stilrichtung, Dachform, Gebäudetyp: Dachform ist mit Satteldach vorgegeben. Haus soll sich außerdem in die Nachbarbebauung einfügen, deshalb eher rechteckiger als quadratischer (Stadtvilla) Grundriss.
Keller, Geschosse: Kein Keller und keine Dachschrägen gewünscht, deshalb zwei Vollgeschosse
Anzahl der Personen, Alter: 3 Personen 35, 30, 0,3 Jahre, Platz für ein weiteres Kind gewünscht
Raumbedarf im EG, OG: Klassischer Bedarf einer Familie mit zwei Kindern ohne besondere Hobbys. Ausreichend Hauswirtschaftsraum um im Winter auch mal Wäsche aufhängen zu können. Küche groß genug um auch mal in Ruhe eine Torte backen zu können (haben aktuell nur eine 6qm Küche, das ist schon recht eng). Arbeitszimmer hätten wir uns auch gut im EG vorstellen können, da dann Gäste nicht das OG betreten müssen, damit wäre uns das EG aber insgesamt zu groß geworden.
Büro: Das Büro ist für Homeoffice gedacht und soll zwei Arbeitsplätze (werden in der Regel nicht gleichzeitig genutzt) und die Möglichkeit für Gäste zu übernachten abdecken
Schlafgäste pro Jahr: keine regelmäßigen. Falls unsere Eltern oder mal Freunde bei uns übernachten wollen möchten wir dafür eine Möglichkeit im Arbeitszimmer.
offene oder geschlossene Architektur: Wir finden offen sieht nett aus, im Alltag wollen wir es aber vor allem praktisch und dazu gehört für uns, dass man sich auch mal zurück ziehen kann. Deshalb großer Wohn/Essbereich mit einer Küche die sich mittels großer Schiebetür zumindest teilweise integrieren lässt, der Rest aber eher geschlossen.
konservativ oder moderne Bauweise: moderne Bauweise soweit uns das gefällt (offene Treppe im Wohnbereich mag aktuell modern sein gefällt uns aber bspw. nicht, für die T-Lösung halten wir unser Bad für e Ecke zu klein)
offene Küche, Kochinsel: Küche soll nicht offen sein, aber gerne mit großer Schiebetür Kochinsel und Essgelegenheit direkt in der Küche wären nett.
Anzahl Essplätze: 8+
Kamin: kein Kamin
Musik/Stereowand: nicht gewünscht. Neben dem Fernseher wird wie jetzt auch eine 2.1 Anlage stehen, fertig
Balkon, Dachterrasse: nicht gewünscht
Garage, Carport: Carport
Nutzgarten, Treibhaus: Wir planen mit wenig Nutzgarten. Ein paar Hochbeete, vielleicht 1-2 normale Beete, Schwerpunkt wird aber pflegeleichter Erholungs- und Freizeitgarten sein
weitere Wünsche/Besonderheiten/Tagesablauf, gern auch Begründungen, warum dieses oder das nicht sein soll
Von den Kinderzimmern geht jeweils eine Dachbodentreppe nach oben, so dass man die Zimmer damit nach oben erweitern könnte wenn die Kids im Teenageralter sind und mehr Platz wollen. Haben das so umgesetzt bei 2-3 Häusern gesehen und finden das ziemlich cool.
Hausentwurf
Von wem stammt die Planung: Freier Architekt
Was gefällt besonders? Warum? Der zur Straße geschützte Südwestgarten. Das Wohnzimmer, dass gleichzeitig offen ist, aufgrund der Nische und der Tür die erst in den Essbereich führt trotzdem etwas Ruhe mitbringt. Die Küche mit von außen aufsperrbarer Terrassentür, so dass Einkäufe direkt in die Küche können. Der begehbare Kleiderschrank, da durch den mehr optische Ruhe ins Schlafzimmer kommt. Stauraum unter der Treppe. Die Trennung von Technik und Hauswirtschaftsraum, da man den Hauswirtschaftsraum dadurch ordentlicher gestalten kann.
Was gefällt nicht? Warum? Bei Bad EG und Arbeitszimmer habe ich Angst, dass die jeweils etwas zu klein sind. Die Kinderzimmer kommen mir dagegen mit 17qm schon sehr üppig vor, da hätten es wohl auch 16qm getan.
Preisschätzung lt Architekt/Planer: der Architekt macht für uns nur Stufe 1-4. Wir haben uns noch nicht entschieden ob wir uns einen GU suchen oder Einzelvergabe machen und uns eine Bauaufsicht suchen.
Persönliches Preislimit fürs Haus, inkl. Ausstattung: 500k
favorisierte Heiztechnik: Solewasserwärmepumpe mit Ringgrabenkollektor
Wenn Ihr verzichten müsst, auf welche Details/Ausbauten
-könnt Ihr verzichten: Keller und Kamin haben wir bereits gestrichen, auf T-Lösung im Bad können und werden wir wahrscheinlich auch verzichten, damit es weniger dunkel und eng wirkt
-könnt Ihr nicht verzichten:
Warum ist der Entwurf so geworden, wie er jetzt ist? ZB
Standardentwurf vom Planer? Der Plan wurde individuell für uns erstellt nach dem wir dem Architekten einen Fragebogen ausgefüllt hatten
Entsprechende/Welche Wünsche wurden vom Architekten umgesetzt?
- Carport & Schuppen verdecken die hässliche Fertiggarage des Nachbarn.
- Haus und Carport bilden eine Art liegendes L durch das ein geschützter Südwestgarten entsteht.
- 2 Kinderzimmer mit mind. 15 qm + Arbeitszimmer
- Küche per Schiebetür abgetrennt von Wohn/Essbereich
- langfristige Option aus dem OG eine eigene getrennte Wohneinheit zu machen (langfristige Flexibilität und KFW Förderung für zwei Wohneinheiten)
Was macht ihn in Euren Augen besonders gut oder schlecht?
Insgesamt gefällt uns der Plan schon ziemlich gut. Wir wollen uns jetzt noch Details ansehen (bspw. begehbarer Kleiderschrank ein knapper QM größer, dann passt an die zweite Wand noch ein flacher Pax Schrank,) Die Fenster sind noch überhaupt nicht geplant und erst mal vom Architekten willkürlich gesetzt.
Wir freuen uns jetzt vor allem auf euer offenes Feedback um den Plan noch weiter zu optimieren bevor es ernst wird und ggf. den ein oder anderen Fehler zu vermeiden. 😉
LG
Mitch




viele von euch dürften das ja kennen, auf einmal ist man zu dritt und merkt, dass die aktuelle Wohnung auf Sicht zu klein sein wird.
Meine Frau und ich wollen uns deshalb ein Einfamilienhaus gönnen.
Aktuell sind wir dabei mit dem Architekten für den wir uns entschieden haben den Grundriss zu erarbeiten.
Bebauungsplan/Einschränkungen
Größe des Grundstücks: 700qm
kein Hang
Grundflächenzahl: 0,3
Geschossflächenzahl: 0,6
Anzahl Stellplatz: 2
Geschossigkeit: 2 Vollgeschosse, bei 2 Vollgeschossen Kniestock nicht erlaubt
Dachform: Satteldach
Anforderungen der Bauherren
Stilrichtung, Dachform, Gebäudetyp: Dachform ist mit Satteldach vorgegeben. Haus soll sich außerdem in die Nachbarbebauung einfügen, deshalb eher rechteckiger als quadratischer (Stadtvilla) Grundriss.
Keller, Geschosse: Kein Keller und keine Dachschrägen gewünscht, deshalb zwei Vollgeschosse
Anzahl der Personen, Alter: 3 Personen 35, 30, 0,3 Jahre, Platz für ein weiteres Kind gewünscht
Raumbedarf im EG, OG: Klassischer Bedarf einer Familie mit zwei Kindern ohne besondere Hobbys. Ausreichend Hauswirtschaftsraum um im Winter auch mal Wäsche aufhängen zu können. Küche groß genug um auch mal in Ruhe eine Torte backen zu können (haben aktuell nur eine 6qm Küche, das ist schon recht eng). Arbeitszimmer hätten wir uns auch gut im EG vorstellen können, da dann Gäste nicht das OG betreten müssen, damit wäre uns das EG aber insgesamt zu groß geworden.
Büro: Das Büro ist für Homeoffice gedacht und soll zwei Arbeitsplätze (werden in der Regel nicht gleichzeitig genutzt) und die Möglichkeit für Gäste zu übernachten abdecken
Schlafgäste pro Jahr: keine regelmäßigen. Falls unsere Eltern oder mal Freunde bei uns übernachten wollen möchten wir dafür eine Möglichkeit im Arbeitszimmer.
offene oder geschlossene Architektur: Wir finden offen sieht nett aus, im Alltag wollen wir es aber vor allem praktisch und dazu gehört für uns, dass man sich auch mal zurück ziehen kann. Deshalb großer Wohn/Essbereich mit einer Küche die sich mittels großer Schiebetür zumindest teilweise integrieren lässt, der Rest aber eher geschlossen.
konservativ oder moderne Bauweise: moderne Bauweise soweit uns das gefällt (offene Treppe im Wohnbereich mag aktuell modern sein gefällt uns aber bspw. nicht, für die T-Lösung halten wir unser Bad für e Ecke zu klein)
offene Küche, Kochinsel: Küche soll nicht offen sein, aber gerne mit großer Schiebetür Kochinsel und Essgelegenheit direkt in der Küche wären nett.
Anzahl Essplätze: 8+
Kamin: kein Kamin
Musik/Stereowand: nicht gewünscht. Neben dem Fernseher wird wie jetzt auch eine 2.1 Anlage stehen, fertig
Balkon, Dachterrasse: nicht gewünscht
Garage, Carport: Carport
Nutzgarten, Treibhaus: Wir planen mit wenig Nutzgarten. Ein paar Hochbeete, vielleicht 1-2 normale Beete, Schwerpunkt wird aber pflegeleichter Erholungs- und Freizeitgarten sein
weitere Wünsche/Besonderheiten/Tagesablauf, gern auch Begründungen, warum dieses oder das nicht sein soll
Von den Kinderzimmern geht jeweils eine Dachbodentreppe nach oben, so dass man die Zimmer damit nach oben erweitern könnte wenn die Kids im Teenageralter sind und mehr Platz wollen. Haben das so umgesetzt bei 2-3 Häusern gesehen und finden das ziemlich cool.
Hausentwurf
Von wem stammt die Planung: Freier Architekt
Was gefällt besonders? Warum? Der zur Straße geschützte Südwestgarten. Das Wohnzimmer, dass gleichzeitig offen ist, aufgrund der Nische und der Tür die erst in den Essbereich führt trotzdem etwas Ruhe mitbringt. Die Küche mit von außen aufsperrbarer Terrassentür, so dass Einkäufe direkt in die Küche können. Der begehbare Kleiderschrank, da durch den mehr optische Ruhe ins Schlafzimmer kommt. Stauraum unter der Treppe. Die Trennung von Technik und Hauswirtschaftsraum, da man den Hauswirtschaftsraum dadurch ordentlicher gestalten kann.
Was gefällt nicht? Warum? Bei Bad EG und Arbeitszimmer habe ich Angst, dass die jeweils etwas zu klein sind. Die Kinderzimmer kommen mir dagegen mit 17qm schon sehr üppig vor, da hätten es wohl auch 16qm getan.
Preisschätzung lt Architekt/Planer: der Architekt macht für uns nur Stufe 1-4. Wir haben uns noch nicht entschieden ob wir uns einen GU suchen oder Einzelvergabe machen und uns eine Bauaufsicht suchen.
Persönliches Preislimit fürs Haus, inkl. Ausstattung: 500k
favorisierte Heiztechnik: Solewasserwärmepumpe mit Ringgrabenkollektor
Wenn Ihr verzichten müsst, auf welche Details/Ausbauten
-könnt Ihr verzichten: Keller und Kamin haben wir bereits gestrichen, auf T-Lösung im Bad können und werden wir wahrscheinlich auch verzichten, damit es weniger dunkel und eng wirkt
-könnt Ihr nicht verzichten:
Warum ist der Entwurf so geworden, wie er jetzt ist? ZB
Standardentwurf vom Planer? Der Plan wurde individuell für uns erstellt nach dem wir dem Architekten einen Fragebogen ausgefüllt hatten
Entsprechende/Welche Wünsche wurden vom Architekten umgesetzt?
- Carport & Schuppen verdecken die hässliche Fertiggarage des Nachbarn.
- Haus und Carport bilden eine Art liegendes L durch das ein geschützter Südwestgarten entsteht.
- 2 Kinderzimmer mit mind. 15 qm + Arbeitszimmer
- Küche per Schiebetür abgetrennt von Wohn/Essbereich
- langfristige Option aus dem OG eine eigene getrennte Wohneinheit zu machen (langfristige Flexibilität und KFW Förderung für zwei Wohneinheiten)
Was macht ihn in Euren Augen besonders gut oder schlecht?
Insgesamt gefällt uns der Plan schon ziemlich gut. Wir wollen uns jetzt noch Details ansehen (bspw. begehbarer Kleiderschrank ein knapper QM größer, dann passt an die zweite Wand noch ein flacher Pax Schrank,) Die Fenster sind noch überhaupt nicht geplant und erst mal vom Architekten willkürlich gesetzt.
Wir freuen uns jetzt vor allem auf euer offenes Feedback um den Plan noch weiter zu optimieren bevor es ernst wird und ggf. den ein oder anderen Fehler zu vermeiden. 😉
LG
Mitch
Haben das EG ähnlich von der generellen Anordnung her nur mit Keller ….
musst dir halt bewusst sein dass das Esszimmer dann heller und höher frequentiert ist als das Wohnzimmer … wir wollten das so da wir im Wohnzimmer nie so sitzen sondern nur wenn wir TV sehen …
Solltest du das EG von der anOrdnung her so lassen kann ich dir gerne noch ein paar Tipps geben zum Beispiel solltest du in die Haustür unbedingt Scheiben rein machen oder noch mal ein Glaselement daneben sonst wird der Flur zu dunkel
Soll die Küche tatsächlich so möbliert werden ?
musst dir halt bewusst sein dass das Esszimmer dann heller und höher frequentiert ist als das Wohnzimmer … wir wollten das so da wir im Wohnzimmer nie so sitzen sondern nur wenn wir TV sehen …
Solltest du das EG von der anOrdnung her so lassen kann ich dir gerne noch ein paar Tipps geben zum Beispiel solltest du in die Haustür unbedingt Scheiben rein machen oder noch mal ein Glaselement daneben sonst wird der Flur zu dunkel
Soll die Küche tatsächlich so möbliert werden ?
Für mich wäre die Tatsache, dass ich beim Reinkommen nur in einen Flur schaue, der mich mit einer Wand „empfängt“, also nicht mit Raum, offenem Blick in den Allraum oder Garten, ein Nogo. Ich stelle das immer wieder fest, wenn ich woanders bin oder meine Zeichnungen mache.
Ich würde die gedachte WZ-Trennung weiter zur Chillecke ziehen, den Essbereich also größer (mit 2,76 ist er eh zu schmal, wenn der Esstisch in Benutzung ist, Sitzbank ist so kaum erreichbar) und eben dann auch geraden Blickes am Flurende den offenen Eingang zum Essbereich.
Wenn Ihr darin das Positive seht, dann ist ja gut. Ist ja Euer Haus.
Küche gefällt mir gar nicht. Sie ist ja klassisch abgeschlossen und noch dazu sehr dunkel. Der Küche fehlt Fenster und Tageslicht. Ein Blick ins Grüne und in den Garten mit Arbeitsplatte vor dem Fenster, damit man das Kind in Beobachtung hat. Eine oder die gewünschte große Schiebetür sehe ich auch nicht. Zum Essbereich hab ich ja schon was gesagt.
Ihr solltet Euch vielleicht Gedanken machen, ob ihr nicht eher das WZ „verschließt“ und eine offene große Essküche macht.
Die Treppe weiter nach vorne ziehen Richtung Eingang hätte auch Vorteile, so dass man den langen Flur einkürzen könnte und die gewonnenen Qm einen Aufenthaltraum zuschlägt.
Ich würde die gedachte WZ-Trennung weiter zur Chillecke ziehen, den Essbereich also größer (mit 2,76 ist er eh zu schmal, wenn der Esstisch in Benutzung ist, Sitzbank ist so kaum erreichbar) und eben dann auch geraden Blickes am Flurende den offenen Eingang zum Essbereich.
Mitch404 schrieb:
aufgrund der Nische und der Tür die erst in den Essbereich führt trotzdem etwas Ruhe mitbringt.
Wenn Ihr darin das Positive seht, dann ist ja gut. Ist ja Euer Haus.
Küche gefällt mir gar nicht. Sie ist ja klassisch abgeschlossen und noch dazu sehr dunkel. Der Küche fehlt Fenster und Tageslicht. Ein Blick ins Grüne und in den Garten mit Arbeitsplatte vor dem Fenster, damit man das Kind in Beobachtung hat. Eine oder die gewünschte große Schiebetür sehe ich auch nicht. Zum Essbereich hab ich ja schon was gesagt.
Ihr solltet Euch vielleicht Gedanken machen, ob ihr nicht eher das WZ „verschließt“ und eine offene große Essküche macht.
Die Treppe weiter nach vorne ziehen Richtung Eingang hätte auch Vorteile, so dass man den langen Flur einkürzen könnte und die gewonnenen Qm einen Aufenthaltraum zuschlägt.
M
Myrna_Loy05.10.21 08:39Wir haben einen sehr ähnlichen Grundriss und eine ähnliche Ausrichtung - aber nicht freiwillig, da wir einen Altbau haben.
Die Küche ist viel zu schmal, um gut möbliert zu werden. Und das Wohnzimmer im Norden würde ich auch nicht freiwillig wählen.
Die Küche ist viel zu schmal, um gut möbliert zu werden. Und das Wohnzimmer im Norden würde ich auch nicht freiwillig wählen.
H
Hausbautraum2005.10.21 09:29ypg schrieb:
Für mich wäre die Tatsache, dass ich beim Reinkommen nur in einen Flur schaue, der mich mit einer Wand „empfängt“, also nicht mit Raum, offenem Blick in den Allraum oder Garten, ein Nogo. Ich stelle das immer wieder fest, wenn ich woanders bin oder meine Zeichnungen mache.Du sagst richtig "für mich".
Ich fände es extrem furchtbar, wenn jeder Postbote oder wer auch immer an der Tür, in mein Haus schauen kann.
Deswegen sieht es bei uns aus wie beim Themenersteller und wir finden das so auch sehr gut...
S
Schimi179105.10.21 09:33Hausbautraum20 schrieb:
...
Ich fände es extrem furchtbar, wenn jeder Postbote oder wer auch immer an der Tür, in mein Haus schauen kann.
...Ein Wort würde mir reichen, um dies zu beantworten. Leider müssen es mind. fünf Wörter sein."Milchglas"
Ähnliche Themen