Hausbau - Ratgeber
Bauherrenhilfe
- Bauherrenhilfe vor Vertragsabschluss
-- Warum einen unabhängigen Baubetreuer?
-- Vertragsgrundlagen
-- Bausumme
-- Zahlungsplan zur Kostenkontrolle
-- Pflichten des Bauherren vor Vertragsabschluss
-- Unterlagen beim Hausbau vor Vertragsabschluss
- Bauherrenhilfe nach Vertragsabschluss
-- Bauantrag bei Behörden
-- Bau-Genehmigungsverfahren bei Baubehörden
-- Bauspezifische Versicherungen
-- Bauzeitenplan
-- Baubeginn - die Letzten Pflichten der Bauherrschaft
- Bauherrenhilfe während der Bauzeit
- Gewährleistungsansprüche
- Bauabnahme
Baufinanzierung
- Baufinanzierung - Allgemeine Fragen
- Kreditarten
- Kredit-Konditionen
- Bausparen
- Staatliche Förderungen
- Verkehrswert
- Haushaltsrechnung und Bonität
Hausbau Planung
- Haustypen
- Hausbau Vorbereitungsarbeiten
- Das Baugrundstück
- Baugrund beim Hausbau
- Baurecht
- Gebäudeschutz
- Erdarbeiten und Wasserhaltung
- Stützmauern
- Einfriedung
- Untergeschoss
- Kanalisation
- Tragende Elemente
- Nichttragende Innenwände
- Fundation / Fundament
- Deckenkonstruktionen
- Dächer
- Kaminanlagen
- Treppen Rampen Leitern
- Dachbeläge und Spengler
- Fenster
- Sonnen und Wetterschutz
- Aussenputze
- Einbauten, Küchen, Türen
- Bodenbeläge und Unterlagsböden
- Parkett
- Gips, Wand, Decke
Haustechnik und Energie
- Heiztechnik
- Lüftung und Klimatechnik
- Sanitärtechnik
- Elektrotechnik
- Erneuerbare Energie
Whirlpools / Jacuzzi
Hausbau Magazin
- Baufinanzierung trotz Krise?
- Das Blockhaus
- Moderne Dämmstoffe im Vergleich
- Erker Vor- und Nachteile
- Glasflächen beim Hausbau
- Günstig ein Haus Bauen
- Mediterraner Hausbaustil
- Mehrgenerationenhaus
- Moderne Architektur
- Gartengestaltung leicht gemacht
- Traditioneller Ziegelbau
- Villa als höchster Traum
- Im Eigenheim Ruhestand geniessen
- Altbau sanieren
- Kauf einer Holzgarage
- Immobilienmakler
- Arbeitshandschuhe für den Winter
- Zuhause verschönern
- Outdoor-Plissees
- Schlafzimmer planen
- Terrassenüberdachung
- Wohngebäudeversicherung
- Zaunarten und Eigenschaften
- Hauseingang gestalten
- Der perfekte Grundriss
- Sparsamer heizen im Altbau
- Einfamilienhaus smart finanzieren
- Planung einer PV-Anlage
- Neues Haus
- Immobilienfinanzierung
- Installation einer Photovoltaikanlage
- Asbest erkennen und entfernen
- Gartenpflege im Frühling – worauf achten
- Sauna im Fokus - Wellness zuhause
- Erfolgreich vermieten
- Die perfekte Winterbekleidung
- Das Niedrigenergiehaus
- Der April und seine Stürme
- Architektonische Vielfalt
- Ökologisch und nachhaltig bauen
- Das perfekte Schlafzimmer
- Nachhaltige Energieversorgung
- Zukunftsorientiert bauen
- Nachhaltigkeit beim Hausbau
- Tiny Houses
- Wärmepumpen als nachhaltige Heizvariante
- Maßgeschneiderten Kleiderschrank
- Der richtige Baukredit
- Ratgeber für erfolgreichen Hausbau
- Haus als Altersvorsorge
Do-it-yourself Anleitungen
- Verlegeanleitung für Bodenbeläge und Parkett
- Bodenbeläge und Parkett reinigen und pflegen
- Malerarbeiten am Haus
- Garten Tipps
- Umzug und Reinigung

ᐅ Probleme bei der aufteilung Küche, Essen , Wohnen

Erstellt am: 26.01.15 20:42
D
DERSTEFAN
D
DERSTEFAN
26.01.15 20:42
Hallo,
mein erster Post
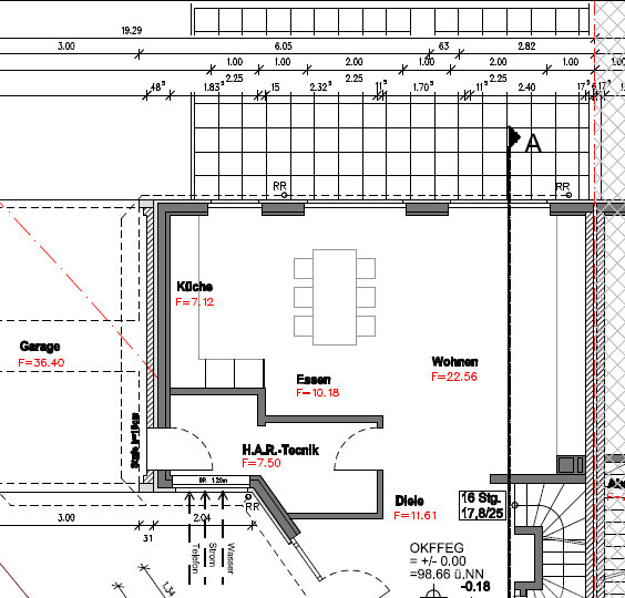
Wir haben bei unserem Haus nur diese möglichkeit unsere Küche , unseren Essbereich und unseren Wohnbereich unterzubringen . Hat jemand Ideen wie wir das aufteilen können ? Küche soll ganz neu geplant werden.

Freundliche Grüße Stefan





Grundrissplan eines Hauses mit Küche, Essbereich, Wohnzimmer und Garage
Y
ypg
26.01.15 21:28
Hallo Stefan, was wird denn im Hauswirtschaftsraum untergebracht? Baut ihr mit Keller, und wohin gehen die Fenster?
D
DERSTEFAN
26.01.15 21:41
Hi
wir bauen ohne Keller -- im H.A.R ( Hausanschlussraum) kommt Heizung und Warmwasserspeicher rein - im Vorraum ( kleiner Raum hinter Dieletür) sollen dann Vorräte und Küchenkram rein.
Die Fenster gehen nach draußen zur Terrasse
L
Legurit
26.01.15 21:49
Der Grundriss ist fix? Da kann dir jeder Briefträger ins Wohnzimmer schauen... und du vom Sofa in den HAR!? dazu noch ein merkwürdiges Treppenformat (das aber nebensächlich). Nee im ernst das geht so nicht - verkleinre den HAR, zieh die Wand vom Wohnzimmer durch, schau das der Eingang des HAR noch von der Diele aus Süden(?) (von unten) aus geschieht und mach die Tür so, dass man im "Essbereich" rauskommt - also in die Mitte. Wenn der HAR zu klein wird zieh ihn richtung Küche Größer.
D
DERSTEFAN
26.01.15 21:55
Hallo BeHaEIJa

Danke für deine Antwort -- kannst du in meiner Zeichnung deine angesprochenen Punkte einmal einzeichnen ?
Y
ypg
26.01.15 22:26
Fragen wir mal so: was gefällt dir denn an der vorgeschlagenen Planung nicht?
kücheessbereichkellerfensterwohnzimmer