ᐅ Grundrissplanung Einfamilienhaus ca. 170 m² auf schmalem 750m² Grundstück
Erstellt am: 16.03.21 11:35
R
ReneWieBebauungsplan/Einschränkungen
Größe des Grundstücks: 750 m², 18x42 m
Hang: nein, eben
Grundflächenzahl: 0,25
Geschossflächenzahl: 0,5
Baufenster, Baulinie und -grenze: 3m von allen Seiten
Randbebauung:
Anzahl Stellplatz: Minimum 2
Geschossigkeit: 2
Dachform: Sattel, Walm 25-45°
Stilrichtung: modern
Ausrichtung: keine Vorgabe
Maximale Höhen/Begrenzungen: 10m lt. Bebauungsplan
weitere Vorgaben
Anforderungen der Bauherren
Stilrichtung, Dachform, Gebäudetyp: massiv, modern, Sattel, Einfamilienhaus
Keller, Geschosse: kein Keller, 1,5
Anzahl der Personen, Alter: aktuell 2 (beide 32)
Raumbedarf im EG, OG: 90+80
Büro: Familiennutzung oder Homeoffice?: Homeoffice oben
Schlafgäste pro Jahr: selten
offene oder geschlossene Architektur: offen
konservativ oder moderne Bauweise: Mischung
offene Küche, Kochinsel: offene Küche, bisher keine Insel geplant
Anzahl Essplätze: min. 6 Plätze
Kamin: leichter Grundofen
Musik/Stereowand: nein
Balkon, Dachterrasse: nein
Garage, Carport: Ja geplant, hinten auf Grundstück
Nutzgarten, Treibhaus: Gerne Nutzgarten hinter Haus
weitere Wünsche/Besonderheiten/Tagesablauf, gern auch Begründungen, warum dieses oder das nicht sein soll:
- großer offener Wohn/Essbereich, Ausrichtung dieser Räume nach Süden.
- große Terrasse vor Haus zugänglich von Küche/ Essbereich
- Garage nicht vorm Haus, da damit Sonnenplatz verloren geht 🙂 --> dafür Einfahrt nördlich neben Haus
- möglichst wenig Dachneigung im OG
- Möglichkeit später Wohnzimmer zu verkleinern und Schlafzimmer einzurichten (geplante Tür vor G-WC)
- Fernsehplatz eher kleiner, da wir nicht die typischen Couchpotatoes sind :-D
- Büro mit Gaube
Hausentwurf
Von wem stammt die Planung:
-Do-it-Yourself: Vorlage von Plan eines Fertighausanbieters
Was gefällt besonders? Warum?: Haus 10m von Straße zurück gesetzt, großer Wohnbereich, da große Familie öfters zu Besuch
Was gefällt nicht? Warum?:
- evtl. Küche zu klein
- evtl. zu wenig Abstellraum
Preisschätzung lt Architekt/Planer: Termin steht an
Persönliches Preislimit fürs Haus, inkl Ausstattung: 350.000 (geplante Eigenleistung: Elektrik, Böden, Heizung, Wasser)
favorisierte Heiztechnik: Erdwärme, evtl. Solarthermie zur Unterstützung
Wenn Ihr verzichten müsst, auf welche Details/Ausbauten
-könnt Ihr verzichten:
- Zugang von Wohnzimmer nach Draußen
-könnt Ihr nicht verzichten:
- Terrassenzugang
Warum ist der Entwurf so geworden, wie er jetzt ist? ZB
- Es wurde alles im EG untergebracht und es besteht später die Möglichkeit durch eine Wand im heutigen WZ, ein weiteres Zimmer zu schaffen (Tür vor G-WC in WZ)
- große Terrasse vorm Haus ist wichtig und hat Platz
Was ist die wichtigste/grundlegende Frage zum Grundriss in 130 Zeichen zusammengefasst?
Bestehen Probleme bei der Größe des Hauswirtschaftsraum, wenn Waschmaschine, Trockner, Technik und Lagerfläche untergebracht werden sollen?
Ist G-WC mit Dusche ausreichend groß?
Erscheinen die Zimmergrößen sinnvoll?



Größe des Grundstücks: 750 m², 18x42 m
Hang: nein, eben
Grundflächenzahl: 0,25
Geschossflächenzahl: 0,5
Baufenster, Baulinie und -grenze: 3m von allen Seiten
Randbebauung:
Anzahl Stellplatz: Minimum 2
Geschossigkeit: 2
Dachform: Sattel, Walm 25-45°
Stilrichtung: modern
Ausrichtung: keine Vorgabe
Maximale Höhen/Begrenzungen: 10m lt. Bebauungsplan
weitere Vorgaben
Anforderungen der Bauherren
Stilrichtung, Dachform, Gebäudetyp: massiv, modern, Sattel, Einfamilienhaus
Keller, Geschosse: kein Keller, 1,5
Anzahl der Personen, Alter: aktuell 2 (beide 32)
Raumbedarf im EG, OG: 90+80
Büro: Familiennutzung oder Homeoffice?: Homeoffice oben
Schlafgäste pro Jahr: selten
offene oder geschlossene Architektur: offen
konservativ oder moderne Bauweise: Mischung
offene Küche, Kochinsel: offene Küche, bisher keine Insel geplant
Anzahl Essplätze: min. 6 Plätze
Kamin: leichter Grundofen
Musik/Stereowand: nein
Balkon, Dachterrasse: nein
Garage, Carport: Ja geplant, hinten auf Grundstück
Nutzgarten, Treibhaus: Gerne Nutzgarten hinter Haus
weitere Wünsche/Besonderheiten/Tagesablauf, gern auch Begründungen, warum dieses oder das nicht sein soll:
- großer offener Wohn/Essbereich, Ausrichtung dieser Räume nach Süden.
- große Terrasse vor Haus zugänglich von Küche/ Essbereich
- Garage nicht vorm Haus, da damit Sonnenplatz verloren geht 🙂 --> dafür Einfahrt nördlich neben Haus
- möglichst wenig Dachneigung im OG
- Möglichkeit später Wohnzimmer zu verkleinern und Schlafzimmer einzurichten (geplante Tür vor G-WC)
- Fernsehplatz eher kleiner, da wir nicht die typischen Couchpotatoes sind :-D
- Büro mit Gaube
Hausentwurf
Von wem stammt die Planung:
-Do-it-Yourself: Vorlage von Plan eines Fertighausanbieters
Was gefällt besonders? Warum?: Haus 10m von Straße zurück gesetzt, großer Wohnbereich, da große Familie öfters zu Besuch
Was gefällt nicht? Warum?:
- evtl. Küche zu klein
- evtl. zu wenig Abstellraum
Preisschätzung lt Architekt/Planer: Termin steht an
Persönliches Preislimit fürs Haus, inkl Ausstattung: 350.000 (geplante Eigenleistung: Elektrik, Böden, Heizung, Wasser)
favorisierte Heiztechnik: Erdwärme, evtl. Solarthermie zur Unterstützung
Wenn Ihr verzichten müsst, auf welche Details/Ausbauten
-könnt Ihr verzichten:
- Zugang von Wohnzimmer nach Draußen
-könnt Ihr nicht verzichten:
- Terrassenzugang
Warum ist der Entwurf so geworden, wie er jetzt ist? ZB
- Es wurde alles im EG untergebracht und es besteht später die Möglichkeit durch eine Wand im heutigen WZ, ein weiteres Zimmer zu schaffen (Tür vor G-WC in WZ)
- große Terrasse vorm Haus ist wichtig und hat Platz
Was ist die wichtigste/grundlegende Frage zum Grundriss in 130 Zeichen zusammengefasst?
Bestehen Probleme bei der Größe des Hauswirtschaftsraum, wenn Waschmaschine, Trockner, Technik und Lagerfläche untergebracht werden sollen?
Ist G-WC mit Dusche ausreichend groß?
Erscheinen die Zimmergrößen sinnvoll?
M
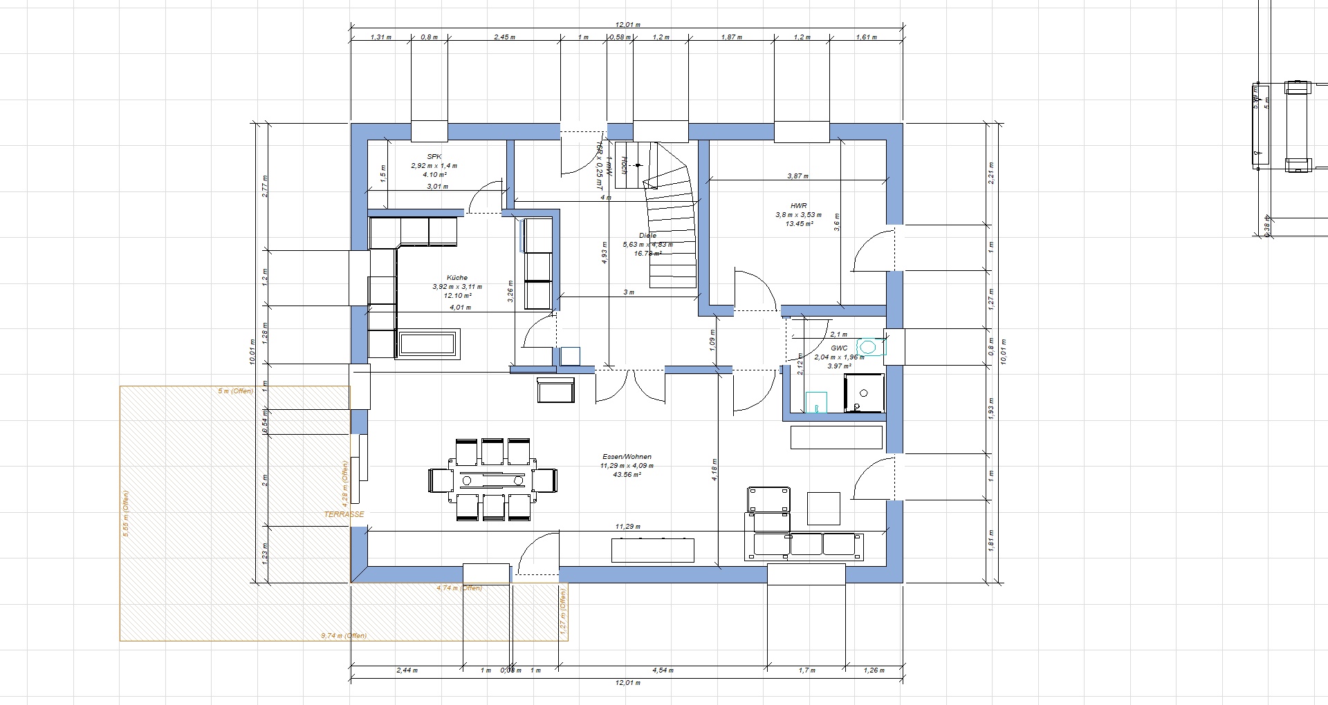
Myrna_Loy16.03.21 11:57Ich versteh immer nicht, wieso die Wohnzimmer so winzig und die Essbereiche so riesig geplant werden. Ein Tisch für acht Personen aber ein Sofa für maximal 3? Das passt für mich nicht zusammen.
Und vielleicht liegt es daran, dass ich lange mit Schwangerschaftsübelkeit zu tun hatte und mit den Kindern die Magen-Darm Viren öfter zu Besuch sind, als die Schwiegereltern - die Toilette wäre mir viel zu weit weg vom Bett. Da plane ich lieber Fluchtweg Style. 🙂
Und vielleicht liegt es daran, dass ich lange mit Schwangerschaftsübelkeit zu tun hatte und mit den Kindern die Magen-Darm Viren öfter zu Besuch sind, als die Schwiegereltern - die Toilette wäre mir viel zu weit weg vom Bett. Da plane ich lieber Fluchtweg Style. 🙂
M
Myrna_Loy16.03.21 12:109 qm fürs Wohnzimmer und fast 32 qm für den Essbereich,...? Gerade bei längeren Dinnerparties landen bei uns früher oder später alle auf den Sofas. Als Familie leben wir auch im Wohnzimmer und nicht am Esstisch.
M
Myrna_Loy16.03.21 12:13Im Lageplan fehlen Angaben zu Straßen und anderen Bebauungen. So kann ich mir leider nicht ausmalen, wie das Haus und die Garage erschlossen werden.
Myrna_Loy schrieb:
9 qm fürs Wohnzimmer und fast 32 qm für den Essbereich,...? Gerade bei längeren Dinnerparties landen bei uns früher oder später alle auf den Sofas. Als Familie leben wir auch im Wohnzimmer und nicht am Esstisch.Das ist richtig, das WZ ist im Vergleich wirklich klein. Ich denke durch die offene Bauweise ist man nicht an die gezeigte Möbelplatzierung gebunden. Das Sofa könnte auch noch weiter Richtung Esstisch wandern.
Myrna_Loy schrieb:
Ich versteh immer nicht, wieso die Wohnzimmer so winzig und die Essbereiche so riesig geplant werden. Ein Tisch für acht Personen aber ein Sofa für maximal 3? Das passt für mich nicht zusammen.
Und vielleicht liegt es daran, dass ich lange mit Schwangerschaftsübelkeit zu tun hatte und mit den Kindern die Magen-Darm Viren öfter zu Besuch sind, als die Schwiegereltern - die Toilette wäre mir viel zu weit weg vom Bett. Da plane ich lieber Fluchtweg Style. 🙂Sehr guter Hinweis zur Entfernung. Das müssen wir nochmal überdenken. Myrna_Loy schrieb:
Im Lageplan fehlen Angaben zu Straßen und anderen Bebauungen. So kann ich mir leider nicht ausmalen, wie das Haus und die Garage erschlossen werden.Wichtige Information vergessen, es handelt sich um ein Neubaugebiet. Es wird aktuell erschlossen. Ich habe entsprechend den Lageplan nach Entwurfsplan für die Erschließung ergänzt.Garage an die Strasse. Darf die Garage / Carport an die Nachbargrenze? Ist Abstand zur Strasse vorgeschrieben?
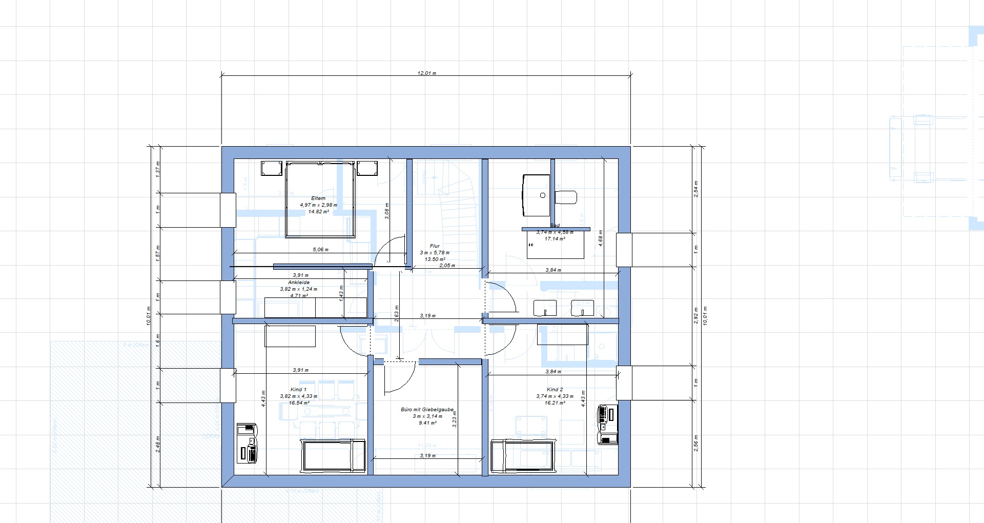
Die Idee die beiden Baeder uebereinander zu platzieren ist loeblich aber gestalterisch die Umsetzung unsinnig. Das geht besser zuminest vorteilhafter fuer das WZ.
Mit Deinen qm bist Du recht ueppig umgengen. Da reicht dann das Budget nicht.
Das geht kleiner und viel besser. Dann koennte es auch mit dem Budget passen. Sind 2 Kinder geplant?
Die Idee die beiden Baeder uebereinander zu platzieren ist loeblich aber gestalterisch die Umsetzung unsinnig. Das geht besser zuminest vorteilhafter fuer das WZ.
Mit Deinen qm bist Du recht ueppig umgengen. Da reicht dann das Budget nicht.
Das geht kleiner und viel besser. Dann koennte es auch mit dem Budget passen. Sind 2 Kinder geplant?
Ähnliche Themen