Grundriss für Einfamilienhaus mit 4-5 Kinderzimmern

4,90 Stern(e) 7 Votes
Zuletzt aktualisiert 20.11.2025
Sie befinden sich auf der Seite 7 der Diskussion zum Thema: Grundriss für Einfamilienhaus mit 4-5 Kinderzimmern
>> Zum 1. Beitrag <<

H

haydee

Stimmt Wünsche klingt besser.

Trotzdem gibt es Dinge die bei 6 Köpfen anders sind als bei 3 oder 4. Gerade wenn aus Kleinkindern gefräßige Teenager werden.
Gefühlt wandert mein ganzer Wocheneinkauf auf den Tisch
 
S

SoL

Stimmt Wünsche klingt besser.

Trotzdem gibt es Dinge die bei 6 Köpfen anders sind als bei 3 oder 4. Gerade wenn aus Kleinkindern gefräßige Teenager werden.
Gefühlt wandert mein ganzer Wocheneinkauf auf den Tisch
Kenn ich mit unseren 4 Kindern.
Und die Einkaufswagen und Kassenbänder sind auch nicht auf den 6 Personen Wocheneinkauf eingestellt...
 
S

Sparfuchs77

es müssen ja auch keine 220qm sein. Zum Budget: Wie viel Eigenleistung kann denn eingebracht werden? Das ist ein wichtiger Faktor.

@Jule0908 als Idee vielleicht in der Richtung:

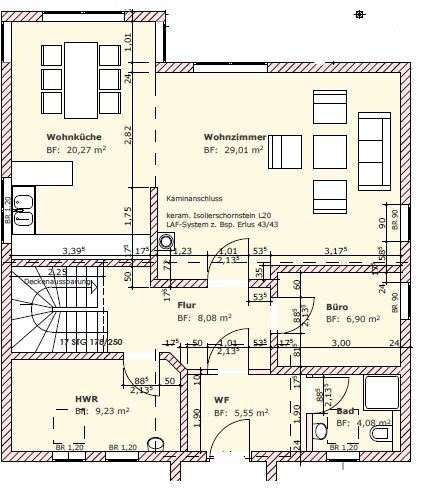
EG: offener Wohnbereich, Büro, Abstellfläche unter der Treppe und Windfang mit kleinem Duschbad.

Grundriss eines Hauses mit Wohnküche, Wohnzimmer, Flur, Büro, HWR und Bad


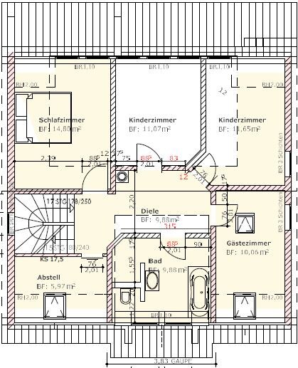
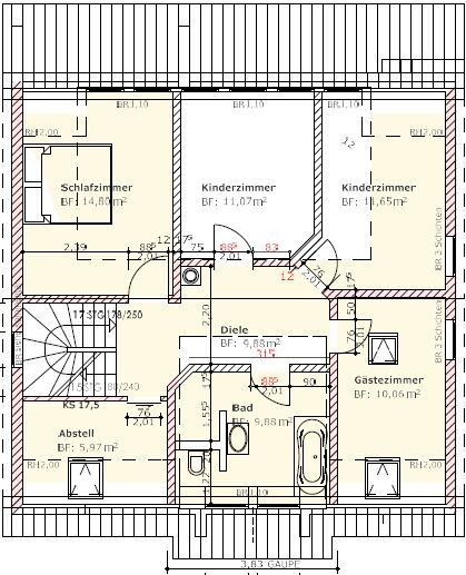
OG: 4 Schlafzimmer, Bad und Abstellraum

Grundriss des Obergeschosses: Schlafzimmer, zwei Kinderzimmer, Gästezimmer, Diele, Bad.

DG: Elternschlafzimmer
 
Zuletzt bearbeitet:
H

haydee

@SoL Ich habe leider nur ein Kind. Regelmäßig Explodiert bei uns alles und man merkt wie anders es mit 4-5 Kindern ist.
Der großzügige Eingang wird zum Nadelöhr, 1 WC pro Stock regelmäßig zu wenig.
Meine größten Töpfe reichen gerade, 2 Backöfen sonst wird das nichts mit Pommes und Fischstäbchen. Die Spülmaschine läuft nach jeden Essen. Äpfel gibt es nur noch ungeschält. Jetzt grinst du? Meine Freundin sagt oft nur Typisch Einling-Mama. Meine Mutter macht es einfach. Kommt die Horde (sind Nachbarn) geht es nicht zur Haustüre rein, sondern über die Terrasse ins Esszimmer. Die Kurzen auf die Ofenbank und es ist Platz. Danach muß halt der Putzlappen durch.
 
B

blubbernase

@Jule0908 wir planen grad ein Einfamilienhaus mit 3 Kinderzimmern und 2 Büros und drei bädern/WC. Auch wenn die Grundrisseminenzen hier unseren Grundriss sich nur noch zur Belustigung anschauen, kannst du dir den ja mal ansehen.
 
Zuletzt aktualisiert 20.11.2025
Im Forum Grundrissplanung / Grundstücksplanung gibt es 2535 Themen mit insgesamt 87977 Beiträgen


Ähnliche Themen zu Grundriss für Einfamilienhaus mit 4-5 Kinderzimmern
Nr.ErgebnisBeiträge
1Unser Grundriss von 120qm auf 469qm Grundstück - Seite 1073
2Grundriss zeichnen, mit welchem Programm? 11
3Suche Vorschläge für Grundriss Doppelhaushälfte - Seite 656
4Grundriss-Planung: Bungalow ~130m² - Seite 758
5Grundriss mit Garage auf Grundstück realisierbar? - Seite 329
6Grundriss Beurteilung 25
7Frage zu Grundriss, insbesondere Treppe 13
8Bungalow - 2 Etagen mit großem / 3 Etagen mit kleinem Grundriss? 11
9Unser anvisierter Grundriss - bitte um Einschätzungen - Seite 767
10Grundriss Einfamilienhaus, ~180m², Keller mit Satteldach - Seite 481
11Grundriss-Entwurf Stadtvilla mit Doppelgarage - Seite 438
12Grundriss klassisches Einfamilienhaus 5Z Südanfahrt - Seite 318
13Grundriss eines barrierefreien Bungalow - Seite 31229
14Grundriss Flachdachhaus am Hang - Seite 637
15Grundriss-Planung Einfamilienhaus mit rund 150 m² - Seite 32581
16Grundriss Bungalow ca. 140-150m² - Bitte um Feedback - Seite 214
17Projekt Eigenheim - Keller, Grundriss EG - Tipps - Seite 676
18Grundriss Herrenhaus mit Satteldach 170 m² Wohnfläche - Seite 245
19Grundriss Stadtvilla 160 qm, ohne Keller - Eure Meinungen dazu? - Seite 22167
20Grundriss 160qm Einfamilienhaus - Verbesserungsideen? - Seite 567

Oben