Hausbau - Ratgeber
Bauherrenhilfe
- Bauherrenhilfe vor Vertragsabschluss
-- Warum einen unabhängigen Baubetreuer?
-- Vertragsgrundlagen
-- Bausumme
-- Zahlungsplan zur Kostenkontrolle
-- Pflichten des Bauherren vor Vertragsabschluss
-- Unterlagen beim Hausbau vor Vertragsabschluss
- Bauherrenhilfe nach Vertragsabschluss
-- Bauantrag bei Behörden
-- Bau-Genehmigungsverfahren bei Baubehörden
-- Bauspezifische Versicherungen
-- Bauzeitenplan
-- Baubeginn - die Letzten Pflichten der Bauherrschaft
- Bauherrenhilfe während der Bauzeit
- Gewährleistungsansprüche
- Bauabnahme
Baufinanzierung
- Baufinanzierung - Allgemeine Fragen
- Kreditarten
- Kredit-Konditionen
- Bausparen
- Staatliche Förderungen
- Verkehrswert
- Haushaltsrechnung und Bonität
Hausbau Planung
- Haustypen
- Hausbau Vorbereitungsarbeiten
- Das Baugrundstück
- Baugrund beim Hausbau
- Baurecht
- Gebäudeschutz
- Erdarbeiten und Wasserhaltung
- Stützmauern
- Einfriedung
- Untergeschoss
- Kanalisation
- Tragende Elemente
- Nichttragende Innenwände
- Fundation / Fundament
- Deckenkonstruktionen
- Dächer
- Kaminanlagen
- Treppen Rampen Leitern
- Dachbeläge und Spengler
- Fenster
- Sonnen und Wetterschutz
- Aussenputze
- Einbauten, Küchen, Türen
- Bodenbeläge und Unterlagsböden
- Parkett
- Gips, Wand, Decke
Haustechnik und Energie
- Heiztechnik
- Lüftung und Klimatechnik
- Sanitärtechnik
- Elektrotechnik
- Erneuerbare Energie
Whirlpools / Jacuzzi
Hausbau Magazin
- Baufinanzierung trotz Krise?
- Das Blockhaus
- Moderne Dämmstoffe im Vergleich
- Erker Vor- und Nachteile
- Glasflächen beim Hausbau
- Günstig ein Haus Bauen
- Mediterraner Hausbaustil
- Mehrgenerationenhaus
- Moderne Architektur
- Gartengestaltung leicht gemacht
- Traditioneller Ziegelbau
- Villa als höchster Traum
- Im Eigenheim Ruhestand geniessen
- Altbau sanieren
- Kauf einer Holzgarage
- Immobilienmakler
- Arbeitshandschuhe für den Winter
- Zuhause verschönern
- Outdoor-Plissees
- Schlafzimmer planen
- Terrassenüberdachung
- Wohngebäudeversicherung
- Zaunarten und Eigenschaften
- Hauseingang gestalten
- Der perfekte Grundriss
- Sparsamer heizen im Altbau
- Einfamilienhaus smart finanzieren
- Planung einer PV-Anlage
- Neues Haus
- Immobilienfinanzierung
- Installation einer Photovoltaikanlage
- Asbest erkennen und entfernen
- Sauna im Fokus - Wellness zuhause
- Erfolgreich vermieten
- Die perfekte Winterbekleidung
- Das Niedrigenergiehaus
- Der April und seine Stürme
- Architektonische Vielfalt
- Ökologisch und nachhaltig bauen
- Das perfekte Schlafzimmer
- Nachhaltige Energieversorgung
- Zukunftsorientiert bauen
- Nachhaltigkeit beim Hausbau
- Tiny Houses
- Wärmepumpen als nachhaltige Heizvariante
- Maßgeschneiderten Kleiderschrank
- Der richtige Baukredit
- Ratgeber für erfolgreichen Hausbau
- Haus als Altersvorsorge
Do-it-yourself Anleitungen
- Verlegeanleitung für Bodenbeläge und Parkett
- Bodenbeläge und Parkett reinigen und pflegen
- Malerarbeiten am Haus
- Garten Tipps
- Umzug und Reinigung

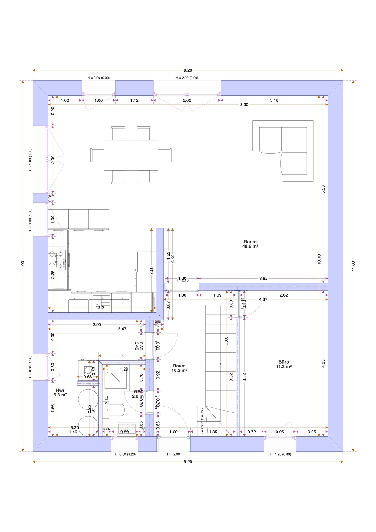
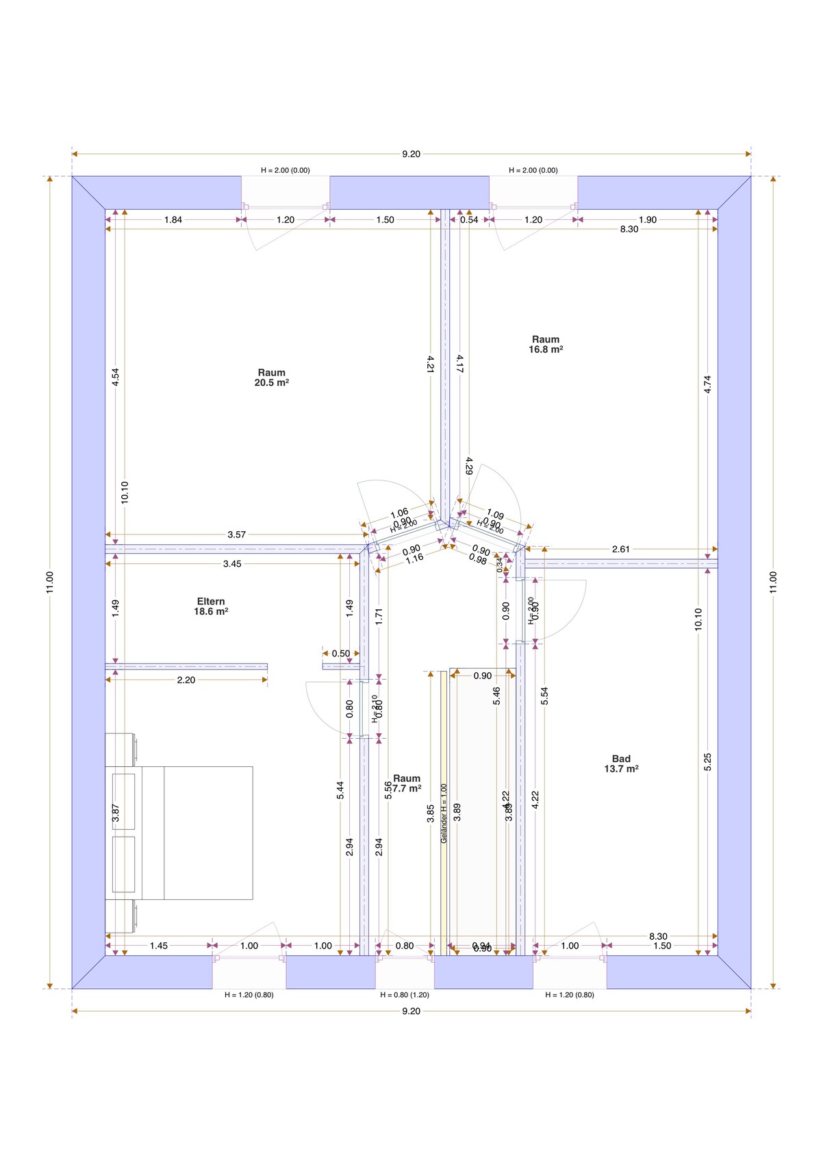
ᐅ Grundriss klassisches Einfamilienhaus 5Z Südanfahrt


Erstellt am: 04.04.17 01:01

B
boxandroof
04.04.17 01:01
Hallo,

wir planen einen Neubau und ich würde mich über Eure Meinung zu unserem Entwurf freuen. Was würdet Ihr wie ändern und warum?

Wir sehen unsere Vorstellungen ganz gut untergebracht und haben keine besseren Ideen mehr beim EG. Die Pläne sind von uns und werden für Gespräche mit Baufirmen genutzt.

Es fehlen noch viele Details wie Carport an Ostseite (Grenzabstand), Zugang Dachboden, Fenstergrößen, Innentüren, Badeinrichtung.. An den Raumgrößen im OG arbeiten wir auch noch, sehen aber dort keine Probleme.

Fragenkatalog:
- Grundstücks: 800m²
- Hang: nein
- Grundflächenzahl/Geschossflächenzahl: 0,3 / 0,5,
- Hauptgebäude Max 150m² Grundfläche
- Baufenster, Baulinie und -grenze: 20x13m, 5m Abstand
- Anzahl Stellplatz: 1-2 Überdacht
- Geschossigkeit: 2. Vollgeschoss ins Dach zu integrieren, „Dachraum wird [..] seitlich durch den Schnittpunkt des aufgehenden Mauerwerks mit der Außenhaut des Daches begrenzt, wobei der Schnittpunkt Max. 1,2m über OK Decke des Erdgeschosses.“
- Dachform: Satteldach bis 48°
- Maximale Höhen/Begrenzungen: Max 9m Höhe
- Sonstiges: Zufahrt über die Südseite

Technik:
Gas und Kontrollierte-Wohnraumlüftung, Fußbodenheizung, evtl. Solarthermie falls wir uns für KFW 55 entscheiden

Warum ist der Entwurf so geworden, wie er jetzt ist?
Wir haben viel an diversen Standardgrundrissen gearbeitet aber nichts passte wirklich, insb. da wir nicht von Norden ans Haus kommen: lange Flure, schlechte Ausrichtung zum Garten, Haustür im Carport/bei den Autos. Gestartet sind wir mit 4 kleinen Zimmern oben, Haustür an der Ostseite und ca. 8,2x11,8m Grundfläche.

Was uns gefällt:

Allgemein:
- Haustür sichtbar von der Straße, keine Konflikte mit Carport(s)
- Haus so weit weg wie möglich von den (ruhigen) Strassen
- Ausrichtung von Haus, Garten, Terrasse zur Sonne, keine Fenster im Norden
- Technik EG/Bad OG übereinander, weg von Wohnräumen und Richtung Strasse (Versorger)

EG:
- Großes Wohnzimmer mit offener Küche trotz extra Zimmer im EG
- Büro ohne Schrägen (Nutzung abends)
- Platz unter der offenen Treppe (Kinderwagen)
- Langer schmaler Vorratsraum (+Netzwerktechnik)

OG:
- Große Zimmer
- Waschmaschine/Trockner im Bad
- Schlafzimmer im Norden mit Sonne von Osten

Was noch besser sein könnte:
- Raum für Kontrollierte-Wohnraumlüftung und Heizung vermutlich zu klein
- Arbeitszimmer EG könnte etwas größer sein
- Küche könnte gerne noch weiter Richtung Ost/Treppe versetzt sein

Danke schon mal für Eure Anregungen.
Ich gehe jetzt erst mal in Deckung

boxandroof

CGI-Einfamilienhaus auf grünem Grundstück mit Terrasse, rote Maßangaben und umliegenden Straßen.


Grundriss eines Wohnzimmer/Küche-Bereichs mit Vorrat, Büro und Eingangsbereich, Maße sichtbar.


Grundriss: Räume Kind, Büro/Kind und Bad; Raum 3,9 m²; Türen/Maße.
K
KingSong
04.04.17 07:56
Die Technik wirst Du wohl denke ich nicht auf die 2,8m² unterbringen, es bleibt ja nicht nur bei Gas und Kontrollierte-Wohnraumlüftung....
T
toxicmolotof
04.04.17 08:03
Dann man bei der Insel auf der Rückseite auf Holz schaut ist ja üblich, aber willst du auf der anderen Seite (dem Flur zugewandt) auf die Küchenflanke schauen? Zieh da noch 65cm Wand vor. Entweder halbhoch oder sogar Deckenhoch. Das macht dich flexibler mit hohen Schränken, wo auch immer die hin sollen.

Gibt es noch mehr Räume für Technik außer die 2,8qm? Das haut nicht hin. Nie im Leben. Oder die Handwerker werden dich verfluchen. Oder beides.

Der Weg Vorrat/Küche ist zu lang. Oder Vorrat schlecht beschriftet. So als Staubsaugerlager/Hauswirtschaftsraum/Archiv.

Um mit den Kniestock vorzustellen fällt mir gerade die Fantasie. Leider stehen auch keine Möbel in der Ankleide, aber egal wie, es wird so wenig rein passen, dass in den eingezeichneten Schrank im Schlafzimmer fast mehr rein passt. Bitte mal geplante Möbel in der Ankleide einzeichnen. Ergebnis.... Einreihig 60cm geht, und das wars.
C
Curly
04.04.17 08:05
ich finde eure Zimmertüren zu schmal und die Fenster zu klein. Im Flur sehe ich keinen richtigen Garderobenplatz. Wo sollen denn Waschmaschine und Trockner hin, der Elektrozähler, wo das Ausgussbecken im Technikraum? Für die Gasheizung braucht ihr doch auch einen großen Wasserspeicher, der nimmt viel Platz weg. Glaube nicht, dass ihr das auf knapp 3qm unterbringt. In eurer Ankleide passen nur auf eine Seite Schränke. Euer Flur im Obergeschoss wird bestimmt ziemlich dunkel werden.

LG
Sabine
R
RobsonMKK
04.04.17 08:59
Warum das Büro größer? 10 qm reichen eigentlich locker aus.
Das Bad unten verstehe ich nicht, kein Waschbecken aber 2 Duschen (so sieht es aus). und der Durchgang nach Planlinks wird nicht funktionieren.
Wie erwähnt, fast alle Türen zu klein. Alles unter 90 cm sollte eine Notlösung sein.
Der Vorrat wird nicht funktionieren weil viel zu eng, Kühlgeräte haben ca. 60 cm Tiefe bleiben unter 60 cm zum durchgehen.
Der Flur im OG wird einfach nur stockdunkel.
Und die 1,2 m Räume, die haben am Ende gerade noch 1,15 m, wenn gefliest sogar noch weniger.

Da wird vieles nicht funktionieren.
B
boxandroof
04.04.17 11:17
Danke für die Rückmeldungen. Ja im Detail funktioniert einiges noch nicht.

Passt die grundsätzliche Richtung als Arbeitsgrundlage?
Was würdet Ihr evtl. anders machen bzgl. Lage/Ausrichtung auf dem Grundstück und Aufteilung der Räume, Treppenhaus/Flur/Haustür?
toxicmolotow schrieb:
[..]willst du auf der anderen Seite (dem Flur zugewandt) auf die Küchenflanke schauen? Zieh da noch 65cm Wand vor. Entweder halbhoch oder sogar Deckenhoch. Das macht dich flexibler mit hohen Schränken, wo auch immer die hin sollen.

Wir hatten an einen Tresen gedacht, Arbeitsplatte dann überstehend oder eine zweite versetzt aufgesetzte, überstehende Arbeitsplatte. Das mit der halbhohen Wand ist eine gute Idee!
Curly schrieb:
ich finde eure Zimmertüren zu schmal und die Fenster zu klein.

Welche Fenster, alle? Bei den Türen werde ich versuchen, auf min. 90cm zu kommen.
Curly schrieb:

Im Flur sehe ich keinen richtigen Garderobenplatz. Wo sollen denn Waschmaschine und Trockner hin,

Garderobe/Kleiderhaken sollte unter und neben die Treppe. Das haben wir noch nicht genauer durchgespielt.

Trockner/Waschmaschine möchten wir im OG im Bad haben.
Sie würden auch in den Vorratsraum passen - haben wir gemessen und auch live so gesehen (Ikea) mit 115cm Tiefe. So sind wir auf die ca. 120cm für den Vorratsraum gekommen, weil uns das von der Größe gefiel.
Curly schrieb:
der Elektrozähler, wo das Ausgussbecken im Technikraum? Für die Gasheizung braucht ihr doch auch einen großen Wasserspeicher, der nimmt viel Platz weg.

Ein Ausgussbecken..?!

Ja, der Technikraum muss größer. Was wäre denn eine ausreichende Größe?

Zur Gasheizung wurden mir Kühlschrankgroße Geräte gezeigt inkl. Wasserspeicher. Ansonsten soll noch die Kontrollierte-Wohnraumlüftung in diesen Raum, sowie vermutlich Strom- und Wasserzähler. Etwas Technik (Netzwerk, Telefon,..) soll noch in den Vorratsraum.
Curly schrieb:

In eurer Ankleide passen nur auf eine Seite Schränke.

Danke - wir messen das diese Woche genauer mit Möbeln aus, da haben wir ja Spielraum.
Curly schrieb:
Euer Flur im Obergeschoss wird bestimmt ziemlich dunkel werden.

Wir dachten an Milchglas in der Tür zum Bad und evtl. noch ein Fenster neben der Haustür oder im Treppenhaus. Und an Kunstlicht
RobsonMKK schrieb:
Das Bad unten verstehe ich nicht, kein Waschbecken aber 2 Duschen (so sieht es aus).

Eckwaschbecken. Wobei wir da offen sind und die Bäder im Detail nicht selber vorplanen wollen.
RobsonMKK schrieb:
Warum das Büro größer? 10 qm reichen eigentlich locker aus.

Hätten gerne noch ein Sofa in dem Raum + viele Regale.
technikraumhaustürflurtreppenhauswohnraumlüftungfenstervorratsraumschlafzimmergasheizungcarport