Projekt Eigenheim - Keller, Grundriss EG - Tipps

4,00 Stern(e) 6 Votes
Zuletzt aktualisiert 20.11.2025
Sie befinden sich auf der Seite 6 der Diskussion zum Thema: Projekt Eigenheim - Keller, Grundriss EG - Tipps
>> Zum 1. Beitrag <<

R

red-ed

vielen Dank. Habt ihr vielleicht Höhenaufnahmen von eurem Grundstück?
Der Lageplan könnte auch helfen.
Wir sind uns bewusst, dass die Kosten schwer abzuschätzen sind, jedoch wollen wir versuchen etwas mehr einzuplanen und damit auf der sicheren Seite sein.

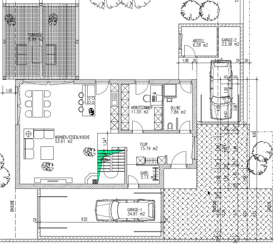
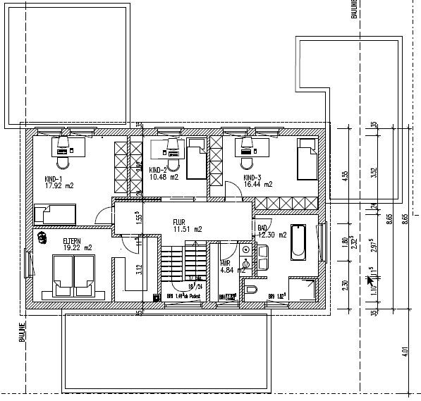
Leider kämpfen wir sehr mit dem Grundriss des Gebäudes. Das Obergeschoss ist fast schon Nebensache. Aktueller Grundriss

Grundriss eines Hauses: Garage, Parkplatz, Wohn- und Essbereich, Küche, Büro, Toilette, Lager, Garten.


Das Blaue soll eine Sauna werden.

Was haltet ihr davon?
 
R

red-ed

Hallo Zusammen,

bei uns hat es nun etwas gedauert, sind nun aber soweit dass die Pläne stehen und der Bauantrag steht kurz bevor.

Nun sind wir bei neuen Fragen:
Wir wollen eine Fußbodenheizung und eine Kontrollierte Wohnraumlüftung mit Wärmerückgewinnung einsetzten.
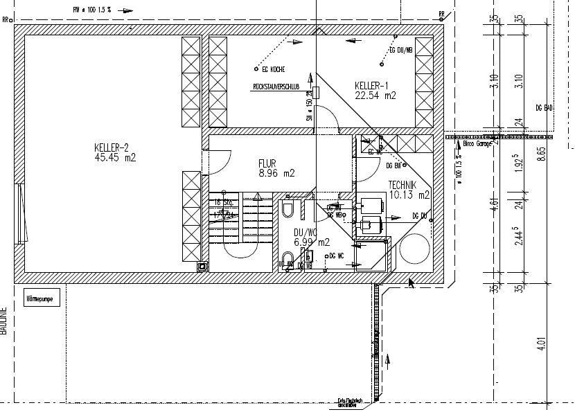
Im Keller soll es nur Heizkörper geben.

Auf dem Dach wird eine 10 kWp Photovoltaikanlage stehen.
Als Heizung soll eine Luft-Luft-Wärmepumpe zum Einsatz kommen.

Eine Schätzung der Heizlast ergibt etwa 8500 W.
Schätzung für das Warmwasser beträgt etwa 1300 kWh/Jahr

Nun ist die Fragen:
Wie habt ihr eure Heizung realisiert?
Welches Modell habt ihr gewählt?
Würdet ihr auf ein Kombigerät gehen oder lieber alle getrennt?
Sind die geschätzten Werte realistisch?

Wenn ihr wollt kann ich auch die finalen Pläne zeige.

Grüße
Red-Ed
 
Nordlys

Nordlys

Wirklich Luft Luft? Es saugt und föhnt der Heinzelmann, wo Mutti sonst nur saugen kann....Oder Luft Wasser?
Wie macht ihr warmes Wasser für Bad und für die FHZ?
 
Zuletzt aktualisiert 20.11.2025
Im Forum Grundrissplanung / Grundstücksplanung gibt es 2535 Themen mit insgesamt 87978 Beiträgen


Ähnliche Themen zu Projekt Eigenheim - Keller, Grundriss EG - Tipps
Nr.ErgebnisBeiträge
1Welchen Bad Grundriss? - Seite 322
2Kosten Fußbodenheizung völlig überzogen? - Seite 744
3Grundriss 150 m²-Hauses optimieren - Tipps - Seite 642
4Anschlüsse der Fußbodenheizung im falschen Raum 13
5Grundriss Einfamilienhaus OWL ca. 150qm mit Ostgarten - Seite 11175
6Unser Grundriss-Entwurf für ein günstiges Haus - Seite 21348
7Massivholzparkett auf Fußbodenheizung - Seite 9101
8Kernsanierung einer Doppelhaushälfte BJ '79- realistische Schätzung? 14
9Grundriss-Entwurf: Einfamilienhaus mit Keller; 560qm Grundstück - Seite 765
10Dachgeschoss Grundriss im Bestand 61
11Grundriss-Bewertung? / Grundriss-Optimierung? - Seite 465
12Grundriss-Planung Altbau aus den 30ern - Seite 663
13Anregungen zum Grundriss Einfamilienhaus ca. 175 qm, Satteldachhaus - Seite 13167
14Fußbodenheizung und KWL, Austausch gewöhnliche Heizkörper 23
15Fußbodenheizung und Teppichboden 12
16Klimadecke vs. Fußbodenheizung 13
17Heizung Einfamilienhaus, Fußbodenheizung Umbau, Dichte, Gastherme defekt 19
18Pumpengeräusche bei Fußbodenheizung, Pumpe in Wohnraum, Lärmbelästigung 13
19Mehrkosten durch Fußbodenheizung 11
20Zusatzheizung im Bad bei Fußbodenheizung empfehlenswert? 71

Oben