Grundriss Einfamilienhaus, ~180m², Keller mit Satteldach

4,30 Stern(e) 3 Votes
Zuletzt aktualisiert 23.12.2025
Sie befinden sich auf der Seite 4 der Diskussion zum Thema: Grundriss Einfamilienhaus, ~180m², Keller mit Satteldach
>> Zum 1. Beitrag <<

M

Mike12345678901

@BeHaElJa:
Ok, danke für den Hinweis. spreche ich heute noch mal an. Dürfte jetzt noch kein Problem sein, Länge & Breite können wir noch problemlos ändern.
 
kbt09

kbt09

Deine ganzen geplanten oder mal angedachten Stufen passen aber nicht zum Grundriss.

Ich denke, bevor die Küche geplant wird, sollte erst mal das Haus so geplant werden, wie erlaubt.

Und, deine Aussagen zur Dachauflage verstehe ich nicht, wenn das OG ein Vollgeschoss werden soll.

Ich habe das mal im Hausplanungsprogramm etwas nachgebildet.

Du darfst ja auch nur Max. 75 cm abtragen bzw. vorhandenes Gelände erhöhen.

Weißes 3D-Hausmodell auf grünem Grundstück vor blauem Himmel


Dreidimensionales einfaches weißes Quaderhaus-Modell auf gruenem Gras neben einer Straße.


Grundstueck-Grundriss: Gebäudekontur auf Parzelle mit Grenzlinien und Nordpfeil


Grundrissplan: zwei nebeneinander liegende rechteckige Räume im Bauplan mit Trennwand
 
M

Mike12345678901

Was bedeuten eigentlich die "Bleistiftzahlen" im Höhenplan?
Hier die Antwort vom Aufmesser:
...das sind lediglich die Hilfsmaße welche ich beim Vermessen gebraucht habe.
Von Bedeutung sind nur die blauen Zahlen (Höhenangaben in Meter über Normal-Null (Meeresspiegel)).
Die roten Zahlen sind die Abstände zwischen den einzelnen Messpunkten.
 
M

Mike12345678901

Deine ganzen geplanten oder mal angedachten Stufen passen aber nicht zum Grundriss.
Nun ja, wie gesagt. Ich hab da aktuell keine gute Lösung. Deshalb frage ich nach Input und Ideen.

Ich denke, bevor die Küche geplant wird, sollte erst mal das Haus so geplant werden, wie erlaubt.
Und, deine Aussagen zur Dachauflage verstehe ich nicht, wenn das OG ein Vollgeschoss werden soll.
Naja, wir müssen ja irgendwie weiterkommen. Küchenplaner ist glaub ich schon mal nicht schlecht und nicht zu früh.
Ansonsten:
Ich bin da kein Experte aber zwei Vollgeschosse dürfen gebaut werden. Frage ist ob wir auch müssen.
Wir möchten gerne eine ueberdachten Freisitz und da wäre es halt unguenstig wenn das Dach 5 m drüber schweben würde.
Von daher wäre meine Vorgehensweise die, dass ich das Dach soweit runterziehe wie es Sinn macht und erlaubt ist.
Der Punkt ist noch im argen, aber klaert sich dann hoffentlich heute.

Ich habe das mal im Hausplanungsprogramm etwas nachgebildet.
Du darfst ja auch nur Max. 75 cm abtragen bzw. vorhandenes Gelände erhöhen.
Jo...das ist ein Problem, ich weiss.....

Vielen Dank für deine Muehen!!
Ich guck mir das gleich genauer an.
 
M

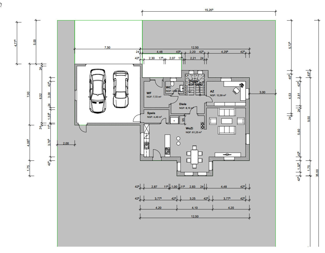
Mike12345678901

Hier der Grundriss noch eingepasst ins Grundstück (nur Entwurf, nicht Final).
Geht Richtung Süden noch ein Stück weiter, hats leider abgeschnitten.

Grundriss eines Einfamilienhauses mit Doppelgarage, Küche, Esszimmer und Wohnzimmer.
 
kbt09

kbt09

Wie kommst du auf die 2m Abstand planlinks? Ist da nicht Vorgabe 0 oder 3 m?

Und planrechts 3 m Abstand von der Wand gemessen, aber, bei dem Dachüberstand könnte das auch mehr werden. 5m von der Straße entfernt ist das Gelände bereits rund 100 cm höher als an der Straße und steigt noch an. Das wird schwer mit einer Einfahrt, denn der Gartenaustritt soll ja ebenerdig sein - oder? Und da ist das Gelände dann sogar ca. 180 bis 200 cm höher als vorne an der Straße.

Wie ist denn die planerische Konstellation generell angedacht? Einen Architekten würde ich hier für SEHR sinnvoll erachten. Architekt, nicht Planer irgendeines Bauunternehmens.
 
Zuletzt aktualisiert 23.12.2025
Im Forum Grundrissplanung / Grundstücksplanung gibt es 2554 Themen mit insgesamt 88560 Beiträgen


Ähnliche Themen zu Grundriss Einfamilienhaus, ~180m², Keller mit Satteldach
Nr.ErgebnisBeiträge
1Meinungen zum Grundriss Bungalow 42
2Grundriss-Entwurf Stadtvilla mit Doppelgarage - Seite 538
3Eure Meinung zu unserem Grundriss für ein Einfamilienhaus ohne Keller - Seite 322
4Selbsterstellter Grundriss - Meinungen und Feedback erwünscht 46
5Grundriss Ideensammlung - Ideen und Anregungen erwünscht - Seite 216
6Grundriss 160qm Einfamilienhaus - Verbesserungsideen? - Seite 367
7Erster Grundriss-Versuch für Kettenhaus auf kleinem Grundstück - Seite 494
8Mein Grundriss für 4 Familienhaus, die Meinungen bitte 72
9Bitte Meinungen zum Altbau-Grundriss 19
10Grundriss Bungalow 150qm geschlossene Küche, überdachte Terrasse - Seite 440
11Einfamilienhaus 130-140 m² Grundriss Planung - Seite 5173
12Unser Grundriss-Entwurf für ein günstiges Haus - Seite 50348
13Grundriss Bungalow auf schon genutztem Grundstück - Seite 11108
14Grundriss Neubau Bungalow 100 qm - Seite 346
15Grundriss-Umbau Teil einer Scheune zu Einfamilienhaus mit Option zu Zweifamilienhaus - Seite 333
16Bungalow Grundriss 3 Personen, 130qm, bitte Meinungen… - Seite 12167
17Grundriss-Planung Neubau Einfamilienhaus 2-Geschosser ca. 135qm - Seite 642
183. Grundriss-Entwurf Neubau Einfamilienhaus 220qm 2 Vollgeschosse Dachterrasse - Seite 1061
19Grundriss ca. 170 m² Einfamilienhaus, ohne Keller mit Carport - Seite 589
20Umbau mit Architekt: Anregungen zum Haus-Grundriss gewünscht - Seite 421

Oben