ᐅ Grundriss Einfamilienhaus ca. 190m² und Platzierung auf Grundstück
Erstellt am: 26.06.22 16:43
B
BimBamBabaB
BimBamBaba26.06.22 16:43Hallo zusammen,
bisher war ich nur anonymer Mitleser. Unser Projekt wird jetzt doch realer und ich würde mich freuen eure Ideen und Anregungen mit in der Planungsphase aufzunehmen.
Meine Großeltern sind leider inzwischen beide verstorben und das Haus steht leer. DIrekt angrenzend ist mein Elternhaus. In Summe hat das Grundstück 722m, und gehört je zu 1/3 meinem Vater und meinen beiden Tanten.
Wir können nun den Tanten ihr drittel abkaufen und von meinem Vater ein Stück Grundstück, sodass wir auf gute 500m² kommen.
Mein Vater übernimmt einen Teil seines Erbes und begradigt seine Grenzen. Ich habe mal ein Bild von Tim-Online angehangen um zu verdeutlichen wie es aussieht.
Nr. 21a ist mein ELternhaus, Nr. 21 wird abgerissen. Nummer 69 ist ein kleiner Privatweg, gehört 50% meinem Vater und 50% einem Nachbarn. Wir sprechen grade mit ihm bezüglich einer eventuellen Baulast.
Im weiteren versuche ich alle Fragen zu beantworten und führe dann unten fort 🙂

Bebauungsplan/Einschränkungen
Größe des Grundstücks: 470-500m²
Hang: leichtes Gefälle. VErmessung steht noch aus. auf der Länger der 24m, geht es nicht ganz 1m runter. Also Privatweg fällt zur Straße ab.
Grundflächenzahl: nicht bekannt §34
Geschossflächenzahl: nicht bekannt §34
Baufenster, Baulinie und -grenze: nicht bekannt §34, wir müssen zur Straße im Süd/Osten ca. 6m Abstand halten
Randbebauung: nicht bekannt §34
Anzahl Stellplatz: wir benötigen 2 Plätze
Geschossigkeit: 1,5, wobei ich schon gerlent habe, dass es 1 geschossig heißt
Dachform: Satteldach
Stilrichtung: ganz klassisch, Satteldach, Klinker
Ausrichtung: für Photovoltaik optimiert
Anforderungen der Bauherren
Stilrichtung, Dachform, Gebäudetyp: Klassisches Einfamilienhaus, Satteldach und geklinkert. Tendenz geht zu Massiv, aber auch Holzrahmen nicht abgeneigt.
Keller, Geschosse: kein Keller, 1,5 Geschosse
Anzahl der Personen, Alter: 2 Erw. 36 & 33, Mädchen 5 Jahre, Junge 2 Jahre, und ein weiteres Kind in Planung.
Raumbedarf im EG:
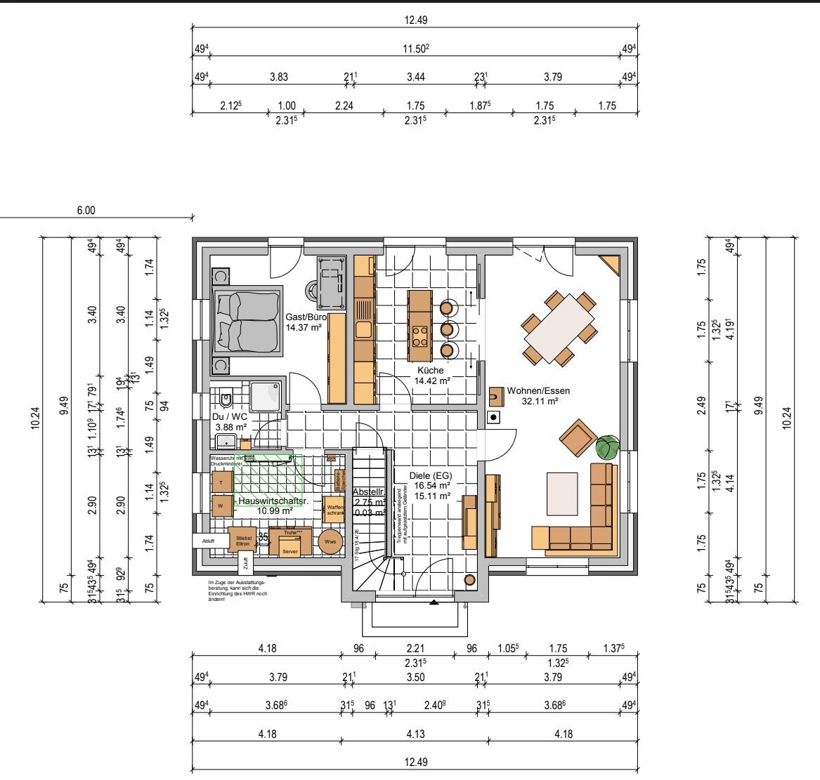
Hauswirtschaftsraum, groß genug für Haustechnik und Waffenschrank und große Kühltruhe, wir sind beides Jäger
Gäste-WC mit Dusche
Büro/Gästezimmer, soll im Zweifelsfall als Schlafzimmer fungieren, wenn wir mal nicht mehr die Treppe hoch kommen.
Küche, mit Zugang zum Garten und Schiebetür zum Esszimmer
Wohn und Esszimmer
Raumbedarf im OG:
3 Kinderzimmer
Elternzimmer
Bad mit Dusche
Bad mit Dusche und Wanne
Stauraum im Spitzboden. WIr haben aktuell einen Keller und ich muss irgendwo das ganze Zeug lagern 🙂
Büro: Familiennutzung oder Homeoffice: wir sind beide vornehmlich im HomeOffice
Schlafgäste pro Jahr: weniger als 10
offene oder geschlossene Architektur: geschlossen
konservativ oder moderne Bauweise: konservativ
offene Küche, Kochinsel: klassische L oder U, keine Insel
Anzahl Essplätze: wir essen am Tisch im Esszimmer
Kamin: gerne
Musik/Stereowand: nein
Balkon, Dachterrasse: nein
Garage, Carport: könnte in Frage kommen. Lediglich als Abstellfläche für Fahrräder und co.
Nutzgarten, Treibhaus: nein
weitere Wünsche/Besonderheiten/Tagesablauf, gern auch Begründungen, warum dieses oder das nicht sein soll: wir wollen zum Grundstück meiner Eltern "offen" bleiben. Dort kommt der Schuppen für Rasenmäher und co.
Hausentwurf
Von wem stammt die Planung:
-Do-it-Yourself, gezeichnet von einen Hausverkäufer


Preisschätzung lt Architekt/Planer: Haus liegt bei 460.000€
Persönliches Preislimit fürs Haus, inkl Ausstattung: Für das Haus inklusive Nebenkosten, Küche, Garten und Photovoltaik haben wir ein Budget von 600.000€
favorisierte Heiztechnik: Luft-Wasser-Wärmepumpe
Wir stehen auch noch vor der Frage ob Fertighausanbieter, GU oder Architekt und dann alles selbst vergeben. Mein Vater wohn nebenan und hat den ganzen Tag nix zu tun, er kann super den Bau leiten. Etwas Ahnung vom Bau hat er auch. Hat unser Haus auch in Eigenregier hochgezogen und einen Anbau nachgelegt.
Auf der anderen Seite, habe ich in der heutigen Zeit etwas Sorge vor Lieferproblemem, Handwerkermangel und unsicheren Preisen. Man bekommt da ja aktuell nur die negativen Seiten aufgezeigt...
Warum ist der Entwurf so geworden, wie er jetzt ist? ZB
Meine Frau möchte nicht af die beiden Bäder im OG verzichten und das Büro im EG soll für später unser Schlafzimmer werden. Daher sind die gesetzt.
ICh für meinen Teil brauche einen großen Hauswirtschaftsraum 🙂
Was ist die wichtigste/grundlegende Frage zum Grundriss in 130 Zeichen zusammengefasst?
Die aktuell wichtigste Frage in meinen Augen, wie würdet ihr das Haus auf dem Grundstück platzieren? Zur Straße unten sind 6m gesetzt, laut Bauamt können wir 5m versuchen, aber das Risiko auf Zeitverliust würde ich nicht in Kauf nehmen.
Zum Privatweg könnten wir, wenn der Nachbar mitspielt eine Baulast bekommen und etwas näher ran. Meine Idee ist, soweit wie möglich an Weg und Straße ran um dann im Süd-Westen den großen Garten zu haben.
Sorry, für den Roman. In meinem Kopf schwirren viele Ideen und Wünsche. Ich brauche da mal etwas Hilfe das alles zu ordnen und einen graden Weg einzuschlagen 🙂
ICh freue mich auf Tipps und Hinweise.
Gruß
Christoph
bisher war ich nur anonymer Mitleser. Unser Projekt wird jetzt doch realer und ich würde mich freuen eure Ideen und Anregungen mit in der Planungsphase aufzunehmen.
Meine Großeltern sind leider inzwischen beide verstorben und das Haus steht leer. DIrekt angrenzend ist mein Elternhaus. In Summe hat das Grundstück 722m, und gehört je zu 1/3 meinem Vater und meinen beiden Tanten.
Wir können nun den Tanten ihr drittel abkaufen und von meinem Vater ein Stück Grundstück, sodass wir auf gute 500m² kommen.
Mein Vater übernimmt einen Teil seines Erbes und begradigt seine Grenzen. Ich habe mal ein Bild von Tim-Online angehangen um zu verdeutlichen wie es aussieht.
Nr. 21a ist mein ELternhaus, Nr. 21 wird abgerissen. Nummer 69 ist ein kleiner Privatweg, gehört 50% meinem Vater und 50% einem Nachbarn. Wir sprechen grade mit ihm bezüglich einer eventuellen Baulast.
Im weiteren versuche ich alle Fragen zu beantworten und führe dann unten fort 🙂
Bebauungsplan/Einschränkungen
Größe des Grundstücks: 470-500m²
Hang: leichtes Gefälle. VErmessung steht noch aus. auf der Länger der 24m, geht es nicht ganz 1m runter. Also Privatweg fällt zur Straße ab.
Grundflächenzahl: nicht bekannt §34
Geschossflächenzahl: nicht bekannt §34
Baufenster, Baulinie und -grenze: nicht bekannt §34, wir müssen zur Straße im Süd/Osten ca. 6m Abstand halten
Randbebauung: nicht bekannt §34
Anzahl Stellplatz: wir benötigen 2 Plätze
Geschossigkeit: 1,5, wobei ich schon gerlent habe, dass es 1 geschossig heißt
Dachform: Satteldach
Stilrichtung: ganz klassisch, Satteldach, Klinker
Ausrichtung: für Photovoltaik optimiert
Anforderungen der Bauherren
Stilrichtung, Dachform, Gebäudetyp: Klassisches Einfamilienhaus, Satteldach und geklinkert. Tendenz geht zu Massiv, aber auch Holzrahmen nicht abgeneigt.
Keller, Geschosse: kein Keller, 1,5 Geschosse
Anzahl der Personen, Alter: 2 Erw. 36 & 33, Mädchen 5 Jahre, Junge 2 Jahre, und ein weiteres Kind in Planung.
Raumbedarf im EG:
Hauswirtschaftsraum, groß genug für Haustechnik und Waffenschrank und große Kühltruhe, wir sind beides Jäger
Gäste-WC mit Dusche
Büro/Gästezimmer, soll im Zweifelsfall als Schlafzimmer fungieren, wenn wir mal nicht mehr die Treppe hoch kommen.
Küche, mit Zugang zum Garten und Schiebetür zum Esszimmer
Wohn und Esszimmer
Raumbedarf im OG:
3 Kinderzimmer
Elternzimmer
Bad mit Dusche
Bad mit Dusche und Wanne
Stauraum im Spitzboden. WIr haben aktuell einen Keller und ich muss irgendwo das ganze Zeug lagern 🙂
Büro: Familiennutzung oder Homeoffice: wir sind beide vornehmlich im HomeOffice
Schlafgäste pro Jahr: weniger als 10
offene oder geschlossene Architektur: geschlossen
konservativ oder moderne Bauweise: konservativ
offene Küche, Kochinsel: klassische L oder U, keine Insel
Anzahl Essplätze: wir essen am Tisch im Esszimmer
Kamin: gerne
Musik/Stereowand: nein
Balkon, Dachterrasse: nein
Garage, Carport: könnte in Frage kommen. Lediglich als Abstellfläche für Fahrräder und co.
Nutzgarten, Treibhaus: nein
weitere Wünsche/Besonderheiten/Tagesablauf, gern auch Begründungen, warum dieses oder das nicht sein soll: wir wollen zum Grundstück meiner Eltern "offen" bleiben. Dort kommt der Schuppen für Rasenmäher und co.
Hausentwurf
Von wem stammt die Planung:
-Do-it-Yourself, gezeichnet von einen Hausverkäufer
Preisschätzung lt Architekt/Planer: Haus liegt bei 460.000€
Persönliches Preislimit fürs Haus, inkl Ausstattung: Für das Haus inklusive Nebenkosten, Küche, Garten und Photovoltaik haben wir ein Budget von 600.000€
favorisierte Heiztechnik: Luft-Wasser-Wärmepumpe
Wir stehen auch noch vor der Frage ob Fertighausanbieter, GU oder Architekt und dann alles selbst vergeben. Mein Vater wohn nebenan und hat den ganzen Tag nix zu tun, er kann super den Bau leiten. Etwas Ahnung vom Bau hat er auch. Hat unser Haus auch in Eigenregier hochgezogen und einen Anbau nachgelegt.
Auf der anderen Seite, habe ich in der heutigen Zeit etwas Sorge vor Lieferproblemem, Handwerkermangel und unsicheren Preisen. Man bekommt da ja aktuell nur die negativen Seiten aufgezeigt...
Warum ist der Entwurf so geworden, wie er jetzt ist? ZB
Meine Frau möchte nicht af die beiden Bäder im OG verzichten und das Büro im EG soll für später unser Schlafzimmer werden. Daher sind die gesetzt.
ICh für meinen Teil brauche einen großen Hauswirtschaftsraum 🙂
Was ist die wichtigste/grundlegende Frage zum Grundriss in 130 Zeichen zusammengefasst?
Die aktuell wichtigste Frage in meinen Augen, wie würdet ihr das Haus auf dem Grundstück platzieren? Zur Straße unten sind 6m gesetzt, laut Bauamt können wir 5m versuchen, aber das Risiko auf Zeitverliust würde ich nicht in Kauf nehmen.
Zum Privatweg könnten wir, wenn der Nachbar mitspielt eine Baulast bekommen und etwas näher ran. Meine Idee ist, soweit wie möglich an Weg und Straße ran um dann im Süd-Westen den großen Garten zu haben.
Sorry, für den Roman. In meinem Kopf schwirren viele Ideen und Wünsche. Ich brauche da mal etwas Hilfe das alles zu ordnen und einen graden Weg einzuschlagen 🙂
ICh freue mich auf Tipps und Hinweise.
Gruß
Christoph
Das Haus ist auf den ersten Blick ok, der Hauswirtschaftsraum zu klein. Der Weg zum Gäste-WC im EG wär mir zu weit. Das mit dem Zimmer für in 30 - 40 Jahren halte ich für unsinnig, da kann man dann auch nen Anbau dransetzen, anstatt 30 Jahre im Voraus dafür zu zahlen, zu heizen, etc.
Das Budget erscheint mir zu knapp für inkl. Baunebenkosten, Garten, Photovoltaik, ...
Oder habt ihr vor, Eigenleistung einzubringen?
Das Budget erscheint mir zu knapp für inkl. Baunebenkosten, Garten, Photovoltaik, ...
Oder habt ihr vor, Eigenleistung einzubringen?
B
BimBamBaba26.06.22 18:12SoL schrieb:
Das Haus ist auf den ersten Blick ok, der Hauswirtschaftsraum zu klein. Der Weg zum Gäste-WC im EG wär mir zu weit. Das mit dem Zimmer für in 30 - 40 Jahren halte ich für unsinnig, da kann man dann auch nen Anbau dransetzen, anstatt 30 Jahre im Voraus dafür zu zahlen, zu heizen, etc.
Das Budget erscheint mir zu knapp für inkl. Baunebenkosten, Garten, Photovoltaik, ...
Oder habt ihr vor, Eigenleistung einzubringen?Die Sorge habe ich beim Hauswirtschaftsraum auch. Aber wie vergrößern?
Das Gästezimmer ist erstmal mein Office/Jagdzimmer. Habe jch nicht ganz richtig ausgedrückt. Hier brauche ich den Platz für das ganze Gelumpe rund um die Jagd. Auch im Büro brauche ich etwas mehr Platz und halte die ein oder andere Besprechung zu Hause im Büro.
Den Garten und die Außenanlagen machen wir komplett in Eigenregie.Ich habe vom Schwiegervater das Angebot, dass er die Photovoltaik übernimmt. Quasi als Mitgift
K
K a t j a26.06.22 19:32Wurde denn schon geklärt, ob eine Teilung in dieser Form hinsichtlich Grundflächenzahl für beide resultierenden Grundstücke überhaupt möglich ist und wie groß die Grundflächenzahl dann wäre?
BimBamBaba schrieb:
In Summe hat das Grundstück 722m,Welches genau? Eures hätte die 471qm? Vielleicht solltest Du erklären, was es mit den Nebengebäuden zw den Häusern auf sich hat?BimBamBaba schrieb:
wie würdet ihr das Haus auf dem Grundstück platzieren?Wie sollte denn Euer Entwurf dort hin? Für mich passt es irgendwie nicht!Oder stellst Du es mal gerichtet in die Planung ein?! Das wäre sinnvoll.
Wegen 34 er solltest Du auch mal mehr von der Umgebung zeigen: ein G.-Maps-Bild wird eher verstanden.
Ich würde „Gelumpe“-Sachen eher in einen Anbau packen als in das teure energetisch geheizte Einfamilienhaus!
Zum Entwurf: Schrägstellung Tisch zeigt auf, dass eine Geradestellung mit Bestuhlung mit der Sitzecke knapp sein könnte. Kann man aber so natürlich machen.
An den WW-Speicher muss natürlich auch mal ein Techniker mit seiner Wasserrohrzange (oder womit er rangeht) ran.
Abstellfläche habt ihr keine, das Mal festgestellt. Außer unter der Treppe. Für Koffer und Deko muss der Dachboden herhalten.
Küche: einfach mal eine normal gängige Insel, 90 spritzt nichts dahinter, einzeichnen. Dann fallen die Sitzplatzhalter aber schon weg, oder?
An den WW-Speicher muss natürlich auch mal ein Techniker mit seiner Wasserrohrzange (oder womit er rangeht) ran.
Abstellfläche habt ihr keine, das Mal festgestellt. Außer unter der Treppe. Für Koffer und Deko muss der Dachboden herhalten.
Küche: einfach mal eine normal gängige Insel, 90 spritzt nichts dahinter, einzeichnen. Dann fallen die Sitzplatzhalter aber schon weg, oder?
Ähnliche Themen