ᐅ Einfamilienhaus 172qm mit Garage und Sauna
Erstellt am: 05.11.19 22:08
Hallo liebes Hausbau-Forum!
Ich habe inzwischen schon fleißig gelesen und bin dennoch zu keiner passenden Lösung/Optimierung für unser Einfamilienhaus gekommen, vielleicht könnt ihr mir ja noch weiterhelfen?!
Erst einmal zu unserem Einfamilienhaus:
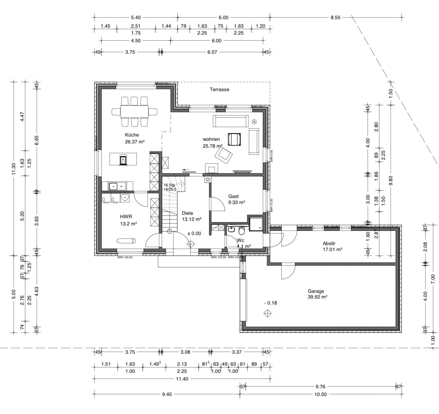
Bebauungsplan/Einschränkungen
Größe des Grundstücks - 890qm
Hang - nein
Grundflächenzahl - ?
Geschossflächenzahl - 0,4
Baufenster, Baulinie und -grenze - Baulinie beträgt 6m
Randbebauung ?
Anzahl Stellplatz - Garage für 1 PKW
Geschossigkeit - 1
Dachform - egal
Stilrichtung - Bungalow-Gebiet, altes Haus steht noch, wird vollständig abgerissen.
Ausrichtung - ?
Maximale Höhen/Begrenzungen:
- Firsthöhe Max. 9m (von Oberkante Sockel gemessen)
- Traufenhöhe der eingeschossigen Hauptbaukörper darf 2,75 - 3,00 m nicht überschreiten (gemessen von Oberkante Sockel bis Unterkante Dachrinne)
- Dachausbauten bis Max. 2/5 der Traufenlänge möglich.
weitere Vorgaben - ist ursprünglich ein ausgewiesenes Bungalow-Gebiet
Anforderungen der Bauherren
Stilrichtung, Dachform, Gebäudetyp - Einfamilienhaus modern, Satteldach, Massivhaus
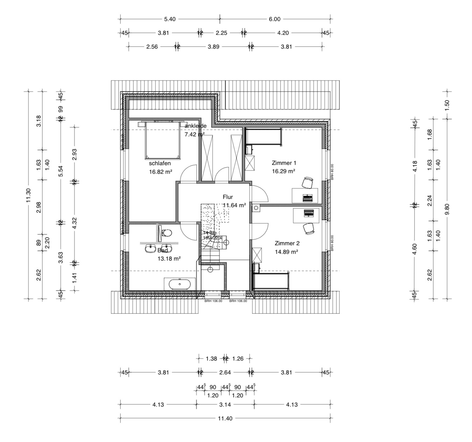
Keller, Geschosse - kein Keller, Erdgeschoss, Obergeschoss, ausgebauter Dachboden
Anzahl der Personen, Alter: 3-4 / 30, 31, 1
Raumbedarf im EG, OG: 80-90 qm
Büro: Familiennutzung oder Homeoffice? kein Büro aber Gästezimmer mit schreibtisch drin.
Schlafgäste pro Jahr: 20-30
offene oder geschlossene Architektur: ?
konservativ oder moderne Bauweise: eher modern
offene Küche, Kochinsel: beides
Anzahl Essplätze: 6-8
Kamin: ja.
Musik/Stereowand: ja, in kleiner Ausführung.
Balkon, Dachterrasse: nein.
Garage, Carport: Garage mit Sauna und kleinem Aufenthaltsbereich, Bereich fürs Handwerken
Nutzgarten, Treibhaus: nein
weitere Wünsche/Besonderheiten/Tagesablauf, gern auch Begründungen, warum dieses oder das nicht sein soll: Hauswirtschaftsraum befindet sich absichtlich im Osten, da uns Licht im Gästezimmer und Gästebad wichtiger war. Sauna befindet sich absichtlich in der 2,20 hohen Garage, weil uns ein sofortiger Ausgang in den Garten wichtig ist.
Hausentwurf
Von wem stammt die Planung: selbst gezeichnet, Architekt digitalisiert. ABER: bisher stehen nur die Maße, Innenwämde, Fenster und Möbel sind teilweise noch nicht am richtigen Platz!
-Planer eines Bauunternehmens: nein.
-Architekt: ja.
-Do-it-Yourself: alles.
Was gefällt besonders? Warum? Wir finden, wir haben einen roten Faden für den alltäglichen Workflow, sind aber trotzdem offen für Verbesserungen und Tipps beim Platzsparen
Was gefällt nicht? Warum? Lösung in der Garage mit der Sauna, OG: Ez. mit Ankleide, die sollte mind. 2x 3 Meter schrankwand schlucken können.
Preisschätzung lt Architekt/Planer: 320.000
Persönliches Preislimit fürs Haus, inkl Ausstattung: 300.000
favorisierte Heiztechnik: Wärmepumpe mit Photovoltaik
Wenn Ihr verzichten müsst, auf welche Details/Ausbauten
-könnt Ihr verzichten: wir sind offen für Vorschläge
-könnt Ihr nicht verzichten: Gästezimmer, Sauna, Größe des Hauswirtschaftsraum
Warum ist der Entwurf so geworden, wie er jetzt ist? ZB
Standardentwurf vom Planer? Angelehnt an Viebrockhaus Maxime 800
Entsprechende/Welche Wünsche wurden vom Architekten umgesetzt? - bisher alles 1:1 wie wir es gezeichnet haben....
Ein Gemisch aus vielen Beispielen aus div. Magazinen...nein.
Was macht ihn in Euren Augen besonders gut oder schlecht? Guter Alltags-Workflow, kurze Wege, alle Räume die wir uns wünschen untergebracht.
Was ist die wichtigste/grundlegende Frage zum Grundriss in 130 Zeichen zusammengefasst?
Kann man im Haus noch Räume optimieren, zB im OG?
Wie bekomme ich eine Sauna mit kleinem Aufenthaltsbereich in die Garage, ohne dass alles eng und gedrungen wirkt?



Ich habe inzwischen schon fleißig gelesen und bin dennoch zu keiner passenden Lösung/Optimierung für unser Einfamilienhaus gekommen, vielleicht könnt ihr mir ja noch weiterhelfen?!
Erst einmal zu unserem Einfamilienhaus:
Bebauungsplan/Einschränkungen
Größe des Grundstücks - 890qm
Hang - nein
Grundflächenzahl - ?
Geschossflächenzahl - 0,4
Baufenster, Baulinie und -grenze - Baulinie beträgt 6m
Randbebauung ?
Anzahl Stellplatz - Garage für 1 PKW
Geschossigkeit - 1
Dachform - egal
Stilrichtung - Bungalow-Gebiet, altes Haus steht noch, wird vollständig abgerissen.
Ausrichtung - ?
Maximale Höhen/Begrenzungen:
- Firsthöhe Max. 9m (von Oberkante Sockel gemessen)
- Traufenhöhe der eingeschossigen Hauptbaukörper darf 2,75 - 3,00 m nicht überschreiten (gemessen von Oberkante Sockel bis Unterkante Dachrinne)
- Dachausbauten bis Max. 2/5 der Traufenlänge möglich.
weitere Vorgaben - ist ursprünglich ein ausgewiesenes Bungalow-Gebiet
Anforderungen der Bauherren
Stilrichtung, Dachform, Gebäudetyp - Einfamilienhaus modern, Satteldach, Massivhaus
Keller, Geschosse - kein Keller, Erdgeschoss, Obergeschoss, ausgebauter Dachboden
Anzahl der Personen, Alter: 3-4 / 30, 31, 1
Raumbedarf im EG, OG: 80-90 qm
Büro: Familiennutzung oder Homeoffice? kein Büro aber Gästezimmer mit schreibtisch drin.
Schlafgäste pro Jahr: 20-30
offene oder geschlossene Architektur: ?
konservativ oder moderne Bauweise: eher modern
offene Küche, Kochinsel: beides
Anzahl Essplätze: 6-8
Kamin: ja.
Musik/Stereowand: ja, in kleiner Ausführung.
Balkon, Dachterrasse: nein.
Garage, Carport: Garage mit Sauna und kleinem Aufenthaltsbereich, Bereich fürs Handwerken
Nutzgarten, Treibhaus: nein
weitere Wünsche/Besonderheiten/Tagesablauf, gern auch Begründungen, warum dieses oder das nicht sein soll: Hauswirtschaftsraum befindet sich absichtlich im Osten, da uns Licht im Gästezimmer und Gästebad wichtiger war. Sauna befindet sich absichtlich in der 2,20 hohen Garage, weil uns ein sofortiger Ausgang in den Garten wichtig ist.
Hausentwurf
Von wem stammt die Planung: selbst gezeichnet, Architekt digitalisiert. ABER: bisher stehen nur die Maße, Innenwämde, Fenster und Möbel sind teilweise noch nicht am richtigen Platz!
-Planer eines Bauunternehmens: nein.
-Architekt: ja.
-Do-it-Yourself: alles.
Was gefällt besonders? Warum? Wir finden, wir haben einen roten Faden für den alltäglichen Workflow, sind aber trotzdem offen für Verbesserungen und Tipps beim Platzsparen
Was gefällt nicht? Warum? Lösung in der Garage mit der Sauna, OG: Ez. mit Ankleide, die sollte mind. 2x 3 Meter schrankwand schlucken können.
Preisschätzung lt Architekt/Planer: 320.000
Persönliches Preislimit fürs Haus, inkl Ausstattung: 300.000
favorisierte Heiztechnik: Wärmepumpe mit Photovoltaik
Wenn Ihr verzichten müsst, auf welche Details/Ausbauten
-könnt Ihr verzichten: wir sind offen für Vorschläge
-könnt Ihr nicht verzichten: Gästezimmer, Sauna, Größe des Hauswirtschaftsraum
Warum ist der Entwurf so geworden, wie er jetzt ist? ZB
Standardentwurf vom Planer? Angelehnt an Viebrockhaus Maxime 800
Entsprechende/Welche Wünsche wurden vom Architekten umgesetzt? - bisher alles 1:1 wie wir es gezeichnet haben....
Ein Gemisch aus vielen Beispielen aus div. Magazinen...nein.
Was macht ihn in Euren Augen besonders gut oder schlecht? Guter Alltags-Workflow, kurze Wege, alle Räume die wir uns wünschen untergebracht.
Was ist die wichtigste/grundlegende Frage zum Grundriss in 130 Zeichen zusammengefasst?
Kann man im Haus noch Räume optimieren, zB im OG?
Wie bekomme ich eine Sauna mit kleinem Aufenthaltsbereich in die Garage, ohne dass alles eng und gedrungen wirkt?
wrobel schrieb:
Das WC als Durchgang zur Garage deute ich sicherlich nur falschNein, das deutest du genau richtig!
Muc1985 schrieb:
Sorry entweder ich habe etwas übersehen. Auch wenn es hier im Forum schon sehr oft diskutiert wurde, das mit dem Budget kann absolut nicht klappen.... Wie meinst du das? Deutlich zu niedrig angesetzt? Wir wollen noch einiges an Eigenleistung einbringen...Ähnliche Themen