Danke @11ant für die Eröffnung und versuche mich in Kurzfassung.
Nachdem wir von der Gemeinde unser favorisiertes Grundstück zugeteilt bekommen haben ging es auf Ideenfindung im Internet und Musterpark. Parallel haben wir auf Papier und am PC am eigenen Grundriss probiert.
Grundstück
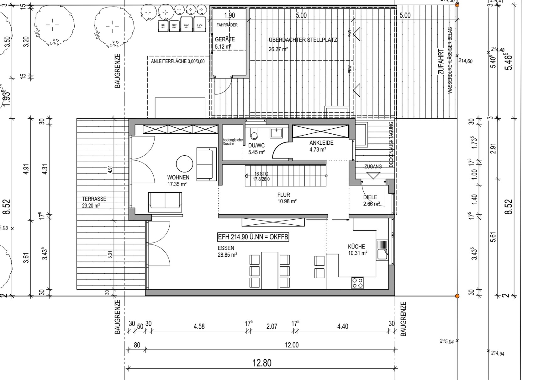
ca. 23x14m, Kettenhaus (im Süden eine dunkle Wand und im Norden verbinden wir uns zum Nachbarhaus mit einem Carport), Gebäudehöhe 7,5-8,5m, Satteldach 30-35°.
Wünsche/Anforderungen
Keller, Dusche im EG, gerade Treppe ist toll, ein Kamin als Raumteiler ebenso, drei Kinderzimmer (ohne Vorgabe von Geschossen), normales Schlafzimmer, ein großer Kleiderschrank (3-4m) muss nicht zwingend in einem extra Zimmer stehen.
Ein Wunsch war essenziell: Nachdem wir mit Kindern in einer Maisonette-Wohnung wohnen in der alle Zimmer aus dem Allraum (Wohnen/Essen/Kochen) betreten werden war klar, dass 1. ein Ruhebereich nötig ist und 2. Kochen möglichst abgetrennt sein soll.
Entstanden ist der einzige "gelungene" und trotzdem individuelle Grundriss. Eine Wohnküche sollte die Familie zusammen bringen und im Wohnen/Essen die Ruheecke inkl. Besuch. Dieser hing mir lange im Kopf, da alle anderen Grundrisse sich am "Standard" L-Grundriss ausgerichtet haben uns aber nicht wirklich gereizt haben.
Im Forum habe ich mich zu dem Zeitpunkt bereits angemeldet, wollte mich aber noch nicht in die Grundrissdiskussion stürzen. Im Nachhinein finde ich einige Fehler darin.
Nach eine Phase von ca. 9 Monaten haben wir versucht ein GU zu finden der uns die Idee in ein Grundriss inkl. KG und OG gießt sowie die Chemie stimmt. Einige Gespräche mit waren gut andere haben wir gleich abgehackt. Jedoch hatte keiner unsere Idee gut gefunden sondern nur Typenhäuser zur Veränderung vorgeschlagen.
Also doch ab zum ortsansässigen Architekten. Was ich beherzigt habe ist der Tipp aus dem Forum, jegliche Zeichnungen daheim zu lassen. Und was soll ich sagen. Erster Entwurf musste noch nach bearbeitet werden, da wir das Budget mit Absicht etwas zu niedrig gesetzt haben.
Der nun endgültige Grundriss ist nicht jedermanns Sache und natürlich an der ein oder anderen Stelle ein Kompromiss aus Wunsch und Grundstück.
Was hat sich gewandelt in der ca. 15-monatigen Findungsphase gewandelt bzw. wurden überworfen?
- Der lange Raum für Kochen/Essen schafft uns einerseits viel Besuch unterzubringen aber auch das Wohnzimmer ruhiger zu bekommen.
- Ein Esstisch weit weg von der Küche können wir uns nicht vorstellen.
- Über eine per Schiebetüre abgetrennte Küche würden wir uns nun schon etwas ärgern.- Ein Schlafzimmer/Kinderzimmer im Keller ist ein schlechter Kompromiss.
- Ein Zimmer gut geplantes Zimmer im Dachboden kostet auch einiges an Geld.
- Aus Versehen wären wir fast bei einer Stadtvilla ähnlichen Form gelandet und nun froh das es beim "fast" geblieben ist.
- Die Gerade Treppe ist aus Versehen von Architekten eingebracht worden und wir sind sehr froh.
- Der Teilkeller erspart nicht nur Aushub. In unserem Fall auch Ärger mit der Nachbars Garage in der Bauzeit.
In Summe alles Punkte die ich nicht erst im zweiten Hausbau unterbringen wollen würde.




Nachdem wir von der Gemeinde unser favorisiertes Grundstück zugeteilt bekommen haben ging es auf Ideenfindung im Internet und Musterpark. Parallel haben wir auf Papier und am PC am eigenen Grundriss probiert.
Grundstück
ca. 23x14m, Kettenhaus (im Süden eine dunkle Wand und im Norden verbinden wir uns zum Nachbarhaus mit einem Carport), Gebäudehöhe 7,5-8,5m, Satteldach 30-35°.
Wünsche/Anforderungen
Keller, Dusche im EG, gerade Treppe ist toll, ein Kamin als Raumteiler ebenso, drei Kinderzimmer (ohne Vorgabe von Geschossen), normales Schlafzimmer, ein großer Kleiderschrank (3-4m) muss nicht zwingend in einem extra Zimmer stehen.
Ein Wunsch war essenziell: Nachdem wir mit Kindern in einer Maisonette-Wohnung wohnen in der alle Zimmer aus dem Allraum (Wohnen/Essen/Kochen) betreten werden war klar, dass 1. ein Ruhebereich nötig ist und 2. Kochen möglichst abgetrennt sein soll.
Entstanden ist der einzige "gelungene" und trotzdem individuelle Grundriss. Eine Wohnküche sollte die Familie zusammen bringen und im Wohnen/Essen die Ruheecke inkl. Besuch. Dieser hing mir lange im Kopf, da alle anderen Grundrisse sich am "Standard" L-Grundriss ausgerichtet haben uns aber nicht wirklich gereizt haben.
Im Forum habe ich mich zu dem Zeitpunkt bereits angemeldet, wollte mich aber noch nicht in die Grundrissdiskussion stürzen. Im Nachhinein finde ich einige Fehler darin.
Nach eine Phase von ca. 9 Monaten haben wir versucht ein GU zu finden der uns die Idee in ein Grundriss inkl. KG und OG gießt sowie die Chemie stimmt. Einige Gespräche mit waren gut andere haben wir gleich abgehackt. Jedoch hatte keiner unsere Idee gut gefunden sondern nur Typenhäuser zur Veränderung vorgeschlagen.
Also doch ab zum ortsansässigen Architekten. Was ich beherzigt habe ist der Tipp aus dem Forum, jegliche Zeichnungen daheim zu lassen. Und was soll ich sagen. Erster Entwurf musste noch nach bearbeitet werden, da wir das Budget mit Absicht etwas zu niedrig gesetzt haben.
Der nun endgültige Grundriss ist nicht jedermanns Sache und natürlich an der ein oder anderen Stelle ein Kompromiss aus Wunsch und Grundstück.
Was hat sich gewandelt in der ca. 15-monatigen Findungsphase gewandelt bzw. wurden überworfen?
- Der lange Raum für Kochen/Essen schafft uns einerseits viel Besuch unterzubringen aber auch das Wohnzimmer ruhiger zu bekommen.
- Ein Esstisch weit weg von der Küche können wir uns nicht vorstellen.
- Über eine per Schiebetüre abgetrennte Küche würden wir uns nun schon etwas ärgern.- Ein Schlafzimmer/Kinderzimmer im Keller ist ein schlechter Kompromiss.
- Ein Zimmer gut geplantes Zimmer im Dachboden kostet auch einiges an Geld.
- Aus Versehen wären wir fast bei einer Stadtvilla ähnlichen Form gelandet und nun froh das es beim "fast" geblieben ist.
- Die Gerade Treppe ist aus Versehen von Architekten eingebracht worden und wir sind sehr froh.
- Der Teilkeller erspart nicht nur Aushub. In unserem Fall auch Ärger mit der Nachbars Garage in der Bauzeit.
In Summe alles Punkte die ich nicht erst im zweiten Hausbau unterbringen wollen würde.
matte1987 schrieb:
Dann mach ich mal den Anfang... und mir eine große Freude matte1987 schrieb:
Wir hätten eine ~25m Lange zufahrt mit 10-15% Steigung gehabt, nur damit wir mit dem Auto bei der Küche aussteigen können.Das versuche ich ja immer begreiflich zu machen: daß man das Potential seines Grundstückes erheblich besser entwickeln kann, wenn man nicht ausgerechnet den blechernen Familienmitgliedern das Pastorenstück gibt. Ihr habt ein schönes individuelles Haus dafür bekommen, den Durchschnittsentwurf zu begraben. Allein den Fernseher-Aufhängeort finde ich immer noch g**ler als bei vielen Anderen das ganze Haus. Und das wohlgemerkt, wo mich Fernsehen überhaupt nicht interessiert Slava_S schrieb:
ein Kamin als Raumteiler ebenso,... der dem Slalom durch den Grundriss den Rest gegeben hätte. Auch Dir danke für den Mitimpuls zu diesem Thread. Der Eingang erinnert mich nun an den bei @MadameP.tumaa schrieb:
Ich würde mich aber in die Lage des Anderen versetzen und denken, wie fühlt man sich bei nach einem misslungenen Entwurf ?!Es soll ja weder jemand einen Anderen derblecken, noch jemand von sich selbst die Botschaft rüberbringen, was bin ich für ein Depp mit zwei linken Händen. Sondern das Gefühl soll sein: "nun habe ich den Ausrutscher rechtzeitig bemerkt, und kann andere mit daraus lernen lassen, wenn ich die Erkenntnis teile".Wer den Erkenntniszeitpunkt verpaßt und seine "Grütze" tatsächlich gebaut hat, der darf ja gerne ein Philosoph bleiben und schweigen
https://www.instagram.com/11antgmxde/
https://www.linkedin.com/company/bauen-jetzt/
Dann reihe ich mich mal hier auch ein.
Nachdem wir im November 2016 ein Grundstück reserviert haben (da war mir die Hangsituation mit den 3m noch nicht so ganz klar ), habe ich mich auf die Suche nach einem GU gemacht. 2 Wochen später gab es einen Hausbesuch eines Vertrieblers. Er hat sich alles angehört und unsere Ideen mitgenommen. 2 Wochen später gab's dann einen Grundriss. Wir als Baulaien damals waren natürlich begeistert. Aber nach dem 2. und 3. mal hinschauen kamen uns Zweifel.
- Keine Berücksichtigung des Geländes. Aufschüttung/Geländemodellierung sollte dann auf nachfrage nur 5-7k€ kosten. Wir wissen ja was draus geworden ist
- Küchenfenster unterm Carport mit Blick auf die Garage.
- Wohnzimmer zu klein
- Wenig Fenster
- Der Preis ohne Keller war auch dürftig
- Damals auch noch keine Ahnung von Fassaden und Materialien gehabt. Wäre dann WDVS geworden.
GU:


Danach haben wir uns gedacht, versuchen wir es mit einem Architekten unser Vermieter hat uns dann einen Kumpel empfohlen.
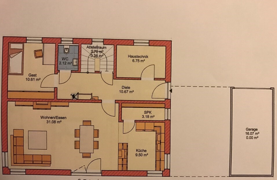
Dann ist daraus dass geworden im ersten Entwurf:

Wie es weiter ging ist ja bekannt.
Rausgeflogen ist am Ende aus dem ersten Entwurf das Arbeitszimmer und ist nun eine kleine Garderobe. Dadurch ist nun das Wohnzimmer 55m². Oben gibt es keinen Winkel beim Kinderzimmereingang und die Treppe wurde ein wenig nach Planrechts verschoben.
Jetzt sieht es von außen so aus:

Nachdem wir im November 2016 ein Grundstück reserviert haben (da war mir die Hangsituation mit den 3m noch nicht so ganz klar ), habe ich mich auf die Suche nach einem GU gemacht. 2 Wochen später gab es einen Hausbesuch eines Vertrieblers. Er hat sich alles angehört und unsere Ideen mitgenommen. 2 Wochen später gab's dann einen Grundriss. Wir als Baulaien damals waren natürlich begeistert. Aber nach dem 2. und 3. mal hinschauen kamen uns Zweifel.
- Keine Berücksichtigung des Geländes. Aufschüttung/Geländemodellierung sollte dann auf nachfrage nur 5-7k€ kosten. Wir wissen ja was draus geworden ist
- Küchenfenster unterm Carport mit Blick auf die Garage.
- Wohnzimmer zu klein
- Wenig Fenster
- Der Preis ohne Keller war auch dürftig
- Damals auch noch keine Ahnung von Fassaden und Materialien gehabt. Wäre dann WDVS geworden.
GU:
Danach haben wir uns gedacht, versuchen wir es mit einem Architekten unser Vermieter hat uns dann einen Kumpel empfohlen.
Dann ist daraus dass geworden im ersten Entwurf:
Wie es weiter ging ist ja bekannt.
Rausgeflogen ist am Ende aus dem ersten Entwurf das Arbeitszimmer und ist nun eine kleine Garderobe. Dadurch ist nun das Wohnzimmer 55m². Oben gibt es keinen Winkel beim Kinderzimmereingang und die Treppe wurde ein wenig nach Planrechts verschoben.
Jetzt sieht es von außen so aus:
R
Reluctance22.02.19 23:03Zaba12 schrieb:
Wie es weiter ging ist ja bekannt.
Rausgeflogen ist am Ende aus dem ersten Entwurf das Arbeitszimmer und ist nun eine kleine Garderobe. Dadurch ist nun das Wohnzimmer 55m². Oben gibt es keinen Winkel beim Kinderzimmereingang und die Treppe wurde ein wenig nach Planrechts verschoben.Finde den Grundriss extrem (also wirklich richtig richtig) gut - genau das, was ich suche Vor allem ist der große Wohnbereich mit integrierter Treppe super gelungen - das größtmögliche an Platz aus dem EG rausgeholt.
Reluctance schrieb:
genau das, was ich sucheDa könntest Du sogar knapp Glück haben, wegen Deines Kniestocks und der Dachneigung - ansonsten wäre der Grundriss wegen der Treppenlage für einen Anderthalbgeschösser ausgeschieden.https://www.instagram.com/11antgmxde/
https://www.linkedin.com/company/bauen-jetzt/
Ähnliche Themen