Wenn der Keller kein Wohnraum ist, ist wahrscheinlich auch kein rettungsweg geplant? Wie klein sind denn die Kinder? Ich glaube, ich würde das Schlafen doch eher ins EG legen, wenn es nicht anders geht. Wenn die Finanzierung auf kante ist, weiß ich nicht, ob ich mir weitere Aufmusterungen einplanen lassen würde.
H
HoisleBauer2216.01.22 23:39Ysop*** schrieb:
Wenn der Keller kein Wohnraum ist, ist wahrscheinlich auch kein rettungsweg geplant? Wie klein sind denn die Kinder?Nein...Da müsste ein Lichthof her, oder? Oder muss das dann eine Kellertüre mit Außentreppe sein? Kinder sind im Vorschulalter.ypg schrieb:
Nimm die Westseite, dann gewinnst DuDu meinst zusätzliche größere/breitere Fenster interessieren dann nicht, weil mehr Wärme über Sonnenstrahlung reinkommt?ypg schrieb:
Meines Wissens doch.Wenn ich VGH Baden-Württemberg, Beschluss vom 23.08.2012 - 3 S 1274/12 richtig verstehe, kann ein Lichthof bei korrektem Abstand zwischen Hausmauer und Nachbargrundstück (Abstandsflächentiefe, bei mir unter 3 m) sehr dicht an das Nachbargrundstück gebaut werden. Was wären deine Quellen?ypg schrieb:
Deine jetzige Zeichnung hat das WZ im Westen. Bei Tausch wäre es im Süden.Also so ähnlich wie die Variante von unserem Haus im Anhang, den Gastraum mal weggedacht und das Wohn/Fernsehzimmer quasi verkürzt?Ysop*** schrieb:
Ich glaube, ich würde das Schlafen doch eher ins EG legen, wenn es nicht anders geht. Wenn die Finanzierung auf kante ist, weiß ich nicht, ob ich mir weitere Aufmusterungen einplanen lassen würde.Bei der Arbeit bemerkt man evtl. Rauchgas schneller als im Schlaf. Beim Typenhaus des GU würde ich eher nur um- statt aufmustern, sonst werden die Mehrkosten zu Stolpersteinen auf dem Weg zum Wohneigentum (bzw. zum Lebensgenuß darin).https://www.instagram.com/11antgmxde/
https://www.linkedin.com/company/bauen-jetzt/
HoisleBauer22 schrieb:
Also so ähnlich wie die Variante von unserem Haus im Anhang, den Gastraum mal weggedacht und das Wohn/Fernsehzimmer quasi verkürzt?Wenn ich Tausch sage, dann meine ich keinen anderen Entwurf.HoisleBauer22 schrieb:
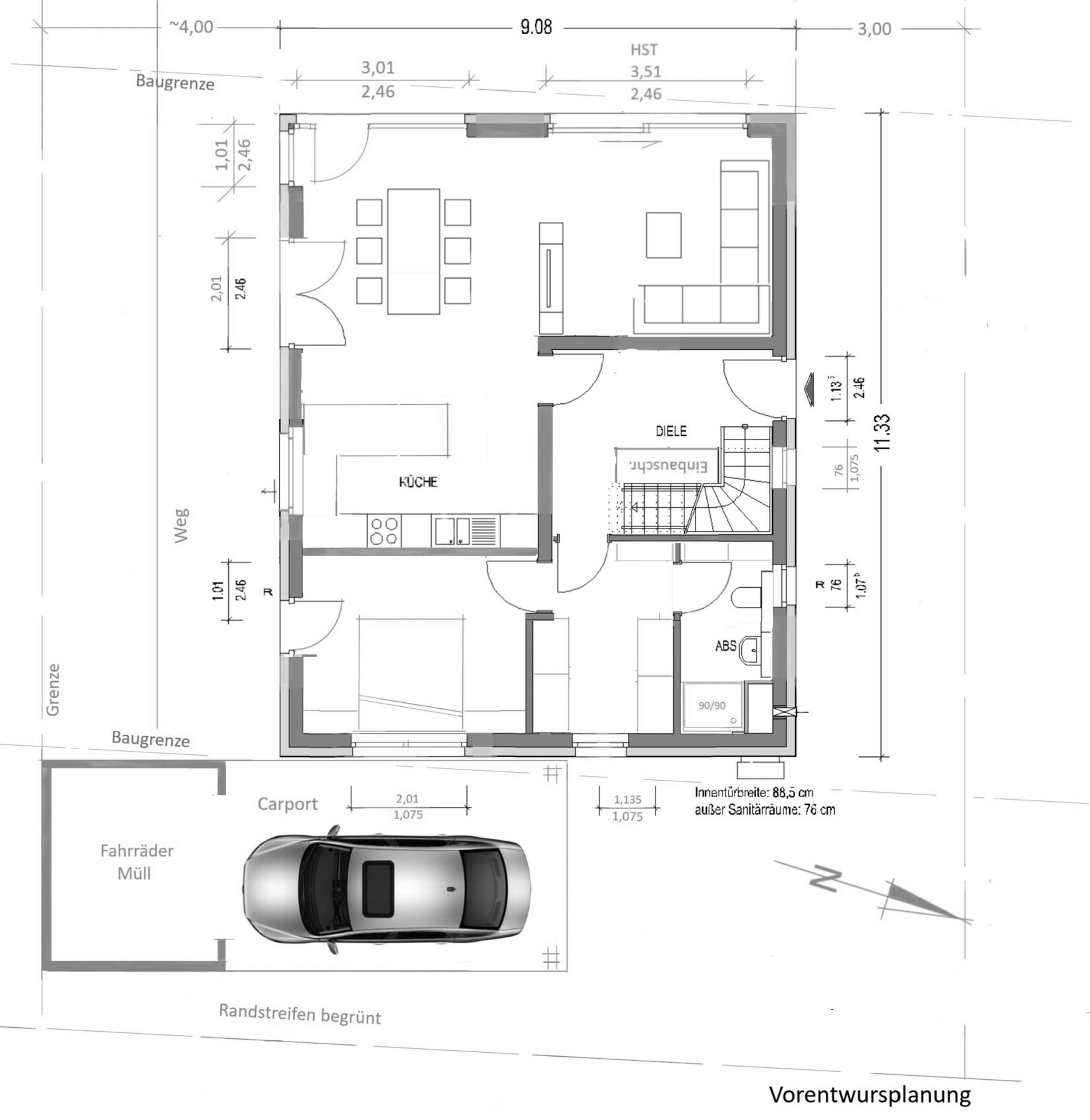
Was wären deine Quellen?Bei knapp 10 Jahre Forum und ständiges Hinterhergoogeln kennt man seine Quellen nicht mehr. Letztendlich entscheidet die Gemeinde.Ich finde den Grundriss auch ganz gut für Eure Anforderungen. Allerdings finde ich es nicht schön, dass man direkt gegen die Küche läuft und generell ist der Bereich recht knapp für eine 5-köpfige Familie. Dafür verschenkst Du Fläche vor dem Gäste-WC und mit dem kleinen Abstellraum. Du hast ja einen Keller. Ich würde diese Bereiche als Ankleide in den Elternbereich integrieren und das Schlafzimmer verkleinern. Dann kann die Küche weiter nach planunten rutschen. Gäbe auch mehr Privatsphäre mit dem Bad und die Gäste stört es ja nicht wenn sie durch eine (aufgeräumte 😉 ) Ankleide müssen.
Büro würde ich in Keller 1 legen, ein recht großzügiges Fenster (oder 2) rein und dann den Bereich selbst anböschen. Ergibt im Süden wirklich mega viel Helligkeit. Dafür andere Kellerfenster streichen. Abstelle braucht dank Lüftungsanlage gar kein Fenster. Zum Schlafen wäre es mir zu weit weg von den Kids und dem Bad.

Büro würde ich in Keller 1 legen, ein recht großzügiges Fenster (oder 2) rein und dann den Bereich selbst anböschen. Ergibt im Süden wirklich mega viel Helligkeit. Dafür andere Kellerfenster streichen. Abstelle braucht dank Lüftungsanlage gar kein Fenster. Zum Schlafen wäre es mir zu weit weg von den Kids und dem Bad.
Ähnliche Themen