ᐅ Grundriss / Außenansicht "Stadtvilla"
Erstellt am: 08.07.17 10:38
Hallo zusammen,
wir haben noch mal von vorne angefangen mit einem andren Architekten. Die Eckfenster aus meinem anderen Thread sind nun verworfen. Wir freuen uns über eure Meinungen und Verbesserungsvorschläge.
Bebauungsplan/Einschränkungen
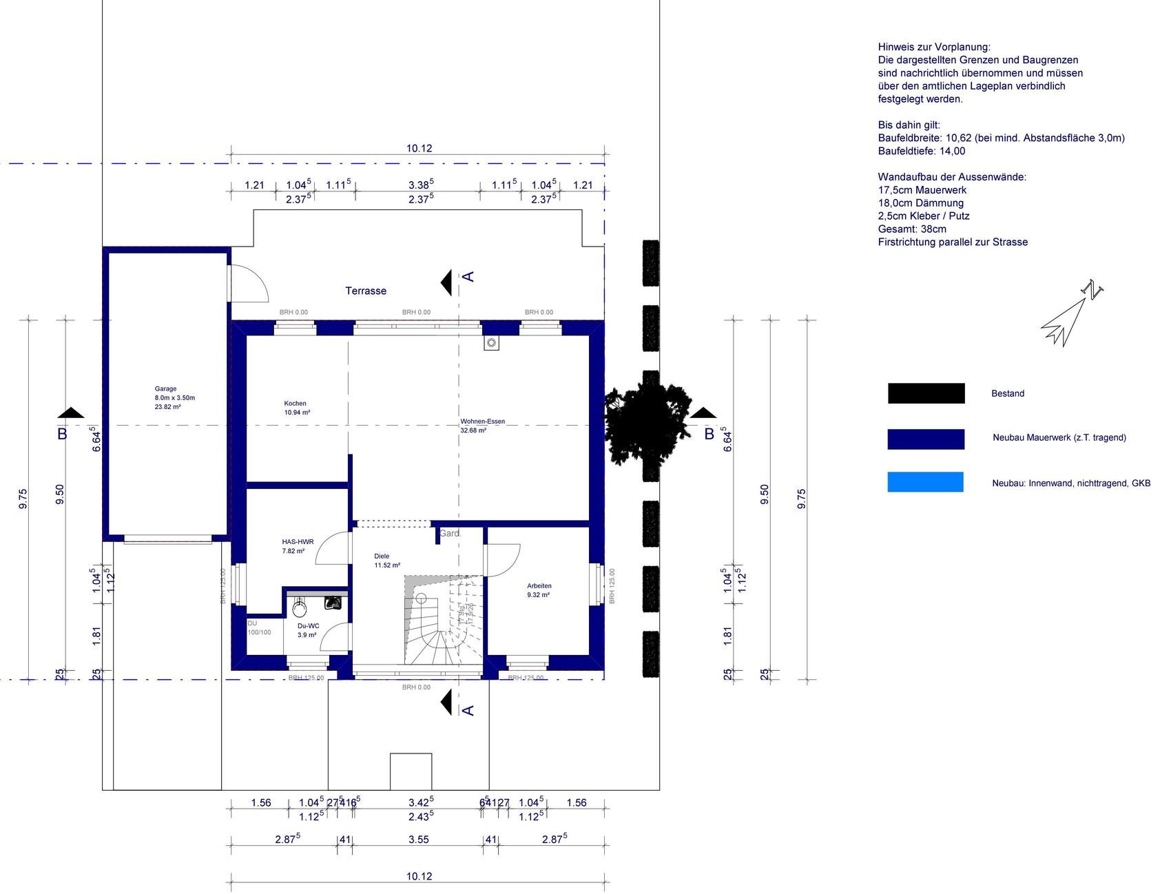
Größe des Grundstücks: 454m²
Hang: kein Hang
Grundflächenzahl: 0,4
Geschossflächenzahl: 0,8
Baufenster, Baulinie und -grenze: siehe Plan
Randbebauung: Garage an Grenze, 1,5 Meter zur Straße
Anzahl Stellplatz: 1
Geschossigkeit: 2
Dachform: Walmdach
Stilrichtung: Modern
Ausrichtung: Traufständig
Maximale Höhen/Begrenzungen: 6,5 Meter
weitere Vorgaben: Max 0,7 m Dachüberstand, keine Dachüberstände, 30-35°
Anforderungen der Bauherren
Stilrichtung, Dachform, Gebäudetyp: 2 geschossigen Einfamilienhaus
Keller, Geschosse: ohne Keller, 2 Geschosse
Anzahl der Personen, Alter: 2 (26), 2 Kinder geplant
Raumbedarf im EG, OG: jeweils ca 75m²
Büro: Familiennutzung oder Homeoffice? Eher Familiennutzung
Schlafgäste pro Jahr: 5-10
offene oder geschlossene Architektur: offen
konservativ oder moderne Bauweise: modern
offene Küche, Kochinsel: ja
Anzahl Essplätze: 6-8
Kamin: ja
Musik/Stereowand: nein
Balkon, Dachterrasse: nein
Garage, Carport: 1 Garage, Platz für 1 Auto vor der Garage
Nutzgarten, Treibhaus: nein
weitere Wünsche/Besonderheiten/Tagesablauf, gern auch Begründungen, warum dieses oder das nicht sein soll
Hausentwurf
Von wem stammt die Planung:
-Architekt
Was gefällt besonders? Warum? Bodentiefe Fenster, Optik
Was gefällt nicht? Warum? Treppenzeichnung in dem Plan (alternativen?)
Preisschätzung lt Architekt/Planer: ~250.000 (Sanitär/Heizung/Trockenbau in Eigenleistung)
Persönliches Preislimit fürs Haus, inkl Ausstattung: 260.000
favorisierte Heiztechnik: Gas + Solarthermie für WW
Warum ist der Entwurf so geworden, wie er jetzt ist? ZB
Standardentwurf vom Planer? Hatten wenig Zeit aufgrund der kompletten Neuplanung, haben uns an einen Entwurf von einem großen Fertighaushersteller orientiert, welcher uns gefallen hat. Dieser wurde dann optimiert und an die Hausmaße angepasst.
Fragen, welche sich bei uns ergeben:
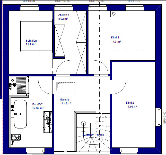
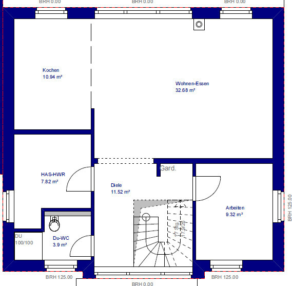
- Hauswirtschaftsraum/Technikraum wird mit 8m² zu klein sein, nehme ich an. Wo könnt man Raum einsparen? Kontrollierte-Wohnraumlüftung/Heizung, Waschmaschine, unsere kleine, derzeitige Küche (an der Wand, rechts wenn man rein kommt, kann entsprechend "gekürzt" werden) und ein Wäscheständer sollten da Platz finden.
- Habt ihr eine bessere Idee für die Position des Kamins? Zwischen den beiden Fenstern finden wir es evt. zu eng. Wir fänden eigentlich an der Wand gegenüber optimal, dann passt es aber nicht vom Schornstein her mit der Raumaufteilung im OG.
- Ist der Eingangsbereich evt. zu eng bzw. gibt es eine andere Möglichkeit, die Treppe zu setzen? Wir würden eigentlich gerne die Haustür mittig setzen, dann ist aber laut Plan die Treppe im Weg.
Wenn noch weitere Informationen benötigt werden, einfach Bescheid geben.
Freuen uns auf Eure Kommentare!
LG







wir haben noch mal von vorne angefangen mit einem andren Architekten. Die Eckfenster aus meinem anderen Thread sind nun verworfen. Wir freuen uns über eure Meinungen und Verbesserungsvorschläge.
Bebauungsplan/Einschränkungen
Größe des Grundstücks: 454m²
Hang: kein Hang
Grundflächenzahl: 0,4
Geschossflächenzahl: 0,8
Baufenster, Baulinie und -grenze: siehe Plan
Randbebauung: Garage an Grenze, 1,5 Meter zur Straße
Anzahl Stellplatz: 1
Geschossigkeit: 2
Dachform: Walmdach
Stilrichtung: Modern
Ausrichtung: Traufständig
Maximale Höhen/Begrenzungen: 6,5 Meter
weitere Vorgaben: Max 0,7 m Dachüberstand, keine Dachüberstände, 30-35°
Anforderungen der Bauherren
Stilrichtung, Dachform, Gebäudetyp: 2 geschossigen Einfamilienhaus
Keller, Geschosse: ohne Keller, 2 Geschosse
Anzahl der Personen, Alter: 2 (26), 2 Kinder geplant
Raumbedarf im EG, OG: jeweils ca 75m²
Büro: Familiennutzung oder Homeoffice? Eher Familiennutzung
Schlafgäste pro Jahr: 5-10
offene oder geschlossene Architektur: offen
konservativ oder moderne Bauweise: modern
offene Küche, Kochinsel: ja
Anzahl Essplätze: 6-8
Kamin: ja
Musik/Stereowand: nein
Balkon, Dachterrasse: nein
Garage, Carport: 1 Garage, Platz für 1 Auto vor der Garage
Nutzgarten, Treibhaus: nein
weitere Wünsche/Besonderheiten/Tagesablauf, gern auch Begründungen, warum dieses oder das nicht sein soll
Hausentwurf
Von wem stammt die Planung:
-Architekt
Was gefällt besonders? Warum? Bodentiefe Fenster, Optik
Was gefällt nicht? Warum? Treppenzeichnung in dem Plan (alternativen?)
Preisschätzung lt Architekt/Planer: ~250.000 (Sanitär/Heizung/Trockenbau in Eigenleistung)
Persönliches Preislimit fürs Haus, inkl Ausstattung: 260.000
favorisierte Heiztechnik: Gas + Solarthermie für WW
Warum ist der Entwurf so geworden, wie er jetzt ist? ZB
Standardentwurf vom Planer? Hatten wenig Zeit aufgrund der kompletten Neuplanung, haben uns an einen Entwurf von einem großen Fertighaushersteller orientiert, welcher uns gefallen hat. Dieser wurde dann optimiert und an die Hausmaße angepasst.
Fragen, welche sich bei uns ergeben:
- Hauswirtschaftsraum/Technikraum wird mit 8m² zu klein sein, nehme ich an. Wo könnt man Raum einsparen? Kontrollierte-Wohnraumlüftung/Heizung, Waschmaschine, unsere kleine, derzeitige Küche (an der Wand, rechts wenn man rein kommt, kann entsprechend "gekürzt" werden) und ein Wäscheständer sollten da Platz finden.
- Habt ihr eine bessere Idee für die Position des Kamins? Zwischen den beiden Fenstern finden wir es evt. zu eng. Wir fänden eigentlich an der Wand gegenüber optimal, dann passt es aber nicht vom Schornstein her mit der Raumaufteilung im OG.
- Ist der Eingangsbereich evt. zu eng bzw. gibt es eine andere Möglichkeit, die Treppe zu setzen? Wir würden eigentlich gerne die Haustür mittig setzen, dann ist aber laut Plan die Treppe im Weg.
Wenn noch weitere Informationen benötigt werden, einfach Bescheid geben.
Freuen uns auf Eure Kommentare!
LG
W
winnetou7808.07.17 10:47Finde es sehr schön,
Aber habe das Gefühl das 260000 sehr knapp sind .
Gruß Daniel
Aber habe das Gefühl das 260000 sehr knapp sind .
Gruß Daniel
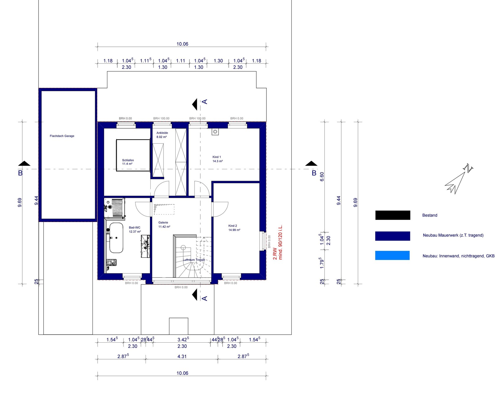
... und, wie sind die Hausmaße? Ein paar Maße am Grundriss wären halt gut. Nordpfeil in den Grundrissen ist auch immer hilfreich.
Zum Plan:
- Ankleide ... sehr schmal
- Fensterpositionen Ankleide und Kind 1 verhindern sinnvolles Schrankstellen
- Symmetrie der Fenster rundum wird überbewertet
- Fenster im Hauswirtschaftsraum .. wozu soll die Nische im Raum davor gut sein?
- Möbliere mal Wohnen /Essen ... sieht in der Breite sehr sehr knapp aus, dafür in der Tiefe fast zu viel (sinnvolle TV-Position etc.).
- Kind 2 ... wie breit ist das Zimmer, sieht irgendetwas zwischen 240 und 280 cm aus.
Zum Plan:
- Ankleide ... sehr schmal
- Fensterpositionen Ankleide und Kind 1 verhindern sinnvolles Schrankstellen
- Symmetrie der Fenster rundum wird überbewertet
- Fenster im Hauswirtschaftsraum .. wozu soll die Nische im Raum davor gut sein?
- Möbliere mal Wohnen /Essen ... sieht in der Breite sehr sehr knapp aus, dafür in der Tiefe fast zu viel (sinnvolle TV-Position etc.).
- Kind 2 ... wie breit ist das Zimmer, sieht irgendetwas zwischen 240 und 280 cm aus.
Auf jeden Fall schon´mal viel gefälliger als der vorherige Entwurf mit den vier abgebissenen Ecken.
https://www.instagram.com/11antgmxde/
https://www.linkedin.com/company/bauen-jetzt/
https://www.instagram.com/11antgmxde/
https://www.linkedin.com/company/bauen-jetzt/
kbt09 schrieb:
- Symmetrie der Fenster rundum wird überbewertet sieht aber in diesem Fall sehr hübsch aus!
Aber: auf seitliche Gleichheit im OG und EG kann man hier gern verzichten.
Mat91 schrieb:
Standardentwurf vom Planer? Hatten wenig Zeit aufgrund der kompletten Neuplanung, haben uns an einen Entwurf von einem großen Fertighaushersteller orientiert, welcher uns gefallen hat. Dieser wurde dann optimiert und an die Hausmaße angepasst.Die Treppe passt nicht zu den Hausmaßen. Da passt vieles nicht
Wenn man im OG auf die grosse Glasfront verzichten würde (Treppe), dann würde sich sogar noch ein kleiner Raum ergeben, indem man das Bad um 90 Grad dreht. Das Kinderzimmer ist sehr schmal, die Ankleide mit zwei Metern beherbergt einen Schrank, aber keine zwei ggü.
Die Garderobe reicht kaum für die gängigen Winterjacken und -Schuhe bei 4 Personen
Das Bad ist im Süden, das Gäste-Klo auch. Dafür bekommen die Kinder im Winter keine Sonne ab, wenn die Sonne im SO aufgeht. Im Winter geht die Sonne im SW unter ... Mal für das WZ bedenken.
Warum liegt die Garage links und nicht rechts???
Ich kann leider nicht auf Deine Beiträge und somit nicht auf Deine Erst-Diskussion zurückgreifen. Da ich mir aber auch hier den Kopf in alle Richtungen verdrehen muss, habe ich zumindest diesbezüglich ein Deja-vu
Ähnliche Themen