Grundriss 165 m² mit Keller eure Meinung

4,90 Stern(e) 21 Votes
Zuletzt aktualisiert 25.11.2025
Sie befinden sich auf der Seite 7 der Diskussion zum Thema: Grundriss 165 m² mit Keller eure Meinung
>> Zum 1. Beitrag <<

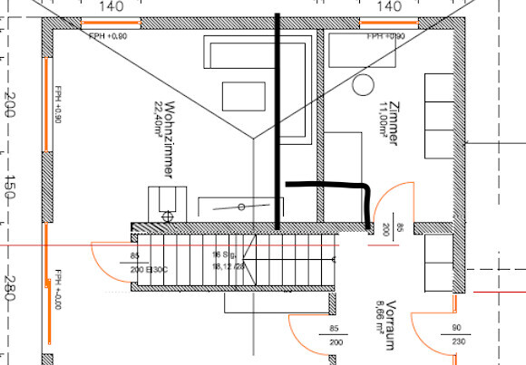
Treppenaufgang in das OG vom Wohnbereich oder vom Vorhaus?

  • Wohnbereich

    Stimmen: 5 41,7%
  • Vorhaus

    Stimmen: 7 58,3%

  • Anzahl der Umfrageteilnehmer
    12
Nida35a

Nida35a

was mir im neuen OG Plan von @Würfel* gefällt, es gibt keine Sichtachse mehr durch das Haus mit vorne und hinten Fenster, das heißt nackig mit Sachen unter dem Arm ins Bad geht besser
 
B

BauFamily

Die einzige Frage die wir derzeit noch haben und die wir für uns entscheiden müssen ist, ob wir die Speisekammer im EG behalten wollen oder nicht. Ich glaube das wird vom Küchenplaner abhängen wie er die Küche plant, mit oder ohne Zugang zur Speisekammer. Denn ich glaube die Küche sieht ohne Speisekammertür einfach besser aus. Ob es dann auch praktisch ist, wird die andere Frage sein.
Der Faktor Optik scheint die bei der Version ohne Speisekammer einfach beantwortet zu sein. Beim Faktor Praktikabilität musst man sich überlegen, was man eigentlich bei der Version ohne Speisekammer aufgibt. Glaube man hat nämlich oft den Denkfehler, dass man durch die Speisekammer immer automatisch mehr Stauraum hat:

  1. Statt 4 Hochschränken kriegst du bei ohne Speisekammer 6 Hochschränke hin --> Wesentlich mehr Stauraum
  2. Die schmale 60cm Halbinsel sowie die Schränke ums Eck (-unter dem Fenster-) werden zu einer breiteren 1,20M freistehenden Spül- oder Kochinsel. Ich würde ohnehin diese Barhocker weglassen, da du unmittelbar an der Küche eine schöne Sitzecke hast, wo die Gäste während man kocht verweilen können. Da nehmen die Barhocker unnötiger Platz weg zulasten einer breiten Kochinsel. Das was du an Stauraum bei den Schränken um das Eck und in der Speisekammer aufgibst, kannst du fast eins zu eins dem Stauraum in der breiteren Spül-Kochinsel zuschlagen
    -->Gleich bzw. minimal weniger Stauraum
  3. Bei vielen Grundrissen mit Speisekammer wird die Speisekammer u.a. als direkten Zugang von Eingang zu Küche genutzt, was ein klarer Pluspunkt für eine Speisekammer ist. Entfällt hier ohnehin bei beiden Versionen.
  4. Du hast einen Keller! Oft baut man ja mit Speisekammer, wenn man eben diesen nicht hat. Bei dir sieht es anders aus: Waffeleisen, Schokobrunnen, Fritteusen, Bräter...also alles das, was man nicht alltäglich braucht wandern sowieso in den Keller und du hast mehr Platz oben für Konserven etc. wo du öfter dran musst.

Fazit: Aus meiner Sicht gibst du nichts auf; gewinnst nur ohne Speisekammer. Bei dem Ganzen ist dabei natürlich das "drum herum" ebenfalls du Beachten: Du hast ein größeres WC im EG mit Duschoption.
 
B

borxx

Ich oute mich mal zu Speisekammer oder wie es so schön beschrieben wurde "Kochküche und Showküche".

Wir werden auch ein zweites Räumchen bauen und dort ist bewusst eine weitere Zeile bzw. 2x1.4m eingeplant eben weil Frauchen diverse Höllengeräte wie Thermomix, Bosch Mum etc. oft am laufen hat und die Geräuschkulisse kann dann doch im Wohnbereich durchaus nervig werden, wenn die Teile oft und lange laufen. Alles Nervige was gut mit sich selbst beschäftigt ist wird somit in die "Nebenküche" verfrachtet. Zusätzlich gibt´s eine "mobile" Kochplatte, wenn mal etwas angebraten wird was nicht unbedingt längerfristig geruchstechnisch im Wohnzimmer hängen muss. Bei Vorräten ist´s uns herzlich egal wo sie stehen aber die reine "Lagerhaltung der Speisekammer" ist imho aus genannten Gründen überholt und gerade die aktuell oftmals geplanten schmalen Gänge finde ich furchtbar unpraktisch.
 
B

borxx

Bei knapp 30cm Größenunterschied ist sie mit der Verniedlichung fein... bzgl. Gerätschaften selbst genervt, wenn wir bspw. Serie schauen und die Dinger nebenan auf Vollgas bis zu 20 Min laufen für IHREN Fluff.
 
Zuletzt aktualisiert 25.11.2025
Im Forum Grundrissplanung / Grundstücksplanung gibt es 2536 Themen mit insgesamt 88016 Beiträgen


Ähnliche Themen zu Grundriss 165 m² mit Keller eure Meinung
Nr.ErgebnisBeiträge
1Grundriss 175qm Satteldach ohne Keller 136
2Speisekammer vs. größere Küche vs. Hauswirtschaftsraum 13
3Häuser ohne Keller: Stauraum Hobby-Keller? 49
4Grundriss Einfamilienhaus ~165m² plus Keller - Seite 18165
5Nicht-bodentiefe Fenster im Wohnzimmer unmodern? Welche Vorhänge? - Seite 217
6Grundriss Einfamilienhaus 136m² mit Garage & Keller 17
7Grundriss-Check Neubau Einfamilienhaus mit Keller - Seite 243
8Optimierungsbedarf? Einfamilienhaus mit 130 m² + Keller 26
9Grundriss Einfamilienhaus 2 Vollgeschosse +Keller ca. 130m² Wohnfläche 30
10Grundriss: Speisekammer oder größere Küche? Erfahrungen? - Seite 214
11Grundrissdiskussion / Einfamilienhaus auf Grundstück länglich mit NO-Ausrichtung - Seite 423
12Kochinsel / Arbeitsinsel in der Küche - Welcher Dunstabzug? - Seite 349
13Erster Entwurf Einfamilienhaus 150m² mit Keller 38
14Grundrissplanung Stadtvilla 180m² mit Keller 45
15Einfamilienhaus ohne Keller - Stellefläche anderweitig generieren - Seite 561
16Einfamilienhaus mit Satteldach, ohne Keller - Feedback erwünscht - Seite 9190
17Grundrissentwurf Einfamilienhaus mit Keller und Doppelgarage auf 540qm - Seite 326
18Kalkulation Einfamilienhaus mit 175m² Wohnfläche, Keller und Doppelgarage - Seite 1379
19Wohn-/Essbereich und Küche - Sinnvolle Aufteilung - Seite 336
20Erker in der Küche - Umsetzungsvorschläge - Seite 247

Oben