Finaler Grundrissplan, Einfamilienhaus 7,99x11,11m

4,80 Stern(e) 6 Votes
Zuletzt aktualisiert 10.10.2025
Sie befinden sich auf der Seite 7 der Diskussion zum Thema: Finaler Grundrissplan, Einfamilienhaus 7,99x11,11m
>> Zum 1. Beitrag <<

D

daniels87

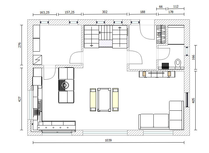
na gut, also dann eher so?

Btw: Die Dusche im OG ist jetzt doch mit Glasabtrennung, um den Raum größer wirken zu lassen. Und Die Dusche im EG-Bad ist jetzt auch ebenerdig

Detaillierter Grundriss eines Hauses mit Küche, Wohnzimmer, Treppen und Eingangsbereich.
 
Y

ypg

Ich würde wahrscheinlich die Insel planunten an die Küche pappen, die Tür Küche/Abstell weglassen. Dann hast du eine freie Wand und kommst besser, auch über kurze Wege, an den Kühlschrank :)
 
kbt09

kbt09

Mir wäre vermutlich der Esstisch zu ungemütlich. Treppenauf- und abgang voll im Blick und so komplett "ungeschützt" mitten im Raum wäre nicht wirklich meins.

Bei 427 cm Raumtiefe sollte man sich über die Möglichkeiten einer echten Insel Gedanken machen. Und dabei auch bedenken, eine Dunstabzugshaube im freien Raum bei über 10 m Raumbreite ist auch vielen Querströmungen ausgesetzt, die die Leistungsfähigkeit beeinträchtigen.

Ich habe jetzt nicht weiter zurückgeblättert, aber eine Ankleide im Elternschlafbereich ... wie sollte das denn gehen?
 
D

daniels87

ja, das ist wohl einfach Geschmackssache :p

Ich bin wohl eher klaustrophobisch veranlagt. Ich fühle mich wohl wenn um mich herum Platz ist (und viele Fenster). Und die Treppe ist imo ein eyecatcher und ist bewusst nicht versteckt. Am besten haben uns Musterhäuser gefallen, bei denen die Treppe quer durch die Wohnräume ging, also in richtung Loft :rolleyes:

Und gibt es bei neueren Bauten überhaupt noch große Luftströmungen?
Bekannte von mir haben im EG einen großen Wohn/Essbereich mit Küche auf insgesamt fast 80qm, und die können da nix negatives berichten.
 
D

daniels87

ah.. editieren ging nicht mehr..

Der Grundriss ist aber so geplant, dass man im Zweifelsfall zum Treppenhaus hin noch eine Wand einziehen könnte.
 
Y

ypg

Ich finde offene Treppen gut . Und so offen liegt sie gar nicht.
Was mir aber gerade auffällt: zeichne mal einen Tisch in normaler Größe ein, dann wirkt der Raum anders.
 
Zuletzt aktualisiert 10.10.2025
Im Forum Grundrissplanung / Grundstücksplanung gibt es 2513 Themen mit insgesamt 87235 Beiträgen


Ähnliche Themen zu Finaler Grundrissplan, Einfamilienhaus 7,99x11,11m
Nr.ErgebnisBeiträge
1 2 Vollgeschosse, Durchgang Garage, Hauswirtschaftsraum unter Treppe 25
2Grundriss, Ideen zur räumlichen Trennung innerhalb der Küche 23
3Wohin mit der Treppe? Dachausbau Walmdachbungalow - Seite 219
4Probleme bei der aufteilung Küche, Essen , Wohnen - Seite 216
5Grundrissfrage, Treppe, Fenster, Ausrichtung 12
6Esstisch in einer kleinen Küche - Seite 449
7Grobe Schnitzer im Grundriss? Küche zu klein? - Seite 639
8Stadtvilla mit gerader Treppe, offene moderne Bauweise, 140m² 18
9Grundrissplanung: Badezimmer Dusche 47
10REH - Grundrissplanung - Küche zu klein 30
11Schrank unter der Treppe oder kleiner Abstellraum - Seite 211
12Grundriss-Änderung Einfamilienhaus 150 m² aufgrund von Treppe 36
13Speisekammer vs. größere Küche vs. Hauswirtschaftsraum - Seite 213
14Grundriss EG Wohnen / Küche - Trennwand 19
15Bad Grundrissplanung T- Lösung? Wünsch wäre große Dusche 15
16Grundrissfrage, Garage, Treppe 33
17Dusche auf Podest und Schubfach 13
18Grundrissfrage: Tausch gerader Treppe durch L-Treppe 31
19"Grottenschlecht ist diese Planung"... 27
20Geschlossene oder offene Küche ? 11

Oben