Feedback zu Einfamilienhaus Grundriss 200 m² Stadtvilla mit Walmdach o

4,60 Stern(e) 5 Votes
Zuletzt aktualisiert 20.12.2025
Sie befinden sich auf der Seite 3 der Diskussion zum Thema: Feedback zu Einfamilienhaus Grundriss 200 m² Stadtvilla mit Walmdach o
>> Zum 1. Beitrag <<

kaho674

kaho674

Die Zeiten, wo man in der Garage feiert sind bei mir lange vorbei. Das ist ja fast so schlimm wie im Keller. Solche Partys lehne ich ab. Da kann der Hausherr gern allein im Kalten und Dunklen sitzen.

Nun, wenn Du nichts ändern willst, dann lohnt sich die Diskussion ja nicht weiter.
 
Y

ypg

Der Gang hat auch den Vorteil, dass Gäste falls man doch mal in der Garage zusammen sitzt (Wintergeburtstag..) von dort direkt zum Gäste-WC kommen
Bei Dir möchte ich kein Gast sein
Das Glühweintrinken darf gern draußen stattfinden, aber wie Katja es schon sagt: die Zeiten der Feten, wo man wegen unsauberen Gästen in der Garage Party gemacht hat, sind nicht mehr. Außerdem schlafen die (ganzen mitgebrachten) Kinder ja alle oben und wollen die Eltern im Haus haben.
Ich glaube nicht, dass ein „etwas Rumschieben“ etwas Luft in den Bereich bringt.
 
Nordlys

Nordlys

Garagenpunkpahdie unmodern? Schade, war immer so schön, Blitzkrieg Bop mit den Ramones, Heini und Evchen schnüffeln Bremsenreiniger und alle sind glücklich und Liebe und Frieden und so....
 
S

Seb0907

Hey ihr Garagenpartyverweigerer Ich wünsche euch 25 Freunde und Verwandte mit Kindern in euer Wohnzimmer!

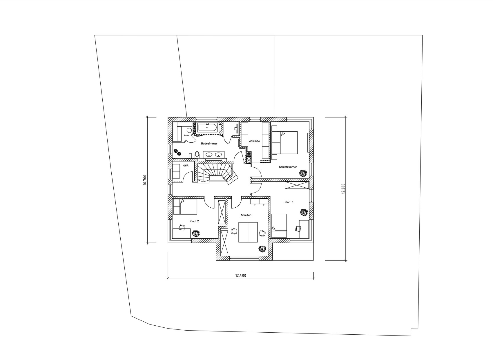
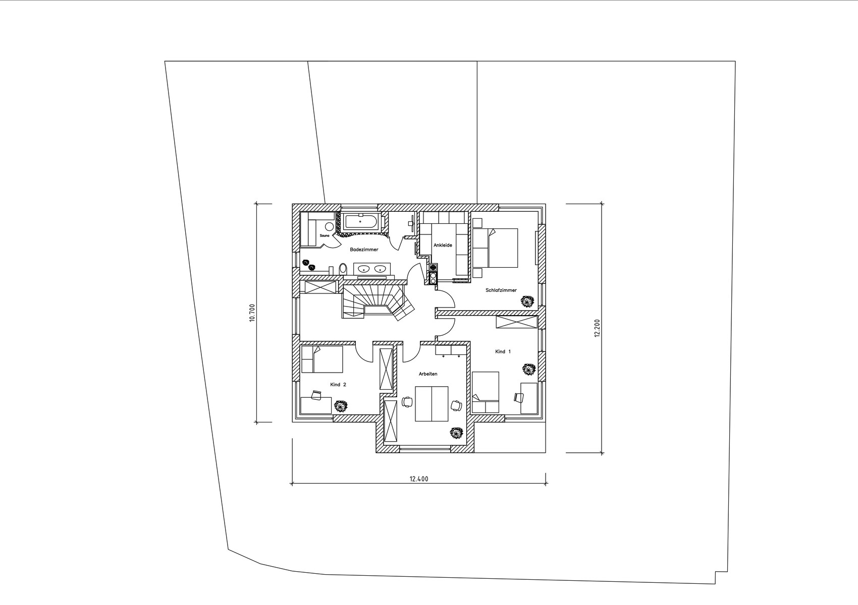
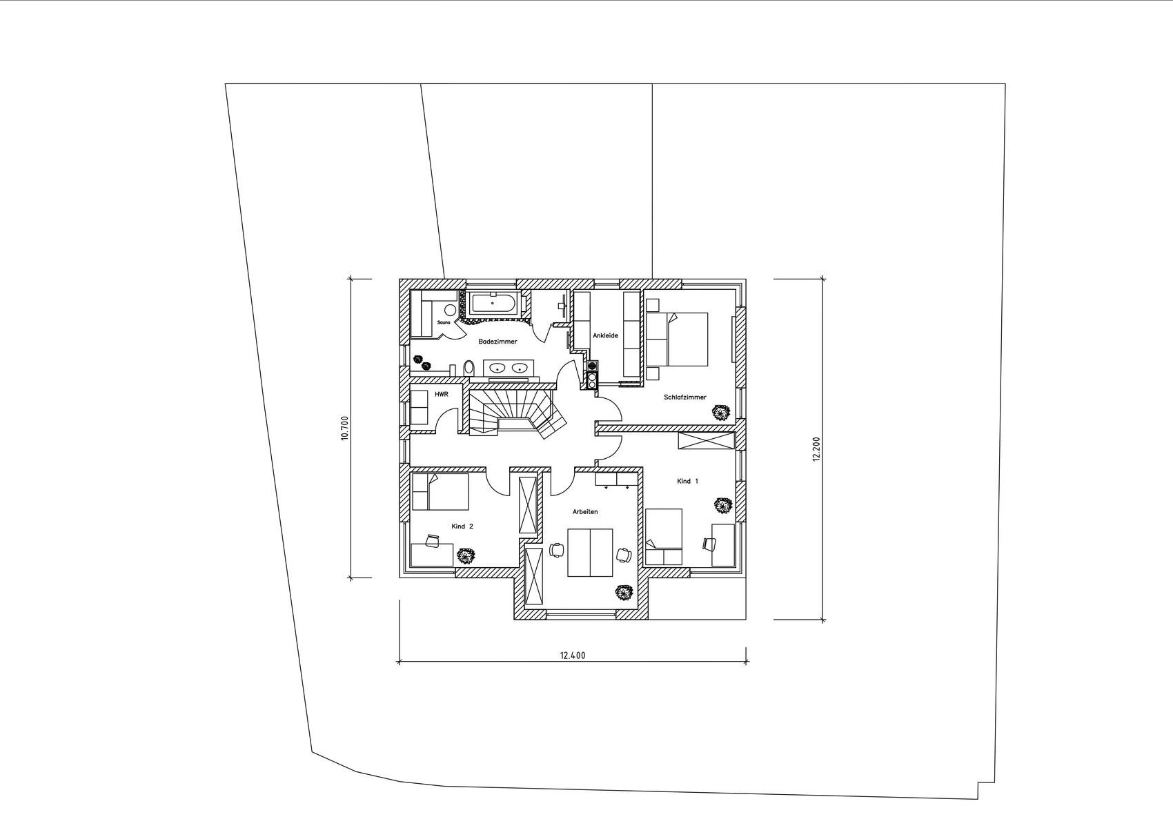
Nun - Ich habe mir heute nach euren Rückmeldungen trotzdem mal Gedanken über den Garagenzugang, Umpositionierung der Treppe etc. gemacht.. nachdem das Chaos aber im Zusammenspiel mit dem OG los ging und da viel Quatsch bei herausgekommen ist, habe ich mich zumindest erst mal an die Punkte Zugang Kind 1, Badezimmereingang, Hauswirtschaftsraum im OG gesetzt.

- Was den Zugang zu Kind 1 angeht habe ich die Kante weggenommen und bündig gesetzt, ich denke das ist in jedem Fall besser da es dort dann klare Verhältnisse schafft..

- Die Ankleide habe ich verkleinert (Schrankabstand nun 120 cm) um den Vorsprung im Eingangsbereich Bad von ehemals 60 auf ca. 47 cm zu reduzieren. Die Tür war auch noch mal 5 cm zu groß. Wenn das nicht reichen sollte müsste ich die Treppe bzw. noch mal die Ankleide mit Schornstein verschieben.

Was haltet ihr von von der neuen Variante?

- Ich habe außerdem mal einen Hauswirtschaftsraum Raum im OG eingeplant, was haltet ihr davon? In das Badezimmer habe ich den Raum auch mal versuchsweise reingeschoben, allerdings entstehen dort dann schwierige Verhältnisse. Im großen und ganzen wäre es so auch ok für mich, allerdings verliert der Flur dann schon viel Offenheit wie ich finde.

Ebenso habe ich mal den Vergleich der Garagenzufahrt parallel zur Zufahrt bzw. 90° zum Haus angehängt. Ich glaube aber, dass es nicht rauskommt was mir an der geraden Variante nicht gefällt, die vor allem von unten sichtbare Verjüngung der Garageneinfahrt im Vergleich zu Überdachung und Straßenkante (die beiden sind parallel).

Grundriss eines Hauses, Obergeschoss: Schlafzimmer, Kind 1, Kind 2, Arbeiten, Bad, Ankleide


Grundriss eines Hauses: Schlafzimmer, zwei Kinderzimmer, Arbeitszimmer, Bad, Ankleide.


Moderne, zweigeschossige Villa mit Garage, gepflasterter Einfahrt und Garten.


Moderne zweigeschossige Villa mit Garage, Zufahrt und gepflegtem Garten.
 
kaho674

kaho674

Hey ihr Garagenpartyverweigerer Ich wünsche euch 25 Freunde und Verwandte mit Kindern in euer Wohnzimmer!
Was will er uns nur sagen? Das er 25 Leute in seine Garage zum Feiern quetscht? Wenn das keine Sexorgien sind, wär mir das zu eng. Weitaus mehr, als im WZ.

- Die Ankleide habe ich verkleinert (Schrankabstand nun 120 cm) um den Vorsprung im Eingangsbereich Bad von ehemals 60 auf ca. 47 cm zu reduzieren. Die Tür war auch noch mal 5 cm zu groß. Wenn das nicht reichen sollte müsste ich die Treppe bzw. noch mal die Ankleide mit Schornstein verschieben.
Das ändert m.E. nichts am Dilemma selbst. Es bleibt ein Schönheitsfehler - vorher war's ein großer jetzt ist es ein mittelgroßer. Plane neu oder leb damit.
- Ich habe außerdem mal einen Hauswirtschaftsraum Raum im OG eingeplant, was haltet ihr davon?
Ich fand den breiten Flur auch schöner - klar. Ein Hauswirtschaftsraum ist aber auch nicht zu verachten - Qual der Wahl.
Ebenso habe ich mal den Vergleich der Garagenzufahrt parallel zur Zufahrt bzw. 90° zum Haus angehängt. Ich glaube aber, dass es nicht rauskommt was mir an der geraden Variante nicht gefällt, die vor allem von unten sichtbare Verjüngung der Garageneinfahrt im Vergleich zu Überdachung und Straßenkante (die beiden sind parallel).
Nein, sorry. Ich sehe tatsächlich nicht, was Dir an der geraden Variante nicht gefällt. Im Gegenteil, ich sehe, was mir an der schiefen nicht gefällt.

Bitte prüf doch auch mal, ob es bei Euch überhaupt gestattet ist, die Leitungen zum Hauswirtschaftsraum mit Garagen zu überbauen.
 
Zuletzt aktualisiert 20.12.2025
Im Forum Grundrissplanung / Grundstücksplanung gibt es 2552 Themen mit insgesamt 88532 Beiträgen


Ähnliche Themen zu Feedback zu Einfamilienhaus Grundriss 200 m² Stadtvilla mit Walmdach o
Nr.ErgebnisBeiträge
1 2 Vollgeschosse, Durchgang Garage, Hauswirtschaftsraum unter Treppe 25
2Zugang von der Garage in den Hauswirtschaftsraum - Seite 449
3Grundriss Einfamilienhaus / Garage im EG? 10
4Grundriss: 150qm Einfamilienhaus+Einliegerwohnung - Carport / Garage + Schuppen / Werkstatt - Seite 745
5Haus ohne Garage und Keller? Ausbau Dachboden? Fresswarze? - Seite 585
6Einfamilienhaus auf ca. 160qm Grundriss - Seite 323
7Nebeneingangstür Garage / Haus, Hauswirtschaftsraum Garagenverordnung Niedersachsen - Seite 314
8Treppe im Flur, Grundriss steht eigentlich schon :o( - Seite 320
9Grundrissentwurf eines Passivhauses 170m² mit Garage - Seite 218
10Einfamilienhaus 145qm mit Garage ohne Keller 25
11Grundriss 140 m2 Einfamilienhaus mit Garage - Hausausrichtung ok? - Seite 218
12Grundrissplanung Einfamilienhaus (190 qm) mit Garage - Seite 218
13Einfamilienhaus 172qm mit Garage und Sauna - Seite 654
14Grundriss 170m2 - Hauswirtschaftsraum zu klein? Verbesserungsvorschläge? - Seite 542
15Grundriss Bungalow 150qm mit Garage - Seite 1379
16Reicht der Hauswirtschaftsraum auch als Abstellkammer aus? - Seite 422
17Grundriss Einfamilienhaus 240 m² mit teilüberbauter Garage - Seite 296
18Ideen für Anbau über Garage zusätzlicher Wohnraum - Seite 224
19Grundriss Einfamilienhaus 136m² mit Garage & Keller 17
20Lage von Haus & Garage im Baufenster planen *Vorplanung* - Seite 4129

Oben