Bebauungsplan/Einschränkungen
Größe des Grundstücks: 516 qm
Hanglage: Nein
Grundriss: 157,5 qm
GF: 280 qm
Baufenster: ca: 14 x 10m
Randbebauung: Nein (3m Abstand)
Anzahl Stellplatz: 1
Geschossigkeit: 2 Vollgeschosse
Dachform: Satteldach
Stilrichtung: nicht vorgeschrieben
Ausrichtung: Traufständig (Dachfirst verläuft Richtung Ost/West)
Maximale Höhen/Begrenzungen: WH 5,2 – 5,7m / FH: 7,2m
weitere Vorgaben:
- Auf dem Grundstück befinden sich Wurzelstöcke aus vorheriger Nutzung (Obstbaumplantage).
- Duldung des Kinderspielplatzes und Grenze an landwirtschaftliche Flächen.
- Anpflanzung eines Obstbaumes heimischer Herkunft im Garten.
Anforderungen der Bauherren
Stilrichtung, Dachform, Gebäudetyp: Modern, Satteldach, Familienhaus
Keller, Geschosse: Keller, zwei Vollgeschosse
Anzahl der Personen und Alter: Aktuell 4 Personen, (32, 32, 3, 1, -> + 2 weitere Kinder gewünscht)
Raumbedarf im
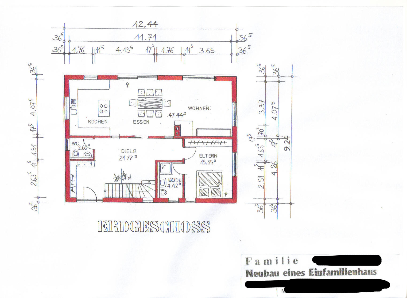
EG: Elternschlafzimmer, Wohn-/Essraum, Eingangsbereich
OG: 4 Kinderzimmer, Badezimmer, offenes Büro - kein Dachboden, sondern offen.
Büronutzung: nur Hobby (Fotografie, Fotobearbeitung)
Schlafgäste pro Jahr: 0
offene oder geschlossene Architektur: Offen
konservativ oder moderne Bauweise: Modern
offene Küche, Kochinsel: Ja
Anzahl Essplätze: 10
Kamin: klares Jein
Musik/Stereowand: Nein
Balkon, Dachterrasse: Nein
Garage, Carport: Nein
weitere Wünsche:
- In den Keller soll eine Hobbywerkstatt für Fahrräder und Vespa-Roller kommen. Zusätzlich soll ein Abstellraum für Fahrräder und Alltags-Roller vorhanden sein – dieser soll durch eine Abgrabung befahrbar sein. (offene Abgrabung, nicht zu steil)
- Besonderheiten/Tagesablauf:
Das Haus wird über den ganzen Tag hinweg belebt, da ich im Schichtdienst tätig (Früh- /Spät- /Nachtdienst) bin - daher haben wir keinen „normalen“ Tagesablauf. Zudem besuchen unsere Kinder ab dem 3. Lebensjahr vormittags den Kindergarten - ansonsten keinerlei Fremdbetreuung. Ab Mittag sind wir damit meist alle zuhause.
Hausentwurf
Von wem stammt die Planung: Do-it-Yourself
Was gefällt besonders?
- Der große und offene Familienlebensraum im EG, der komplett auf Süden ausgerichtet ist = sehr hell, auch im Winter bei tiefstehender Sonne haben wir keinen Schattenwurf durch angrenzender Gebäude/Objekte.
- Zudem Morgen- und Abendsonne im Familienbereich.
- Jedes Kinderzimmer hat zwei Fenster, welche die Räume sehr hell und gut lüftbar machen.
- Der Garten im Süden ist aufgrund der nördlichen Lage des Hauses innerhalb unseres Grundstückes sehr nutzbar, vor allem für die Kinder.
- Die Unterbringung der vier fast gleichgroßen Kinderzimmer im OG, der den Kindern einen Rückzugsort bietet, inkl. eigenem Bad.
- Weiter gefällt uns der offene, großzügige und helle Eingangsbereich, in dem man Gäste ungedrängt begrüßen kann.
- Die Unterbringung der Vespa-Werkstatt und Vespa-Sammlung im Wohnhaus und die Befahrbarkeit von außen.
Was gefällt nicht?
- kein direkter Blick auf die Alpen
verbindliches Preisangebot lt. Architekt/Baufirma: 351.000€
Persönliches Preislimit für Haus und Keller, inkl Ausstattung: 400.000€
favorisierte Heiztechnik: Erdgasheizung
Wenn Ihr verzichten müsst, auf welche Details/Ausbauten
-könnt Ihr verzichten: -
-könnt Ihr nicht verzichten: -
---------------
Servus und Grüß Gott aus dem Allgäu,
an dieser Stelle zuerst ein großes Lob und ein herzliches Dankeschön für all die guten Beiträge und Ratschläge und Einsichten hier in diesem Forum! Eine ganz tolle Leistung und die rege Beteiligung hier ist wirklich mehr als hilfreich! Danke!
Nun möchte auch ich die Gelegenheit nutzen und unseren Hausbau vorstellen. Ziel ist es, einen vertieften Dialog zu beginnen um daraus zu lernen. Nicht mehr und nicht weniger! Kritische und hinterfragende Beiträge sind herzlichst Willkommen! (Kritikfähigkeit und Beratungsoffenheit sind unsererseits vorhanden!)
Kurzer Crashkurs zu unserem Hausbau, bzw. unserer Planung, welche uns schon seit gut 5 Jahren begleitet:
Im Jahr 2011 haben wir uns bei der Stadt für einen Grundstück hier bei uns in XXXXXXX im Allgäu beworben. Geplant war es, im Jahr 2013 ein Neubaugebiet auf einer ehemaligen Obstplantage auszuweisen.
Im Jahr 2015 war es nach tierschutzdiskussionsbedingten* Verzögerungen dann soweit - Mitte Juni haben wir eine Zusage für einen Bauplatz bekommen. Das Baugebiet besteht jetzt aus 36 Bauplätzen und es gab etwa 560 Bewerber. Zur Auswahl eines Grundstückes wurden wir ins Rathaus eingeladen und glücklicherweise war unser Wunschgrundstück noch zu haben! Dies hat uns sehr gefreut, da uns erst beim Termin mitgeteilt wurde, welche Grundstücke noch zu haben waren. Daher haben wir im Vorfeld des Termins besprochen, welches Grundstück uns am besten gefällt und welche als Alternative herhalten könnten. Seit Mitte November sind wir dann offiziell als Grundstückseigentümer eingetragen worden.
Da wir uns nun gedanklich seit fünf Jahren mit dem Hausbau befassen, halte ich unsere Planung und die Vorgehensweise mittlerweile für durchdacht und bodenständig. Und ich bin ehrlich gesagt sehr froh, dass wir diese Verzögerungen "erleiden" mussten. In den vergangenen fünf Jahren hat sich sehr viel in unserem Leben verändert, was viele ungeahnte Folgen nach sich getragen hat:
- Wir haben zwei Kinder bekommen und wünschen uns noch zwei weitere Kinder.
- Das kreditfreie Leben hat es mir ermöglicht, für ein Jahr aus dem Berufsleben auszusteigen und eine Weiterbildung in Vollzeit zu absolvieren. Dieser Umstand bringt jetzt einen großen Vorteil im Berufsleben mit sich und führte auch zu einer Optimierung der Einkommenssituation.
- Es hat sich ein weiteres Hobby entwickelt, das ich nicht mehr missen möchte.
- ...
Zusammengefasst hätten wir 2011 ein ganz anderes Haus benötigt als jetzt und wir wären zudem ganz anders an die Finanzierung gegangen: Unerfahrener und unwissend in Bezug auf den Finanzbedarf des Lebensmodells "Familie". Mit anderen Worten: Diese fremdverschuldete Verzögerung war unser großes Glück!
Nun zu unserer Planung und dem angefügtem Grundriss:
Wir haben unser Budget ausgelotet und festgestellt, dass wir unser "Traumhaus" - also ein Haus, das unseren aktuellen Bedürfnisse bzw. Idealvorstellungen in Sachen Raumaufteilung und -Größe entspricht - realisieren können. Das ist bis jetzt ein sehr schöner Gedanke und wir freuen uns sehr darüber. Wir haben ein Haus geplant, das wir JETZT und die kommenden 20 Jahre benötigen - für die Blüte unseres Lebens eben! Wie wir die vier Kinderzimmer im OG nutzen, wenn unsere Kinder später mal ausziehen ist uns jetzt nicht bekannt und ehrlich gesagt auch nicht so wichtig.
Die Grundrissplanung ist überwiegend auf einen hellen Lebensraum für die Familie ausgerichtet. Die Kinder sollen sich aber auch zurückziehen können und wir möchten einen großen Esstisch platzieren können. Zudem wünschen wir einen großzügigen Eingangsbereich. Des Weiteren benötige ich für mein Hobby (Fotografie) einen Computerstellplatz, bzw. ein kleines Büro, welches wir im Bereich "Diele" des OG umsetzen werden (= Eckschreibtisch soll dort stehen, wo jetzt der Sessel eingezeichnet ist).
Diesen Ansprüchen hat sich letztendlich vieles untergeordnet und wir sind mit dem angefügten Grundriss sehr zufrieden.
Bei der Grundstücksplanung / -Aufteilung sind folgende Dinge noch nicht berücksichtigt:
- Wir haben aktuell ein Auto und dafür einen Stellplatz geplant. Ziel ist es, es bei einem Auto zu belassen! Sollte es aber nicht anders gehen, müssen wir einen weiteren Stellplatz "nachrüsten", auf dem wir das Auto abstellen.
- Ich möchte in den nächsten Jahren ein weiteres Hobby verfolgen: Astronomie - dazu brauche ich evtl. einen geeigneten Stellplatz für ein Teleskop, idealerweise einen Pavillon im Garten.
Wir sind auf Eure Meinungen und Input gespannt!
Vielen Dank im Voraus für eure Beteiligung!
Viele Grüße,
Familie Allgäuer
PS:
Aktueller Stand: Bauvertrag steht jetzt zur Unterzeichnung an. Mir war es wichtig, jedes Detail VOR der Unterschrift zu besprechen und in den Vertrag zu nehmen. Es ging um Details wie Material der Wasserleitungen (Edelstahl), Treppenstufenhöhe (17,5cm) usw. Dies hat jetzt insgesamt noch vier Wochen gedauert, war mir persönlich aber sehr wichtig. Vertrauen zu Architekt und Baufirma = 100%ig!
* Konkret ging es um eine Krötenart, die das Baugebiet regelmässig durchwandert. Direkt an das Baugebiet grenzt ein Weiher, der als Naturschutzgebiet gilt.



Größe des Grundstücks: 516 qm
Hanglage: Nein
Grundriss: 157,5 qm
GF: 280 qm
Baufenster: ca: 14 x 10m
Randbebauung: Nein (3m Abstand)
Anzahl Stellplatz: 1
Geschossigkeit: 2 Vollgeschosse
Dachform: Satteldach
Stilrichtung: nicht vorgeschrieben
Ausrichtung: Traufständig (Dachfirst verläuft Richtung Ost/West)
Maximale Höhen/Begrenzungen: WH 5,2 – 5,7m / FH: 7,2m
weitere Vorgaben:
- Auf dem Grundstück befinden sich Wurzelstöcke aus vorheriger Nutzung (Obstbaumplantage).
- Duldung des Kinderspielplatzes und Grenze an landwirtschaftliche Flächen.
- Anpflanzung eines Obstbaumes heimischer Herkunft im Garten.
Anforderungen der Bauherren
Stilrichtung, Dachform, Gebäudetyp: Modern, Satteldach, Familienhaus
Keller, Geschosse: Keller, zwei Vollgeschosse
Anzahl der Personen und Alter: Aktuell 4 Personen, (32, 32, 3, 1, -> + 2 weitere Kinder gewünscht)
Raumbedarf im
EG: Elternschlafzimmer, Wohn-/Essraum, Eingangsbereich
OG: 4 Kinderzimmer, Badezimmer, offenes Büro - kein Dachboden, sondern offen.
Büronutzung: nur Hobby (Fotografie, Fotobearbeitung)
Schlafgäste pro Jahr: 0
offene oder geschlossene Architektur: Offen
konservativ oder moderne Bauweise: Modern
offene Küche, Kochinsel: Ja
Anzahl Essplätze: 10
Kamin: klares Jein
Musik/Stereowand: Nein
Balkon, Dachterrasse: Nein
Garage, Carport: Nein
weitere Wünsche:
- In den Keller soll eine Hobbywerkstatt für Fahrräder und Vespa-Roller kommen. Zusätzlich soll ein Abstellraum für Fahrräder und Alltags-Roller vorhanden sein – dieser soll durch eine Abgrabung befahrbar sein. (offene Abgrabung, nicht zu steil)
- Besonderheiten/Tagesablauf:
Das Haus wird über den ganzen Tag hinweg belebt, da ich im Schichtdienst tätig (Früh- /Spät- /Nachtdienst) bin - daher haben wir keinen „normalen“ Tagesablauf. Zudem besuchen unsere Kinder ab dem 3. Lebensjahr vormittags den Kindergarten - ansonsten keinerlei Fremdbetreuung. Ab Mittag sind wir damit meist alle zuhause.
Hausentwurf
Von wem stammt die Planung: Do-it-Yourself
Was gefällt besonders?
- Der große und offene Familienlebensraum im EG, der komplett auf Süden ausgerichtet ist = sehr hell, auch im Winter bei tiefstehender Sonne haben wir keinen Schattenwurf durch angrenzender Gebäude/Objekte.
- Zudem Morgen- und Abendsonne im Familienbereich.
- Jedes Kinderzimmer hat zwei Fenster, welche die Räume sehr hell und gut lüftbar machen.
- Der Garten im Süden ist aufgrund der nördlichen Lage des Hauses innerhalb unseres Grundstückes sehr nutzbar, vor allem für die Kinder.
- Die Unterbringung der vier fast gleichgroßen Kinderzimmer im OG, der den Kindern einen Rückzugsort bietet, inkl. eigenem Bad.
- Weiter gefällt uns der offene, großzügige und helle Eingangsbereich, in dem man Gäste ungedrängt begrüßen kann.
- Die Unterbringung der Vespa-Werkstatt und Vespa-Sammlung im Wohnhaus und die Befahrbarkeit von außen.
Was gefällt nicht?
- kein direkter Blick auf die Alpen
verbindliches Preisangebot lt. Architekt/Baufirma: 351.000€
Persönliches Preislimit für Haus und Keller, inkl Ausstattung: 400.000€
favorisierte Heiztechnik: Erdgasheizung
Wenn Ihr verzichten müsst, auf welche Details/Ausbauten
-könnt Ihr verzichten: -
-könnt Ihr nicht verzichten: -
---------------
Servus und Grüß Gott aus dem Allgäu,
an dieser Stelle zuerst ein großes Lob und ein herzliches Dankeschön für all die guten Beiträge und Ratschläge und Einsichten hier in diesem Forum! Eine ganz tolle Leistung und die rege Beteiligung hier ist wirklich mehr als hilfreich! Danke!
Nun möchte auch ich die Gelegenheit nutzen und unseren Hausbau vorstellen. Ziel ist es, einen vertieften Dialog zu beginnen um daraus zu lernen. Nicht mehr und nicht weniger! Kritische und hinterfragende Beiträge sind herzlichst Willkommen! (Kritikfähigkeit und Beratungsoffenheit sind unsererseits vorhanden!)
Kurzer Crashkurs zu unserem Hausbau, bzw. unserer Planung, welche uns schon seit gut 5 Jahren begleitet:
Im Jahr 2011 haben wir uns bei der Stadt für einen Grundstück hier bei uns in XXXXXXX im Allgäu beworben. Geplant war es, im Jahr 2013 ein Neubaugebiet auf einer ehemaligen Obstplantage auszuweisen.
Im Jahr 2015 war es nach tierschutzdiskussionsbedingten* Verzögerungen dann soweit - Mitte Juni haben wir eine Zusage für einen Bauplatz bekommen. Das Baugebiet besteht jetzt aus 36 Bauplätzen und es gab etwa 560 Bewerber. Zur Auswahl eines Grundstückes wurden wir ins Rathaus eingeladen und glücklicherweise war unser Wunschgrundstück noch zu haben! Dies hat uns sehr gefreut, da uns erst beim Termin mitgeteilt wurde, welche Grundstücke noch zu haben waren. Daher haben wir im Vorfeld des Termins besprochen, welches Grundstück uns am besten gefällt und welche als Alternative herhalten könnten. Seit Mitte November sind wir dann offiziell als Grundstückseigentümer eingetragen worden.
Da wir uns nun gedanklich seit fünf Jahren mit dem Hausbau befassen, halte ich unsere Planung und die Vorgehensweise mittlerweile für durchdacht und bodenständig. Und ich bin ehrlich gesagt sehr froh, dass wir diese Verzögerungen "erleiden" mussten. In den vergangenen fünf Jahren hat sich sehr viel in unserem Leben verändert, was viele ungeahnte Folgen nach sich getragen hat:
- Wir haben zwei Kinder bekommen und wünschen uns noch zwei weitere Kinder.
- Das kreditfreie Leben hat es mir ermöglicht, für ein Jahr aus dem Berufsleben auszusteigen und eine Weiterbildung in Vollzeit zu absolvieren. Dieser Umstand bringt jetzt einen großen Vorteil im Berufsleben mit sich und führte auch zu einer Optimierung der Einkommenssituation.
- Es hat sich ein weiteres Hobby entwickelt, das ich nicht mehr missen möchte.
- ...
Zusammengefasst hätten wir 2011 ein ganz anderes Haus benötigt als jetzt und wir wären zudem ganz anders an die Finanzierung gegangen: Unerfahrener und unwissend in Bezug auf den Finanzbedarf des Lebensmodells "Familie". Mit anderen Worten: Diese fremdverschuldete Verzögerung war unser großes Glück!
Nun zu unserer Planung und dem angefügtem Grundriss:
Wir haben unser Budget ausgelotet und festgestellt, dass wir unser "Traumhaus" - also ein Haus, das unseren aktuellen Bedürfnisse bzw. Idealvorstellungen in Sachen Raumaufteilung und -Größe entspricht - realisieren können. Das ist bis jetzt ein sehr schöner Gedanke und wir freuen uns sehr darüber. Wir haben ein Haus geplant, das wir JETZT und die kommenden 20 Jahre benötigen - für die Blüte unseres Lebens eben! Wie wir die vier Kinderzimmer im OG nutzen, wenn unsere Kinder später mal ausziehen ist uns jetzt nicht bekannt und ehrlich gesagt auch nicht so wichtig.
Die Grundrissplanung ist überwiegend auf einen hellen Lebensraum für die Familie ausgerichtet. Die Kinder sollen sich aber auch zurückziehen können und wir möchten einen großen Esstisch platzieren können. Zudem wünschen wir einen großzügigen Eingangsbereich. Des Weiteren benötige ich für mein Hobby (Fotografie) einen Computerstellplatz, bzw. ein kleines Büro, welches wir im Bereich "Diele" des OG umsetzen werden (= Eckschreibtisch soll dort stehen, wo jetzt der Sessel eingezeichnet ist).
Diesen Ansprüchen hat sich letztendlich vieles untergeordnet und wir sind mit dem angefügten Grundriss sehr zufrieden.
Bei der Grundstücksplanung / -Aufteilung sind folgende Dinge noch nicht berücksichtigt:
- Wir haben aktuell ein Auto und dafür einen Stellplatz geplant. Ziel ist es, es bei einem Auto zu belassen! Sollte es aber nicht anders gehen, müssen wir einen weiteren Stellplatz "nachrüsten", auf dem wir das Auto abstellen.
- Ich möchte in den nächsten Jahren ein weiteres Hobby verfolgen: Astronomie - dazu brauche ich evtl. einen geeigneten Stellplatz für ein Teleskop, idealerweise einen Pavillon im Garten.
Wir sind auf Eure Meinungen und Input gespannt!
Vielen Dank im Voraus für eure Beteiligung!
Viele Grüße,
Familie Allgäuer
PS:
Aktueller Stand: Bauvertrag steht jetzt zur Unterzeichnung an. Mir war es wichtig, jedes Detail VOR der Unterschrift zu besprechen und in den Vertrag zu nehmen. Es ging um Details wie Material der Wasserleitungen (Edelstahl), Treppenstufenhöhe (17,5cm) usw. Dies hat jetzt insgesamt noch vier Wochen gedauert, war mir persönlich aber sehr wichtig. Vertrauen zu Architekt und Baufirma = 100%ig!
* Konkret ging es um eine Krötenart, die das Baugebiet regelmässig durchwandert. Direkt an das Baugebiet grenzt ein Weiher, der als Naturschutzgebiet gilt.
N
nordanney01.02.16 10:49Normalerweise schreibe ich nichts zu Entwürfen, da das nicht mein Thema ist.
Mir fällt allerdings die überdimensionierte Diele (Ihr sagt großzügig dazu) auf. Wenn Ihr eine noch größere Familie plant, würde ich mir eher Gedanken machen, wie ich die Familie großzügig in den Wohnraum bekommen anstatt für teures Geld eine doch nur selten genutzte (wofür eigentlich außer Jacken/Schuhe an- und ausziehen?) Diele zu opfern.
Mir fällt allerdings die überdimensionierte Diele (Ihr sagt großzügig dazu) auf. Wenn Ihr eine noch größere Familie plant, würde ich mir eher Gedanken machen, wie ich die Familie großzügig in den Wohnraum bekommen anstatt für teures Geld eine doch nur selten genutzte (wofür eigentlich außer Jacken/Schuhe an- und ausziehen?) Diele zu opfern.
D
Doc.Schnaggls01.02.16 12:06Hallo,
im Vergleich zum gesamten Haus find ich persönlich die Diele im EG auch etwas groß.
Die Bäder hingegen wären mir, sowohl im EG als auch im OG, zu eng.
Die von der Diele in den Wohn / Essbereich vorgesehene Schiebetür erscheint mir, zumindest optisch (in Relation zur Größe der Diele) sehr schmal. Hier würde ich zumindest eine zweiflüglige Schiebetür einbauen lassen - das dürfte einen wesentlich großzügigeren Eindruck vermitteln.
Wäre es mein Haus, würde ich darüber nachdenken, die Treppe gegen eine halbgewendelte Treppe auszutauschen. Das spart Platz und man könnte damit die Diele zu Gunsten des Elternbades zu verkleinern.
Die Kinderzimmer haben eine ordentliche Größe. Allerdings würde ich bei vier Kinderzimmern zumindest ein zweites Waschbecken im Kinderbad einplanen.
Grüße,
Dirk
im Vergleich zum gesamten Haus find ich persönlich die Diele im EG auch etwas groß.
Die Bäder hingegen wären mir, sowohl im EG als auch im OG, zu eng.
Die von der Diele in den Wohn / Essbereich vorgesehene Schiebetür erscheint mir, zumindest optisch (in Relation zur Größe der Diele) sehr schmal. Hier würde ich zumindest eine zweiflüglige Schiebetür einbauen lassen - das dürfte einen wesentlich großzügigeren Eindruck vermitteln.
Wäre es mein Haus, würde ich darüber nachdenken, die Treppe gegen eine halbgewendelte Treppe auszutauschen. Das spart Platz und man könnte damit die Diele zu Gunsten des Elternbades zu verkleinern.
Die Kinderzimmer haben eine ordentliche Größe. Allerdings würde ich bei vier Kinderzimmern zumindest ein zweites Waschbecken im Kinderbad einplanen.
Grüße,
Dirk
B
backbone2301.02.16 12:35Die beiden Dielen sind ja wohl ein Witz. Der Luftraum ist aus meiner Sicht unnötig und nutzlos.
Groß geschätzt sind das 25 qm verschenkter Raum mit entsprechenden Kosten (~40.000 € ?!) - Wahnsinn!
Edit: Ok, die große Diele unten war gewünscht, aber warum? Sie bietet nicht viel Stellfächen für Möbel oder ähnlich.
Diele oben soll noch Computerarbeitsplatz darstellen. Naja, würde ich wohl wo anders unterbringen. Luftraum dennoch unnötig.
Ihr habt einen Architekten?! Warum plant der nicht?
Groß geschätzt sind das 25 qm verschenkter Raum mit entsprechenden Kosten (~40.000 € ?!) - Wahnsinn!
Edit: Ok, die große Diele unten war gewünscht, aber warum? Sie bietet nicht viel Stellfächen für Möbel oder ähnlich.
Diele oben soll noch Computerarbeitsplatz darstellen. Naja, würde ich wohl wo anders unterbringen. Luftraum dennoch unnötig.
Ihr habt einen Architekten?! Warum plant der nicht?
Ähnliche Themen