Einfamilienhaus mit Satteldach, ohne Keller - Feedback erwünscht

4,80 Stern(e) 5 Votes
Zuletzt aktualisiert 22.11.2025
Sie befinden sich auf der Seite 6 der Diskussion zum Thema: Einfamilienhaus mit Satteldach, ohne Keller - Feedback erwünscht
>> Zum 1. Beitrag <<

Y

ypg

Über Geschmack lässt sich sehr lange streiten. Daher bitte ich um Hinweise auf Fehler oder Verbesserungen.
Ich glaube, an der Reaktion zu erkennen, nicht, dass Ihr offen für Verbesserungen bzw. unsere Fehlernennungen seid.
Mal zum Programm: ich blende mal die verschieden merkwürdigen Türen aus, so bleiben dennoch nur Screenshots, die in erster Linie verzerren, aber auch schon auf den ersten Blick aufzeigen, wo die Mängel sind (zB Fensterpositionen), der Blick im Wohnzimmer. Wir haben eigentlich nur das geschrieben, was auf Deinen Bildern offensichtlich ist.
Ich verkneif mir jetzt Wiederholungen.

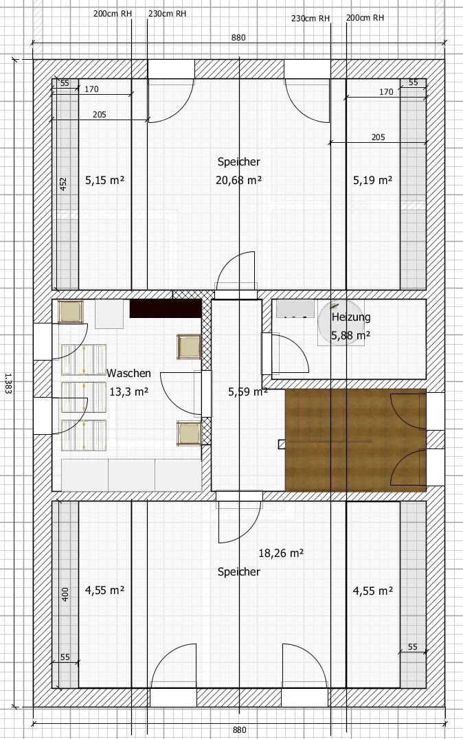
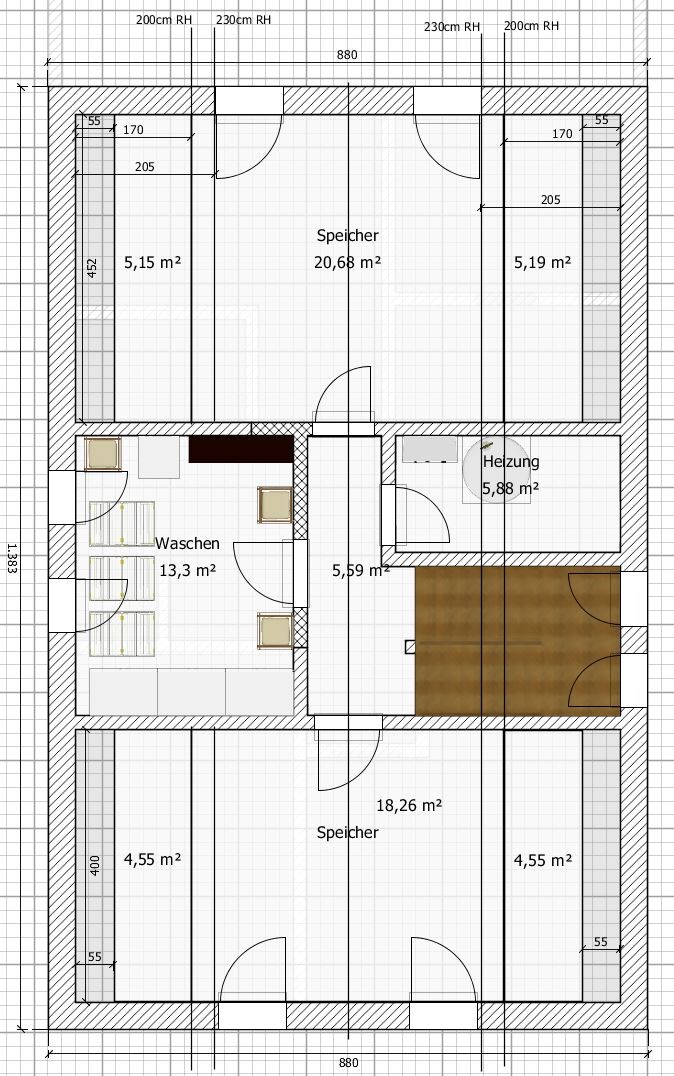
Im Übrigen: die Treppe wird ins Dachgeschoss nicht funktionieren ohne Kopfweh.
 
kaho674

kaho674

Sorry, wurde vielleicht schon gesagt, deswegen möglicherweise Wiederholung:

1. Schlafzimmer und Ankleide tauschen.
2. Raum unter der Treppe im Flur gibt es bei Euch kaum. Da Schränke einzubauen ist viel Arbeit und wenig Nutzen. Aber ok.
3. Platz im HAR ist selbst für Jacken keiner mehr.
4. Riesen Esstisch find ich cool, obwohl das ganz schön auf Kante gestrickt wirkt.
5. Zugang Küche ausschließlich durchs WZ find ich blöd.
6. Kind 3 wird regelmäßig durch die WC-Spülung und Kind 2 durch die Dusche wach.
7. Bei 5 Menschlein braucht es eine 2. Dusche. Ist die Ankleide so wichtig?
 
Y

ypg

Und: ich zitiere mal aus meinem hier im Forum angepinnten Beitrag:

Der grösste Fehler ist, seinen eigenen ungewohnten Arbeitsprozess zu verherrlichen und sich jegliche Wände, die auf Papier wachsen, schön zu sehen und Fehler schön zu reden. Das ist leider bei den 3D-Programmen ein Risiko und macht oft immun gegen Kritik.
 
Zuletzt aktualisiert 22.11.2025
Im Forum Grundrissplanung / Grundstücksplanung gibt es 2535 Themen mit insgesamt 87989 Beiträgen


Ähnliche Themen zu Einfamilienhaus mit Satteldach, ohne Keller - Feedback erwünscht
Nr.ErgebnisBeiträge
1"notwendige Treppe" zum Dachgeschoss - Seite 423
2Grundrissfrage: Tausch gerader Treppe durch L-Treppe 31
3Grundrissfrage, Treppe, Fenster, Ausrichtung - Seite 212
4Treppe Grundriss Planung, Auftritt und Unterzug - Seite 221
5Grundrissfrage, Garage, Treppe 33
6Dusche auf Podest und Schubfach 13
7Neubau: Dachgeschoss Ausbaufähig oder nicht - Seite 214
8Einfamilienhaus ca. 150 qm Grundriss - Treppe wie planen? 65
9Stadtvilla mit gerader Treppe, offene moderne Bauweise, 140m² - Seite 218
10Treppe im Wohnzimmer als Hype - Pro & Contra? - Seite 426
11 2 Vollgeschosse, Durchgang Garage, Hauswirtschaftsraum unter Treppe 25
12Grundrissplanung: Badezimmer Dusche 47
13Durchbruch Bad und Ankleide ohne Türe? 12
14Meinung /Grundriss/Einfamilienhaus 150qm/Satteldach/50cm Drempel/25 Neigung 25
15Wohin mit der Treppe? Dachausbau Walmdachbungalow - Seite 319
16Treppe im Flur, Grundriss steht eigentlich schon :o( 20
17Was ist bei einer Treppe beachten/Unterschie Wendeluing 22
18Frage zu Grundriss, insbesondere Treppe 13
19Technikraum so klein wie möglich - Unter der Treppe? 10
20Treppe ohne Geländer geliefert und ich muss nun nachzahlen? - Seite 319

Oben