
11ant
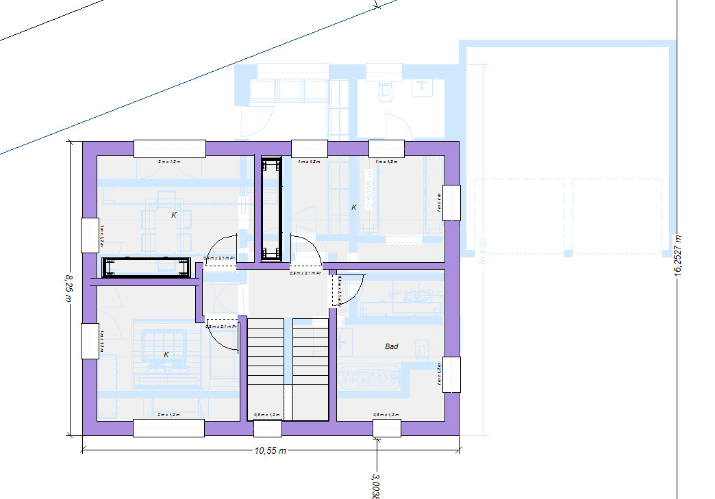
Ich hätte auch gerne, daß mein Bauer eine seiner Kühe von Milch pur auf Kakao umrüstet. Er hat mir davon abgeraten, die Erfüllung dieses Wunsches zur Bedingung meines Glücks zu machen.Er möchte auf jeden Fall die Doppelgarage und die Podesttreppe haben.
Eben: es ist eigentlich nur schwierig. Unlösbar wird es erst, wenn man noch Zusatzbedingungen auftürmt.Es ist sehr schwierig unsere Vorstellungen auf diesem Grundstück und mit vorgegebenen Einschränkungen zu realisieren.