ᐅ Einfamilienhaus mit barrierefreier Einliegerwohnung im EG
Erstellt am: 30.09.2025 12:03
WoodyXYZ 30.09.2025 12:03
Moin zusammen,
wir stehen aktuell vor der Herausforderung, ein Einfamilienhaus für eine 4-köpfige Familie sowie eine barrierefreie Einliegerwohnung im EG für meine Eltern zu planen. Das Ganze auf einem 550qm Grundstück (ziemlich eben) mit der Anforderung den Garten nicht zuzubauen.
Bebauungsplan/Einschränkungen
Größe des Grundstücks: ca. 550qm
Hang: nein (ca. 0,5m Höhenunterschied auf 22m Grundstücksbreite)
Grundflächenzahl: 0,4
Geschossflächenzahl: n.a.
Baufenster, Baulinie und -grenze: 16m West-Ost + jeweils 3m Grenzbebauung, 14m Nord-Süd, 5m Abstand vor dem Haus zus Straße
Randbebauung: Ja (Norden: öffentliche Zufahrt, Westen und Süden: Fahrradweg, Osten: Nachbarbebauung mit einer Doppelhaushälfte, aktuell noch leer)
Anzahl Stellplatz: 4
Geschossigkeit: 2
Dachform: 0-35°
Stilrichtung: kein Walmdach und kein Bauhausstil
Ausrichtung: Südausrichtung (Garten)
Maximale Höhen/Begrenzungen: Traufhöhe 5,5-7m, Gebäudehöhe 10m
weitere Vorgaben: Der Bebauungsplan ließt sich so als müsste die Traufhöhe min. 5,5m sein. Unser Entwurf beinhaltet einen einstöckigen "Anbau", der diesen Wert unterschreitet. Lauf Bauamt bezieht sich die Traufhöhe nur auf geneigte Dächer und selbst ein Bungalow dürfte dort gebaut werden.
Anforderungen der Bauherren
Stilrichtung, Dachform, Gebäudetyp: Gerne ausgebautes Dachgeschoss mit Satteldach
Keller, Geschosse: ohne Keller, 2 Vollgeschosse + Dachgeschoss
Anzahl der Personen, Alter: 4 für die Hauptwohnung (2x41, 9, 7) und 2 für die Einliegerwohnung (Ü80)
Raumbedarf im EG, OG:
EG: Barrierefreie Einliegerwohnung mit Schlafzimmer, Dusch-Bad, Wohnzimmer, Küche, optional kleine Abstellkammer (ca. 50qm), Hauptwohnung: Wohn-Ess-Bereich, offene Küche, (kleine Backup-Küche/Vorrat), Gäste-WC, Technikraum
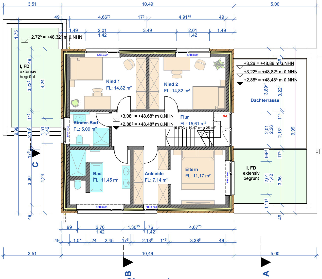
OG: 2 Kinderzimmer je ca. 15qm im Süden, Schlafzimmer mit West-Fenster plus kleine Ankleide, Bad mit T-Lösung für alle erreichbar, Kinder-Bad mit Dusche
DG: Allzweckraum (Fitness, Büro) + Abstellfläche wegen des fehlenden Kellers
Büro: Familiennutzung oder Homeoffice? HO
Schlafgäste pro Jahr
offene oder geschlossene Architektur: eher offen (offene Galerien sind damit nicht gemeint
konservativ oder moderne Bauweise: Ja
offene Küche, Kochinsel: 2x ja
Anzahl Essplätze: 6 in der Hauptwohnung, 2(-4) in der Einliegerwohnung
Kamin: nope
Musik/Stereowand: keine Ahnung was das sein soll
Balkon, Dachterrasse: Dachterrasse als nice to have (siehe auch Entwurf)
Garage, Carport: Gerne auf der Ostseite neben der Einliegerwohnung
Nutzgarten, Treibhaus: nope
weitere Wünsche/Besonderheiten/Tagesablauf, gern auch Begründungen, warum dieses oder das nicht sein soll
Hausentwurf
Von wem stammt die Planung:
-Architekt
Was gefällt besonders? Warum?
Persönliches Preislimit fürs Haus, inkl. Ausstattung: 600.000
favorisierte Heiztechnik: Sole-WP (Nahwärmenetz ist verpflichtend)
Wenn Ihr verzichten müsst, auf welche Details/Ausbauten
-könnt Ihr verzichten: Garage
-könnt Ihr nicht verzichten: Einliegerwohnung
Warum ist der Entwurf so geworden, wie er jetzt ist? ZB
Entsprechende/Welche Wünsche wurden vom Architekten umgesetzt?
Primär auf Basis unserer Wünsche. Diese wurden weitestgehend schon umgesetzt, aber insb. die Anordnung/Umsetzung mit Technikraum, Treppe, Vorrat stört uns extrem, zumindest auf Papier, da man es sich diesen Teil nur schwer vorstellen kann.
Was macht ihn in Euren Augen besonders gut oder schlecht?
Halbwegs kompakt, dadurch dass nicht die gesamte Erdgeschossfläche auch im OG überbaut wurde

Und hier natürlich noch der Bebauungsplan inkl. unseres Grundstücks.



wir stehen aktuell vor der Herausforderung, ein Einfamilienhaus für eine 4-köpfige Familie sowie eine barrierefreie Einliegerwohnung im EG für meine Eltern zu planen. Das Ganze auf einem 550qm Grundstück (ziemlich eben) mit der Anforderung den Garten nicht zuzubauen.
Bebauungsplan/Einschränkungen
Größe des Grundstücks: ca. 550qm
Hang: nein (ca. 0,5m Höhenunterschied auf 22m Grundstücksbreite)
Grundflächenzahl: 0,4
Geschossflächenzahl: n.a.
Baufenster, Baulinie und -grenze: 16m West-Ost + jeweils 3m Grenzbebauung, 14m Nord-Süd, 5m Abstand vor dem Haus zus Straße
Randbebauung: Ja (Norden: öffentliche Zufahrt, Westen und Süden: Fahrradweg, Osten: Nachbarbebauung mit einer Doppelhaushälfte, aktuell noch leer)
Anzahl Stellplatz: 4
Geschossigkeit: 2
Dachform: 0-35°
Stilrichtung: kein Walmdach und kein Bauhausstil
Ausrichtung: Südausrichtung (Garten)
Maximale Höhen/Begrenzungen: Traufhöhe 5,5-7m, Gebäudehöhe 10m
weitere Vorgaben: Der Bebauungsplan ließt sich so als müsste die Traufhöhe min. 5,5m sein. Unser Entwurf beinhaltet einen einstöckigen "Anbau", der diesen Wert unterschreitet. Lauf Bauamt bezieht sich die Traufhöhe nur auf geneigte Dächer und selbst ein Bungalow dürfte dort gebaut werden.
Anforderungen der Bauherren
Stilrichtung, Dachform, Gebäudetyp: Gerne ausgebautes Dachgeschoss mit Satteldach
Keller, Geschosse: ohne Keller, 2 Vollgeschosse + Dachgeschoss
Anzahl der Personen, Alter: 4 für die Hauptwohnung (2x41, 9, 7) und 2 für die Einliegerwohnung (Ü80)
Raumbedarf im EG, OG:
EG: Barrierefreie Einliegerwohnung mit Schlafzimmer, Dusch-Bad, Wohnzimmer, Küche, optional kleine Abstellkammer (ca. 50qm), Hauptwohnung: Wohn-Ess-Bereich, offene Küche, (kleine Backup-Küche/Vorrat), Gäste-WC, Technikraum
OG: 2 Kinderzimmer je ca. 15qm im Süden, Schlafzimmer mit West-Fenster plus kleine Ankleide, Bad mit T-Lösung für alle erreichbar, Kinder-Bad mit Dusche
DG: Allzweckraum (Fitness, Büro) + Abstellfläche wegen des fehlenden Kellers
Büro: Familiennutzung oder Homeoffice? HO
Schlafgäste pro Jahr
offene oder geschlossene Architektur: eher offen (offene Galerien sind damit nicht gemeint
konservativ oder moderne Bauweise: Ja
offene Küche, Kochinsel: 2x ja
Anzahl Essplätze: 6 in der Hauptwohnung, 2(-4) in der Einliegerwohnung
Kamin: nope
Musik/Stereowand: keine Ahnung was das sein soll
Balkon, Dachterrasse: Dachterrasse als nice to have (siehe auch Entwurf)
Garage, Carport: Gerne auf der Ostseite neben der Einliegerwohnung
Nutzgarten, Treibhaus: nope
weitere Wünsche/Besonderheiten/Tagesablauf, gern auch Begründungen, warum dieses oder das nicht sein soll
- Backup-Küche ist ein langersehnter Wunsch meiner Frau und sollte nicht fehlen.
- Technikraum muss mindestens 3x1,9m Stell- und Arbeitsfläche für die WP und den WWS des Nahwärmenetzes bereitstellen. In dem Raum soll zudem die Wäsche gewaschen und getrocknet werden
- Kinderzimmer Richtung Süden sind Pflicht mit ca. 15qm
- Baukörper nicht zu sehr in die Tiefe bauen, um damit Fläche im Südgarten zu verringern
Hausentwurf
Von wem stammt die Planung:
-Architekt
Was gefällt besonders? Warum?
- Wohn-Ess-Bereich plus Küche, da es unseren Vorgaben entspricht. Haben wir so in einem Musterhaus gesehen und waren uns direkt einig, dass es so aussehen soll.
- Einliegerwohnung ist barrierefrei ausgeführt, Raum-Aufteilung passt eigentlich auch
- Am OG haben wir eigentlich nicht auszusetzen
- Beide Kinderzimmer sind gleich groß (ca. 15qm) und nach Süden ausgerichtet
- Schlafzimmer im (Nord-)Westen mit Fenster Richtung Westen
- 2 Badezimmer wie gewünscht
- ausgebautes Dachgeschoss als Zusatzfläche für HO, Fitness und Hobby.
- Baukörper ist mit 10m nicht allzu tief so dass ausreichend Garten übrig bleibt
- Vorrat (Backup) scheint mir etwas zu groß
- Der Teil im Bereich Treppenaufgang, Tür zum Technikraum und Gäste-WC wirkt irgendwie gequetscht/unharmonisch
- Gerade Treppe gefällt uns eigentlich gut, aber sie ist komplett versteckt, so dass man eigentlich nur den Aufgang sieht
- Im DG die Treppe auf der westlichen Giebelseite, hätte sie am liebsten mittig im Raum oder zumindest auf nördlichen Traufseite.
- keine Möglichkeit von der Einliegerwohnung in den Technikraum (z. B. um Wäsche zu waschen) zu kommen.
- Gartenhäuschen im Südwesten, kommt wenn überhaupt in den Nordwesten für Gartengeräte und Fahrräder
Persönliches Preislimit fürs Haus, inkl. Ausstattung: 600.000
favorisierte Heiztechnik: Sole-WP (Nahwärmenetz ist verpflichtend)
Wenn Ihr verzichten müsst, auf welche Details/Ausbauten
-könnt Ihr verzichten: Garage
-könnt Ihr nicht verzichten: Einliegerwohnung
Warum ist der Entwurf so geworden, wie er jetzt ist? ZB
Entsprechende/Welche Wünsche wurden vom Architekten umgesetzt?
Primär auf Basis unserer Wünsche. Diese wurden weitestgehend schon umgesetzt, aber insb. die Anordnung/Umsetzung mit Technikraum, Treppe, Vorrat stört uns extrem, zumindest auf Papier, da man es sich diesen Teil nur schwer vorstellen kann.
Was macht ihn in Euren Augen besonders gut oder schlecht?
Halbwegs kompakt, dadurch dass nicht die gesamte Erdgeschossfläche auch im OG überbaut wurde
Und hier natürlich noch der Bebauungsplan inkl. unseres Grundstücks.
nordanney 30.09.2025 12:59
203qm ohne Dachgeschoss + Garage, Stellplätze, Dachterrasse, Außenanlagen und ggf. Dachausbau und Baunebenkosten. Budget 600k
==> Da passt etwas nicht zusammen. In der Größe fehlen noch mindestens 750k, um sicher bauen zu können (ohne Dachgeschossausbau)
Grundrisse können andere besser.
==> Da passt etwas nicht zusammen. In der Größe fehlen noch mindestens 750k, um sicher bauen zu können (ohne Dachgeschossausbau)
Grundrisse können andere besser.
Arauki11 30.09.2025 14:14
Generell würde ich niemals einen Hauseingang direkt in der Zufahrt zur Garage bauen. Es isgt eine Gefahr, die sich nicht relativieren lässt und ein Eingangsbereich sollte mMn auch etwas Einladendes haben.
Die kollidierenden Türen im Essbereich/Küche lassen ja die Probleme leicht erkennen, zudem ist das eine mehr als enge, um nicht zu sagen zu enge Kiste dort. Wenn es so eng sein muss würde ich wohl eher offen wohnen wollen und alle Zwischenwände rausnehmen außer Bad+Schlafen, um dieses Problem zu lösen. Bereits die Eingangstür knallt ja an die nach auch noch nach außen aufgehende Badtür. Dass Ganze deutett hier schon auf eine eher unglückliche Planung hin.
Unser Bad im EG hat auch 7qm aber da ist eine richtig großzügige Walkin-Dusche drin und ein 2m breiter Waschtisch. Hier sehe ich auf 7qm Alles beengt. WC kollidiert mit Dusche, die wiederum hat einen unnötigen Eckeinstieg. Die Küche dürfte wohl sehr dunkel werden. Warum parkt ihr denn nichtn bneben dem eingezeichneten Fahrzeug und lasst die Garage dort weg? Wahrscheinlich würde ich hier auch die Wand zwischen Wohnzimmer+Küche weglassen bzw. diese halbhoch ausführen, um Licht und Raumgefühl zu bekommen und dieses Türengedingse zu eliminieren; das finde ich geradezu schlimm.
Übrigens ist aktuell der Flur auch stockdunkel.
Ich würde vlt. Wohnen+Essen tauschen, der Esstisch am Fenster ist doch schön und zur Küche nen offene Tresenlösung, um die Türen wegzubekommen.
Die Hauptwohnung finde ich so eigentlich ganz pfiffi, wobei ich mir im EG immer eine Dusche reinbauen würde. Die WC-Wand zum Hauswirtschaftsraum etwas verschieben gibt dieser her, auch dass man dann die WC-Tür dann nach innen öffnen könnte.
Ich würde mir noch überlegen, ob ichb tatsächlich meine Wohnzimmer-Möbel so stehen haben möchte, insbes. die starke Ausrichtung zum TV oder ob ich nicht lieber in den Garten schauen möchte.
Sofern ich ein Kinderbad im OG hätte würde ich mein Bad als Ensuite ausführen mit direktem Zugang aus dem Schlafzimmer. Wir haben das bei uns so uns im Nachhinein gefällt es uns dehr gut, weil es sich fast anfühlt, wie ein eigenes Apartment. Auch wenn es so bezeichnet ist habt ihr aktuell auch keine Ankleide, sondern nur einen schmalen Schrankdurchgangsraum. Eine wirkliche Ankleide bräuchte Raum für Sitzen und auch mehr bewegen, da wäre mir ein schön gestaltetes, großzügiges Schlafzimmer deutlich lieber.
Bad mit T ist wohl der aktuelle Trend. Ich sage mal so, wenn das Baden tatsächlich die Hauptsache ist in diesem Raum UND man das Ganze tatsächlich auch superschick gestaltet mag das ja nett sein. Ansonsten foinde ich das T in den meisten Fällen eher ohne Vorteil, zumal ja Schlafen/Ankleide vlt. etwas Platz brauchen könnten.
Ob ich die sicherlich kostenintensive Dachterrassenlösung mit Geländer uvm. bräuchte glaube ich nicht, denn wer geht denn ins OG und dort vom Treppenhaus auf eine Terrasse, um eine Tasse Kaffee zu trinken. Dieses Geld würde ich lieber in andere Wohnqualität investieten wie z.B. Klimaanlage, Raffstore, Terrassenenüberdachung etc.
Die kollidierenden Türen im Essbereich/Küche lassen ja die Probleme leicht erkennen, zudem ist das eine mehr als enge, um nicht zu sagen zu enge Kiste dort. Wenn es so eng sein muss würde ich wohl eher offen wohnen wollen und alle Zwischenwände rausnehmen außer Bad+Schlafen, um dieses Problem zu lösen. Bereits die Eingangstür knallt ja an die nach auch noch nach außen aufgehende Badtür. Dass Ganze deutett hier schon auf eine eher unglückliche Planung hin.
Unser Bad im EG hat auch 7qm aber da ist eine richtig großzügige Walkin-Dusche drin und ein 2m breiter Waschtisch. Hier sehe ich auf 7qm Alles beengt. WC kollidiert mit Dusche, die wiederum hat einen unnötigen Eckeinstieg. Die Küche dürfte wohl sehr dunkel werden. Warum parkt ihr denn nichtn bneben dem eingezeichneten Fahrzeug und lasst die Garage dort weg? Wahrscheinlich würde ich hier auch die Wand zwischen Wohnzimmer+Küche weglassen bzw. diese halbhoch ausführen, um Licht und Raumgefühl zu bekommen und dieses Türengedingse zu eliminieren; das finde ich geradezu schlimm.
Übrigens ist aktuell der Flur auch stockdunkel.
Ich würde vlt. Wohnen+Essen tauschen, der Esstisch am Fenster ist doch schön und zur Küche nen offene Tresenlösung, um die Türen wegzubekommen.
Die Hauptwohnung finde ich so eigentlich ganz pfiffi, wobei ich mir im EG immer eine Dusche reinbauen würde. Die WC-Wand zum Hauswirtschaftsraum etwas verschieben gibt dieser her, auch dass man dann die WC-Tür dann nach innen öffnen könnte.
Ich würde mir noch überlegen, ob ichb tatsächlich meine Wohnzimmer-Möbel so stehen haben möchte, insbes. die starke Ausrichtung zum TV oder ob ich nicht lieber in den Garten schauen möchte.
Sofern ich ein Kinderbad im OG hätte würde ich mein Bad als Ensuite ausführen mit direktem Zugang aus dem Schlafzimmer. Wir haben das bei uns so uns im Nachhinein gefällt es uns dehr gut, weil es sich fast anfühlt, wie ein eigenes Apartment. Auch wenn es so bezeichnet ist habt ihr aktuell auch keine Ankleide, sondern nur einen schmalen Schrankdurchgangsraum. Eine wirkliche Ankleide bräuchte Raum für Sitzen und auch mehr bewegen, da wäre mir ein schön gestaltetes, großzügiges Schlafzimmer deutlich lieber.
Bad mit T ist wohl der aktuelle Trend. Ich sage mal so, wenn das Baden tatsächlich die Hauptsache ist in diesem Raum UND man das Ganze tatsächlich auch superschick gestaltet mag das ja nett sein. Ansonsten foinde ich das T in den meisten Fällen eher ohne Vorteil, zumal ja Schlafen/Ankleide vlt. etwas Platz brauchen könnten.
Ob ich die sicherlich kostenintensive Dachterrassenlösung mit Geländer uvm. bräuchte glaube ich nicht, denn wer geht denn ins OG und dort vom Treppenhaus auf eine Terrasse, um eine Tasse Kaffee zu trinken. Dieses Geld würde ich lieber in andere Wohnqualität investieten wie z.B. Klimaanlage, Raffstore, Terrassenenüberdachung etc.
WoodyXYZ schrieb:Nö, was sollte daran schön sein. Die Außenansicht ist es nicht und der Mehrpreis sicherlich sehr hoch, der Nutzen eher Null bzw. Minus, weil man das ja auch pflegen muss. Kann dieser Anbau nicht einfach z.B. wie ein angebauter Würfel mit Flachdach entstehen, den man dann vlt. noch bewusst besonders verkleidet (Holz, farbig o.ä.).
Balkon, Dachterrasse: Dachterrasse als nice to have (siehe auch Entwurf)
haydee 30.09.2025 15:30
Engstellen in der Einliegerwohnung wurden schon genannt. In Anbetracht des Alter der Bewohner würde ich auch Waschmaschine und Wäschetrockner erhöht planen. Zu eurem Teil kann man nicht viel sagen - Budget und Wohngröße passen nicht zusammen. Da muß der Rotstift angesetzt und alles geschrumpft werden - Einsparpotenzial ist vorhanden.
Nachdem die Bewohner der Einliegerwohnung die 80 überschritten haben - meinst du sie sind nach dem Bau noch fit genug um alleine zu wohnen. Ich sehe es bei mir wie schnell meine Senioren im Moment abbauen. Für alle 5 würde ich keine Wohnung mehr planen und bauen - ehr ein Pflegeheim
Nachdem die Bewohner der Einliegerwohnung die 80 überschritten haben - meinst du sie sind nach dem Bau noch fit genug um alleine zu wohnen. Ich sehe es bei mir wie schnell meine Senioren im Moment abbauen. Für alle 5 würde ich keine Wohnung mehr planen und bauen - ehr ein Pflegeheim
Arauki11 30.09.2025 16:13
haydee schrieb:
Nachdem die Bewohner der Einliegerwohnung die 80 überschritten haben - meinst du sie sind nach dem Bau noch fit genug um alleine zu wohnen. Ich sehe es bei mir wie schnell meine Senioren im Moment abbauen. Für alle 5 würde ich keine Wohnung mehr planen und bauen - ehr ein PflegeheimDas sehe ich anders.Natüprlich weiß man nicht, wie sich die Dinge entwickeln werden Meine Schwiegermutter ist nun 90 und wir haben das Thema Pflegeheim bzw. Pflege-WG aktuell. Das ist ja auch kein Selbstläufer und ein wirklich Schönes und noch in der Nähe zu finden, das dann auch noch Plätze frei hat ist noch weniger einfach.
Wir hätten sie beim Neubau, also sie 86 war, gerne hier mitaufgenommen und es eingeplant aber sie wollte partout zu keinem de Kinder, sondern ihr Leben lang selbstbestimmt leben. Heute würde sie das sicher anders sehen aber so wollte sie es.
Meine Mutter hatte fünf Schwestern und allesamt sind sie auf unterschiedlichste Weise und Unterstützung durch deren Kinder versorgt (mit Zuhilfenahme von ext. Hilfe/Pflege). Diese Kinder (heute auch schon teil. bis zu 80 Jahre alt) hatten auch alle Berufe und eigene Kinder etc. aber aus deren Tradition heraus wäre es nur schwer denkbar gewesen, die Eltern in ein Heim zu geben. Insofern sehe ich altersunabhängig auch hier beide Möglichkeiten bzw. die Notwendigkeit, das individuell zu klären. Natürlich hat das auch seine Grenzen, das ist mir schon klar aufgrund meiner eigenen Erfahrungen damit aber ich glaube, dass es dazwischen vielerlei Möglichkeiten gibt, wenn man das möchte.
Ich will das gar nicht bewerten, sondern nur darstellen, dass es eben oftmals schon gehen würde.
haydee 30.09.2025 18:39
Ich denke ich habe die ganze Bandbreite und rotiere seit 12 Jahren damit jeder in seine 4 Wänden bleiben kann. Es kommt der Punkt an dem es nicht mehr geht. Gerade aktuell wird aus rüstig wir brauchen wohl eine Pflegekraft.
Eine 24 Stunden Kraft schiebt den Punkt es geht nicht mehr noch lange raus - da fehlt der Raum für eine.
Es ist auch keine direkte Verbindungstüre vorgesehen um Nachts mal schnell zu schauen oder die/den Senior sein Essen zu geben oder die Socken anzuziehen.
Eine 24 Stunden Kraft schiebt den Punkt es geht nicht mehr noch lange raus - da fehlt der Raum für eine.
Es ist auch keine direkte Verbindungstüre vorgesehen um Nachts mal schnell zu schauen oder die/den Senior sein Essen zu geben oder die Socken anzuziehen.
Ähnliche Themen