Einfamilienhaus Hanglang mit Keller für 2 Personen inkl. Home Office und Hobbyräume

4,50 Stern(e) 6 Votes
Zuletzt aktualisiert 08.01.2026
Sie befinden sich auf der Seite 12 der Diskussion zum Thema: Einfamilienhaus Hanglang mit Keller für 2 Personen inkl. Home Office und Hobbyräume
>> Zum 1. Beitrag <<

W

wibble

Guten Abend,
Ich melde mich auch wieder zurück.
Nach Durchsprechen mit dem Architekt und einigen Anpassungen hier die Grundrisse.

Ground Floor = EG
Second Floor = Keller
First Floor = OG

Lässt sich leider am Handy nicht anpassen.

Bin erfreut über eure Tipps.

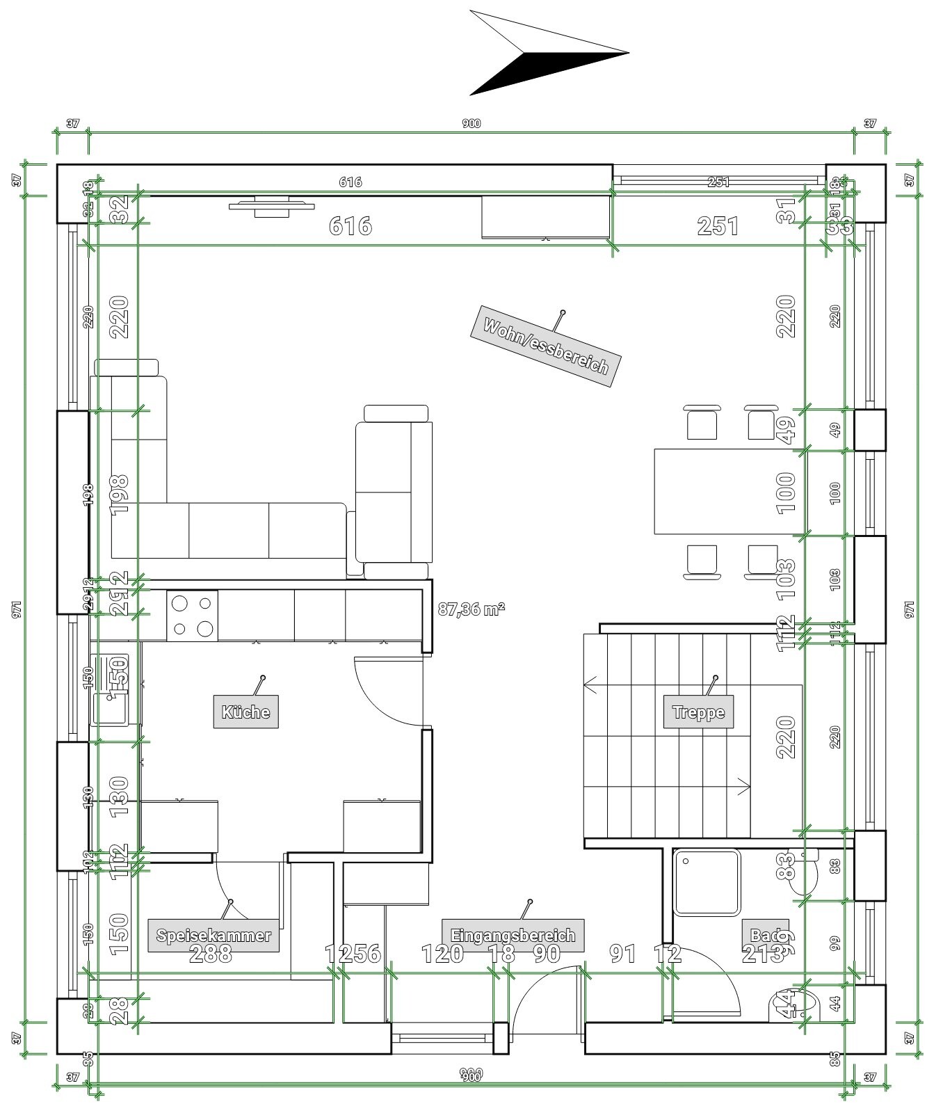
Detaillierter Grundrissplan eines Wohnbereichs mit Küche, Treppe, Speisekammer und Eingang


Grundriss eines Hauses mit Bad, Schlafzimmer, Ankleide, Waschraum, Treppe und Garten


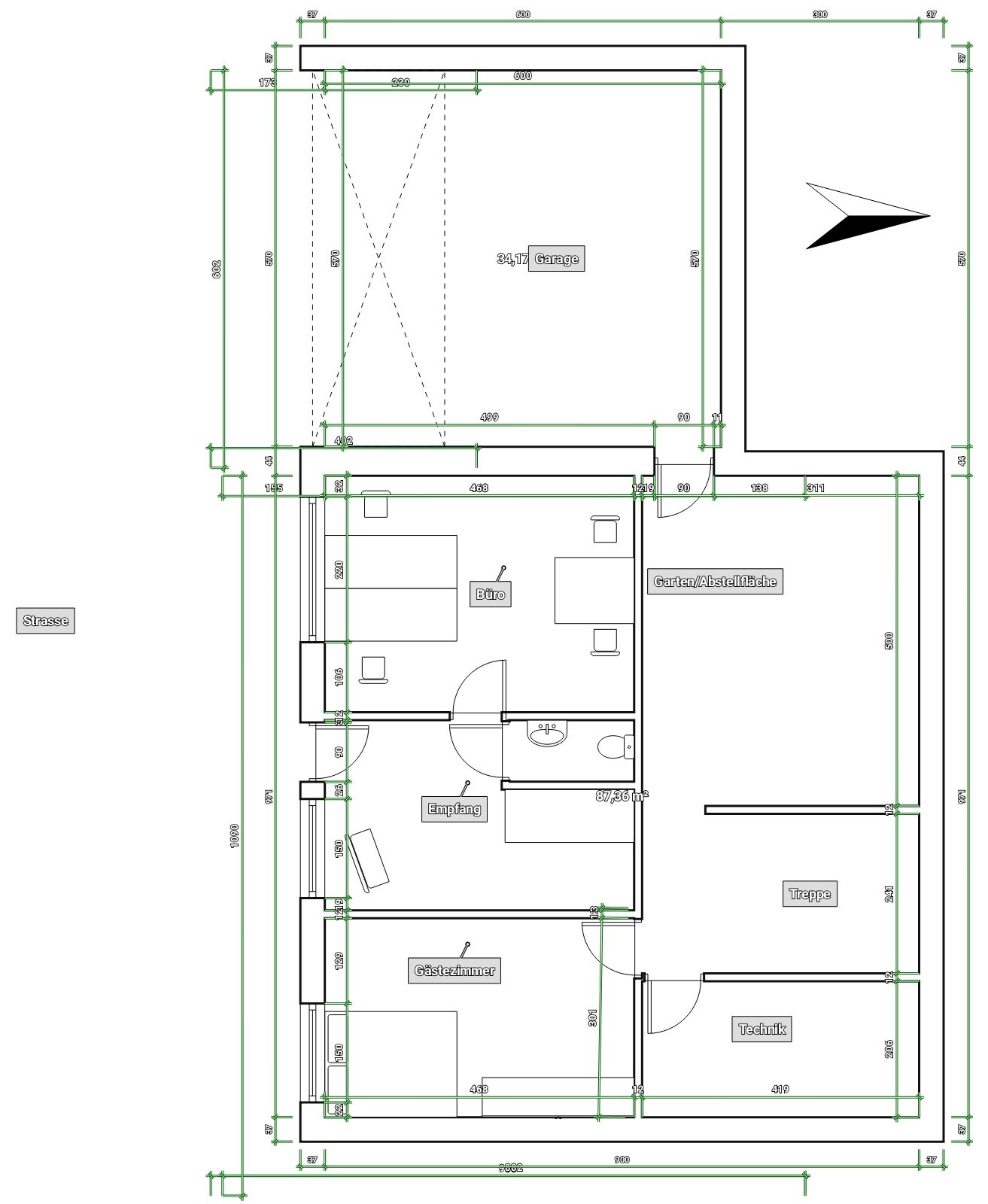
Grundriss eines Hauses: Garage, Büro, Empfang, Gästezimmer, Treppe, Technik, Garten/Abstellfläche.
 
W

wibble

Anbei das Haus mit Garage eingezeichnet auf dem Grundstück.
Die Skizze ist genordet, also oben ist Norden.
Es ist keine Firstrichtung vorgegeben.
Im Osten ist ein Nachbar mit Bungalow, im Süden ist die Straße. Im Osten ist ein Wanderweg und Grünstreifen, zusammen bestimmt mind. 5 Meter breit, der Gemeinde und da nebendran dann wieder ein Nachbar mit einem Bungalow. Im Norden ist Garten und danach Felder.

Handskizze einer technischen Zeichnung mit Kreissegment, roten Umrissen und Maßzahlen.
 
kaho674

kaho674

Also muss man sich das so vorstellen?:


Grundrissplan eines Hauses auf Bauzeichnung mit Geländevermaßung


Führt dann eine Treppe zum Haupteingang?
Wo ist die Terrasse?
Unten ist ja abgeschnitten. Man kann den Straßenverlauf nicht erkennen. Kommt Ihr so bequem in die Garage?
Ansonsten find ich's ganz gut. Das im Bad das WC immer nass wird, wenn man duscht, fänd ich blöd - oder ist das keine Walkin?
Gefangene Ankleide ist auch nicht meins - da würd ich den Zugang über die Ankleide machen zum Schlafzimmer.
Sehr spannend fänd ich hier die Gartengestaltung.
 
kaho674

kaho674

Tja, deswegen sind wohl einige verwirrt, denn dann ist die Skizze nicht genordet oder auf den Hausentwürfen die Nordpfeile falsch. Wie Du siehst, zeigt der Nordpfeil nach oben in meinem Versuch der Platzierung.
 
kbt09

kbt09

Ich vermute mal, dass der Nordpfeil in den Grundrisszeichnungen nicht penibel eingesetzt worden ist ... und so beschäftigt man sich dann halt erst mal mit etwas was bei eindeutiger Kennzeichnung nicht notwendig wäre.
 
Zuletzt aktualisiert 08.01.2026
Im Forum Grundrissplanung / Grundstücksplanung gibt es 2565 Themen mit insgesamt 88781 Beiträgen


Ähnliche Themen zu Einfamilienhaus Hanglang mit Keller für 2 Personen inkl. Home Office und Hobbyräume
Nr.ErgebnisBeiträge
1Bungalow mit 140qm und Garage im Grundriss - Seite 213
2Meinungen zum Grundriss Bungalow 42
3Grundriss Bungalow ca. 160m2 Wohnfläche 20
4Grundriss Bungalow 140qm - Anregungen? - Seite 393
5Grundriss Bungalow 160qm - Ihre Einschätzungen? 15
6Grundrissplanung Bungalow planen 46
7Entwurf Grundriss Bungalow - Eure Meinungen bitte! 14
8Grundriss Bungalow auf Bodenplatte ca 110 qm - Seite 457
9Lage von Haus & Garage im Baufenster planen *Vorplanung* - Seite 4129
10Grundrissplanungen Einfamilienhaus und Garage - Seite 232
11Bebaute Fläche: Gehören Garage / Carport zur bebauten Fläche? 19
12Bungalow Grundrissdiskussion 169 qm 14
13Grundriss Bungalow - Was gibt es zu beachten? - Seite 6164
14Grundriss Bungalow 150m² - Meinungen erwünscht - Seite 430
15Haus und Garage - Ideen für die Planung erwünscht - Seite 221
16Bungalow mit Satteldach, Randbebauung, 8×17 Meter - Seite 10143
17Grundriss 140 m2 Einfamilienhaus mit Garage - Hausausrichtung ok? 18
18Ehrliche Meinung zum Bungalow-Grundriss - ca. 175qm 46
19Stadtvilla 160-170 m², Problematik Anschluss Windfang mit Garage - Seite 332
20Grundrissplanung Einfamilienhaus (190 qm) mit Garage - Seite 218

Oben