Einfamilienhaus Hanglang mit Keller für 2 Personen inkl. Home Office und Hobbyräume

4,50 Stern(e) 6 Votes
Zuletzt aktualisiert 22.11.2025
Sie befinden sich auf der Seite 3 der Diskussion zum Thema: Einfamilienhaus Hanglang mit Keller für 2 Personen inkl. Home Office und Hobbyräume
>> Zum 1. Beitrag <<

W

wibble

Hab da eine Variante in vielen Fertighäusern gesehen, dass in manche Räume keine Decke eingezogen wird. sondern der Raum dann als ablagefläche verwendet wird. So haben wir uns das vorgestellt.
 
Climbee

Climbee

Bouldern ist nicht Hallenklettern - die Höhe ist völlig irrelevant. Gebouldert wird immer mit Absprunghöhe, unten liegt 'ne Matte und eben ohne Seil. Wichtiger sind Überhänge und geschickt geschraubte Routen, die interessante moves verlangen. Daher würde ich meine Boulderhöhle echt unter's Dach legen, da vielleicht noch ein paar Winkel einsetzen, damit man verschiedene Neigungen im Überhang hat und lieber auf einen offenen Dachstuhl verzichten. Oder als Gag offen lassen und mit einem offenen Grundriss vielleicht noch eine Kletterwand ins Haus holen *g* - geht alles und wenn die Gattin gerne schraubt...
Ihr kriegt dann als Einzugsgeschenk wohl eher ein Campus-Board anstatt Brot und Salz, oder?
 
Zuletzt bearbeitet:
W

wibble


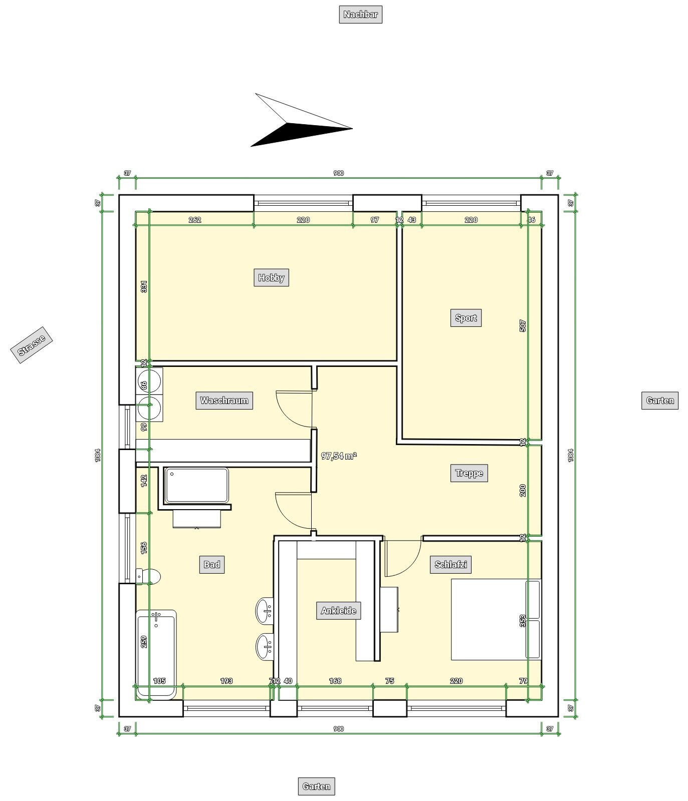
Grundriss eines Hauses mit Hobby- und Sportraum Bad Waschraum Ankleide Schlafraum Treppe Garten

Grundriss eines Hauses: Garage oben links, Technikraum, Garten/Abstellfläche und Keller.



Anbei überarbeitetes OG und Keller.
Wir haben uns entschieden das Büro aus dem OG und das Büro im KG zu verschmelzen um größere Räume im OG zu gewinnen. Dufch ein kleinwenig verschieben der Treppe gewinnt auch das Gästezimmer im EG ein paar qm.
 
W

wibble

Das ist ein Wohnkeller.

Was für Fahrzeuge sollen denn in die Garage ? 4 Meter kann nicht Dein Ernst sein?!
Wenn dann ists halb nutzt, halb Wohnkeller, wobei das halt der arbeitsbereich ist. Wenn der eh im Keller ist, kann er auch groß genug ausfallenDie Garage hab ich jetzt einfach mal zur verdeutlichung, wo sie hin soll, da hin getan. 4 Meter sind wahrscheinlich zu kurz, da mein Auto fast 4 Meter lang ist. Denke wird eher ne 6 Meter lange Garage.
 
Zuletzt aktualisiert 22.11.2025
Im Forum Grundrissplanung / Grundstücksplanung gibt es 2535 Themen mit insgesamt 87982 Beiträgen


Ähnliche Themen zu Einfamilienhaus Hanglang mit Keller für 2 Personen inkl. Home Office und Hobbyräume
Nr.ErgebnisBeiträge
1Plan Bau eines Einfamilienhaus, Knackpunkt Wohnkeller, Traum oder Alptraum - Seite 341
2Mehrfamilienhaus (3 WEH, Wohnkeller, Doppelgarage): Anregungen zur Planung 24
3Idee dank Wohnkeller nicht realisierbar? 17
4WU-Beton +Unterputzdosen im Wohnkeller - wie kann man das lösen? - Seite 635
5Wohnkeller ca. 80 qm, wie teuer? - Seite 322
6Unser Hanglage - Bodenplatte vs Wohnkeller 42
7Wohnkeller versus mehr Wohnfläche im EG 64
8Garage direkt an Einfamilienhaus. Fundament ausreichend? 20
9Hausfinanzierung - Haus, Garage und Bodenplatte ca. 290.000 EUR 11
10Technikraum in Garage einbauen? Ist dies möglich? 35
11Beheizung Garage. Was ist die beste / günstigste Lösung? 10
12Wo stellen wir Haus und Garage hin? 10
13Kostenschätzung Einfamilienhaus mit Garage 11
14Bungalow mit 140qm und Garage im Grundriss 13
15Erstes Angebot, 157m2 mit Keller, KFW 70, Garage 14
16Grundrissentwurf eines Passivhauses 170m² mit Garage - Seite 218
17Garage: Gestaltungsmöglichkeit des Daches, Erscheinungsbild 14
18Hausausrichtung / Hauseingang und Garage - Seite 214
19Begehbare Garage (Terrasse) 11
20Planung optimale Anordnung Haus, Garage und Einfahrt 13

Oben