ᐅ Einfamilienhaus - Entwurfsplanung - Bitte um Feedback
Erstellt am: 08.01.18 00:46
Hallo,
hiermit möchte ich einen neuen Thread bezüglich der Entwurfsplanung erstellen.
Früherer Thread: Einfamilienhaus - Meinungen zu unserem Entwurf
https://www.hausbau-forum.de/threads/Einfamilienhaus-Meinungen-zu-unserem-Entwurf.25622/
Anbei die wichtigsten Punkte:
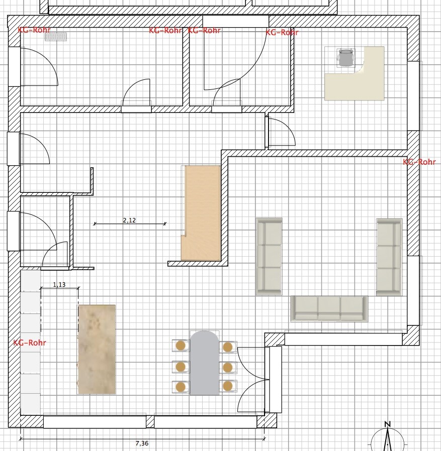
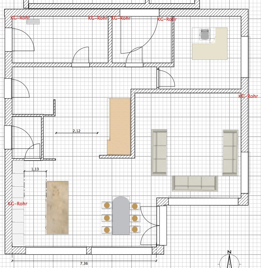
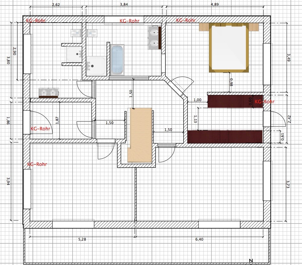
Bodenplatte bereits vorhanden: 12,49x12,49m2 und 30 cm stark.
Die Bodenplatte wurde von einem Energieberater und von einem Bauingenieur bezüglich Qualität geprüft. --> Keine Beanstandung
Positionen der KG Rohre ist im Bild "Grundplatte-KG Rohre" eingezeichnet.
Das Haus soll auf die bereits bestehende Bodenplatte gebaut werden. Ein Abriss ist nicht geplant.
Das Haus muß als ein E+1 mit einem Satteldach 22° Dachneigung bebaut werden.
Ursprünglicher Eingabeplan vom Vorbesitzer wurde beantragt, liegt aber noch nicht vor.
Eigener Eingabeplan vom Architekten vorhanden --> wurde jedoch von den meisten als nicht gelungen bewertet.
Negative Punkte im Eingabeplan:
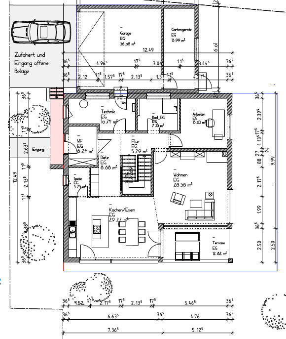
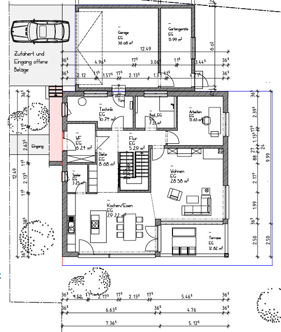
Das EG gefällt und von der Raumaufteilung ganz gut. Die Podesttreppe soll aber durch eine weniger Platz beanspruchende Variante ersetzt werden.
Die Treppe wurde Mittig ins Haus gesetzt, um die gewünschten Räume erstellen zu können.
------------------------------------------------------------------------
• Bebauungsplan/Einschränkungen
Größe des Grundstücks: Parzelle 35, 775m2
KFW 55
Hang: Ja
Grundflächenzahl: 0,35
Geschossflächenzahl: 0,80
Baufenster, Baulinie und –Grenze: siehe Lageplan
Randbebauung: Nein
Anzahl Stellplatz: 2
Geschossigkeit: 2
Dachform: Satteldach 22°
Stilrichtung / Ausrichtung: Süd - Südost
Maximale Höhen/Begrenzungen: Gebäudegröße Max = 14m x 10m + eingeschossiger Anbau von Länge, Max 10m Tiefe Max.3m
Anforderungen der Bauherren
Stilrichtung, Dachform, Gebäudetyp: Satteldach, 22° Neigung
Keller, Geschosse: ohne Keller, 2 Vollgeschosse
Anzahl der Personen, Alter: 4 Personen( 3xW, 1xM), 40, 38, 12, 9
Raumbedarf im EG, OG: Da ohne Keller, fällt der Raumbedarf pro Etage höher aus à 90m2
Büro: Familiennutzung oder Homeoffice? Geplant für Homeoffice, später eventuell Schlafzimmer / Schlafgäste pro Jahr: 6
Offene oder geschlossene Architektur: offene Architektur, zumindest im EG versucht
Konservativ oder moderne Bauweise: moderne Bauweise
Offene Küche, Kochinsel: offene Küche mit Kochinsel
Anzahl Essplätze: 1
Kamin: ja, soll im WZ platziert werden, da der Kamin nicht durch die Kinderzimmer verlaufen soll.
Musik/Stereowand: Nein
Balkon, Dachterrasse: Ja, nein
Garage, Carport: Doppelgarage mit Abtrennung
Weitere Wünsche/Besonderheiten/Tagesablauf, gern auch Begründungen, warum dieses oder das nicht sein soll: Photovoltaikanlage + eventuell Batteriespeicher, aktives Lüftungssystem mit Wärmerückgewinnung, Luftwärmetauscher, Zisterne
Hausentwurf
Von wem stammt die Planung: Architekt
-Planer eines Bauunternehmens: Nein
-Architekt: Ja
-Do-it-Yourself: Nein
Was gefällt besonders? Warum? EG, durch die offene Bauweise mit großen Fenstern
Was gefällt nicht? Warum? OG Aufteilung
Preisschätzung lt Architekt/Planer: ?Persönliches Preislimit fürs Haus, inkl Ausstattung:400 k€
Favorisierte Heiztechnik: Luftwärmetauscher mit Fußbodenheizung
Wenn Ihr verzichten müsst, auf welche Details/Ausbauten
-könnt Ihr verzichten: Batterie
Könnt Ihr nicht verzichten:
Warum ist der Entwurf so geworden, wie er jetzt ist? ZB
Standardentwurf vom Planer? Nein, Ideen anhand Musterhäuser + Grundrisse im Internet + Architekt
Was ist die wichtigste/grundlegende Frage zum Grundriss in 130 Zeichen zusammengefasst?
Wie kann ich das Haus besser aufgeteilt werden?










hiermit möchte ich einen neuen Thread bezüglich der Entwurfsplanung erstellen.
Früherer Thread: Einfamilienhaus - Meinungen zu unserem Entwurf
https://www.hausbau-forum.de/threads/Einfamilienhaus-Meinungen-zu-unserem-Entwurf.25622/
Anbei die wichtigsten Punkte:
Bodenplatte bereits vorhanden: 12,49x12,49m2 und 30 cm stark.
Die Bodenplatte wurde von einem Energieberater und von einem Bauingenieur bezüglich Qualität geprüft. --> Keine Beanstandung
Positionen der KG Rohre ist im Bild "Grundplatte-KG Rohre" eingezeichnet.
Das Haus soll auf die bereits bestehende Bodenplatte gebaut werden. Ein Abriss ist nicht geplant.
Das Haus muß als ein E+1 mit einem Satteldach 22° Dachneigung bebaut werden.
Ursprünglicher Eingabeplan vom Vorbesitzer wurde beantragt, liegt aber noch nicht vor.
Eigener Eingabeplan vom Architekten vorhanden --> wurde jedoch von den meisten als nicht gelungen bewertet.
Negative Punkte im Eingabeplan:
- EG+OG
- Treppe von EG und OG ist nicht korrekt dimensioniert
- EG
- Treppe unpassend, benötigt zu viel Platz, Eingang in den Wohnraum durch die Küche
- Durchgang Garage-Haus passt wegen dem Höhenunterschied nicht
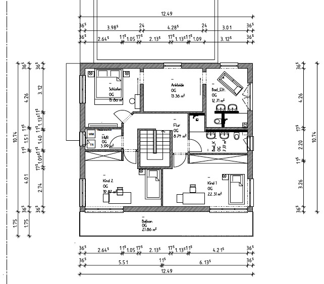
- OG
- Treppe unpassend, Raumaufteilung und dunkler Flur + Flurbreite von 1,10m
- Balkon über die gesamte Hauslänge
- Siehe Ansicht Osten bei unter dem Bild "Ansicht alle Seiten"
- Der Balkon wurde verlängert, da das OG um 70cm zum EG herausragt Somit wurde die daraus entstehenden Nase kaschiert. Im vorherigen Plan war der Balkon nur über dem Erker.
Das EG gefällt und von der Raumaufteilung ganz gut. Die Podesttreppe soll aber durch eine weniger Platz beanspruchende Variante ersetzt werden.
Die Treppe wurde Mittig ins Haus gesetzt, um die gewünschten Räume erstellen zu können.
- Technikraum an der eingezeichneten Position belassen, zwecks Anschlüsse, die am Wendehammer liegen.
- Position der Haustür wie eingezeichnet belassen --> Zugang von der Garage + Gäste die vor der Garage parken
- Zentrale Treppe zwecks kurzer Wege
- Treppenart: Eck, 1/4 gewendelt, 2x 1/4 gewendelt, gerade Treppe. Nicht gewünscht ist eine Wendeltreppe
- Modernes Haus mit offener Küche und Wohnraum
- Arbeitszimmer
- Gäste-WC mit Dusche
- Speisekammer für Gefriertruhe und Lebensmittel und Getränke
- Große Kinderzimmer --> wenn möglich Südseite
- Raum für begehbare Ankleide
- Separater Eingang Eltern-Schlafzimmer und nicht über Ankleide
- 1x Elternbad + 1x Kinderbad
- Kleiner Hauswirtschaftsraum-Raum (ca.6-8m2) im OG für Waschmaschine und Trockner
- Kachelofen, wobei der Kaminschacht nicht durch die Kinderzimmer gehen soll. Bevorzugt durchs Bad oder Hauswirtschaftsraum Raum
------------------------------------------------------------------------
• Bebauungsplan/Einschränkungen
Größe des Grundstücks: Parzelle 35, 775m2
KFW 55
Hang: Ja
Grundflächenzahl: 0,35
Geschossflächenzahl: 0,80
Baufenster, Baulinie und –Grenze: siehe Lageplan
Randbebauung: Nein
Anzahl Stellplatz: 2
Geschossigkeit: 2
Dachform: Satteldach 22°
Stilrichtung / Ausrichtung: Süd - Südost
Maximale Höhen/Begrenzungen: Gebäudegröße Max = 14m x 10m + eingeschossiger Anbau von Länge, Max 10m Tiefe Max.3m
Anforderungen der Bauherren
Stilrichtung, Dachform, Gebäudetyp: Satteldach, 22° Neigung
Keller, Geschosse: ohne Keller, 2 Vollgeschosse
Anzahl der Personen, Alter: 4 Personen( 3xW, 1xM), 40, 38, 12, 9
Raumbedarf im EG, OG: Da ohne Keller, fällt der Raumbedarf pro Etage höher aus à 90m2
Büro: Familiennutzung oder Homeoffice? Geplant für Homeoffice, später eventuell Schlafzimmer / Schlafgäste pro Jahr: 6
Offene oder geschlossene Architektur: offene Architektur, zumindest im EG versucht
Konservativ oder moderne Bauweise: moderne Bauweise
Offene Küche, Kochinsel: offene Küche mit Kochinsel
Anzahl Essplätze: 1
Kamin: ja, soll im WZ platziert werden, da der Kamin nicht durch die Kinderzimmer verlaufen soll.
Musik/Stereowand: Nein
Balkon, Dachterrasse: Ja, nein
Garage, Carport: Doppelgarage mit Abtrennung
Weitere Wünsche/Besonderheiten/Tagesablauf, gern auch Begründungen, warum dieses oder das nicht sein soll: Photovoltaikanlage + eventuell Batteriespeicher, aktives Lüftungssystem mit Wärmerückgewinnung, Luftwärmetauscher, Zisterne
Hausentwurf
Von wem stammt die Planung: Architekt
-Planer eines Bauunternehmens: Nein
-Architekt: Ja
-Do-it-Yourself: Nein
Was gefällt besonders? Warum? EG, durch die offene Bauweise mit großen Fenstern
Was gefällt nicht? Warum? OG Aufteilung
Preisschätzung lt Architekt/Planer: ?Persönliches Preislimit fürs Haus, inkl Ausstattung:400 k€
Favorisierte Heiztechnik: Luftwärmetauscher mit Fußbodenheizung
Wenn Ihr verzichten müsst, auf welche Details/Ausbauten
-könnt Ihr verzichten: Batterie
Könnt Ihr nicht verzichten:
Warum ist der Entwurf so geworden, wie er jetzt ist? ZB
Standardentwurf vom Planer? Nein, Ideen anhand Musterhäuser + Grundrisse im Internet + Architekt
Was ist die wichtigste/grundlegende Frage zum Grundriss in 130 Zeichen zusammengefasst?
Wie kann ich das Haus besser aufgeteilt werden?
Ähnliche Themen