Hallo Zusammen,
schon lange bin Mitglied bei euch im Forum und finde dieses unglaublich informativ und kompetent besetzt! 😉
Nun möchte auch ich meinem Traum von den eigenem vier Wänden verwirklichen und plane aktuell mein Haus.
Meine Freundin und ich , seit 6 Jahren zusammen wohnend, möchten auf dem Grundstück meiner Eltern bauen.
Vor einigen Wochen war dieses Grundstück noch zwei nebeneinander liegende Grundstücke, welche nun durch den Notar verschmolzen wurden und neu aufgeteilt werden können.
(Hintergrund: Ursprünglich lagen diese beiden schmalen Grundstücke nebeneinander, sollen nun jedoch wieder zu gleichen Teilen neu aufgeteilt werden, so dass hintereinander gebaut werden kann (In zweiter Reihe, durch einen Zufahrtsweg erreichbar).
Die Grundstücke haben eine Größe von jeweils ca. 480 qm.
(Insgesamt 960 qm. Angedacht ist, die Grundstücke zu gleichen Teilen neu aufteilen und eines dieser Grundstücke auf mich zu übertragen/überlassen.)
Ein Planungsbüro ist bereits gefunden und Dieses hat mir nun einen ersten Vorentwurf geschickt, welchen ich euch ebenfalls präsentieren möchte. (siehe nächster Beitrag)
Eine grobe Planung habe ich vorab selbst erstellt. (siehe Anhänger in diesem Beitrag)
Ich selbst bin mit dem ersten Entwurf des Architekten ehrlich gesagt nicht zufrieden, da er zu extrem von meinen Planungen abweicht und ich darin viele Nachteile sehe.
Ich bin für eure Kritik, Anregungen und Vorschläge sehr dankbar!
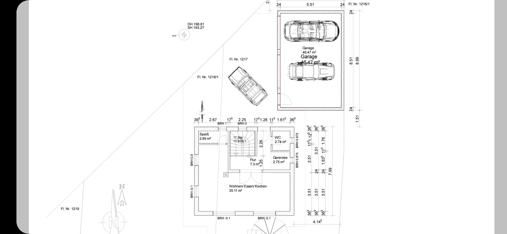
Größe des Grundstücks: ca. 960 qm (nach Aufteilung 480 qm)
Hang: Im Norden zur Einfahrt des Grundstücks. Wir möchten den Hof, Garage und Haus ziemlich auf das Niveau der Straße angleichen, um eine schöne Zufahrt/Ebene zu erreichen und eventuell eine Hebeanlage vom Haus Richtung Kanal zu vermeiden.
Anzahl Stellplatz: 2
Geschossigkeit: 2 + Dachboden, in welchem man in der Mitte stehen können sollte.
Dachform: Satteldach
Dachneigung: 35 Grad
Stilrichtung: Modern, Schlicht und günstig in der Durchführung
Anforderungen der Bauherren
Stilrichtung, Dachform, Gebäudetyp: klare Linien
Keller,
Geschosse: 2 Vollgeschosse inkl Dachboden und Keller
Anzahl der Personen: 2
Schlafgäste pro Jahr: selten
konservativ oder moderne Bauweise: modern, offen, Küche und Esszimmer offen. Wohnzimmer durch Schiebetüre trennbar (vorerst nur Ziegelsturz vorgesehen)
Küche, Kochinsel: Ja
Anzahl Essplätze: 4
Kamin: Ja
Balkon, Dachterrasse: Nein
Garage, Carport: Ja, 6m breit x 9m lang (auf Grenze zum Nachbarn gesetzt
Weitere Wünsche:
- siehe meine Planung 🙂
Was gefällt besonders? Warum?:
schlichter Baustil, günstige Bauweise?,
-Garten Richtung Süd/Westen
-Hof, Garage und Hauseingang im Norden
-Aufteilung der Räume
-Küche und Hausanschlssraum nah zur Straße (wenig Kosten und kurze Anbindung zu den Anschlüssen)
Was gefällt nicht? Warum?:
- Fenster Anordnung im gesamten Haus. (Symmetrie und Optik von außen ist mir schon wichtig)
- Aufteilung Küche und Speisekammer
- Windfang ja oder nein?
- Flur in den Geschossen vergrößern?
Ausstattung: Absoluter Standard, ohne sämtlichen Schnick Schnack
favorisierte Heiztechnik: Gasheizung
Wenn Ihr verzichten müsst, auf welche Details/Ausbauten -könnt Ihr verzichten:
- Eure Vorschläge sind gefragt! 😉
Warum ist der Entwurf so geworden, wie er jetzt ist?:
- Die Grundstücke machen es m. M. n. sehr begrenzt in der Verwirklichung?! Gerne offen für eure Vorschläge!
Was ist die wichtigste/grundlegende Frage zum Grundriss in 130 Zeichen zusammengefasst?
Wie gefällt euch meine Vorplanung und welche Verbesserungsvorschläge, Tipps, Anregungen habt ihr für mich?
Bitte bedenkt, dass ich die Abzahlung des Hauses, auch in schwierigen Zeiten, alleine stemmen möchte und daher nicht großartig luxuriös bauen möchte.
Ich freue mich wahnsinnig auf eure Meinungen und Kommentare! Falls Ihr Fragen habt, schreibt mir! 😉
Viele Grüße, Birdie







schon lange bin Mitglied bei euch im Forum und finde dieses unglaublich informativ und kompetent besetzt! 😉
Nun möchte auch ich meinem Traum von den eigenem vier Wänden verwirklichen und plane aktuell mein Haus.
Meine Freundin und ich , seit 6 Jahren zusammen wohnend, möchten auf dem Grundstück meiner Eltern bauen.
Vor einigen Wochen war dieses Grundstück noch zwei nebeneinander liegende Grundstücke, welche nun durch den Notar verschmolzen wurden und neu aufgeteilt werden können.
(Hintergrund: Ursprünglich lagen diese beiden schmalen Grundstücke nebeneinander, sollen nun jedoch wieder zu gleichen Teilen neu aufgeteilt werden, so dass hintereinander gebaut werden kann (In zweiter Reihe, durch einen Zufahrtsweg erreichbar).
Die Grundstücke haben eine Größe von jeweils ca. 480 qm.
(Insgesamt 960 qm. Angedacht ist, die Grundstücke zu gleichen Teilen neu aufteilen und eines dieser Grundstücke auf mich zu übertragen/überlassen.)
Ein Planungsbüro ist bereits gefunden und Dieses hat mir nun einen ersten Vorentwurf geschickt, welchen ich euch ebenfalls präsentieren möchte. (siehe nächster Beitrag)
Eine grobe Planung habe ich vorab selbst erstellt. (siehe Anhänger in diesem Beitrag)
Ich selbst bin mit dem ersten Entwurf des Architekten ehrlich gesagt nicht zufrieden, da er zu extrem von meinen Planungen abweicht und ich darin viele Nachteile sehe.
Ich bin für eure Kritik, Anregungen und Vorschläge sehr dankbar!
Größe des Grundstücks: ca. 960 qm (nach Aufteilung 480 qm)
Hang: Im Norden zur Einfahrt des Grundstücks. Wir möchten den Hof, Garage und Haus ziemlich auf das Niveau der Straße angleichen, um eine schöne Zufahrt/Ebene zu erreichen und eventuell eine Hebeanlage vom Haus Richtung Kanal zu vermeiden.
Anzahl Stellplatz: 2
Geschossigkeit: 2 + Dachboden, in welchem man in der Mitte stehen können sollte.
Dachform: Satteldach
Dachneigung: 35 Grad
Stilrichtung: Modern, Schlicht und günstig in der Durchführung
Anforderungen der Bauherren
Stilrichtung, Dachform, Gebäudetyp: klare Linien
Keller,
Geschosse: 2 Vollgeschosse inkl Dachboden und Keller
Anzahl der Personen: 2
Schlafgäste pro Jahr: selten
konservativ oder moderne Bauweise: modern, offen, Küche und Esszimmer offen. Wohnzimmer durch Schiebetüre trennbar (vorerst nur Ziegelsturz vorgesehen)
Küche, Kochinsel: Ja
Anzahl Essplätze: 4
Kamin: Ja
Balkon, Dachterrasse: Nein
Garage, Carport: Ja, 6m breit x 9m lang (auf Grenze zum Nachbarn gesetzt
Weitere Wünsche:
- siehe meine Planung 🙂
Was gefällt besonders? Warum?:
schlichter Baustil, günstige Bauweise?,
-Garten Richtung Süd/Westen
-Hof, Garage und Hauseingang im Norden
-Aufteilung der Räume
-Küche und Hausanschlssraum nah zur Straße (wenig Kosten und kurze Anbindung zu den Anschlüssen)
Was gefällt nicht? Warum?:
- Fenster Anordnung im gesamten Haus. (Symmetrie und Optik von außen ist mir schon wichtig)
- Aufteilung Küche und Speisekammer
- Windfang ja oder nein?
- Flur in den Geschossen vergrößern?
Ausstattung: Absoluter Standard, ohne sämtlichen Schnick Schnack
favorisierte Heiztechnik: Gasheizung
Wenn Ihr verzichten müsst, auf welche Details/Ausbauten -könnt Ihr verzichten:
- Eure Vorschläge sind gefragt! 😉
Warum ist der Entwurf so geworden, wie er jetzt ist?:
- Die Grundstücke machen es m. M. n. sehr begrenzt in der Verwirklichung?! Gerne offen für eure Vorschläge!
Was ist die wichtigste/grundlegende Frage zum Grundriss in 130 Zeichen zusammengefasst?
Wie gefällt euch meine Vorplanung und welche Verbesserungsvorschläge, Tipps, Anregungen habt ihr für mich?
Bitte bedenkt, dass ich die Abzahlung des Hauses, auch in schwierigen Zeiten, alleine stemmen möchte und daher nicht großartig luxuriös bauen möchte.
Ich freue mich wahnsinnig auf eure Meinungen und Kommentare! Falls Ihr Fragen habt, schreibt mir! 😉
Viele Grüße, Birdie
tomtom79 schrieb:
Die Bilder sind zu nix zu gebrauchen kannst du bitte Screenshot einfügen dankeHi Tom, vielen Dank für den Hinweis. Ich hab es auch gerade gesehen. Sorry. Ich werd versuchen baldmöglichst neue Bilder einzustellen.
Schönen Abend, Gruß Tom
Sehe ich es richtig, dass im #1 Deine Vorplanung,
In #3 die des Planers ist?
Die sind doch nahezu identisch!
Wer kommt denn von Euch auf die Idee zum teuren Nutzkeller und teurer Doppelgarage, wenn gespart werden muss?
Und wer hat gesagt, dass man einen studierten Mann die Ideen und Kreativität, wofür man ja als Kunde/Bauherr bezahlt, vorgreift und jeglichen Berufsstolz nimmt?
Ich finde das Haus für die Höhe zu klein bzw für die Größe zu hoch. Das Haus ragt in die Höhe wie Obelix‘ Hinkekstein.
In #3 die des Planers ist?
Die sind doch nahezu identisch!
Wer kommt denn von Euch auf die Idee zum teuren Nutzkeller und teurer Doppelgarage, wenn gespart werden muss?
Und wer hat gesagt, dass man einen studierten Mann die Ideen und Kreativität, wofür man ja als Kunde/Bauherr bezahlt, vorgreift und jeglichen Berufsstolz nimmt?
Ich finde das Haus für die Höhe zu klein bzw für die Größe zu hoch. Das Haus ragt in die Höhe wie Obelix‘ Hinkekstein.
Birdie84 schrieb:
Ich selbst bin mit dem ersten Entwurf des Architekten ehrlich gesagt nicht zufrieden, da er zu extrem von meinen Planungen abweicht und ich darin viele Nachteile sehe.
Der Architekt hat wunschgemaess Deinen Entwurf nachgezeichnet und Deine Fehler weitgehend behoben.
Welche Nachteile siehst Du? Beschreibe die doch mal.
Keine Hoehenangaben! Ich sehe an Deinen Entwurf 3 Stufen hoch zur Terrasse. Warum?
Ähnliche Themen