5
57Christian22.03.25 13:41Hallo zusammen,
wir beschäftigen uns intensiv mit dem Bau eines Einfamilienhaus mit Keller in Hanglage und hätten gerne euer Feedback
Bebauungsplan/Einschränkungen
Größe des Grundstücks: 517qm
Hang: ja
Grundflächenzahl: 0.3
Geschossflächenzahl: 0.3
Anzahl Stellplatz: 0/1
Geschossigkeit: 1.5
Dachform: Satteldach
Maximale Höhen/Begrenzungen
weitere Vorgaben: Dach 28-45°. 75cm Kniestock (etwas anders definiert)
Anforderungen der Bauherren
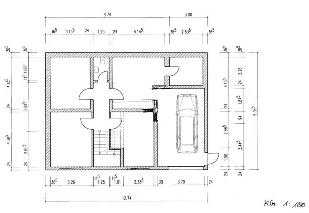
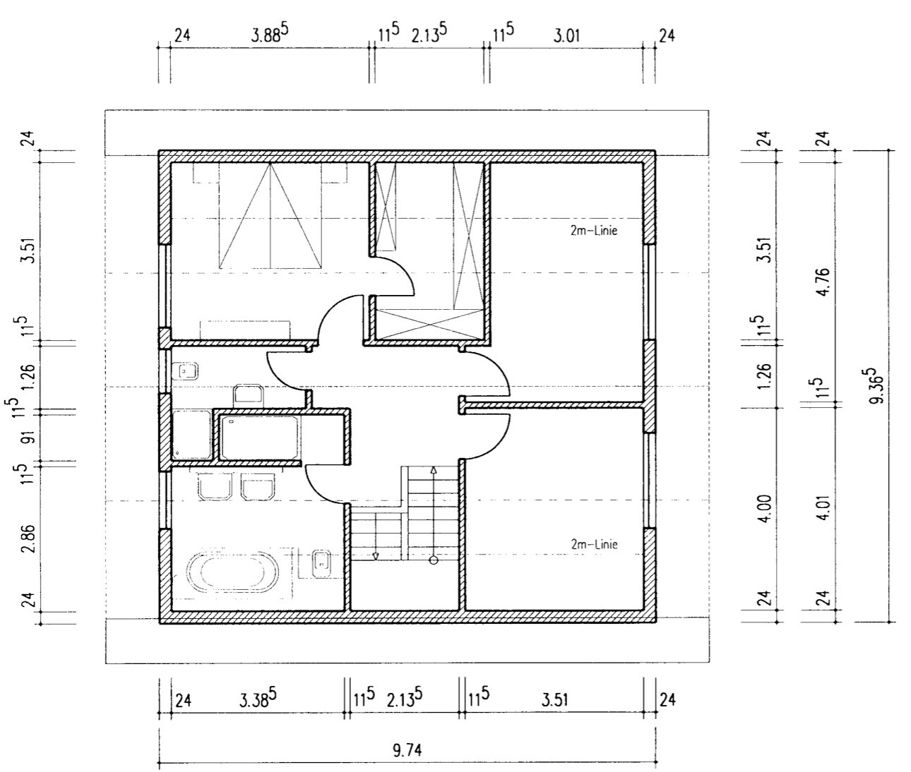
Keller, Geschosse: Keller + EG + DG
Anzahl der Personen, Alter: Aktuell 3 Personen (2 Erwachsene + 1 Kind). Kind #2 soll eingeplant werden.
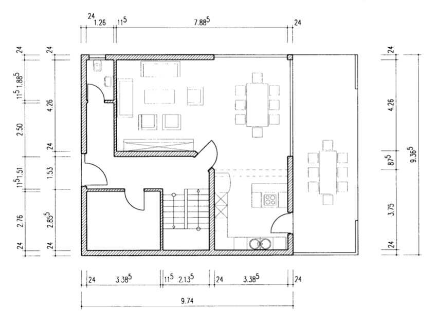
Raumbedarf im EG, OG
Büro: Familiennutzung oder Homeoffice?
Schlafgäste pro Jahr: Nicht relevant. Vereinzelt.
offene oder geschlossene Architektur: Eher offen
konservativ oder moderne Bauweise: Eher modern
offene Küche, Kochinsel: Ja. Kochinsel wenn möglich.
Anzahl Essplätze
Kamin: Gerade in Diskussion.
Balkon, Dachterrasse: Terrasse Richtung Süden + Terrasse Richtung Westen geplant.
Garage, Carport: 1 Garage. Daneben noch Platz für ein Carport / Garage (Optional, Zukunft)
Hausentwurf
Von wem stammt die Planung: Generalunternehmer aus der Gegend.
Was gefällt besonders? Warum? Offener Wohnbereich. Alles Anforderungen untergebracht. Option für zweite Garage.
Was gefällt nicht? Warum? Wir überlegen aktuell ob das zweite Bad im DG wegfällt und dafür im EG eine Dusche hinkommt.
Preisschätzung laut Architekt/Planer: 500.000 exkl. Grundstück, Nebenkosten, Tiefbau, Außenanlage.
favorisierte Heiztechnik: Wärmepumpe
Wenn Ihr verzichten müsst, auf welche Details/Ausbauten
-könnt Ihr verzichten: Separates Bad für die Kinder im DG.
-könnt Ihr nicht verzichten: Offener Wohnbereich. Grosses Bad oben.
Warum ist der Entwurf so geworden, wie er jetzt ist? Ist der erste Entwurf von dem Unternehmer. Die anderen Planungen waren tlw. ähnlich.



wir beschäftigen uns intensiv mit dem Bau eines Einfamilienhaus mit Keller in Hanglage und hätten gerne euer Feedback
Bebauungsplan/Einschränkungen
Größe des Grundstücks: 517qm
Hang: ja
Grundflächenzahl: 0.3
Geschossflächenzahl: 0.3
Anzahl Stellplatz: 0/1
Geschossigkeit: 1.5
Dachform: Satteldach
Maximale Höhen/Begrenzungen
weitere Vorgaben: Dach 28-45°. 75cm Kniestock (etwas anders definiert)
Anforderungen der Bauherren
Keller, Geschosse: Keller + EG + DG
Anzahl der Personen, Alter: Aktuell 3 Personen (2 Erwachsene + 1 Kind). Kind #2 soll eingeplant werden.
Raumbedarf im EG, OG
Büro: Familiennutzung oder Homeoffice?
Schlafgäste pro Jahr: Nicht relevant. Vereinzelt.
offene oder geschlossene Architektur: Eher offen
konservativ oder moderne Bauweise: Eher modern
offene Küche, Kochinsel: Ja. Kochinsel wenn möglich.
Anzahl Essplätze
Kamin: Gerade in Diskussion.
Balkon, Dachterrasse: Terrasse Richtung Süden + Terrasse Richtung Westen geplant.
Garage, Carport: 1 Garage. Daneben noch Platz für ein Carport / Garage (Optional, Zukunft)
Hausentwurf
Von wem stammt die Planung: Generalunternehmer aus der Gegend.
Was gefällt besonders? Warum? Offener Wohnbereich. Alles Anforderungen untergebracht. Option für zweite Garage.
Was gefällt nicht? Warum? Wir überlegen aktuell ob das zweite Bad im DG wegfällt und dafür im EG eine Dusche hinkommt.
Preisschätzung laut Architekt/Planer: 500.000 exkl. Grundstück, Nebenkosten, Tiefbau, Außenanlage.
favorisierte Heiztechnik: Wärmepumpe
Wenn Ihr verzichten müsst, auf welche Details/Ausbauten
-könnt Ihr verzichten: Separates Bad für die Kinder im DG.
-könnt Ihr nicht verzichten: Offener Wohnbereich. Grosses Bad oben.
Warum ist der Entwurf so geworden, wie er jetzt ist? Ist der erste Entwurf von dem Unternehmer. Die anderen Planungen waren tlw. ähnlich.
K
K a t j a22.03.25 19:59Da habt Ihr ja mal einen ordentlichen Hang. Gleich mal 3m allein von der Straße bis zur hinteren Hauskante.
Das der Plan von einem Profi sein soll, kann ich leider nicht so recht glauben. Aber sei's drum.
Um den Grundriss zu beurteilen braucht es imho auch die geplanten Außenanlagen. Wie soll denn der Zugang zur Haustür gelöst werden? Wo genau soll denn das Carport später entstehen und wie ist die Zufahrt dorthin?
Das der Plan von einem Profi sein soll, kann ich leider nicht so recht glauben. Aber sei's drum.
Um den Grundriss zu beurteilen braucht es imho auch die geplanten Außenanlagen. Wie soll denn der Zugang zur Haustür gelöst werden? Wo genau soll denn das Carport später entstehen und wie ist die Zufahrt dorthin?
5
57Christian22.03.25 20:28Zugang:
Es soll von der Strasse aus auf der linken Seite eine Treppe oder ein etwas steilerer gepflasterter Weg zur Haustür errichtet werden.
Carport:
Der Carport oder die zusätzliche Garage sollte neben der anderen Garage direkt bis auf die Grundstücksgrenze gesetzt werden. Wir haben ja vom Haus auf beiden Seiten 3m Platz zur Grenze. Daher leider keine Doppelgarage, da diese auch 3m weg sein müsste.
Außenanlage
Für die Außenanlagen haben wir demnächst vermutlich einen Termin mit deinem Planer. Unsere Vorstellung wäre, dass man das irgendwie terrassiert anlegt und möglichst viel davon noch nutzen kann. Uns wurde geraten, dass die Außenanlagen am besten direkt mitgeplant und vorbereitet werden, da man ansonsten Probleme hat vernünftig hinter dem Haus mit einem Bagger o.ä. zu arbeiten.
Es soll von der Strasse aus auf der linken Seite eine Treppe oder ein etwas steilerer gepflasterter Weg zur Haustür errichtet werden.
Carport:
Der Carport oder die zusätzliche Garage sollte neben der anderen Garage direkt bis auf die Grundstücksgrenze gesetzt werden. Wir haben ja vom Haus auf beiden Seiten 3m Platz zur Grenze. Daher leider keine Doppelgarage, da diese auch 3m weg sein müsste.
Außenanlage
Für die Außenanlagen haben wir demnächst vermutlich einen Termin mit deinem Planer. Unsere Vorstellung wäre, dass man das irgendwie terrassiert anlegt und möglichst viel davon noch nutzen kann. Uns wurde geraten, dass die Außenanlagen am besten direkt mitgeplant und vorbereitet werden, da man ansonsten Probleme hat vernünftig hinter dem Haus mit einem Bagger o.ä. zu arbeiten.
57Christian schrieb:
Warum ist der Entwurf so geworden, wie er jetzt ist? Ist der erste Entwurf von dem Unternehmer. Die anderen Planungen waren tlw. ähnlich.Welche "anderen", wenn das der erste vom GU ist ? - zeige die mal !K a t j a schrieb:
Das der Plan von einem Profi sein soll, kann ich leider nicht so recht glauben.Der Planverfasser könnte schon im Ruhestand sein - ich gebe dem Entwurf vierzig Jahre in der Schublade bis heute.57Christian schrieb:
Von wem stammt die Planung: Generalunternehmer aus der Gegend.GU aus der Gegend gut, ohne eigenen Berater / freien Architekten dort hin gehen schlecht.https://www.instagram.com/11antgmxde/
https://www.linkedin.com/company/bauen-jetzt/
57Christian schrieb:
Daher leider keine Doppelgarage, da diese auch 3m weg sein müsste.Warum? Habt Ihr keine Grenzbebauung? Bitte zeige mal einen etwas weitläufigen Ausschnitt von Googlemaps.Ich verstehe - ehrlich gesagt - die Geschosse nicht: Eingang im EG östlich, aber die Garage im Keller. Wo ist denn da der Hang hin? Will man den für die Auffahrt total abgraben oder den Eingang zusätzlich mit Treppchen planen? Es würde nahe liegen, wenn der Eingang im Norden ist, der im EG, aber der Wohnbereich im UG mit Zugang zum Garten. Derzeit hängt der Wohnbereich und eine Terrasse/Balkon ist auf der Garage.. das macht man doch gar nicht mehr bzw. ergibt es überhaupt keinen Mehrwert/Wohnwert für ein Leben in einem Einfamilienhaus.
was sagt Ihr denn selbst dazu? Wollt ihr nicht barrierefrei in den Garten?
Ich verstehe auch die versetzten WC-Lagen nicht.
SoL schrieb:
Hang + Vollkeller + geschätzt 160m2 passt nicht zu 500.000€.Doch, wenn alles andere exklusiv ist, wie auch angegeben.Ähnliche Themen