ᐅ Einfamilienhaus mit 190qm - Was hält ihr von dem Entwurf? Feedback?
Erstellt am: 21.08.18 07:37
H
HausBWHallo, wir würden uns über ein paar Anregungen und Tipps freuen. Dies ist der erste Entwurf also gibt es bestimmt einiges zu verbessern Danke
Anbei die Daten:
Bebauungsplan/Einschränkungen
Größe des Grundstücks c600qm
Hang - 10% Steigung
Grundflächenzahl 0,35
Geschossflächenzahl 0,5
Baufenster, Baulinie und -grenze 15*15m
Anzahl Stellplatz 2
Geschossigkeit 2
Dachform FD
Maximale Höhen 6.30m
Anforderungen der Bauherren
Stilrichtung, Dachform, Gebäudetyp
Keller, Geschosse: eher nein;
Anzahl der Personen, Alter; 2 a 35 Jahre
Raumbedarf im EG, OG
Büro: Familiennutzung oder Homeoffice? Homeoffice
Schlafgäste pro Jahr: Keine Ahnung
offene oder geschlossene Architektur: offen
konservativ oder moderne Bauweise: modern
offene Küche, Kochinsel: eher zu
Anzahl Essplätze: 6
Kamin: nein
Musik/Stereowand: ggf
Balkon, Dachterrasse: nein
Garage, Carport: beides
Hausentwurf
Von wem stammt die Planung: DIY
Preisschätzung lt Architekt/Planer: 450.000 Euro (Haus o Nebenkosten)
favorisierte Heiztechnik: Luft-Wasser-Wärmepumpe mit BFH
Warum ist der Entwurf so geworden, wie er jetzt ist? Bisher im Altbau mit 3.5m Deckenhöhe und sehr großen Räumen gewohnt; versucht zumindest teilweise die Räume wieder umzusetzen; Schlafzimmer liegt mit Absicht südlich, da schöner Ausblick


Anbei die Daten:
Bebauungsplan/Einschränkungen
Größe des Grundstücks c600qm
Hang - 10% Steigung
Grundflächenzahl 0,35
Geschossflächenzahl 0,5
Baufenster, Baulinie und -grenze 15*15m
Anzahl Stellplatz 2
Geschossigkeit 2
Dachform FD
Maximale Höhen 6.30m
Anforderungen der Bauherren
Stilrichtung, Dachform, Gebäudetyp
Keller, Geschosse: eher nein;
Anzahl der Personen, Alter; 2 a 35 Jahre
Raumbedarf im EG, OG
Büro: Familiennutzung oder Homeoffice? Homeoffice
Schlafgäste pro Jahr: Keine Ahnung
offene oder geschlossene Architektur: offen
konservativ oder moderne Bauweise: modern
offene Küche, Kochinsel: eher zu
Anzahl Essplätze: 6
Kamin: nein
Musik/Stereowand: ggf
Balkon, Dachterrasse: nein
Garage, Carport: beides
Hausentwurf
Von wem stammt die Planung: DIY
Preisschätzung lt Architekt/Planer: 450.000 Euro (Haus o Nebenkosten)
favorisierte Heiztechnik: Luft-Wasser-Wärmepumpe mit BFH
Warum ist der Entwurf so geworden, wie er jetzt ist? Bisher im Altbau mit 3.5m Deckenhöhe und sehr großen Räumen gewohnt; versucht zumindest teilweise die Räume wieder umzusetzen; Schlafzimmer liegt mit Absicht südlich, da schöner Ausblick
Sind Kinder geplant? Bin mir nicht sicher; auch wenn oben zwei Zimmer sind, kann ich aus der angedeuteten Einrichtung nicht erkennen, ob es sich um Kinderzimmern handeln soll.
Falls Kinder geplant sind, mal eine kurze Frage zum Nachdenken: wie oft schaut ihr vom Bett aus raus um die Aussicht zu genießen? Wie oft verbringt ihr den Tag im Schlafzimmer? Wie oft tun das die geplanten Kinder in ihren Kinderzimmern?
Falls keine Kinder geplant sind, würde ich mir für's Schlafzimmer auch die schöne Lage gönnen, aber dann macht für mich die restliche Zimmeraufteilung keinen Sinn. Wäre gut zu wissen, was die anderen Zimmer dann für eine Funktion haben sollen. Darüber hinaus würde ich mir dann ein etwas luxuriöseres Bad gönnen.
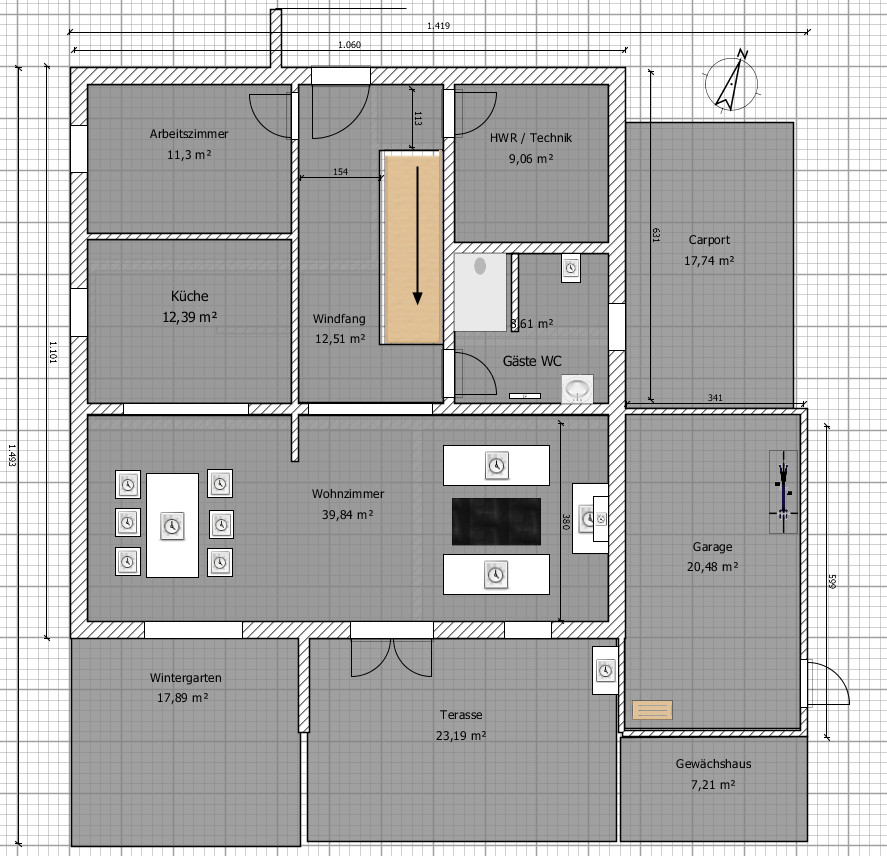
Gästezimmer oben, Gästebad unten. Halte ich für ungünstig. Lieber das Büro oben planen und das Gästezimmer unten. Sonst nutzt der Gast auch euer Bad.
Garage ist durch den Carport zu befahren?
Wenn zwei Stellplätze gefordert sind, wäre das bei uns nicht so erlaubt, da muß jeder Stellplatz frei zugänglich sein. Ich weiß aber, daß das bei anderen Gemeinden ok ist. Aber erkundigen!
Und überlegen: macht es so Sinn? Wie ist die Lage auf dem Grundstück? Prinzipiell ist es nämlich schon sinnvoller, wenn man jeden Stellplatz nutzen kann ohne daß man das Auto davor erst mal weg fahren muß.
Terrasse eingekastelt von Gewächshaus und Wintergarten. Mag nett sein, wenn es kalt ist, aber z.B. bei einem Sommer wie diesem trifft dich auf der Terrasse der Schlag, weil kein Lufthauch zu erhaschen ist.
Und wenn es zu kalt für normale Terrassenaufenthalte ist, hat man ja auch den Wintergarten.
Soll das überhaupt ein zum Wohnbereich gehörender WG sein oder ein Kalt-WG?
Insgesamt: für 190qm gefällt mir der Grundriss nicht wirklich. Da würde ich etwas mehr Luftigkeit und Raumgefühl erwarten.
Wobei man anders planen sollte, wenn das ein kinderfreies Haus bleiben soll (dann würde ich hier wohl irgendwas mit einem Luftraum machen) oder ob Kids geplant sind. Aber auch dann kommt mir das einfach vor wie Schachterln, die aneinander gereicht wurden.
Falls Kinder geplant sind, mal eine kurze Frage zum Nachdenken: wie oft schaut ihr vom Bett aus raus um die Aussicht zu genießen? Wie oft verbringt ihr den Tag im Schlafzimmer? Wie oft tun das die geplanten Kinder in ihren Kinderzimmern?
Falls keine Kinder geplant sind, würde ich mir für's Schlafzimmer auch die schöne Lage gönnen, aber dann macht für mich die restliche Zimmeraufteilung keinen Sinn. Wäre gut zu wissen, was die anderen Zimmer dann für eine Funktion haben sollen. Darüber hinaus würde ich mir dann ein etwas luxuriöseres Bad gönnen.
Gästezimmer oben, Gästebad unten. Halte ich für ungünstig. Lieber das Büro oben planen und das Gästezimmer unten. Sonst nutzt der Gast auch euer Bad.
Garage ist durch den Carport zu befahren?
Wenn zwei Stellplätze gefordert sind, wäre das bei uns nicht so erlaubt, da muß jeder Stellplatz frei zugänglich sein. Ich weiß aber, daß das bei anderen Gemeinden ok ist. Aber erkundigen!
Und überlegen: macht es so Sinn? Wie ist die Lage auf dem Grundstück? Prinzipiell ist es nämlich schon sinnvoller, wenn man jeden Stellplatz nutzen kann ohne daß man das Auto davor erst mal weg fahren muß.
Terrasse eingekastelt von Gewächshaus und Wintergarten. Mag nett sein, wenn es kalt ist, aber z.B. bei einem Sommer wie diesem trifft dich auf der Terrasse der Schlag, weil kein Lufthauch zu erhaschen ist.
Und wenn es zu kalt für normale Terrassenaufenthalte ist, hat man ja auch den Wintergarten.
Soll das überhaupt ein zum Wohnbereich gehörender WG sein oder ein Kalt-WG?
Insgesamt: für 190qm gefällt mir der Grundriss nicht wirklich. Da würde ich etwas mehr Luftigkeit und Raumgefühl erwarten.
Wobei man anders planen sollte, wenn das ein kinderfreies Haus bleiben soll (dann würde ich hier wohl irgendwas mit einem Luftraum machen) oder ob Kids geplant sind. Aber auch dann kommt mir das einfach vor wie Schachterln, die aneinander gereicht wurden.
Mit dem Gästezimmer Arbeitszimmer stimmt natürlich; da ist die Beschriftung falsch. Stellplatz ist ein guter Punkt; hatten noch nie mehr als ein Auto insofern gab es das Problem noch nicht und eine Doppel Garage wäre so breit. Kinderzimmer keine Ahnung - aktuell nicht in Planung aber man kann es ja auch nicht ausschließen; das Problem ist, dass wir eine vollständig eingerichtete Wohnung in der Größe haben die aber komplett anders geschnitten ist und sich so etwas heute nicht mehr umsetzen lässt (quasi wie ein J Bungalow)
Ihr habt nen Hang. Wo ist der hier eingeplant?
Hanggrundstücke selbst zu planen, ist als Laie der Quark des Jahrhunderts. Nehmt Euer Land und geht damit zum Architekten. Die 190m² sehe ich für 450K lange nicht, denn Ihr müsst Euch ein hübsches Sümmchen für die Erdarbeiten zur Seite legen.
Hanggrundstücke selbst zu planen, ist als Laie der Quark des Jahrhunderts. Nehmt Euer Land und geht damit zum Architekten. Die 190m² sehe ich für 450K lange nicht, denn Ihr müsst Euch ein hübsches Sümmchen für die Erdarbeiten zur Seite legen.
Möbel kann man umstellen und nach und nach ersetzen.
Macht nicht den Fehler, euer Haus nach den aktuellen Möbeln zu planen. Plant euer Haus so, wie ihr es gerne hättet und die meisten Möbel wird man irgendwie unterbringen, manche werden gleich ersetzt, manche nach und nach. Aber die Whg nachbauen, in der man lebt, halte ich für die schlechteste Möglichkeit sich sein Traumhaus zu planen.
Wenn Kinder nicht wirklich geplant, aber halt auch nicht ganz ausgeschlossen sind, würde ich über einen flexiblen Grundriss nachdenken:
Büro im EG, im OG dafür einen abgerennten Bereich mit ein, zwei Zimmern und kleinerem Bad. Kann erst als Gästebereich genutzt Warden und dann ggf. zum Kinderbereich Warden während der Gast das Büro bekommt, wo er eine Schlafcouch nutzen muß; so viele Gäste scheint ihr ja nicht zu haben.
Man kann auch überlegen, eine große Galerie zu bauen und erst mal für Max. 1 Kind ein Zimmer, aber die Option, aus der Galerie ggf. ein zweites Kinderzimmer zu schaffen. So hätte man erst mal ein wunderschönes, großes Raumgefühl, was 190qm für 2 Personen gerecht werden würde, aber eben auch die Option auf Familienheim umzuschwenken.
Das Blödeste ist es aber in meinen Augen, jetzt fix zwei Kinderzimmern zu planen, die dann so nie genutzt werden und dafür mir die Möglichkeit zu nehmen, einen wirklichen Wohntraum für zwei Personen zu schaffen.
Mit 450TEuro kommt ihr übrigens für 190qm nicht wirklich hin. Hang gibt es auch noch... macht das Ganze auch noch teurer. Aber gibt auch weitere Planungsmöglichkeiten und -Chancen.
Überlegt euch ein Raumkonzept und ab zum Architekten!
Macht nicht den Fehler, euer Haus nach den aktuellen Möbeln zu planen. Plant euer Haus so, wie ihr es gerne hättet und die meisten Möbel wird man irgendwie unterbringen, manche werden gleich ersetzt, manche nach und nach. Aber die Whg nachbauen, in der man lebt, halte ich für die schlechteste Möglichkeit sich sein Traumhaus zu planen.
Wenn Kinder nicht wirklich geplant, aber halt auch nicht ganz ausgeschlossen sind, würde ich über einen flexiblen Grundriss nachdenken:
Büro im EG, im OG dafür einen abgerennten Bereich mit ein, zwei Zimmern und kleinerem Bad. Kann erst als Gästebereich genutzt Warden und dann ggf. zum Kinderbereich Warden während der Gast das Büro bekommt, wo er eine Schlafcouch nutzen muß; so viele Gäste scheint ihr ja nicht zu haben.
Man kann auch überlegen, eine große Galerie zu bauen und erst mal für Max. 1 Kind ein Zimmer, aber die Option, aus der Galerie ggf. ein zweites Kinderzimmer zu schaffen. So hätte man erst mal ein wunderschönes, großes Raumgefühl, was 190qm für 2 Personen gerecht werden würde, aber eben auch die Option auf Familienheim umzuschwenken.
Das Blödeste ist es aber in meinen Augen, jetzt fix zwei Kinderzimmern zu planen, die dann so nie genutzt werden und dafür mir die Möglichkeit zu nehmen, einen wirklichen Wohntraum für zwei Personen zu schaffen.
Mit 450TEuro kommt ihr übrigens für 190qm nicht wirklich hin. Hang gibt es auch noch... macht das Ganze auch noch teurer. Aber gibt auch weitere Planungsmöglichkeiten und -Chancen.
Überlegt euch ein Raumkonzept und ab zum Architekten!
Ähnliche Themen