Einfamilienhaus 175qm ohne Keller, zu groß?

4,40 Stern(e) 5 Votes
Zuletzt aktualisiert 20.11.2025
Sie befinden sich auf der Seite 11 der Diskussion zum Thema: Einfamilienhaus 175qm ohne Keller, zu groß?
>> Zum 1. Beitrag <<

D

Drasleona

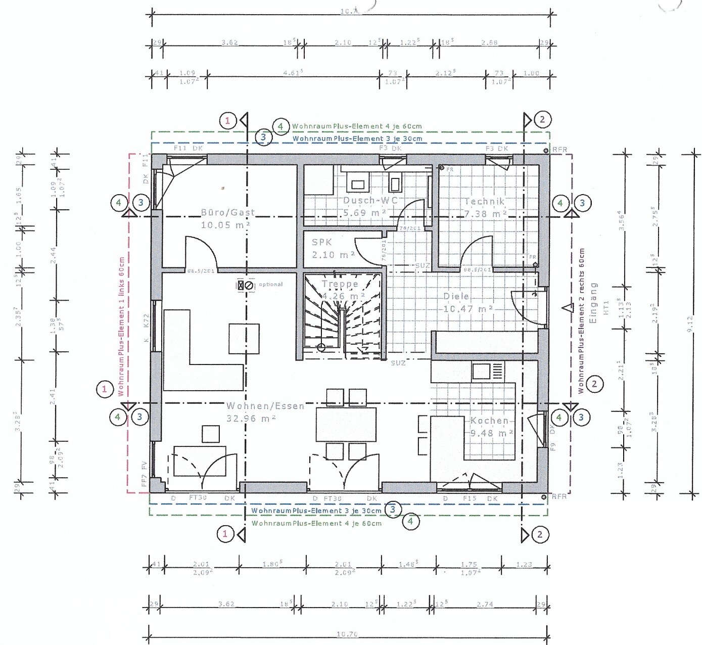
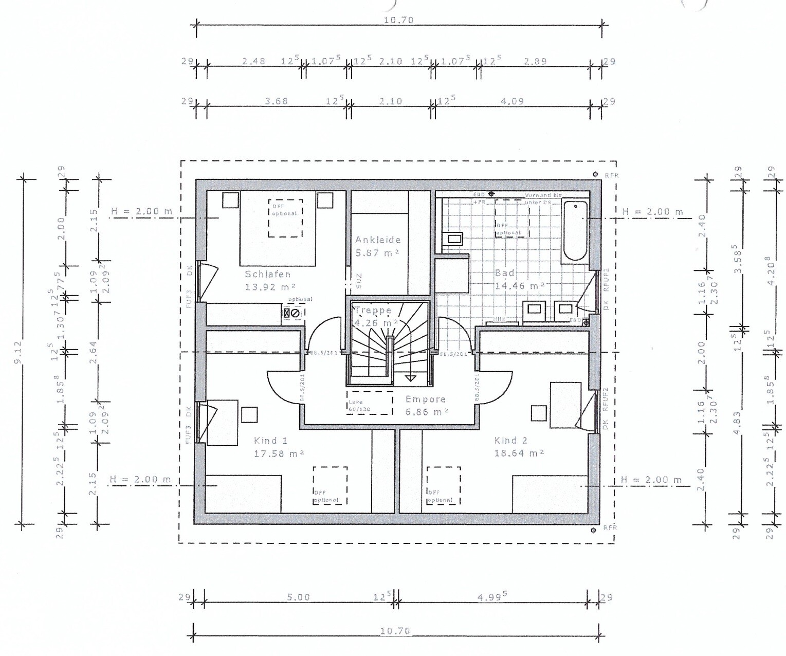
Ansichten kann man in meinem Programm leider keine machen... Das Grundmodell ist das Solitäre 165, von dem man aber nur diverse Entwürfe (also mit Anbauten) auf der Homepage findet. Wir haben dieses auch noch oben und unten um jeweils 30cm vergrößert. Dachneigung werden 20 Grad sein.
Die Traufseiten sind auf dem Plan oben und unten. Wir haben aber in unserer Planung den Kniestock auf 2,06m erhöht. Das hätte ich vielleicht mal früher erwähnen sollen sorry

P.S.: anbei die ursprünglichen Grundrisse

Grundriss eines Wohnungsplans mit Wohnzimmer, Küche, Diele, Bad, Treppe, Technik.


Grundriss eines Hauses: Schlafzimmer, Bad, zwei Kinderzimmer, Treppe und Empore.
 
hausnrplus25

hausnrplus25

- Das Fenster im Wohnzimmer ist so positioniert, damit man auch noch gut eine größere Couch stellen kann. Dass es nicht genau gegenüber vom Flur ist ärgert mich auch ein bisschen... Aber ich will mir dadurch keine Einrichtungsmöglichkeiten versauen.
- Das Fenster ist so weit an der Ecke, damit eben diese "eine große Glasecke" entsteht. Das war so vom Hersteller geplant und ich habe es ehrlich gesagt nicht weiter hinterfragt... Fändest du es besser, wenn man das auseinanderziehen würde?
- Wohin kommt denn die Terrasse?
Ich finde solche Glas-Ecken zwar modern, aber am Ende würden wir wohl eher konventionell entscheiden und es näher zur Küche rücken. Ist aber persönlicher Geschmack. Außer das wird der Terrassenzugang, dann auf jeden Fall verschieben.

Unsere Treppe soll offen werden. Ein Lichtelement neben der Haustür hätten wir auch gern, ich hatte aber eher an eine Umsetzung mit der Tür gedacht. Oder würdest du da eine klassische Fenster-Festverglasung hinsetzen und die Tür daneben?
Auch das ist natürlich persönlicher Geschmack. Wir mögen Glaselemente neben der Hauseingangstür plus den Effekt, dass es dem Flur Tageslicht schenkt. Ob eines oder zwei und wie breit -> Geschmack und Budgetfrage.

- Was meinst du im Büro? Es soll ein zweiflügliges Fenster werden und ich hätte gern, dass man zuerst den rechten Flügel öffnet, so hat man kein Problem beim Schreibtisch.
Dann ists gut so

Meinst Du eventuell die Anschlagrichtung ? - da finde ich in den Grundrissen garkeinen Hinweis darauf, und Ansichten noch garkeine (?)
Das meine ich wohl. Habe mich beim Formulieren nur gefragt, ob das im Architekten/in der Grundrisszeichnung einen schlauen Namen hat
 
D

Drasleona

Die Terrasse geht von dem großen Fenster in der Küche bis um das Haus herum zu dem Fenster neben dem Sofa. Terrassenzugang werden damit quasi alle drei Fenster. Ich denke, dass man hauptsächlich in der Küche rausgehen wird, man will schließlich Getränke und Essen rein und raus tragen.

Ich hab meinem Mann übrigens von deiner Idee erzählt, wir haben das Fenster jetzt doch verschoben, sodass es mittig zum Flur ist dann eben nicht die volle Couchmöglichkeit.
 
H

haydee

[
@haydee Der Hang wird aufgeschüttet bzw. oben ein Stück abgegraben. Die Details sind noch nicht geklärt, also ob terrassiert oder nicht, muss man noch sehen. Die Treppe hab ich derzeit mit 4,10m x1m eingeplant. Oben hat man einen Abstand zur Wand von 1,20m (wovon man leider noch eine Brüstung abziehen muss...) und unten 1,40m.
Ist ok die Breite. Hand auf dem Plan anders gewirkt

Ich meinte ob das Untergeschoss gemauert wird oder nur erdberührende Wände in Beton oder Stützmauer und Haus davor. Was ist da angedacht?
 
D

Drasleona

Das Haus berührt die Erde quasi gar nicht Also es wird abgeflacht, eine Bodenplatte erstellt und darauf in Holzständerbauweise das Fertighaus gestellt. Um das Haus herum soll so viel wie möglich flach sein, einen wirklichen Hang möchten wir auf dem Grundstück nicht mehr, sondern am Anfang und am Ende Stützmauern.

Also noch mal deutlicher: Stützmauer, dann mehrere Meter Abstand, dann Haus, dann mehrere Meter Abstand, dann wieder Stützmauer.
 
Zuletzt aktualisiert 20.11.2025
Im Forum Grundrissplanung / Grundstücksplanung gibt es 2535 Themen mit insgesamt 87977 Beiträgen


Ähnliche Themen zu Einfamilienhaus 175qm ohne Keller, zu groß?
Nr.ErgebnisBeiträge
1Fliesen oder Vinyl in Küche und Flur 19
2 Küchenplanung mit tiefen Fenster - Seite 243
3Fenster / Türen / Garderobe 13
4Grundriss Einfamilienhaus - Problemfall Küche 20
5Neubau einer ca. 8x11 Doppelhaushälfte, Einschätzung Grundriss und Fenster - Seite 235
6Grundriss Zugang von Küche in Speis / Abstellraum - Seite 329
7Flur-Grundriss vergrößern REH von 1921: Tipps? - Seite 227
8Müssen Heizkörper im Neubau immer unter die Fenster? 41
9Offene Küche bereut oder doch das Non plus Ultra? - Seite 18104
10Haus von 1988 sanieren - Fenster und Haustüre? 15
11Geschlossene oder offene Küche ? 11
12Hilfe bei der Anordnung der Fenster benötigt! 32
13Riesiges Problem mit dem Kondenswasser am Fenster 34
14Probleme bei der aufteilung Küche, Essen , Wohnen 16
15Grundrissfrage, Treppe, Fenster, Ausrichtung 12
16Grundriss Einfamilienhaus geplant, Fenster gefallen uns 43
17Feedback zur Ikea-Küche - Seite 15167
18Sichere Fenster/Haustüre für Randlage - Seite 534
19Finaler Grundriss-Entwurf - bis auf die Fenster - Seite 535
20Terrassentür / Schiebetür / bodentiefe Fenster 13

Oben