Einfamilienhaus 160m2 mit Keller, 500m2 Grundstück

4,80 Stern(e) 6 Votes
Zuletzt aktualisiert 23.11.2025
Sie befinden sich auf der Seite 4 der Diskussion zum Thema: Einfamilienhaus 160m2 mit Keller, 500m2 Grundstück
>> Zum 1. Beitrag <<

M

Murmelstein

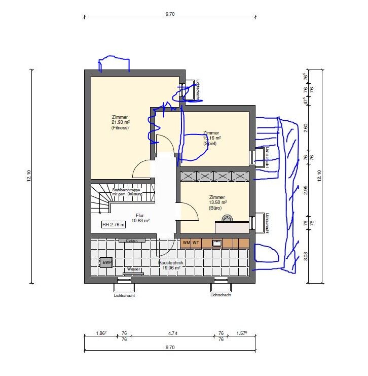
Ja Kind im Norden ist an sich ok, aber das versaut uns natürlich die gesamte Fensterfront, da wir ja zwei "Eckfnester" vorher übereinander hatten.

Küche und Duschbad unten zu spiegeln ist ja recht sinnlos
 
face26

face26

Ja Kind im Norden ist an sich ok, aber das versaut uns natürlich die gesamte Fensterfront, da wir ja zwei "Eckfnester" vorher übereinander hatten.

Küche und Duschbad unten zu spiegeln ist ja recht sinnlos

Form follows function!

In welcher Version bist Du jetzt? Welches Zimmer wäre dann planrechtsunten welches kein Eckfenster vertragen würde?

Mal unabhängig davon wüsste ich nicht warum die Front versaut ist wenn nicht zwei Eckfenster übereinander stehen.
Für wen eigentlich? Die 50 Nachbarhaushalte? Na dann lieber ein Kinderzimmer mit 2,5m breite?
 
M

Murmelstein

Ich verstehe schon.

Ich werde nächste Woche neue Pläne mit der Architektin erarbeiten und mich melden. Danke aber schon einmal für euer Feedback, das war mal hilfreich.

Im EG denke ich braucht es keine große Doppeltür und damit hätte ich genug Wandplatz in Diele und etwas mehr Wand für die Küche und eventuell einen Side By Side Kühlschrank.
 
W

Würfel*

Ich dachte unten ist fast Westen? Also NWW? Dann ist da doch tolle Abendsonne. Kinder stören sich ja meist deutlich weniger an Lärm als Erwachsene, aber das ist eine individuelle Entscheidung.

Wozu brauchst Du eigentlich den Abstellraum im EG? Wäre eine tolle Garderobe. Aber wenn der nur zum Abstellen sein soll, würde ich den streichen. Du hast schließlich einen Keller.

Im Keller ist der HAR/Hauswirtschaftsraum mit fast 20 qm schon sehr großzügig, aber da kann man sicher auch noch Regale und Schränke zum Abstellen reinmachen. Obwohl ich da anders aufteilen würde. Das Zimmer oben rechts (Spielen, aber vermutlich 2. Büro?) bündig mit dem Büro. Flur etwas länger ziehen. Falls kein direkter Zugang

Und falls Du die Terrasse da rechts in die Ecke machen willst, wie eingezeichnet, würde ich in jedem Fall den Lichtschacht vom Fitnessraum nach Planoben verlegen.

Zeig doch mal die Fassade, damit man sieht, wie sich Änderungen auswirken würden.
 
M

Murmelstein

Ich dachte unten ist fast Westen? Also NWW? Dann ist da doch tolle Abendsonne. Kinder stören sich ja meist deutlich weniger an Lärm als Erwachsene, aber das ist eine individuelle Entscheidung.

Wozu brauchst Du eigentlich den Abstellraum im EG? Wäre eine tolle Garderobe. Aber wenn der nur zum Abstellen sein soll, würde ich den streichen. Du hast schließlich einen Keller.

Im Keller ist der HAR/Hauswirtschaftsraum mit fast 20 qm schon sehr großzügig, aber da kann man sicher auch noch Regale und Schränke zum Abstellen reinmachen. Obwohl ich da anders aufteilen würde. Das Zimmer oben rechts (Spielen, aber vermutlich 2. Büro?) bündig mit dem Büro. Flur etwas länger ziehen. Falls kein direkter Zugang

Und falls Du die Terrasse da rechts in die Ecke machen willst, wie eingezeichnet, würde ich in jedem Fall den Lichtschacht vom Fitnessraum nach Planoben verlegen.

Zeig doch mal die Fassade, damit man sieht, wie sich Änderungen auswirken würden.
Abstellraum EG kann zum Teil auch Garderobe werden, das stimmt schon.

Deine Kelleraufteilung verstehe ich nicht ganz, meinst du das?

Fassade finde ich gerade nicht, aber ich werde nächste Woche eure Ideen in updates einfließen lassen und die dann hier mal posten.

Grundriss eines Hauses mit drei Zimmern (Fitness, Spiel, Büro), Flur und Haustechnik.
 
Zuletzt aktualisiert 23.11.2025
Im Forum Grundrissplanung / Grundstücksplanung gibt es 2535 Themen mit insgesamt 87992 Beiträgen


Ähnliche Themen zu Einfamilienhaus 160m2 mit Keller, 500m2 Grundstück
Nr.ErgebnisBeiträge
1Planung/Grundriss Einfamilienhaus (ca. 140 qm, Keller, EG, DG) - Seite 430
2Planung Einfamilienhaus 195m² mit Keller und Satteldach in NRW 13
3Grundriss Zugang von Küche in Speis / Abstellraum - Seite 329
4Küche und Abstellraum Etagenwohnung Grundriss optimieren 34
5Grundrissplanung Keller, EG + DG 12
6Grundriss Einfamilienhaus, 140 qm mit Keller 40
7Hausplan von Architekt 2 Geschosse mit Keller 18
8Grundrissentwurf Einfamilienhaus mit Keller und Doppelgarage auf 540qm - Seite 226
9Bungalow geplant auf vorhandenem Keller: Ideen? - Seite 220
10Kalkulation Einfamilienhaus mit 175m² Wohnfläche, Keller und Doppelgarage - Seite 379
11Finanzierung Bauvorhaben Einfamilienhaus 140qm + Keller (Bayern) - Seite 234
12Grundrissplanung Stadtvilla Doppelgarage | Keller | KFW40+ | 205m² - Seite 226
13Grundrissoptimierung Einfamilienhaus in Hanglage Eingeschossig + Keller - Seite 232
14Grundriss Stadtvilla 180m², Keller, 3 Kinder - Eure Meinungen dazu? - Seite 251
15Neubau: ca. 280m2 plus Keller - Eure Anregungen - Seite 554
16Holzdecke und Teilisolierung für Keller mit Garage 15
17Grundriss 165 m² mit Keller eure Meinung - Seite 452
18Grundriss für schmale Doppelhaushälfte - Keller + 2 VG+ DG ohne Kniestock - Seite 753
19Grundriss Einfamilienhaus-Sattelhaus mit Keller, ca. 200 qm 76
20Grundriss-Entwurf: Einfamilienhaus; mit Keller; 800qm Grundstück 10

Oben