Einfamilienhaus 160m² - Zweiter Entwurf

4,20 Stern(e) 5 Votes
Zuletzt aktualisiert 12.01.2026
Sie befinden sich auf der Seite 4 der Diskussion zum Thema: Einfamilienhaus 160m² - Zweiter Entwurf
>> Zum 1. Beitrag <<

Patchwork

Patchwork

OG: Die Kinderzimmer werden (in der Regel) die meiste Zeit des Tages genutzt. Ich finde es immer wieder erstaunlich, dass die Dame des Hauses (bitte nicht falsch verstehen) nicht auf eine Ankleide verzichten kann, dafür aber die Kinder (die am meisten Platz benötigen) die kleinsten Zimmer bekommen.
Warum platziert ihr das Schlafzimmer dann auch noch auf der Südseite? Ich würde die beiden Kinderzimmer auf die Südseite packen, Schlafzimmer & Bad dann Nordseite. Das Bad ist meiner Meinung nach für 4 Personen unnötig groß.
EG: Wohn/Essbereich ist dagegen für die Personenanzahl sehr klein. Hauswirtschaftsraum (wenn schon kein Keller....) würde ich zweiteilen (Speisekammer mit Zugang aus der Küche und Waschraum).
Eingangsbereich finde ich leider sehr unglücklich, kann mich da den Vorrednern nur anschließen.
 
S

scr00ge

Juhu endlich mal welche die den Grundriss loben
@abertram und @Nora22: Stellt doch bitte in diesen Post eure Grundrisse ein! Ist wirklich kein Problem, sondern fände ich super!
@Patchwork: Die Kinderzimmer sind doch nicht klein? Ich hatte ein 11m² großes Zimmer und war mehr als zufrieden! Und die Kinderzimmer werden (nach Erzählungen von bekannten Eltern) in den Anfangsjahren überhaupt nicht genutzt. Die Kinder spielen draußen oder sind bei den Eltern im Wohnzimmer.
Ein Wohn- und Esszimmer von 33m² muss einfach reichen. Noch größer ist vom Budget nicht drin. Und der in den Raum geschmissene Tisch wird natürlich sinniger gestellt. Er wird wohl direkt mit der schmalen Seite an das Fenster gestellt.
Natürlich könnte die "Dame des Hauses" auf die Ankleide verzichten. Aber wir planen diesen Raum durchaus auch als zusätzlichen Stauraum zu nutzen. Je nachdem was anfällt kommt da noch Bettwäsche, Jacken oder sonstiges rein was kein Platz mehr findet.

zum Bad: Dauernd heißt es "Das ist du klein" "dies ist zu eng für 4 Personen". Nur beim einzigen großen Bad soll es auf einmal zu groß für 4 Personen sein? Meine Frau badet das kleine Kind, ich putze gerade Zähne zusammen mit dem größeren Kind. Meine Frau nimmt das Kleine aus der Wanne, ich blödele mit dem Größen etwas rum. Und keiner rennt mit dem anderen zusammen.
Ich finde das Bad mittlerweile genau richtig. Wie gesagt es kommt noch eine gemauerte offene Dusche rein, die frisst auch noch Platz. Und die gesamte Südwand des Bads sollen Badschränke (und natürlich 2 Waschbecken) sein.

Der Eingangsbereich ist wirklich zu eng. Die Treppe wir noch mal 10cm schmaler, der Hauswirtschaftsraum auch. Damit haben wir dann ca. 1,70 Gangbreite. Das muss reichen.

@Yvonne: Sorry aber bei so ungenauen Fragestellungen und Angaben kann ich au net gescheit Antworten.
Lies vielleicht noch mal deine Fragen durch und meine Antworten darauf.

Mal abgesehen davon haben wir ein enges Baufenster. Die Garage muss da hin wo sie steht, das Haus soll unserer Wunsch nach an die Garage angebaut werden. Wie manu richtig gesagt hat müssen die Abstände genauso eingehalten werden. Natürlich könnten wir das Haus weiter nach Süden schieben, aber dann geht nur Garten flöten.
 
N

Nora22

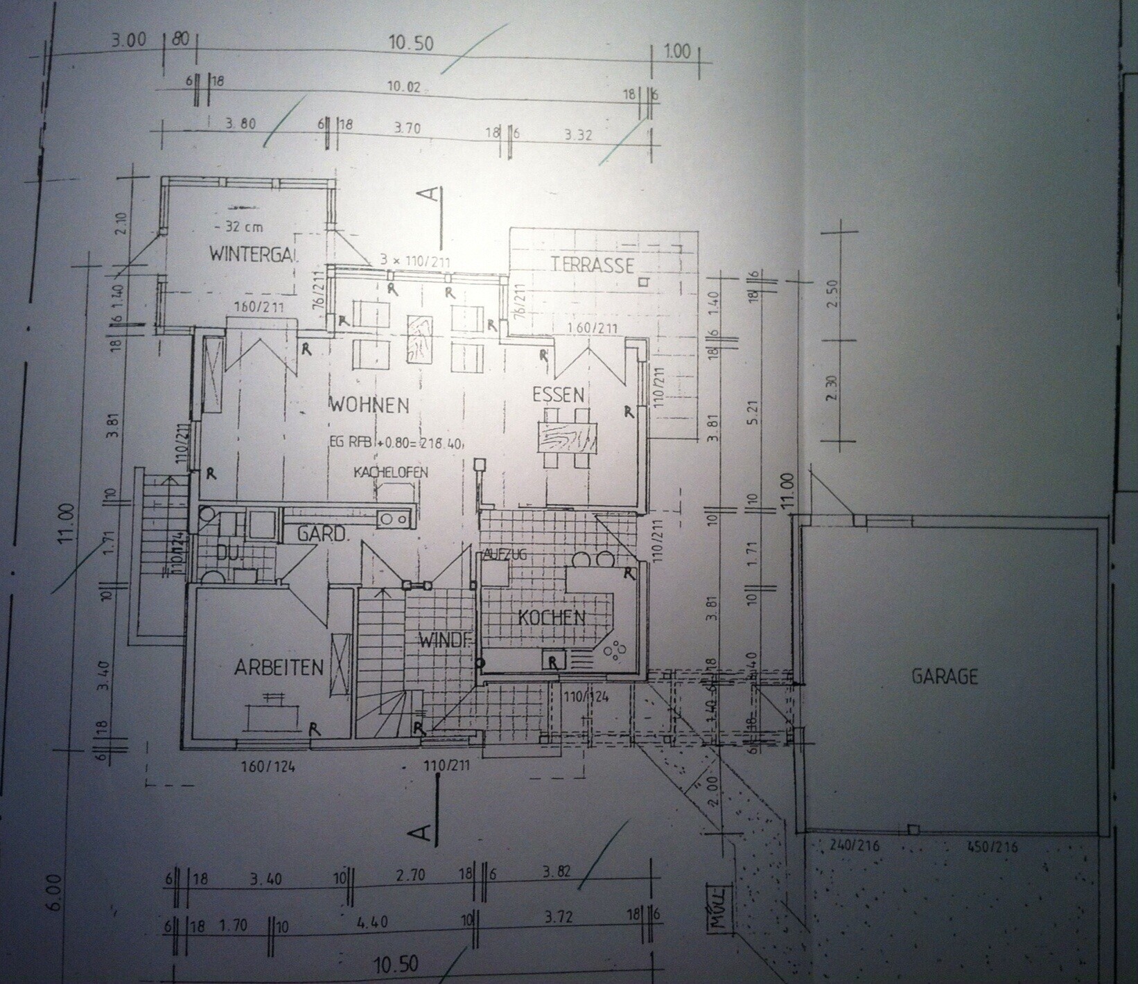
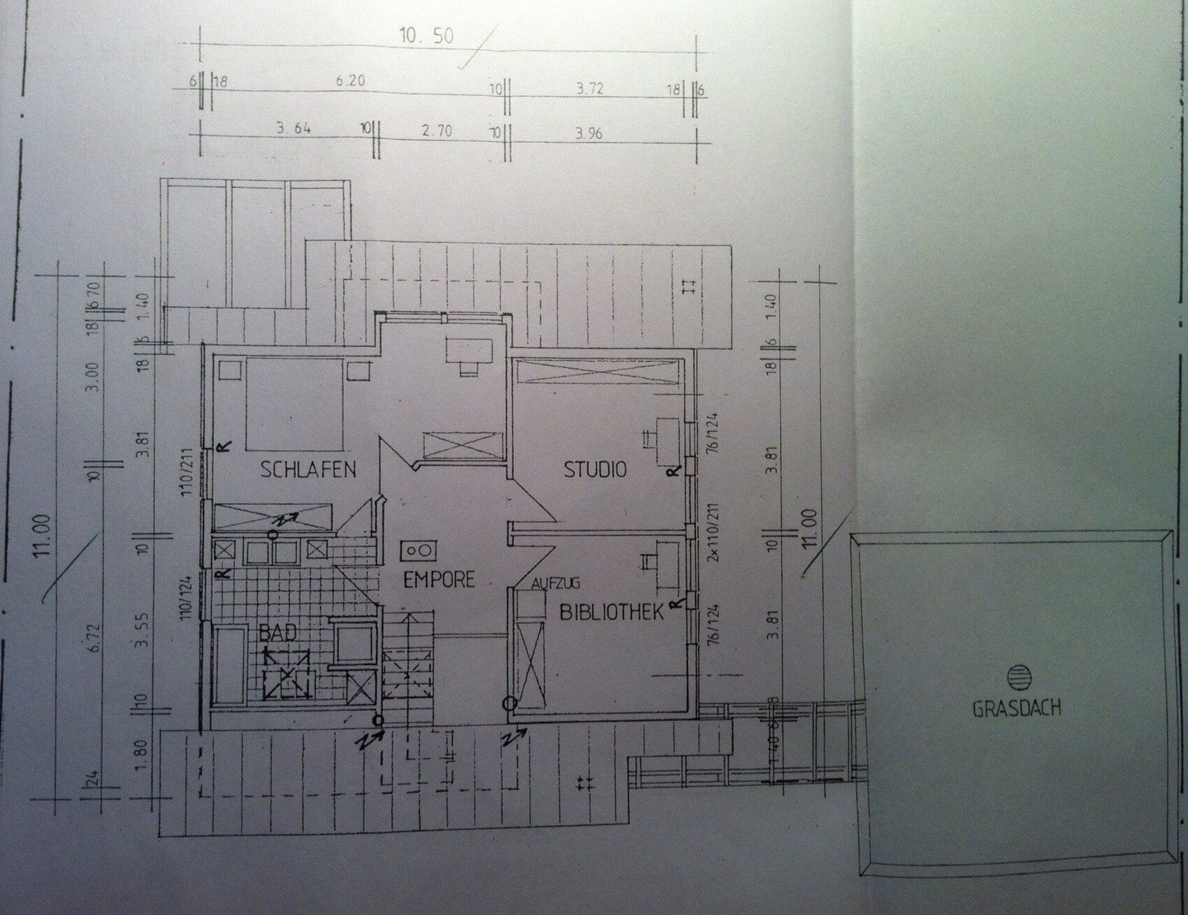
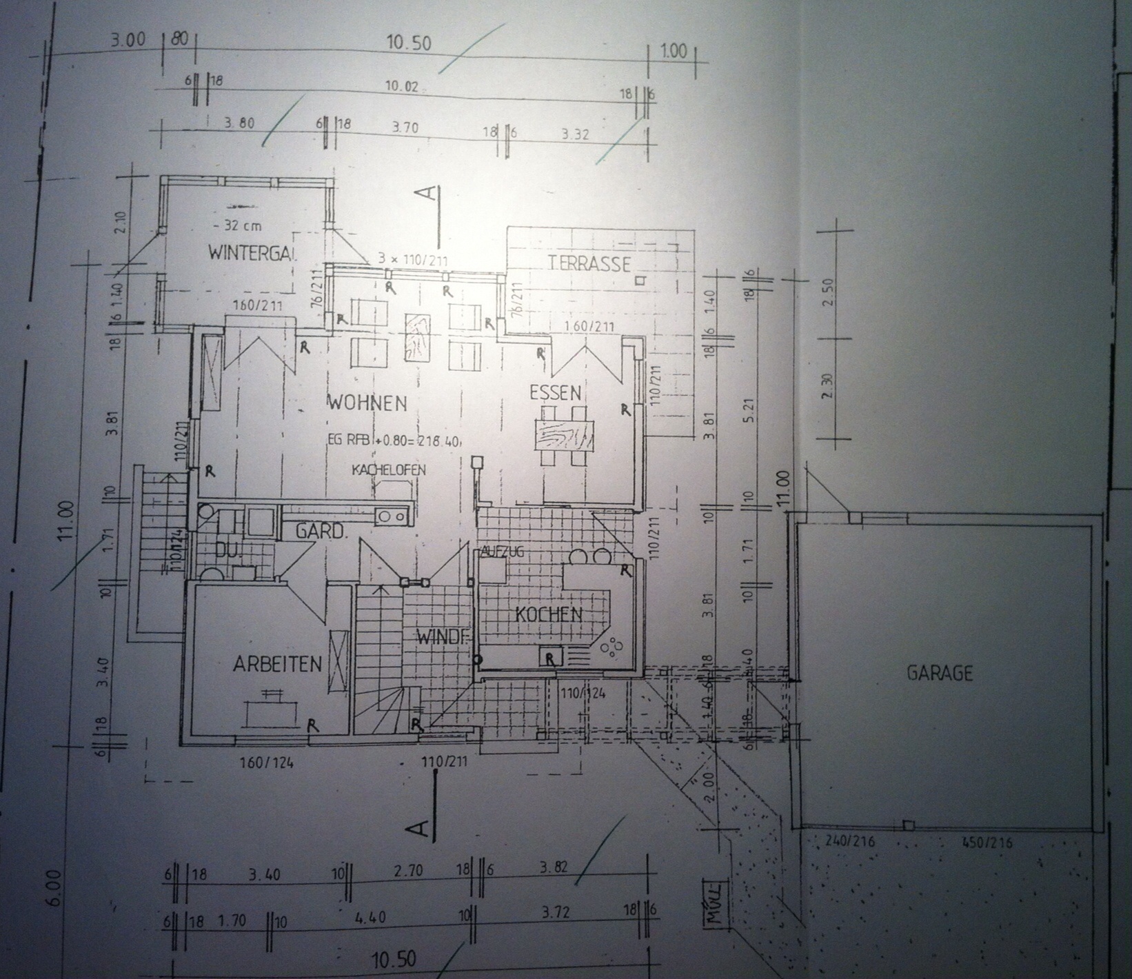
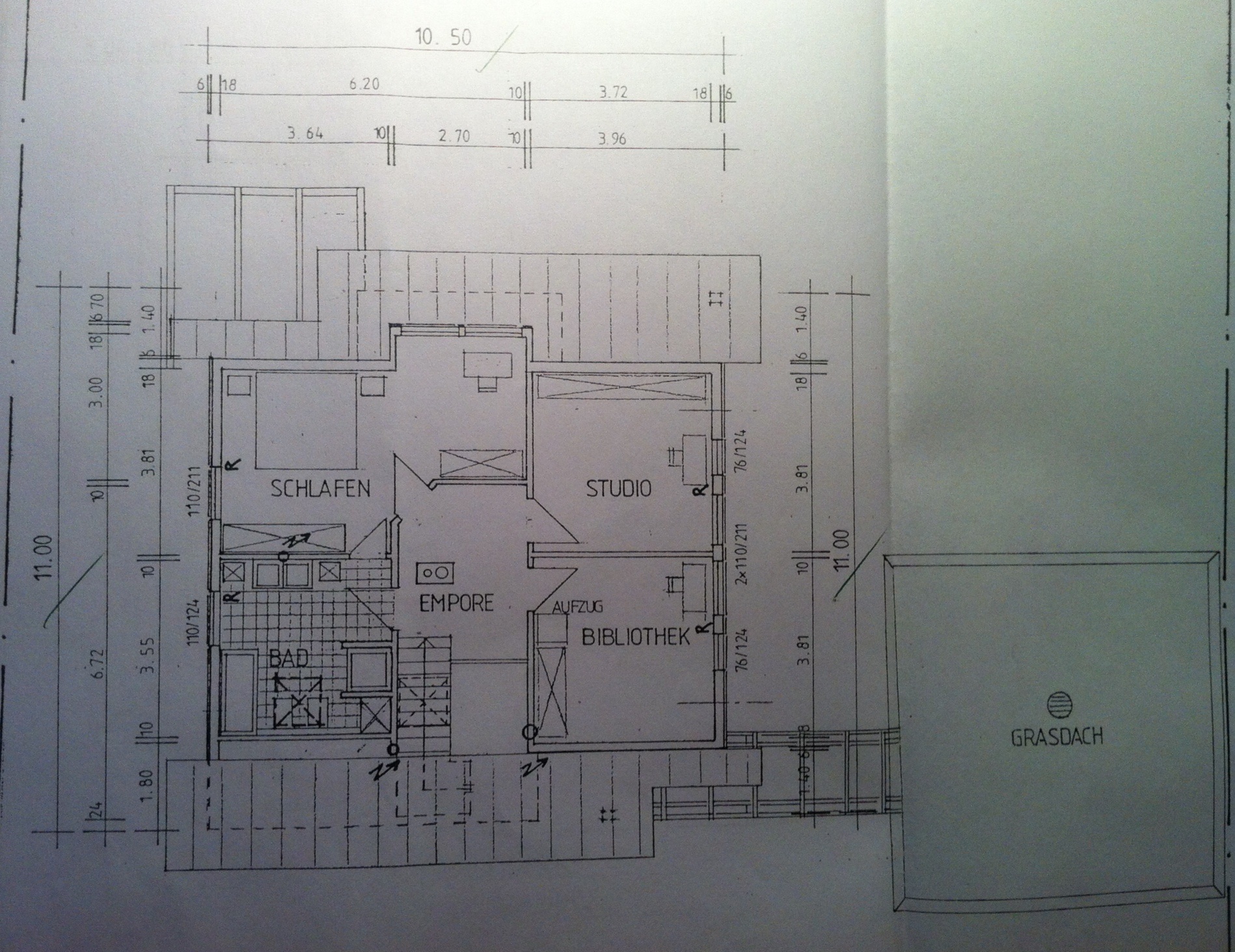
Hier sind unsere Grundrisse. Ich hätte die Kinderzimmer tatsächlich größer geplant, aber sie sind bei uns ja auch kleiner als im zu diskutierenden Entwurf. Unsere Kinder sind 3 Jahre alt und schlafen gemeinsam in einem der Zimmer, das andere ist Gästezimmer. Gespielt wird im Wintergarten ( = Spielzimmer) und Wohnzimmer. Ich rechne damit, dass sich das erst mit Schuleintritt ändert.

Grundriss eines Einfamilienhauses mit Wohnzimmer, Küche, Esszimmer, Wintergarten, Terrasse und Garage.

Grundriss eines Gebäudes mit Schlafzimmer, Studio, Empore, Bibliothek, Bad, Aufzug; Grasdach.
 
S

scr00ge

Oh... der Wintergarten ist toll
Sowas hätte ich auch gern... Du weißt nicht zufällig was der gekostet hat und ob der nachträglich angebaut wurde?
Stört des net wenn die Arbeitsecke im Schlafzimmer ist? Also wenn jemand z.b. noch arbeiten muss, der andre aber schlafen will?
 
Y

ypg

@Yvonne: Sorry aber bei so ungenauen Fragestellungen und Angaben kann ich au net gescheit Antworten.
Lies vielleicht noch mal deine Fragen durch und meine Antworten darauf.

Mal abgesehen davon haben wir ein enges Baufenster. ....
Drum wären alle Informationen, auch zum Grundstück, hilfreich und nötig.
Guck, ich hätte da vlt einen Verbesserungsvorschlag, werde den aber nicht los, weil ich Informationen zur Lage brauche. In die Luft schreiben, finde ich nicht effektiv und zeitverschwendend.
Aber du hast recht: ich hätte es genauer erfragen können
Ich werde mir wohl mal einen Fragenkatalog vorschreiben und ggf einstellen, wenn mal wieder an Infos bzw am Lageplan gespart wird

Kommt eure Flurverbreiterung denn noch gut hin mit der Breite der Treppe? Wird diese nicht zu schmal?
170 sollte noch passen, leider sind das Rohbaumaße, der Putz kommt noch abgerechnet.
 
Zuletzt aktualisiert 12.01.2026
Im Forum Grundrissplanung / Grundstücksplanung gibt es 2565 Themen mit insgesamt 88794 Beiträgen


Ähnliche Themen zu Einfamilienhaus 160m² - Zweiter Entwurf
Nr.ErgebnisBeiträge
1 2 Vollgeschosse, Durchgang Garage, Hauswirtschaftsraum unter Treppe 25
2Erster Selbstentwurf - taugt das was oder kompletter Mist? - Seite 217
3Treppe im Wohnzimmer als Hype - Pro & Contra? - Seite 426
4Grundriss, längliches Einfamilienhaus, integrierte Garage kein Keller 16
5Grundriss 3 Kinderzimmer Einfamilienhaus - Potenziale? 43
6Grundriss: 150qm Einfamilienhaus+Einliegerwohnung - Carport / Garage + Schuppen / Werkstatt - Seite 745
7Kinderzimmer und Schlafzimmer - Welche Größe ist zu empfehlen? - Seite 256
8Grundrissentwurf eines Passivhauses 170m² mit Garage - Seite 218
9Grundrissplanung Hanghaus mit 5 Kinderzimmer - Seite 26370
10Grundrissplanung Einfamilienhaus (Stadtvilla) ca.140m² (3 Kinderzimmer) 42
11Neubau Einfamilienhaus 160-170qm, 3 Kinderzimmer 39
12Grundriss Einfamilienhaus ohne Keller, 3 Kinderzimmer und Büro 18
13Grundriss Einfamilienhaus 240 m² mit teilüberbauter Garage 96
14Grundriss Einfamilienhaus 155m², ohne Keller, 3 Kinderzimmer, 1 Büro - Seite 538
15Haus ohne Garage und Keller? Ausbau Dachboden? Fresswarze? - Seite 585
16Extra-Bad vom Schlafzimmer oder doch Abstellraum? - Seite 329
17Grundrissplanung Wohnzimmer und Flur zu schmal? 21
18Bungalow mit 140qm und Garage im Grundriss 13
19Lage von Haus & Garage im Baufenster planen *Vorplanung* - Seite 4129
20Größe vom Schlafzimmer und Kinderzimmer - Seite 238

Oben