Anregungen zum Grundriss Einfamilienhaus ca. 175 qm, Satteldachhaus

5,00 Stern(e) 11 Votes
Zuletzt aktualisiert 22.11.2025
Sie befinden sich auf der Seite 9 der Diskussion zum Thema: Anregungen zum Grundriss Einfamilienhaus ca. 175 qm, Satteldachhaus
>> Zum 1. Beitrag <<

Y

Ysop***

Zu früh würde ich nicht sagen. Denn sich erst dann mit der Küche zu beschäftigen, wenn der Grundriss schon (fast) final ist, kann bei der Küchenplanung zu Enttäuschungen führen. Einen eigenen Thread muss man noch nicht zwingend eröffnen, sich aber grundsätzlich damit zu befassen, halte ich auch jetzt schon für sinnvoll.
 
Y

ypg

Denn sich erst dann mit der Küche zu beschäftigen, wenn der Grundriss schon (fast) final ist,
Der ist noch weit weg von fast und noch weiter von Final. Dass diese Küche schon knapp für eine Insel ist, wurde schon erwähnt und bei dieser Hausgröße wird die Küchenfläche auch etwas größer als Reihenhausniveau ausfallen… da bin ich sehr zuversichtlich. Am Anfang eines Grundrisses steht die Treppe. Diese zeigt die Richtung eines Grundrisses an. Und die ist hier ja so quasi schon gelöscht ;)
 
E

epinephrin

Mein Gefühl momentan sagt, es lohnt noch keine Küche zu planen.

Unser Raumbedarf liegt bei ca. 165-170 qm.
EG: Küche 15, Wohnen 36-40, Diele 12-15, Hauswirtschaftsraum 12, Gäste-WC 3 = 78-85 qm
OG: Schlafen 13, 2 Kinderzimmer je 16, Ankleide 9, Bad 14 + Flur =ca. 75 qm
+ Büro 10 qm (vielleicht eher ins OG?)

Gaube + Sitzfenster wären toll. Wo setze ich an? Im OG? Mit der Treppe im EG? Wichtig bei der Treppe wäre mir lediglich, dass ich an der Tür nicht direkt drauf falle und die Stufen von der Breite gleich bleiben. Ich habe mit gewendelten nach innen schmaler werdenden Treppen so meine Probleme. Ich bräuchte mal einen Schubs in die passende Richtung.
 
kbt09

kbt09

Ich habe für Anregungen mal ein wenig in meinen "Grundrissvorlagen" gewühlt. Die Beispiele sind wirklich nur als Anregungen zu verstehen. Ich habe alle Beispiele so gedreht und gespiegelt, wie ich sie vom Grundsatz her auf eurem Grundstück ausrichten würde. Garagen, die z. T. sichtbar sind, einfach erstmal verdrängen. Die Nordpfeile bitte auch.

Gauben liessen sich wohl auch noch einplanen ;)

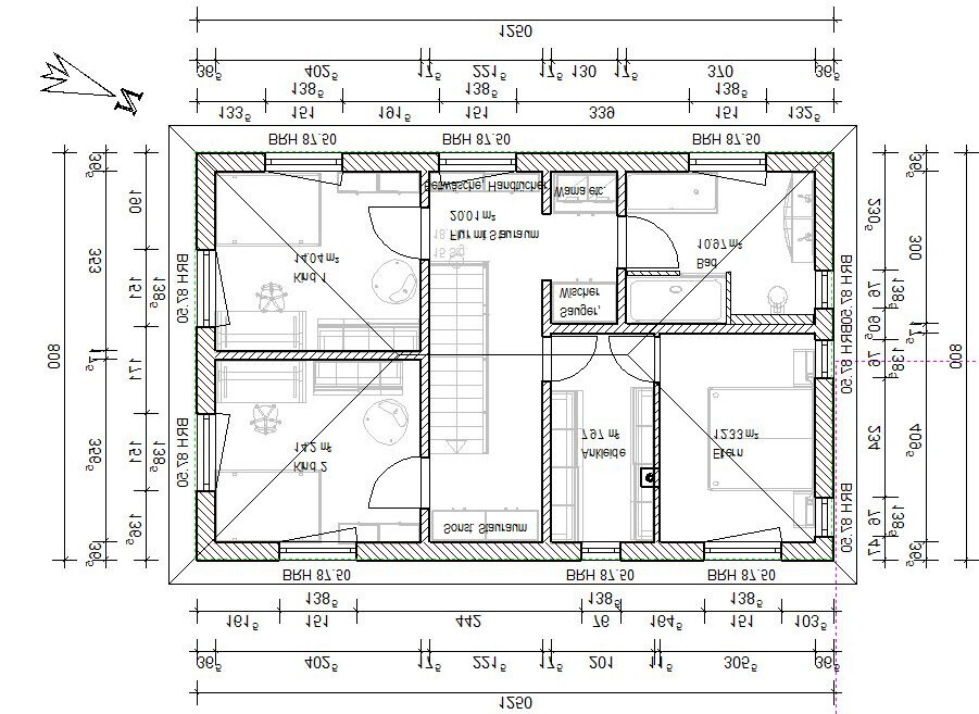
Beispiele 1 und 3 sind eindeutig rechteckig .. bei der Breite eures Grundstückes könnte man das eigentlich ganz gut nutzen.

Euer bisheriger Lageplan mit aktuellem Entwurf:


Beispiel 1 - ca. 150 qm - Sitzfenster im OG im Flur, wo jetzt noch Schrank ohne Fenster gezeichnet ist. Dafür planoben evtl. kein Flurfenster, sondern Stauraum. Technikraum im EG ist hier sehr klein, Waschmaschine ist im OG vorm Bad geplant, zusammen mit Stauraum

2D-Grundriss eines Hauses mit Küche, Essbereich, Wohnzimmer, Treppe und Außenbereich

Grundriss eines Hauses mit Zimmern, Türen, Treppen und Maßlinien (Maße sichtbar).


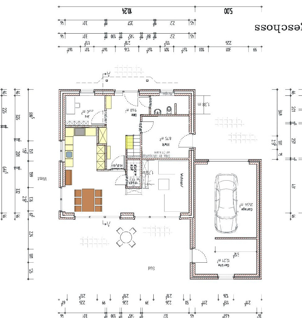
Beispiel 2 - ca 150 qm .. war mal ein angepasstes Beispiel eines anderen Entwurfes hier im Forum. Hatte Kniestock, ist aber natürlich mit 2 Vollgeschosse denkbar, Sitzfenster Richtung Süden im OG statt Schrankstauraum

Grundriss eines Hauses: Küche, Essbereich, Wohnzimmer, Bad, Garage, Treppe.

Grundriss eines Wohnhauses: Schlafzimmer, Bad, Treppe und Garderobe


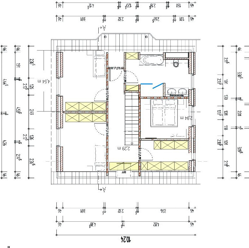
Beispiel 3 - 160 qm, kein echter Platz für Sitzfenster

Grundriss eines Hauses: Küche, Wohn- und Essbereich, Schlafzimmer, Bad, Flur, HWR, Gäste-WC.

Grundriss eines Hauses mit Flur, Bad, Elternschlafzimmer, Ankleide und zwei Kinderzimmer
 
kbt09

kbt09

Übrigens Gaube ... ich wollte gerade Ansichten ansehen, gibt es ja keine in Beitrag 1 .. dabei ist mir aufgefallen, dass diese Gaube als überstehender Kasten im OG geplant ist.

Querschnitt eines zweistöckigen Wohnhauses mit Treppe, Dachstuhl und sichtbaren Innenräumen.


Habt ihr ein oder zwei Ansichten dazu ... ich habe gerade so gar keine Vorstellung davon.
 
K a t j a

K a t j a

Wenn das OG nicht extrem kompliziert ist, fang ich immer mit Wohnzimmer Küche und Esszimmer an. Das sind imho die wichtigsten Räume - die haben Vorrang vor allen anderen und dürfen die beste Ausrichtung und Position im EG erhalten. Dann bastel ich den Rest drum rum. Mit ein wenig Erfahrung weiß man dann schon, wo die Treppe sein darf und wo nicht, damit es auch im OG klappt.

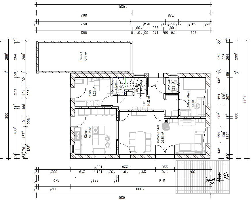
Mal ein Beispiel für eine Podest mit Kinderbad - bei 4 Leuten angemessen. Gäste-WC im EG enthält auch eine Dusche - die würde ich vorerst weg lassen. Man könnte den Platz aber für später vorhalten - dann wäre theoretische eine Trennung in 2 Wohntrakts (oben / unten) denkbar.


Grundriss eines Hauses mit Büro, Technik, WC, Wohn-/Essbereich, Treppenhaus und Fahrradgarage.


Grundriss eines Hauses: Schlafzimmer mit Bett und Schrank, Bad, Kinderzimmer (Kiba), Küche, Flur.


Jegliche gewendelte Treppe auszuschließen, macht die Sache auch pikant. Aber ok. ;)
 
Zuletzt aktualisiert 22.11.2025
Im Forum Grundrissplanung / Grundstücksplanung gibt es 2535 Themen mit insgesamt 87989 Beiträgen


Ähnliche Themen zu Anregungen zum Grundriss Einfamilienhaus ca. 175 qm, Satteldachhaus
Nr.ErgebnisBeiträge
1Planung Gäste-WC im Neubau - Wie groß muss es sein? (DIN?) - Seite 14107
2Stadtvilla mit gerader Treppe, offene moderne Bauweise, 140m² 18
3Planung Einfamilienhaus in Norden NRW´s - Meinungen zur Planung gewünscht... - Seite 213
4WC-Fenster Gäste-WC neben der Eingangstür - inzwischen nogo? - Seite 744
5REH - Grundrissplanung - Küche zu klein 30
6Einfamilienhaus im ersten Entwurf - eure Meinungen sind gefragt - Seite 327
7Erster Grundriss-Versuch für Kettenhaus auf kleinem Grundstück - Seite 794
8Gäste-WC: Decke abhängen oder Rohr verkleiden? - Seite 216
9Einfamilienhaus - Kapitänshaus - 150m² - Neubau - Tipps benötigt 20
10Welchen Fertighaus-Anbieter - Preise, Erfahrungen? - Seite 21212
11Lichtanschluss falsche Stelle Gäste-WC 29
12Beispiel Kaltwasserhahn für Gäste-WC 12
13Lage Gäste-WC - Eingangsbereich? 28
14Einfamilienhaus für 4 Personen - Meinungen - Seite 11250
15Gäste-WC (1,65qm) und Bad (4,88qm) Sanierung 21
16Gäste-WC Anordnung - Tipps? 19
17Grundriss Mehrgenerationenhaus Umbau alte Scheune - Seite 11202
18Fenster im Gäste-WC/Gästezimmer trotz Garage möglich? - Seite 333
19Grundriss Familienhaus in Randlage mit freien Sicht - Seite 22153
20Rollladen im Gäste-WC ja oder nein? 35

Oben