ᐅ Anregungen zum Grundriss Einfamilienhaus ca. 175 qm, Satteldachhaus
Erstellt am: 04.11.22 22:51
E
epinephrinE
epinephrin04.11.22 22:51Nun wage ich mich einmal in diese Ecke des Forums und stelle unseren Grundriss zur Diskussion vor. Ich hoffe auf konstruktive Kritik und Ideen, falls Verbesserungen sinnvoll wären.
Wir wünschen uns ein helles Haus zwischen 160-170 qm. Eine offene Treppengestaltung würden wir bevorzugen, soll dem Grundriss aber nicht im Weg stehen. Die Flachdachgaube wäre allerdings mehr als ein Nice to have… 🙂
Im Großen und Ganzen gefällt uns der Grundriss aktuell sehr gut, aber wir sind eben Bauherren-Laien und würden gern mit euch Experten noch einmal auf Fehlersuche gehen. Da wir bisher den Vertrag noch nicht fix unterschrieben haben, gibt es vom GU leider noch keine genaueren Bemaßungen. Die möblierung in Küche, Bad, Wohnen ist noch nicht sicher, daran bitte nicht allzu sehr festklammern!
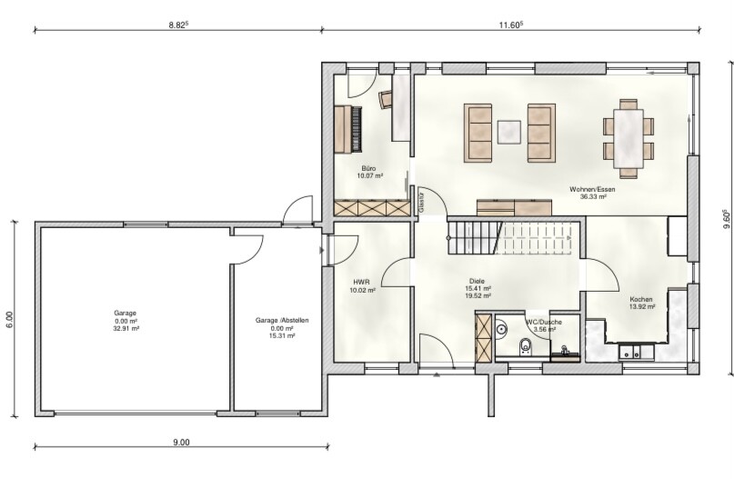
Zur Ausrichtung: die Straße mit Zugang liegt im Norden, Terrasse Richtung Süd/West
Bebauungsplan/Einschränkungen
Größe des Grundstücks: 854 qm
Hang: nein
Grundflächenzahl: 0,4
Geschossflächenzahl: 0,8
Baufenster, Baulinie und -grenze: 3 m von der Grundstücksgrenze
Randbebauung: Garage ca. 1m in NO
Anzahl Stellplatz: 2
Geschossigkeit: max. 2 Vollgeschosse
Dachform: Satteldach 30-45°, Walmdach 25-35°, Pultdach, Flachdach möglich
Stilrichtung: modern
Ausrichtung: Südwest
Maximale Höhen/Begrenzungen: Firsthöhe 8,50m
weitere Vorgaben: Zufahrt max. 4m Breite
Anforderungen der Bauherren
Stilrichtung, Dachform, Gebäudetyp: modernes Satteldachhaus (ohne Dachüberstand)
Keller, Geschosse: ohne Keller; 1,5 oder 2 Geschosse; Kaltdach
Anzahl der Personen, Alter: 4 Personen (42, 41, 8, 5)
Raumbedarf im EG: Küche, Wohnen, Büro, Du/WC, Hauswirtschaftsraum; OG: Schlafen, Ankleide, 2 Kinderzimmer, Bad, Leseecke
Büro: Familiennutzung oder Homeoffice? 1x Homeoffice
Schlafgäste pro Jahr: max. 2
offene oder geschlossene Architektur: offen und hell
konservativ oder moderne Bauweise: modern
offene Küche, Kochinsel: offen (aber ohne direkte Sicht zum Wohnbereich), Kochinsel wenn möglich
Anzahl Essplätze: 6 (wenn möglich ausziehbar auf mind. 8)
Kamin: Bioethanol- / Wasserdampfkamin
Musik/Stereowand: nein
Balkon, Dachterrasse: nein, aber auskragender Erker im OG
Garage, Carport: Garage oder Carport (6x9m – Position, ob Abstellraum neben oder hinter Garage noch nicht sicher – Ausrichtung auf Grundstück also längs oder quer?)
Nutzgarten, Treibhaus: nein
weitere Wünsche/Besonderheiten/Tagesablauf, gern auch Begründungen, warum dieses oder das nicht sein soll:
Von wem stammt die Planung: ursprünglicher Grundriss Gussek Haus „Zypressenallee“, Anpassung an unsere Bedürfnisse / Wünsche durch Planer eines GU
Was gefällt besonders? Warum? Aufteilung und Ausrichtung im EG gefällt uns gut mit Sichtachsen vom Eingangsbereich
Was gefällt nicht? Warum? Unsicherheit, ob Küche zu eng; Stellmöglichkeiten Wohnzimmer (Couch, Klavier!, Bioethanolkamin?) – ggf. mittleres quadratisches Fenster im EG Wohnen weglassen zugunsten Stellfläche?
Preisschätzung lt Architekt/Planer: 600.000 EUR (inkl. Garage, Baunebenkosten)
Persönliches Preislimit fürs Haus, inkl Ausstattung: 600.000 EUR
favorisierte Heiztechnik: Luft-Wasser-Wärmepumpe
Wenn Ihr verzichten müsst, auf welche Details/Ausbauten
-könnt Ihr verzichten: Treppe, 10 qm Wohnfläche
-könnt Ihr nicht verzichten: Erker im OG (ich mag diesen Nistkasten einfach gern haben)
Warum ist der Entwurf so geworden, wie er jetzt ist? ZB
Wunsch nach Erker mit Lesefenster und offene Bauweise wurde umgesetzt sowie ein Gemisch aus Beispielen aus div. Magazinen...
Was ist die wichtigste/grundlegende Frage zum Grundriss in 130 Zeichen zusammengefasst?
s. oben





Wir wünschen uns ein helles Haus zwischen 160-170 qm. Eine offene Treppengestaltung würden wir bevorzugen, soll dem Grundriss aber nicht im Weg stehen. Die Flachdachgaube wäre allerdings mehr als ein Nice to have… 🙂
Im Großen und Ganzen gefällt uns der Grundriss aktuell sehr gut, aber wir sind eben Bauherren-Laien und würden gern mit euch Experten noch einmal auf Fehlersuche gehen. Da wir bisher den Vertrag noch nicht fix unterschrieben haben, gibt es vom GU leider noch keine genaueren Bemaßungen. Die möblierung in Küche, Bad, Wohnen ist noch nicht sicher, daran bitte nicht allzu sehr festklammern!
Zur Ausrichtung: die Straße mit Zugang liegt im Norden, Terrasse Richtung Süd/West
Bebauungsplan/Einschränkungen
Größe des Grundstücks: 854 qm
Hang: nein
Grundflächenzahl: 0,4
Geschossflächenzahl: 0,8
Baufenster, Baulinie und -grenze: 3 m von der Grundstücksgrenze
Randbebauung: Garage ca. 1m in NO
Anzahl Stellplatz: 2
Geschossigkeit: max. 2 Vollgeschosse
Dachform: Satteldach 30-45°, Walmdach 25-35°, Pultdach, Flachdach möglich
Stilrichtung: modern
Ausrichtung: Südwest
Maximale Höhen/Begrenzungen: Firsthöhe 8,50m
weitere Vorgaben: Zufahrt max. 4m Breite
Anforderungen der Bauherren
Stilrichtung, Dachform, Gebäudetyp: modernes Satteldachhaus (ohne Dachüberstand)
Keller, Geschosse: ohne Keller; 1,5 oder 2 Geschosse; Kaltdach
Anzahl der Personen, Alter: 4 Personen (42, 41, 8, 5)
Raumbedarf im EG: Küche, Wohnen, Büro, Du/WC, Hauswirtschaftsraum; OG: Schlafen, Ankleide, 2 Kinderzimmer, Bad, Leseecke
Büro: Familiennutzung oder Homeoffice? 1x Homeoffice
Schlafgäste pro Jahr: max. 2
offene oder geschlossene Architektur: offen und hell
konservativ oder moderne Bauweise: modern
offene Küche, Kochinsel: offen (aber ohne direkte Sicht zum Wohnbereich), Kochinsel wenn möglich
Anzahl Essplätze: 6 (wenn möglich ausziehbar auf mind. 8)
Kamin: Bioethanol- / Wasserdampfkamin
Musik/Stereowand: nein
Balkon, Dachterrasse: nein, aber auskragender Erker im OG
Garage, Carport: Garage oder Carport (6x9m – Position, ob Abstellraum neben oder hinter Garage noch nicht sicher – Ausrichtung auf Grundstück also längs oder quer?)
Nutzgarten, Treibhaus: nein
weitere Wünsche/Besonderheiten/Tagesablauf, gern auch Begründungen, warum dieses oder das nicht sein soll:
- Sitzfenster im OG (Erker) – damit hoffentlich viel Licht im Flur und schöner Ausblick
- offene Treppe (gerade oder Podest ist egal)
- Küche ohne direkte Sichtachse vom Wohnbereich
- Büro gern mit Gartenzugang
Von wem stammt die Planung: ursprünglicher Grundriss Gussek Haus „Zypressenallee“, Anpassung an unsere Bedürfnisse / Wünsche durch Planer eines GU
Was gefällt besonders? Warum? Aufteilung und Ausrichtung im EG gefällt uns gut mit Sichtachsen vom Eingangsbereich
Was gefällt nicht? Warum? Unsicherheit, ob Küche zu eng; Stellmöglichkeiten Wohnzimmer (Couch, Klavier!, Bioethanolkamin?) – ggf. mittleres quadratisches Fenster im EG Wohnen weglassen zugunsten Stellfläche?
Preisschätzung lt Architekt/Planer: 600.000 EUR (inkl. Garage, Baunebenkosten)
Persönliches Preislimit fürs Haus, inkl Ausstattung: 600.000 EUR
favorisierte Heiztechnik: Luft-Wasser-Wärmepumpe
Wenn Ihr verzichten müsst, auf welche Details/Ausbauten
-könnt Ihr verzichten: Treppe, 10 qm Wohnfläche
-könnt Ihr nicht verzichten: Erker im OG (ich mag diesen Nistkasten einfach gern haben)
Warum ist der Entwurf so geworden, wie er jetzt ist? ZB
Wunsch nach Erker mit Lesefenster und offene Bauweise wurde umgesetzt sowie ein Gemisch aus Beispielen aus div. Magazinen...
Was ist die wichtigste/grundlegende Frage zum Grundriss in 130 Zeichen zusammengefasst?
s. oben
Hallo 🙂
Bzgl Küche würde ich euch empfehlen, einForum zu besuchen, welches sich nur damit beschäftigt. Wenn ich mir den Grundriss von der Küche anschaue, habe ich Gefühl, dass ihr euch lieber jetzt schon mit der Küchenplanung beschäftigt. Wenn ich das richtig sehe, habt ihr dort ein bodentiefes Fenster, welches die Möblierung leider zerstückelt.
Bzgl Küche würde ich euch empfehlen, einForum zu besuchen, welches sich nur damit beschäftigt. Wenn ich mir den Grundriss von der Küche anschaue, habe ich Gefühl, dass ihr euch lieber jetzt schon mit der Küchenplanung beschäftigt. Wenn ich das richtig sehe, habt ihr dort ein bodentiefes Fenster, welches die Möblierung leider zerstückelt.
E
epinephrin05.11.22 09:32Ysop*** schrieb:
Hallo 🙂
Bzgl Küche würde ich euch empfehlen, einForum zu besuchen, welches sich nur damit beschäftigt. Wenn ich mir den Grundriss von der Küche anschaue, habe ich Gefühl, dass ihr euch lieber jetzt schon mit der Küchenplanung beschäftigt. Wenn ich das richtig sehe, habt ihr dort ein bodentiefes Fenster, welches die Möblierung leider zerstückelt.Ja, da hast du völlig Recht! Die Küchenplanung wäre unser nächstes wichtiges Thema. Das schmale bodentiefe Fenster war gedacht, um Licht in den Flur zu bekommen und als Sichtachse, wäre aber kein MUSS, wenn es uns die Küche damit völlig unpraktisch macht.M
Myrna_Loy05.11.22 09:32Und plane eine sehr gute Beschattung für den Leseerker ein, bei Südwestausrichtung wird es sonst brutal hell und heiß in dem Eck.
M
Myrna_Loy05.11.22 09:34Wo ist die Terrasse geplant? Auch auf der Südwestseite? Dann wäre die Küche „sehr weit weg“.
Myrna_Loy schrieb:
Und plane eine sehr gute Beschattung für den Leseerker ein, bei Südwestausrichtung wird es sonst brutal hell und heiß in dem Eck.Korrekt, das wäre dann praktisch nicht nutzbar wie gedacht.Im EG würde ich die Tür zum Hauswirtschaftsraum mach planoben schieben, dass sie gegenüber der Garagentür ist. Erhöht den nutzbaren Platz im Hauswirtschaftsraum und die Tür ist im Flur nicht so prominent sichtbar.
Nachtrag: Wofür ist die Außen-Tür im Büro? Die endet ja nicht auf der Terrasse, wäre somit nur zum Schmutzreintragen da?
Ähnliche Themen