Anregungen zum Grundriss Einfamilienhaus ca. 175 qm, Satteldachhaus

5,00 Stern(e) 11 Votes
Zuletzt aktualisiert 09.10.2025
Sie befinden sich auf der Seite 15 der Diskussion zum Thema: Anregungen zum Grundriss Einfamilienhaus ca. 175 qm, Satteldachhaus
>> Zum 1. Beitrag <<

G

Gregor_K

Ich finde das Teilen von Grundrissen gehört einfach dazu. Man schließt einen Vertrag und dann möchte ich auch das sich andere Personen diesen Grundriss ansehen.
 
11ant

11ant

Ich finde das Teilen von Grundrissen gehört einfach dazu. Man schließt einen Vertrag und dann möchte ich auch das sich andere Personen diesen Grundriss ansehen.
Selbstverständlich darf man sich beraten lassen, durchaus auch per Fernkonsultation. Allerdings in einem Internetforum könnte ich mir den von Dir gezeigten Entwurf abspeichern, Du merktest es noch nicht einmal - geschweige denn, daß Du dem Entwurfsverfasser zu schwören in der Lage wärest, wann ich diese Datei wieder löschte. Wer da das Interesse des Entwurfsverfassers überwiegen sähe, den würde ich verstehen.
 
E

epinephrin

Wir haben inzwischen den Werkvertrag unterschrieben und in dem Zusammenhang erfragt, ob der Grundriss in einem Forum zum Austausch genutzt werden darf... :)

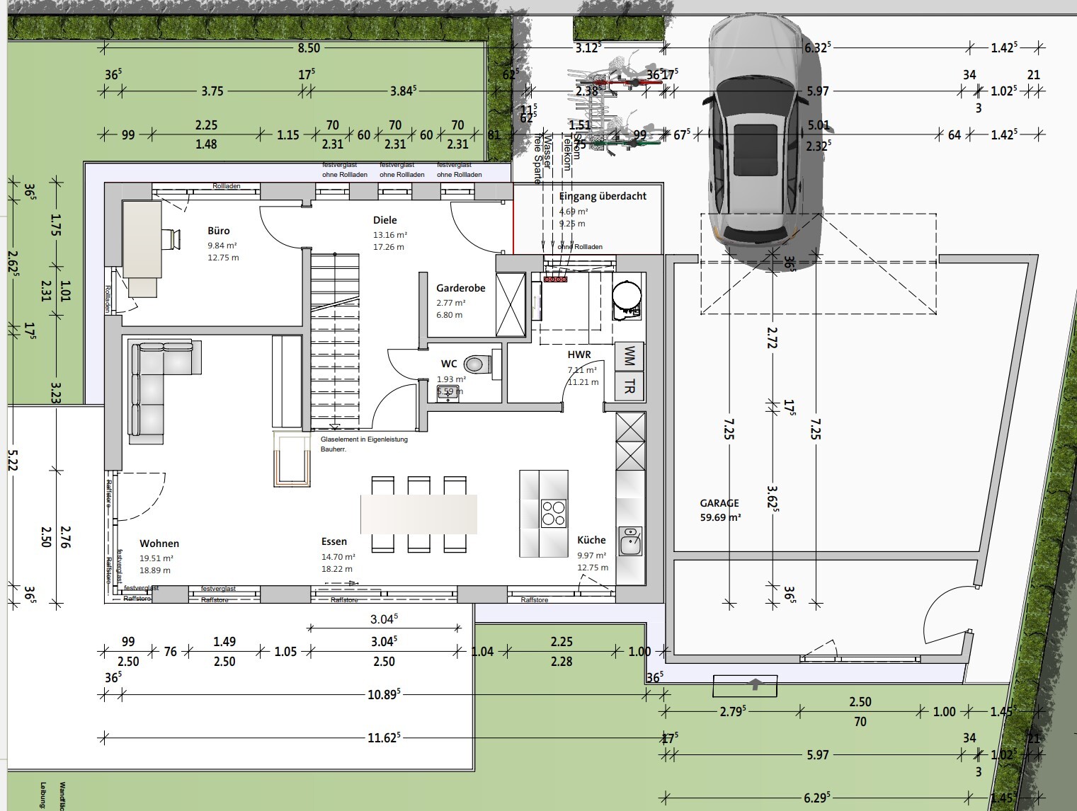
Hier nun also der neue Entwurf - es gab aus Kostengründen eine Flächenreduktion von 175 auf 160 qm, mit der wir aber gut leben können.
Der Eingangsbereich wurde seitlich gewählt, da ich ungern vom Esstisch auf die Haustür und abgeworfene Kinderschuhe schaue. Hauswirtschaftsraum könnte größer sein, aber wir mussten wie gesagt reduzieren... Treppe ragte anfangs bis in den Wohnbereich, hätte aber gern die Option eine Abtrennung zum Flur schaffen zu können. Bin gespannt auf Meinungen zu dieser Veränderung.
Grundriss eines Hauses: Wohnbereich, Essen, Küche, Büro, Diele, Garderobe, WC, HWR, Garage, Garten.

Grundriss eines Hauses mit Garten, Garage, Küche, Wohnen, Diele; Fahrzeuge vor dem Haus.

Obergeschoss-Grundriss: Flur, Bad, Ankleide, Schlafen, Galerie, zwei Kinderzimmer, Terrasse.

Schnitt durch ein zweigeschossiges Haus mit Dachgeschoss: Treppe, Küche mit Esstisch, Obergeschoss.
 
K a t j a

K a t j a

Also rennst Du jetzt mit der dreckigen Wäsche durch die Küche? Oder planst Du noch den Wäscheschacht vom Bad?
 
Zuletzt aktualisiert 09.10.2025
Im Forum Grundrissplanung / Grundstücksplanung gibt es 2513 Themen mit insgesamt 87220 Beiträgen


Ähnliche Themen zu Anregungen zum Grundriss Einfamilienhaus ca. 175 qm, Satteldachhaus
Nr.ErgebnisBeiträge
1Hausbau 2.0 - erster Grundriss-Entwurf 155
2Unser Grundriss-Entwurf, eure Meinungen 20
3Grundriss Entwurf Neubau Einfamilienhaus - Grundstück 610qm - Meinungen erwünscht - Seite 850
4Bitte schaut kritisch über unseren Grundriss-Entwurf 13
5Entwurf Grundriss Einfamilienhaus (als Zweifamilienhaus im Alter möglich) in Hanglage - Seite 753
6Grundriss erster Entwurf - Meinungen erwünscht 21
7Entwurf Grundriss Bungalow Meinungen 22
8Grundriss-Entwurf Stadtvilla mit Doppelgarage - Seite 238
9Grundriss-Entwurf Einfamilienhaus in Hanglage, Einliegerwohnung, Doppelgarage - Seite 271
10Grundriss-Entwurf für Einfamilienhaus 135 qm - Ideen und Ratschläge gesucht 29
11Unser Grundriss-Entwurf für ein günstiges Haus - Seite 4348
12Grundriss-Entwurf: Einfamilienhaus mit Keller; 560qm Grundstück - Seite 665
13Grundriss-Entwurf: Einfamilienhaus mit 4 Schlafzimmern und Büro, 160qm - Seite 1482
14Einfamilienhaus-Grundriss Entwurf 23
15Unser anvisierter Grundriss - bitte um Einschätzungen - Seite 867
16Grundriss-Planung Einfamilienhaus mit rund 150 m² - Seite 32581
17Grundriss Herrenhaus mit Satteldach 170 m² Wohnfläche - Seite 245
18Grundriss Stadtvilla 160 qm, ohne Keller - Eure Meinungen dazu? - Seite 22167
19Entwurf Einfamilienhaus 250 m^2, 2 Vollgeschosse mit Walmdach - Seite 470
20Grundriss Einfamilienhaus Satteldach 180 m2 ohne Keller - Seite 317

Oben