ᐅ 140m² Einfamilienhaus Einreicheplan erstellen - Feedback, Tipps?
Erstellt am: 18.04.17 17:31
Z
zuluindiaZ
zuluindia18.04.17 17:31Hallo liebe Community.
Wir haben vor, nächstes Jahr ein Einfamilienhaus zu bauen und glauben, mit der Planung so weit zu sein, einen Einreichplan erstellen lassen zu können.
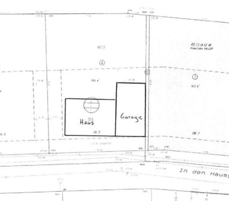
Das Grundstück ist 21m breit und 31m lang.
Der Grundwasserspiegel ist sehr hoch, deshalb ohne Keller.
Der Bebauungsplan gibt vor, dass sowohl Haus als auch Garage ein Satteldach aufweisen müssen.
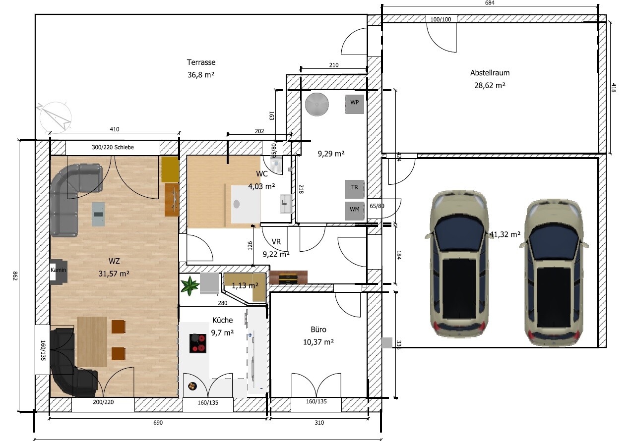
Der Garten liegt im Norden hinter dem Haus, die Terrasse haben wir bewusst an der Nord(West)Seite geplant, da wir beide nicht gerne lang in der Sonne sind.
25er Ziegel + 20 VWS.
Beheizt werden soll das Haus mit Erdwärme (KNV Topline 1145) mittels Ringgrabenkollektor.
Die Garage soll ohne Tor ausgeführt werden, also als eine Art Carport, um den Hauseingang seitlich zu ermöglichen.
Über dem Technikraum (im DG) soll einfach das Dach weitergezogen werden.
Das WC/Bad im EG soll teilweise unter dem Stiegenaufgang Platz finden.
Bebauungsplan/Einschränkungen: Satteldach, Traufhöhe 5m
Größe des Grundstücks: 650m²
Hang: nein
Grundflächenzahl: 0,3
Baufenster, Baulinie und -grenze: 3m, Garage 5m zurückversetzt
Randbebauung: meine "Garage" an bestehende Nachbargarage
Geschossigkeit: 2
Dachform: Satteldach
Stilrichtung: eher modern
Ausrichtung: wenn möglich Süd
Maximale Höhen/Begrenzungen: 5m Traufhöhe/ Dachkante
Anforderungen der Bauherren
kein Keller (hohes Grundwasser)
2 Personen (sollen 4 werden)
Büro: nur als Abstellraum bzw Gästezimmer gedacht, "Altersvorsorge"
Hausentwurf
Von wem stammt die Planung:
Habe selbst geplant
Die Küche haben wir in die “Nische“ geplant, damit sie beim Betreten des Raums nicht so um Mittelpunkt steht und auch weil's die Straßenseite ist und man ein bisschen mitbekommt, was draußen passiert.
Dafür ist das WZ auf der dunkleren Nordseite, weil auf der Couch beim TV das Licht aus S bzw W eher störend ist (haben wir aktuell so).
Vielen Dank im Voraus,
Christian




Wir haben vor, nächstes Jahr ein Einfamilienhaus zu bauen und glauben, mit der Planung so weit zu sein, einen Einreichplan erstellen lassen zu können.
Das Grundstück ist 21m breit und 31m lang.
Der Grundwasserspiegel ist sehr hoch, deshalb ohne Keller.
Der Bebauungsplan gibt vor, dass sowohl Haus als auch Garage ein Satteldach aufweisen müssen.
Der Garten liegt im Norden hinter dem Haus, die Terrasse haben wir bewusst an der Nord(West)Seite geplant, da wir beide nicht gerne lang in der Sonne sind.
25er Ziegel + 20 VWS.
Beheizt werden soll das Haus mit Erdwärme (KNV Topline 1145) mittels Ringgrabenkollektor.
Die Garage soll ohne Tor ausgeführt werden, also als eine Art Carport, um den Hauseingang seitlich zu ermöglichen.
Über dem Technikraum (im DG) soll einfach das Dach weitergezogen werden.
Das WC/Bad im EG soll teilweise unter dem Stiegenaufgang Platz finden.
Bebauungsplan/Einschränkungen: Satteldach, Traufhöhe 5m
Größe des Grundstücks: 650m²
Hang: nein
Grundflächenzahl: 0,3
Baufenster, Baulinie und -grenze: 3m, Garage 5m zurückversetzt
Randbebauung: meine "Garage" an bestehende Nachbargarage
Geschossigkeit: 2
Dachform: Satteldach
Stilrichtung: eher modern
Ausrichtung: wenn möglich Süd
Maximale Höhen/Begrenzungen: 5m Traufhöhe/ Dachkante
Anforderungen der Bauherren
kein Keller (hohes Grundwasser)
2 Personen (sollen 4 werden)
Büro: nur als Abstellraum bzw Gästezimmer gedacht, "Altersvorsorge"
Hausentwurf
Von wem stammt die Planung:
Habe selbst geplant
Die Küche haben wir in die “Nische“ geplant, damit sie beim Betreten des Raums nicht so um Mittelpunkt steht und auch weil's die Straßenseite ist und man ein bisschen mitbekommt, was draußen passiert.
Dafür ist das WZ auf der dunkleren Nordseite, weil auf der Couch beim TV das Licht aus S bzw W eher störend ist (haben wir aktuell so).
Vielen Dank im Voraus,
Christian
Das Dach ist etwas breiter als der Heizungsraum-Erker - ich vermute, im Bereich des WC-Fensters hat die Terrasse ein Stückchen Überdachung, wo der Sonnenschirm trocken steht ?
Bis auf den Carport ist das ein recht klassisches Siedlungshaus, das wird hier manchen Mitdiskutanten zu piefig sein, nehme ich an
Soll da unter der Treppe eine Dusche sein ?
https://www.instagram.com/11antgmxde/
https://www.linkedin.com/company/bauen-jetzt/
Bis auf den Carport ist das ein recht klassisches Siedlungshaus, das wird hier manchen Mitdiskutanten zu piefig sein, nehme ich an
Soll da unter der Treppe eine Dusche sein ?
https://www.instagram.com/11antgmxde/
https://www.linkedin.com/company/bauen-jetzt/
Z
zuluindia18.04.17 19:01ja stimmt, das Dach hab ich vergessen anzupassen.
Das sollte ohne Überhang sein.
Ja, unter der Treppe die Dusche.
Das sollte ohne Überhang sein.
Ja, unter der Treppe die Dusche.
zuluindia schrieb:
Ja, unter der Treppe die Dusche.Hast Du die Kopfhöhe für die Dusche nachgerechnet ?
zuluindia schrieb:
ja stimmt, das Dach hab ich vergessen anzupassen.
Das sollte ohne Überhang sein.Das würde ich so lassen (vielleicht gefällt Dir ja meine Verwendungsidee), sonst schaut dieser Erker m.E. arg danach aus, (lediglich) ein Häusl zu beherbergen.
https://www.instagram.com/11antgmxde/
https://www.linkedin.com/company/bauen-jetzt/
Hallo, ich hab da mal nachgerechnet... passen tut es ja mit der Grundflächenzahl (wenn man die Terrasse kleiner macht, denn die wird nach meines Wissens dazu gerechnet... aber egal: passt schon )
Die Maßangaben verwirren etwas, da man auch Mauern hat, die mit einberechnet werden. Somit habt ihr Pi mal Daumen 11 x 8,5 Haus plus 7 x 10,3 Garage/Abstell.
Die passt allerdings nicht unter die Treppe, ausser Ihr seid kleine Zwerge
Den Lageplan kann ich leider nicht lesen, aber wenn es dort der Grenzabstand von 3 Metern ist, der dort eingezeichnet ist, und die Garage auf 5 Meter zurück versetzt sein soll, dann muss sie das auch. In Deinem Plan sehe ich das allerdings nicht. Allerdings in der Übersicht. Was ist denn jetzt aktuell?
Auch wenn der Abstellraum in der "Garage" etwas üppig geworden ist, so fehlt Euch Abstellfläche für 4 Personen im Haus.
draußen kann man nicht alles lagern - Saisongarderobe wird spakig, andere Sachen hat man eben lieber IM Haus als draußen.
Mir würde ein ordentlicher Garderobenschrank fehlen, wo die Jacken und Schuhe für 4 Personen Platz haben. Dafür wäre eigentlich immer die Fläche unter der Treppe ganz gut, wenn man diese unterhalb der Stufen verschließt.
Darf man bei Euch 10 Meter Randbebauung machen? Bei uns nicht - zumindest nicht auf einer Seite.
Ich finde - ehrlich gesagt - den Entwurf nicht so gelungen.
Wer würde denn bei Euch den Bauantrag stellen?
Die Maßangaben verwirren etwas, da man auch Mauern hat, die mit einberechnet werden. Somit habt ihr Pi mal Daumen 11 x 8,5 Haus plus 7 x 10,3 Garage/Abstell.
zuluindia schrieb:
Ja, unter der Treppe die Dusche.
Die passt allerdings nicht unter die Treppe, ausser Ihr seid kleine Zwerge
Den Lageplan kann ich leider nicht lesen, aber wenn es dort der Grenzabstand von 3 Metern ist, der dort eingezeichnet ist, und die Garage auf 5 Meter zurück versetzt sein soll, dann muss sie das auch. In Deinem Plan sehe ich das allerdings nicht. Allerdings in der Übersicht. Was ist denn jetzt aktuell?
Auch wenn der Abstellraum in der "Garage" etwas üppig geworden ist, so fehlt Euch Abstellfläche für 4 Personen im Haus.
draußen kann man nicht alles lagern - Saisongarderobe wird spakig, andere Sachen hat man eben lieber IM Haus als draußen.
Mir würde ein ordentlicher Garderobenschrank fehlen, wo die Jacken und Schuhe für 4 Personen Platz haben. Dafür wäre eigentlich immer die Fläche unter der Treppe ganz gut, wenn man diese unterhalb der Stufen verschließt.
Darf man bei Euch 10 Meter Randbebauung machen? Bei uns nicht - zumindest nicht auf einer Seite.
Ich finde - ehrlich gesagt - den Entwurf nicht so gelungen.
Wer würde denn bei Euch den Bauantrag stellen?
Z
zuluindia18.04.17 20:34Danke für deine Nachricht ypg.
Zur Grundflächenzahl: ich darf 30% bebauen.
Bei meinem Grundstück sind das 195m2, ca 180 werden es bei mir.
Die Terrasse zählt nicht mit, wenn sie nicht überdacht ist.
Beim Lageplan hast du recht, habe die Einfahrt mit eingezeichnet.
Das Haus muss 3m nach hinten gerückt werden, die Garage weitere 2m.
10m Randbebauung sind in Niederösterreich kein Problem.
Wir möchten das Büro als Garderobe nutzen bis es im Pensionsalter ein Schlafzimmer wird.
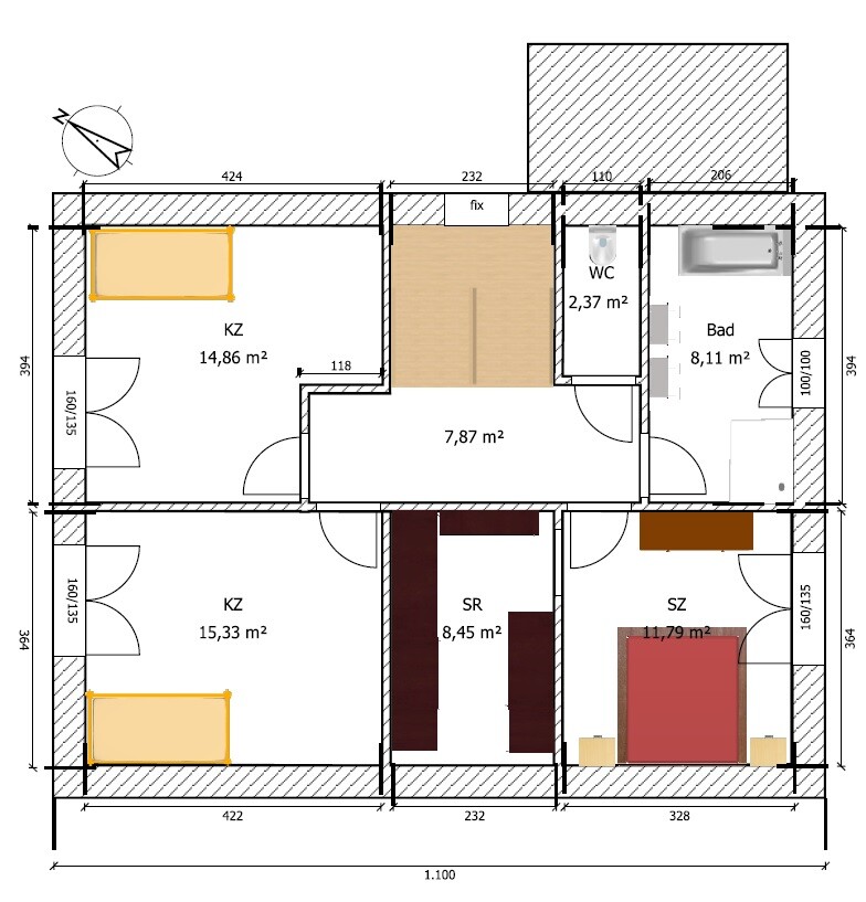
Einiges möchten wir auch am Dachboden über dem OG lagern (hat fast 40m2, aber natürlich mit großteils stark limitierter Raumhöhe)
Die Dusche sollte bei 2.60m Raumhöhe und flacher Duschtasse reinpassen, gibt ein paar Bsp auf google.
Muss aber noch das OK von meinem Baumeister abwarten.
Siehst du den Entwurf dann immer noch eher negativ?
Da ich schon so lange daran plane, sehe ich meinen Entwurf vermutlich schon mit Scheuklappen...
Zur Grundflächenzahl: ich darf 30% bebauen.
Bei meinem Grundstück sind das 195m2, ca 180 werden es bei mir.
Die Terrasse zählt nicht mit, wenn sie nicht überdacht ist.
Beim Lageplan hast du recht, habe die Einfahrt mit eingezeichnet.
Das Haus muss 3m nach hinten gerückt werden, die Garage weitere 2m.
10m Randbebauung sind in Niederösterreich kein Problem.
Wir möchten das Büro als Garderobe nutzen bis es im Pensionsalter ein Schlafzimmer wird.
Einiges möchten wir auch am Dachboden über dem OG lagern (hat fast 40m2, aber natürlich mit großteils stark limitierter Raumhöhe)
Die Dusche sollte bei 2.60m Raumhöhe und flacher Duschtasse reinpassen, gibt ein paar Bsp auf google.
Muss aber noch das OK von meinem Baumeister abwarten.
Siehst du den Entwurf dann immer noch eher negativ?
Da ich schon so lange daran plane, sehe ich meinen Entwurf vermutlich schon mit Scheuklappen...
Ähnliche Themen