ᐅ Stadtvilla Einfamilienhaus Grundriss nach 6 Monaten Planungsphase...
Erstellt am: 11.07.20 22:20
L
Lemmy89Bebauungsplan/Einschränkungen
Größe des Grundstücks 555qm
Hang nein
Grundflächenzahl 0,4
Geschossflächenzahl 2 Vollgeschosse
Baufenster, Baulinie und -grenze Abstand Straße/n 4m 3m Nachbar
Randbebauung Ja Garage
Anzahl Stellplatz 2
Geschossigkeit 2
Dachform keine Einschränkung
Stilrichtung Stadtvilla
Anforderungen der Bauherren
Stilrichtung, Dachform, Gebäudetyp Stadtvilla
Keller, Geschosse kein Keller , 2 Vollgeschosse
Anzahl der Personen, Alter 2 Erwachsene, 2 Kinder (2 & 4 Jahre)
Büro: Familiennutzung oder Homeoffice? kein Büro
Schlafgäste pro Jahr 2
offene oder geschlossene Architektur offen
konservativ oder moderne Bauweise modern
offene Küche, Kochinsel offen ohne Insel aber als U
Anzahl Essplätze 6 bis 8
Kamin ja
Musik/Stereowand nein
Balkon, Dachterrasse ja
Garage, Carport Garage
Nutzgarten, Treibhaus Spiel und Chill Garten
Hausentwurf
Von wem stammt die Planung: von uns mit Ergänzungen des Generalbauunternehmers/Verkäufers
Was gefällt besonders? Warum? offenes EG weil wir dort und im Garten viel Zeit verbringen
Was gefällt nicht? Warum? Gäste-WC eventuell zu klein und Badezimmer im OG schwierig alles hinein zu planen
Preisschätzung lt Architekt/Planer: 280.000
Persönliches Preislimit fürs Haus, inkl Ausstattung:
favorisierte Heiztechnik: Luft-Wasser-Wärmepumpe mit Wohnraumbelüftung
Wenn Ihr verzichten müsst, auf welche Details/Ausbauten
-könnt Ihr verzichten: schwierig even Balkon
-könnt Ihr nicht verzichten: offene Bauweise
Warum ist der Entwurf so geworden, wie er jetzt ist? ZB
Standardentwurf vom Planer?
von uns größtenteils selbst gebastelt
So Hallo erstmal,
Wir planen nun schon seit einiger Zeit unser Haus und ich brauche dringend ehrliche konstruktive Meinungen, da sich im privaten Umfeld alle immer etwas bedeckt halten mit Kritik, was ich sehr schade finde...
schreibt doch einfach mal was ihr denkt ich freue mich sehr darauf
im Anhang unsere Planung, allerdings sind wir noch am überlegen nach hinten also Richtung Terrasse unser Haus 1m zu verlängern, um unserem Wohn/Essbereich dann 0,5m zu gönnen und die anderen 0,5m nachzutücken, sprich den Treppenaufgang usw 0,5m Richtung Terrasse um somit eim Bad OG und Elternschlafzimmer 0,5m mehr Raum zu verpassen auf der gesamten breitenlänge...
Vielen vielen Dank schonmal...
Was würdet Ihr warum wie ändern?
funktioniert unser angedachtes Wohnkonzept so, wie es sich auf dem Plan für jemand mit mehr Fachwissen liest?




Größe des Grundstücks 555qm
Hang nein
Grundflächenzahl 0,4
Geschossflächenzahl 2 Vollgeschosse
Baufenster, Baulinie und -grenze Abstand Straße/n 4m 3m Nachbar
Randbebauung Ja Garage
Anzahl Stellplatz 2
Geschossigkeit 2
Dachform keine Einschränkung
Stilrichtung Stadtvilla
Anforderungen der Bauherren
Stilrichtung, Dachform, Gebäudetyp Stadtvilla
Keller, Geschosse kein Keller , 2 Vollgeschosse
Anzahl der Personen, Alter 2 Erwachsene, 2 Kinder (2 & 4 Jahre)
Büro: Familiennutzung oder Homeoffice? kein Büro
Schlafgäste pro Jahr 2
offene oder geschlossene Architektur offen
konservativ oder moderne Bauweise modern
offene Küche, Kochinsel offen ohne Insel aber als U
Anzahl Essplätze 6 bis 8
Kamin ja
Musik/Stereowand nein
Balkon, Dachterrasse ja
Garage, Carport Garage
Nutzgarten, Treibhaus Spiel und Chill Garten
Hausentwurf
Von wem stammt die Planung: von uns mit Ergänzungen des Generalbauunternehmers/Verkäufers
Was gefällt besonders? Warum? offenes EG weil wir dort und im Garten viel Zeit verbringen
Was gefällt nicht? Warum? Gäste-WC eventuell zu klein und Badezimmer im OG schwierig alles hinein zu planen
Preisschätzung lt Architekt/Planer: 280.000
Persönliches Preislimit fürs Haus, inkl Ausstattung:
favorisierte Heiztechnik: Luft-Wasser-Wärmepumpe mit Wohnraumbelüftung
Wenn Ihr verzichten müsst, auf welche Details/Ausbauten
-könnt Ihr verzichten: schwierig even Balkon
-könnt Ihr nicht verzichten: offene Bauweise
Warum ist der Entwurf so geworden, wie er jetzt ist? ZB
Standardentwurf vom Planer?
von uns größtenteils selbst gebastelt
So Hallo erstmal,
Wir planen nun schon seit einiger Zeit unser Haus und ich brauche dringend ehrliche konstruktive Meinungen, da sich im privaten Umfeld alle immer etwas bedeckt halten mit Kritik, was ich sehr schade finde...
schreibt doch einfach mal was ihr denkt ich freue mich sehr darauf
im Anhang unsere Planung, allerdings sind wir noch am überlegen nach hinten also Richtung Terrasse unser Haus 1m zu verlängern, um unserem Wohn/Essbereich dann 0,5m zu gönnen und die anderen 0,5m nachzutücken, sprich den Treppenaufgang usw 0,5m Richtung Terrasse um somit eim Bad OG und Elternschlafzimmer 0,5m mehr Raum zu verpassen auf der gesamten breitenlänge...
Vielen vielen Dank schonmal...
Was würdet Ihr warum wie ändern?
funktioniert unser angedachtes Wohnkonzept so, wie es sich auf dem Plan für jemand mit mehr Fachwissen liest?
Budget was soll da drinnen sein?
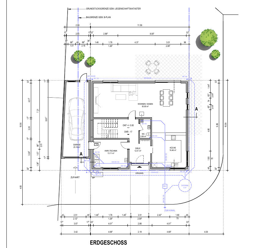
Garage zu schmal. Da bekommt gerade so der schlanke Fahrer die Türe auf. Kinder anschnallen geht nicht. Dann lieber Carport
überall die Möbel im Maßstab inkl. Bewegungsfläche einzeichnen.
der Eingangs/Dielen/WC Bereich gehört überarbeitet. Wirkt beeng durch das reingequetschte WC
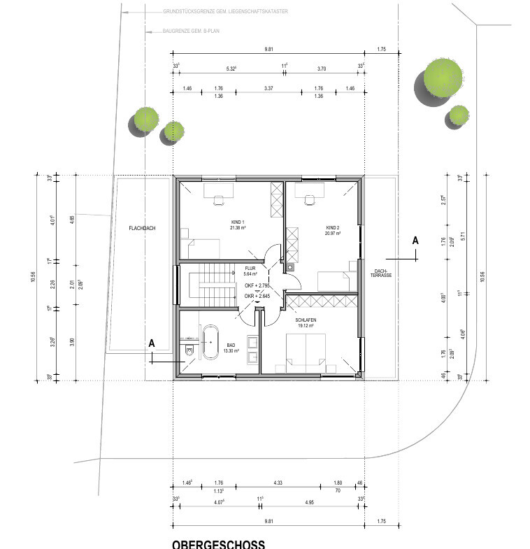
OG ist ok. Evtl die Zimmer tauschen und dem Schlafzimmer den Nord/Westraum geben
ich würde über ein kleines zusätzliches Zimmer nachdenken. Es fehlt ein Abstell/Bügel/Zocker/Ich will meine Ruhe haben Zimmer oft als Büro bezeichnet.
Du schaust Fußball und deine Frau telefoniert, einer muß ins Schlafzimmer sonst stört ihr euch.
Garage zu schmal. Da bekommt gerade so der schlanke Fahrer die Türe auf. Kinder anschnallen geht nicht. Dann lieber Carport
überall die Möbel im Maßstab inkl. Bewegungsfläche einzeichnen.
der Eingangs/Dielen/WC Bereich gehört überarbeitet. Wirkt beeng durch das reingequetschte WC
OG ist ok. Evtl die Zimmer tauschen und dem Schlafzimmer den Nord/Westraum geben
ich würde über ein kleines zusätzliches Zimmer nachdenken. Es fehlt ein Abstell/Bügel/Zocker/Ich will meine Ruhe haben Zimmer oft als Büro bezeichnet.
Du schaust Fußball und deine Frau telefoniert, einer muß ins Schlafzimmer sonst stört ihr euch.
P
Pinky030112.07.20 06:43Mir gefällt der Raum für die Küche nicht. Quadratische Küchenräume sind in der Regel sehr schwer zu möblieren. Finde den Platz auch verschenkt, da zum Esstisch hin auch nochmal Leerraum ist.
Mir fällt leider spontan keine Lösung ein, ohne den ganzen Grundriss über den Haufen zu werfen.
Mir fällt leider spontan keine Lösung ein, ohne den ganzen Grundriss über den Haufen zu werfen.
im EG Wohnen/Essen/Kochen gähnende Leere, ein Tisch und eine Couch.
die Küche ist in der Breite ok, aber viel zu tief mit knapp 6m. Ich würde eine Speise quer planunten einplanen. Die Kinderzimmer sind zu groß, ein kleiner Raum oben, Büro, Bügeln, einfach separat Fernsehschauen. Im EG gibt es keine Privatsphäre.
Schön ist es nicht, wenn man in den Wohnbereich kommt und auf eine Wand schaut.
Lemmy89 schrieb:das ist eine ungünstige Küchenform für einen mehrpersonhaushalt, man blockiert Auszüge, Müll, man muss viel laufen. Küchen ohne Ecken sind immer die bessere Alternative, max eine Ecke.
offene Küche, Kochinsel offen ohne Insel aber als U
die Küche ist in der Breite ok, aber viel zu tief mit knapp 6m. Ich würde eine Speise quer planunten einplanen. Die Kinderzimmer sind zu groß, ein kleiner Raum oben, Büro, Bügeln, einfach separat Fernsehschauen. Im EG gibt es keine Privatsphäre.
Schön ist es nicht, wenn man in den Wohnbereich kommt und auf eine Wand schaut.
Die Tür Garage zum Hauswirtschaftsraum kannst du streichen, denn wenn du da mit dem Auto rein fährst, parkst du diese direkt zu.
Wird der Balkon bzw. Dachterrasse wirklich benutzt oder wie bei vielen nettes Anhängsel ohne nutzen weil man lieber im Garten ist?
Garderobe klein.
Mir persönlich würde ein Zusatzzimmer für Büro, Hobby, Sport, ... fehlen.
Wird es einen Kriechboden geben?
Wohnraum und Küche mal richtig mit Möbeln ausstatten.
Wird der Balkon bzw. Dachterrasse wirklich benutzt oder wie bei vielen nettes Anhängsel ohne nutzen weil man lieber im Garten ist?
Garderobe klein.
Mir persönlich würde ein Zusatzzimmer für Büro, Hobby, Sport, ... fehlen.
Wird es einen Kriechboden geben?
Wohnraum und Küche mal richtig mit Möbeln ausstatten.
Ähnliche Themen