Stadtvilla 160-170 m², Problematik Anschluss Windfang mit Garage

4,50 Stern(e) 4 Votes
Zuletzt aktualisiert 21.11.2025
Sie befinden sich auf der Seite 2 der Diskussion zum Thema: Stadtvilla 160-170 m², Problematik Anschluss Windfang mit Garage
>> Zum 1. Beitrag <<

M

Mottenhausen

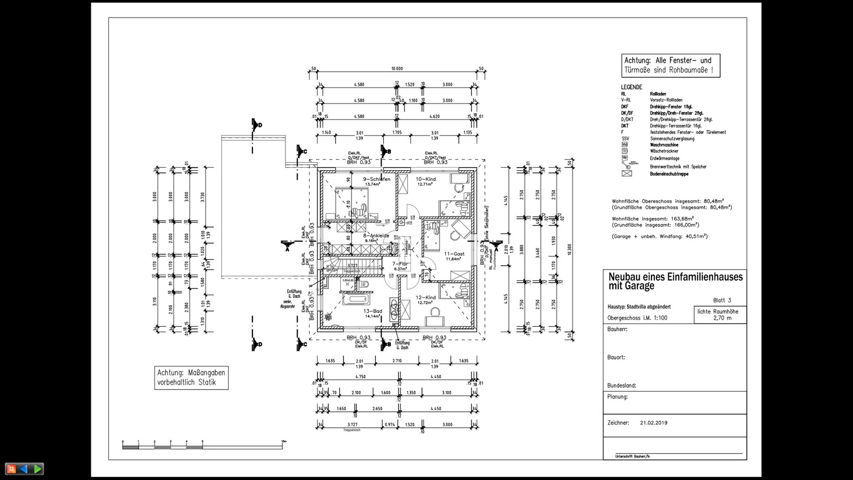
Da ich das identische Town & Country Haus live von einem Arbeitskollegen kenne (OG allerdings die Variante mit nur 2 Kinderzimmer, WC unten ohne Dusche dafür quadratischer Technikraum) kann ich euch sagen: die Treppe ist leider so steil! Läuft sich eher suboptimal.

Die Änderung an der Küche haben sie auch: Tür zum Flur und Wand zum Wohnzimmer ohne Tür. Ist übrigens bei weitem nicht so beengt wie man meinen könnte, trotz des Arbeitszimmers im EG. Der Grundriss ist an sich nicht übel. Wobei die 24er Ytong Außenwände (innen 11,5?)natürlich ihr übriges zur maximalen Platzausnutzung geben.
 
H

Hemingway84

Vielen lieben Dank für eure Beiträge!

Melde mich nun mit dem ersten Zeichnungsentwurf des Bauunternehmens zurück.

Nein, es ist nicht Town & Country. Ich hatte den Town & Country Grundriss nur zum basteln genommen . Die lichte Raumhöhe soll 2,70m betragen. Danke auch für den Hinweis mit der Treppe!

Wir überlegen für den nächsten Entwurf das Haus wohl noch gut 1,0m bis 2,0m nach hinten zu verlängern, um so ein größeres Wohnzimmer realisieren zu können. Meine Partnerin ist es per jetzt zu klein und Spielräume bestehen faktisch keine, da das Arbeitszimmer nicht kleiner werden soll und die Küche eigentlich auch nicht. Auch könnte man so oben die Kinder-/Gästezimmer auch noch etwas größer gestalten. Per jetzt sind die wohl schon etwas klein geraten. Ohne mehr qm bekommen wir diese Anzahl an Räumen wohl nicht ordentlich unter.

Man könnte bei der Dachneigung auch bis auf 45° gehen um so noch unterm Dach auszubauen (bspw. Arbeits- und Gästezimmer nach ganz oben verlegen um so im EG ein größeres Wohnzimmer zu haben). Vll. wäre das günstiger als einfach nur die Grundfläche des Hauses zu vergrößern?
Aber dann ist wohl die Sache mit den Temperaturen unterm Dach (das Arbeitszimmer würde rege genutzt werden) und der Einbindung in die gewünschte aktive Lüftungsanlage.​

Andererseits sind ja nur zwei Vollgeschosse erlaubt. Wie groß dürfte in diesem Gedankenspiel ein Dachausbau denn sein, um keine Probleme beim Bauantrag zu bekommen? Könnte man unter Berücksichtigung der Dachschrägen und der Grundfläche überhaupt ein/zwei brauchbare Räume realisieren?

Sind sicher viele Fragen für das Bauunternehmen, aber das ist so unglaublich träge und selbstgefällig, drum versuche ich mit der Expertise des Forums ein wenig schneller voran zu kommen. Leider hat das wirklich noch preiswerte Grundstück nun mal eine Baubindung :-(.

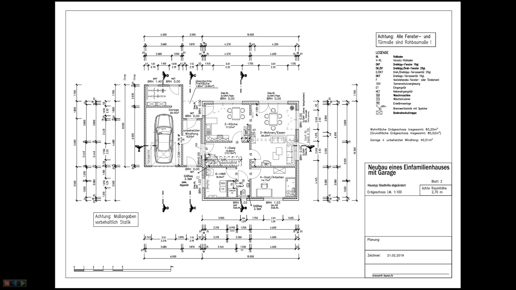
Grundriss eines Einfamilienhauses mit Garage und detaillierter Raumaufteilung.


Grundriss eines Einfamilienhauses mit Garage, Maßangaben und Beschriftungen.
 
H

Hemingway84

Nachtrag: Der eingezeichnete Windfang soll doch eher als zum Flur hin über die ganze breite offener, mit zur Gebäudehülle gehörender Erker realisiert werden.
 
O

Obstlerbaum

Das Gästezimmer frisst relativ viel Platz an prominenter Stelle. Und ihr habt zwei Essbereiche, dafür sind aber beide nicht wirklich geräumig...
 
Zuletzt aktualisiert 21.11.2025
Im Forum Grundrissplanung / Grundstücksplanung gibt es 2535 Themen mit insgesamt 87978 Beiträgen


Ähnliche Themen zu Stadtvilla 160-170 m², Problematik Anschluss Windfang mit Garage
Nr.ErgebnisBeiträge
1Optimierung Winkelbungalow 108 von Town & Country 21
2Meinungen zum Haus-Grundriss erwünscht - Seite 471
3Grundriss Satteldachhaus 172 qm - Bitte um eure Meinungen 23
4Unser Grundriss-Entwurf für ein günstiges Haus - Seite 50348
5Planungsphase Grundriss Einfamilienhaus - Seite 315
6Bungalow 128 Town & Country nach Musterhaus 60
7Town & Country Flair 110 - Extras oder nicht? - Seite 10564
8Treppe im Flur, Grundriss steht eigentlich schon :o( - Seite 320
9Grundriss für 150qm Einfamilienhaus mit Wohnzimmer nach Norden 21
10Grundriss 150 m²-Hauses optimieren - Tipps - Seite 442
11Ideen Meinungen zu Bungalow 131 Grundriss gefragt 19
12Bungalow Grundriss ~16x9.5m ( außen ) in 1000m² mit Altbestand 102
13Grundriss für "mid sized tiny house" / Einfamilienhaus mit knapp 100qm - Seite 249
14Eure Meinung zum Grundriss für das EG 28
15Grundriss Stadtvilla / Feedback Statik, Anordnung - Seite 228
16Feedback zu Grundriss Einfamilienhaus erwünscht 18
17Anregung - Kritik Grundriss Einfamilienhaus 320qm 29
18Gestaltung Grundriss. Was sind eure Meinungen / Vorschläge? 15
19Grundriss für Familie. Hinweise, Kritik Verbesserungsvorschläge 22
20Wohnzimmer Grundrissplanungs-Ideen? - Seite 239

Oben