Sonos Deckenlautsprecher in Betondecke einbauen?!

4,70 Stern(e) 3 Votes
Zuletzt aktualisiert 18.11.2025
Sie befinden sich auf der Seite 2 der Diskussion zum Thema: Sonos Deckenlautsprecher in Betondecke einbauen?!
>> Zum 1. Beitrag <<

I

imsi123


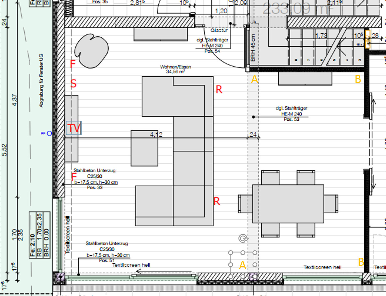
Grundriss EG: Küche, Essbereich, Wohnzimmer, Treppe und Möbel.

So einmal der Bereich. TV an der Wand, 2mal Front+Sub bei TV und dann die 2mal Rear oben an dei Decke. Das war der Plan. Decke abhängen wollen wir nicht. Wir kommen hinterher auf 270, das soll so bleiben. An dioe Decke kommt noch Feuermelder, Accesspoint, Schienensystem vom Fenster zur Treppe über Essbereich( ggf wird Tisch anders gestellt) und Aufbauspot und große Deckenlampe über den Wohnbereich. Die Decke wird schon vollgepackt.....
 
N

nordanney

Ist doch perfekt für eine Aufstellung auf Ständern hinter der Couch (oder daneben hinten). Über alles andere wirst Du Dich nur ärgern. Die Ständer sind nun wirklich sehr filigran, die LS auch eher winzig.

Wenn es schon die Decke werden soll, wie wäre es denn dann mit einer Stromschiene an der Decke und daran mit Montagebügeln die LS. Dann sieht es vielleicht etwas schicker aus, wenn nicht noch Steckdosen an die Decke sollen und Du könntest die LS auch besser ausrichten.
 
Mycraft

Mycraft

Moderator
Sonos wäre wahrscheinlich das letzte was ich jetzt wählen würde für ein 5.1 System aber man könnte alles was man möchte vorher einplanen lassen. Einfach mit dem jeweiligem Planer sprechen. Dieser kann dann die gewünschten Töpfe in die Decke setzten so dass die Statik noch stimmt aber du dann die nötigen Durchmesser und Tiefen hast.

Ich würde aber auch zu "echten" Satelliten auf Ständern raten oder dann eben bei 2.1 bleiben.
 
Zuletzt bearbeitet:
Tolentino

Tolentino

Moin @imsi123,

also ich sehe folgende Alternativen:
Entweder was @nordanney sagt. Ich würde noch ergänzen, dass man eventuell mit einem sehr schmalen Sideboard, dass man hinter dem Sofa aufstellt und ungefähr mit der Höhe des Sofas abschließt arbeiten könnte. Im Heimkinobetrieb würde ich dann die Lautsprecher tatsächlich an die Decke oder gar nach hinten richten. Das ergibt dann einen quasi Dipoleffekt, also eine diffuse Schallwirkung am Hörplatz. Könnte auch alternativ als Stereobeschallung am Esstisch dienen.
Strom dahin zu kriegen könnte eher das Problem sein, aber eventuell könnt ihr ja Bodensteckdosen unters Sofa installieren?
Dann meine Alternative A und B: Hier würde ich eine Wandmontage auf 1,4-1,5m vorsehen (akustisch gesehen besser, oder eben knapp über 2m für die Optik).
Entweder mit verstellbarem Wandhalter, oder einem kleinen Regalboden, ganz schlicht in Wandfarbe, auf dem man den LS auch auf die verschiedenen Höplätze ausrichten kann.

A wäre besser für Heimkino.
B wäre besser um auch mal im Musikmodus (beim Essen oder Party) eine gleichmäßige Beschallung zu erreichen. Hier könnte man auch mit hohen Beistelltischen/Konsolentischen o.ä. arbeiten (ca 1-1,2m Höhe)

Wie hoch ist der Schrank/Vitrine planoben im Essbereich? Wenn nicht zu hoch, kann man auch dort einen LS draufstellen und muss nur den anderen An der Wand installieren.
Die Installation in oder direkt unter der Decke würde ich vermeiden. Ist akustisch einfach nicht optimal, kann man aber machen.
Ohne Center arbeiten geht auch, dann ist allerdings die Dialogverständlichkeit eingeschränkt und das Höerlebnis sehr stark positionsabhängig. Der s.g. Phantomcenter lässt sich nur auf einen Hörplatz optimal einmessen. Wie gesagt, sollte es bei Sonos möglich sein, einen One als Center zu definieren. ob er bei dir unter oder über den Fernseher passt, kann ich natürlich nicht sagen. Optimal wäre eine höhengleiche Aufstellung aller Fronts.

Viel Glück

Tolentino

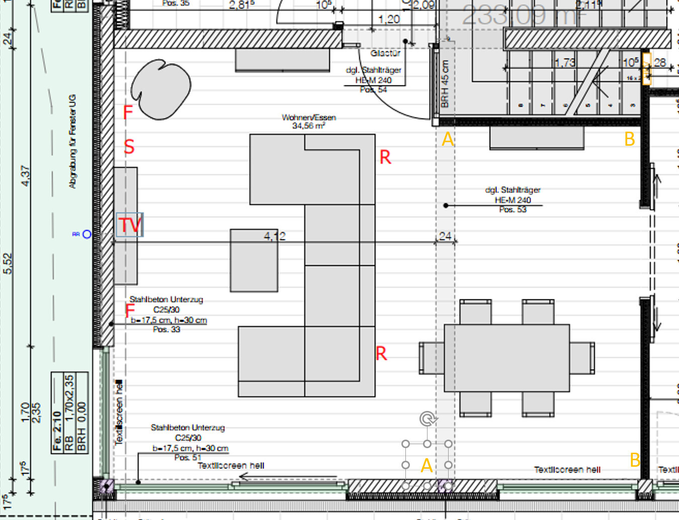
Grundriss eines offenen Wohn- und Essbereichs mit TV, L-förmiger Couch und Esstisch.
 
Nida35a

Nida35a

moin @imsi123
wir hatten das gleiche vor,
neues Haus, großer Wohn/Essbereich, Leitungen verlegt 4mm2 und Bose Brüllwürfel aus der alten Wohnung angeschlossen mit Bassbox,
Ergebnis: zu klein, klingt bemüht, auch 4 oder 6 Sonos sind zu klein.

wenn du gern Musik mit Power oder Heimkino hast, überlege jetzt ob du in Sound investierst,
unsere Lösung ist jetzt Nuvero140 Front und Nuvero60 Rear, die Rears an die Küchenwand,
der Effekt wäre der Raum ist voll mit Kino/Musik,
das gibt es alles auch als Funksystem in das Sonos System einbindbar
Gruß Nida
 
Zuletzt aktualisiert 18.11.2025
Im Forum Elektrik / Elektroplanung gibt es 827 Themen mit insgesamt 13589 Beiträgen


Ähnliche Themen zu Sonos Deckenlautsprecher in Betondecke einbauen?!
Nr.ErgebnisBeiträge
1Hausbauplanung Massivhaus oder Fertighaus. Mit oder ohne Keller? - Seite 1180
2Küchengeräte schwarze Front - Seite 439
3Küche grifflose Front, gut und günstig - welcher Hersteller? - Seite 363
4Front für Spüle/Müll-Kombi - Seite 210
5Unser Grundriss, Wohn-Essbereich - Eure Meinung - Seite 216
6Türanschlag zum Wohn/-Essbereich und Beleuchtung Küche 13
7Anordnung von Deckenspots im Wohnzimmer / Essbereich 13
8Welcher Bodenbelag - Fliesen oder Vinyl im Wohn-/Essbereich? 18
9Notwendiger Platzbedarf Essbereich 10
10Flur und Wohn-/Essbereich selben Bodenbelag? 50
11Beleuchtung von langem schmalen Wohn-Essbereich im Reihenmittelhaus 30
12Wohnzimmer: Wie Sofa, TV und Schränke stellen? 32
13Bodentiefe Fenster - wie Sofa stellen? 12
14Tisch, Stühle, Sofa... wo bloss kaufen? 69
15Tagesbett MELDAL als Sofa benutzen????? 12
16Kramfors Sofa Leder Braun - defekt... 12
17Suche den Ikea Namen für dieses Sofa? 12
18Bodenauslässe (Zuluft) unter Sofa und Schreibtischen? 36
19Varianten zur Anordnung TV- und Sofa-Bereich! - Seite 424
20Mögliche Sofa- und TV-Position im Wohnzimmer gesucht. 15

Oben