Bebauungsplan/Einschränkungen
Größe des Grundstücks: 560qm
Hang: ja, EG 50% im Hang
Grundflächenzahl: 0,3
Geschossflächenzahl: 0,5
Baufenster, Baulinie und –grenze – kein Problem, da Bestandsgebäude mit genehmigten Ausnahmen
Randbebauung: Eckgrundstück, Nordwestlich ein Nachbarhaus
Anzahl Stellplatz: Aktuell eine Garage
Geschossigkeit: zwei Geschosse +teilweise ausgebautes Dachgeschoss
Dachform: Pulkdach, erweitert/versetzt
Stilrichtung: Standardhaus
Ausrichtung: Nordwestlich
Maximale Höhen/Begrenzungen: EG Decke 2,75, OG Decke 2,90
weitere Vorgaben: keine
Anforderungen der Bauherren
Stilrichtung, Dachform, Gebäudetyp: Sanierung ohne siginifikaten Eingriff in die Gebäudestruktur
Keller, Geschosse 2+1
Anzahl der Personen, Alter: vier Personen (zwei Erwachsene, zwei Kinder) + Gast + AuPair
Raumbedarf im EG, OG: Wohnzimmer/Esszimmer + separate Küche, zwei Kinderzimmer, Gästezimmer + Arbeitszimmer
Büro: Familiennutzung oder Homeoffice? Arbeitszimmer
Schlafgäste pro Jahr: AuPair und alle 3-4 Wochen 1-2 Personen, in Ausnahmen 3-4 Personen
offene oder geschlossene Architektur: Offene Architektur, aber nach Möglichkeit eine geschlossene Küche, viele Licht
konservativ oder moderne Bauweise: Gerne moderne Bauweise
offene Küche, Kochinsel: geschlossene Küche
Anzahl Essplätze: 6-8 Plätze
Kamin: Nicht zwingend
Musik/Stereowand: nicht zwingend
Balkon, Dachterrasse: Ja –vorhandene nutzen bzw im 1. OG erweitern
Garage, Carport: Ja, Garage und Carport
Nutzgarten, Treibhaus: nicht zwingend
weitere Wünsche/Besonderheiten/Tagesablauf, gern auch Begründungen, warum dieses oder das nicht sein soll
Hausentwurf
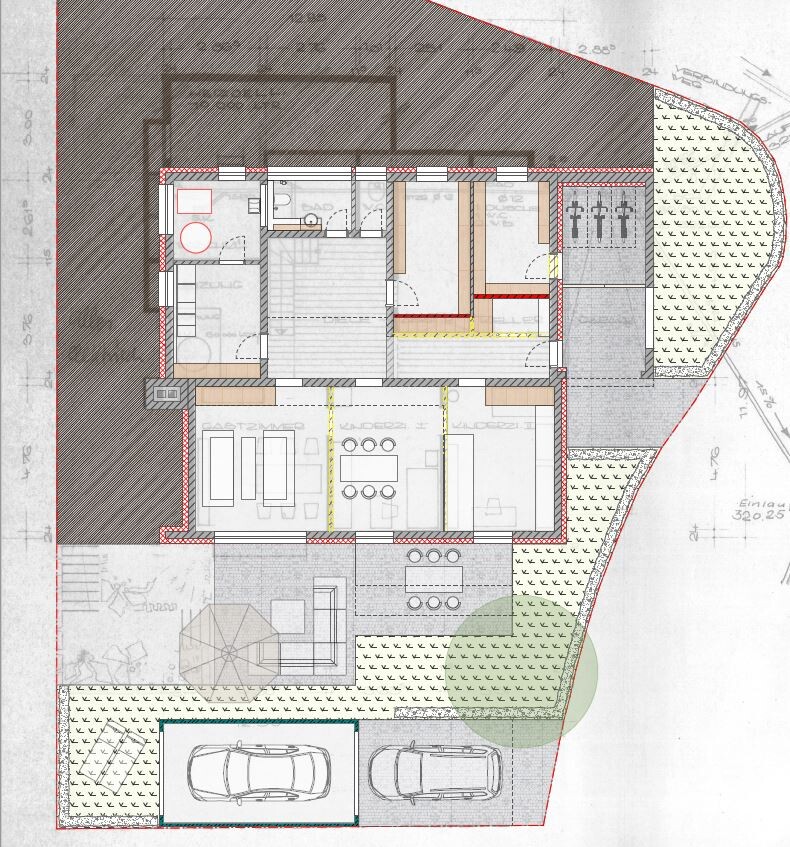
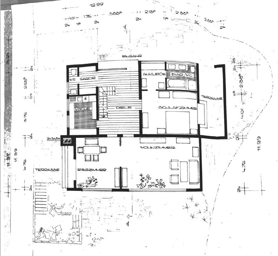
Von wem stammt die Planung: befreundeter Architekt, interessant ist das OG (bisheriger Eingang mit Foyer, Wohn- und Esszimmer und Elternschlafzimmer) mit dem EG zu tauschen. Uns gefällt es die Kinder und Elternschlafzimmer auf eine Ebene zu nehmen und das Haus in einen öffentlichen und einen privaten Teil zu teilen. In der Planung haben wir ein Zimmer verloren, dieses gefällt uns nicht.
Zu sanieren sind:
Persönliches Preislimit fürs Haus, inkl Ausstattung: 450.000
favorisierte Heiztechnik: noch offen – entweder Gas + Solar oder Erdwärme – Ziel ist ein KFW 100 oder 115 Haus.
Wenn Ihr verzichten müsst, auf welche Details/Ausbauten
-könnt Ihr verzichten: 3. Bad im Dachgeschoss
-könnt Ihr nicht verzichten: großen Wohn- und Esszimmer
Warum ist der Entwurf so geworden, wie er jetzt ist? ZB
Standardentwurf vom Planer? Architekt hat einen freien Schuss bekommen – wir waren uns nicht so einig, ob wir Eltern- und Kinderschlafzimmer auf eine Ebene ziehen wollen
Entsprechende/Welche Wünsche wurden vom Architekten umgesetzt? Es wurden bisher noch keine Wünsche geäußert
Was ist die wichtigste/grundlegende Frage zum Grundriss in 130 Zeichen zusammengefasst?
Macht es Sinn den bisherigen Grundriss aus 1960 – mit Eingang im ersten OG mit Wohn- und Esszimmer und einem gekapselten Elternschlafzimmer so zu ändern, dass der öffentliche Bereich ins EG umgezogen wird und das OG und DG als privater Bereich für Kinder und Gäste (mit einem privaten Garten) geschaffen wird. Macht der Grundriss Sinn oder würdet ihr es komplett anders angehen?






Größe des Grundstücks: 560qm
Hang: ja, EG 50% im Hang
Grundflächenzahl: 0,3
Geschossflächenzahl: 0,5
Baufenster, Baulinie und –grenze – kein Problem, da Bestandsgebäude mit genehmigten Ausnahmen
Randbebauung: Eckgrundstück, Nordwestlich ein Nachbarhaus
Anzahl Stellplatz: Aktuell eine Garage
Geschossigkeit: zwei Geschosse +teilweise ausgebautes Dachgeschoss
Dachform: Pulkdach, erweitert/versetzt
Stilrichtung: Standardhaus
Ausrichtung: Nordwestlich
Maximale Höhen/Begrenzungen: EG Decke 2,75, OG Decke 2,90
weitere Vorgaben: keine
Anforderungen der Bauherren
Stilrichtung, Dachform, Gebäudetyp: Sanierung ohne siginifikaten Eingriff in die Gebäudestruktur
Keller, Geschosse 2+1
Anzahl der Personen, Alter: vier Personen (zwei Erwachsene, zwei Kinder) + Gast + AuPair
Raumbedarf im EG, OG: Wohnzimmer/Esszimmer + separate Küche, zwei Kinderzimmer, Gästezimmer + Arbeitszimmer
Büro: Familiennutzung oder Homeoffice? Arbeitszimmer
Schlafgäste pro Jahr: AuPair und alle 3-4 Wochen 1-2 Personen, in Ausnahmen 3-4 Personen
offene oder geschlossene Architektur: Offene Architektur, aber nach Möglichkeit eine geschlossene Küche, viele Licht
konservativ oder moderne Bauweise: Gerne moderne Bauweise
offene Küche, Kochinsel: geschlossene Küche
Anzahl Essplätze: 6-8 Plätze
Kamin: Nicht zwingend
Musik/Stereowand: nicht zwingend
Balkon, Dachterrasse: Ja –vorhandene nutzen bzw im 1. OG erweitern
Garage, Carport: Ja, Garage und Carport
Nutzgarten, Treibhaus: nicht zwingend
weitere Wünsche/Besonderheiten/Tagesablauf, gern auch Begründungen, warum dieses oder das nicht sein soll
Hausentwurf
Von wem stammt die Planung: befreundeter Architekt, interessant ist das OG (bisheriger Eingang mit Foyer, Wohn- und Esszimmer und Elternschlafzimmer) mit dem EG zu tauschen. Uns gefällt es die Kinder und Elternschlafzimmer auf eine Ebene zu nehmen und das Haus in einen öffentlichen und einen privaten Teil zu teilen. In der Planung haben wir ein Zimmer verloren, dieses gefällt uns nicht.
Zu sanieren sind:
- Fassade, Sanitär, Elektro, Küche, Dach und Heizung
Persönliches Preislimit fürs Haus, inkl Ausstattung: 450.000
favorisierte Heiztechnik: noch offen – entweder Gas + Solar oder Erdwärme – Ziel ist ein KFW 100 oder 115 Haus.
Wenn Ihr verzichten müsst, auf welche Details/Ausbauten
-könnt Ihr verzichten: 3. Bad im Dachgeschoss
-könnt Ihr nicht verzichten: großen Wohn- und Esszimmer
Warum ist der Entwurf so geworden, wie er jetzt ist? ZB
Standardentwurf vom Planer? Architekt hat einen freien Schuss bekommen – wir waren uns nicht so einig, ob wir Eltern- und Kinderschlafzimmer auf eine Ebene ziehen wollen
Entsprechende/Welche Wünsche wurden vom Architekten umgesetzt? Es wurden bisher noch keine Wünsche geäußert
Was ist die wichtigste/grundlegende Frage zum Grundriss in 130 Zeichen zusammengefasst?
Macht es Sinn den bisherigen Grundriss aus 1960 – mit Eingang im ersten OG mit Wohn- und Esszimmer und einem gekapselten Elternschlafzimmer so zu ändern, dass der öffentliche Bereich ins EG umgezogen wird und das OG und DG als privater Bereich für Kinder und Gäste (mit einem privaten Garten) geschaffen wird. Macht der Grundriss Sinn oder würdet ihr es komplett anders angehen?
Die Begrifflichkeiten werden in der Diskussion für Verwirrung sorgen, ein UG - ibs. wenn der Eingang im Geschoss darüber liegt - würde ich nicht als EG bezeichnen; auch wundert mich die Darstellung des "EG alt" mit Lichtschächten und des "EG neu" wie ebenerdig - soll das Gelände um das Haus herum verändert werden ? - und der Öltankraum wird dabei abgebrochen ? - eine Ergänzung um Schnitte könnte erhellen.
https://www.instagram.com/11antgmxde/
https://www.linkedin.com/company/bauen-jetzt/
https://www.instagram.com/11antgmxde/
https://www.linkedin.com/company/bauen-jetzt/
Danke für den Hinweis. Durch die Hanglage ist der Eingang aktuell im 1.OG und im EG sind noch zwei Abstellräume, die mürb Lichtschächte haben. Der Ölkeller ist nie gebaut worden, weil das Haus dann komplett elektrisch betrieben wurde. Die im Original vorhanden Lichtschächte würden wir erhalten. Eine Änderung oder Abtragung des Hügels würde zu kostspielig werden.
Ähnliche Themen