ᐅ Einfamilienhaus Süd-Hang Grundriss - Bitte um Feedback
Erstellt am: 18.05.21 15:35
E
EFH-Sued-Hang18.05.21 15:35Hallo zusammen, nach langem Tüfteln würden wir uns über Feedback zu unserem Grundriss sehr freuen ☺️
Bebauungsplan/Einschränkungen
Es handelt sich um ein Neubaugebiet.
Grundstücksgröße ca. 700 qm
Süd-Hang mit Zufahrt im Norden und schönem Ausblick in Richtung Süden
2 Stellplätze pro Wohneinheit: 2 im Carport, 2 vor dem Haus parallel zur Straße
Grundflächenzahl, Geschossflächenzahl und weitere Regelungen sind im Bebauungsplan recht großzügig gehalten und wurden bei der Planung berücksichtigt
Anforderungen der Bauherren
Holzständerbauweise mit flachem Satteldach
Aktuell 2 Erwachsene (32 Jahre) und 1 Kind (1 Jahr), zukünftig 1-2 weitere Kinder
Räume:
Hausentwurf
Vorwiegend eigene Planung
Zusammenarbeit mit einem Bauunternehmen und einer Architektin
Uns ist zunächst wichtig unseren Traum-Grundriss zu gestalten. Preislich wurde uns ganz grob 540.000 € genannt.
KfW40+ mit 10 kWP Photovoltaik und Batterie mit 10 kWh
Heizung & Lüftung:
• luftwärmepumpe
• zentrale Lüftungsanlage mit eventuellem Entalpie Wärmetauscher
• Fußbodenheizung (aber nicht in der Speisekammer, eventuell mit Kühlmöglichkeit)
Weiteres:
• vermutlich Grundausstattung für Loxone Smart Home
• eventuell Entkalkungsanlage
• eventuell Decken-LEDs in Räumen ohne sichtbaren Dachstuhl
Warum ist der Entwurf so geworden, wie er jetzt ist? ZB
Aufgrund der Hanglage würden wir gerne den Wohn- und Aufenthaltsraum im EG (= oberes Geschoss) haben sowie zwei zusätzliche Zimmer. Da das EG durch den Hang über dem zweiten Stockwerk (dem UG) ist, muss das UG zwangsläufig gleich groß werden. Alternativ bräuchte man einen herausragendes Obergeschoss, was preislich wohl extrem teuer ist.
Die Zusatz-Fläche im UG, die wir nicht als Wohnfläche benötigen befindet sich sowieso im Hang, sodass dies im Grunde ein Keller ist.
Was ist die wichtigste/grundlegende Frage zum Grundriss in 130 Zeichen zusammengefasst?
Wir findet ihr die Raumaufteilung? Fällt euch etwas negativ aus? Oder was würdet ihr ändern?
Wir findet ihr die Raumgrößen?
Wird es durch die Süd-Ausrichtung und die vielen Fenster im Sommer zu warm?
Wir freuen uns auf eure Ideen, Gedanken und Tipps!



Bebauungsplan/Einschränkungen
Es handelt sich um ein Neubaugebiet.
Grundstücksgröße ca. 700 qm
Süd-Hang mit Zufahrt im Norden und schönem Ausblick in Richtung Süden
2 Stellplätze pro Wohneinheit: 2 im Carport, 2 vor dem Haus parallel zur Straße
Grundflächenzahl, Geschossflächenzahl und weitere Regelungen sind im Bebauungsplan recht großzügig gehalten und wurden bei der Planung berücksichtigt
Anforderungen der Bauherren
Holzständerbauweise mit flachem Satteldach
Aktuell 2 Erwachsene (32 Jahre) und 1 Kind (1 Jahr), zukünftig 1-2 weitere Kinder
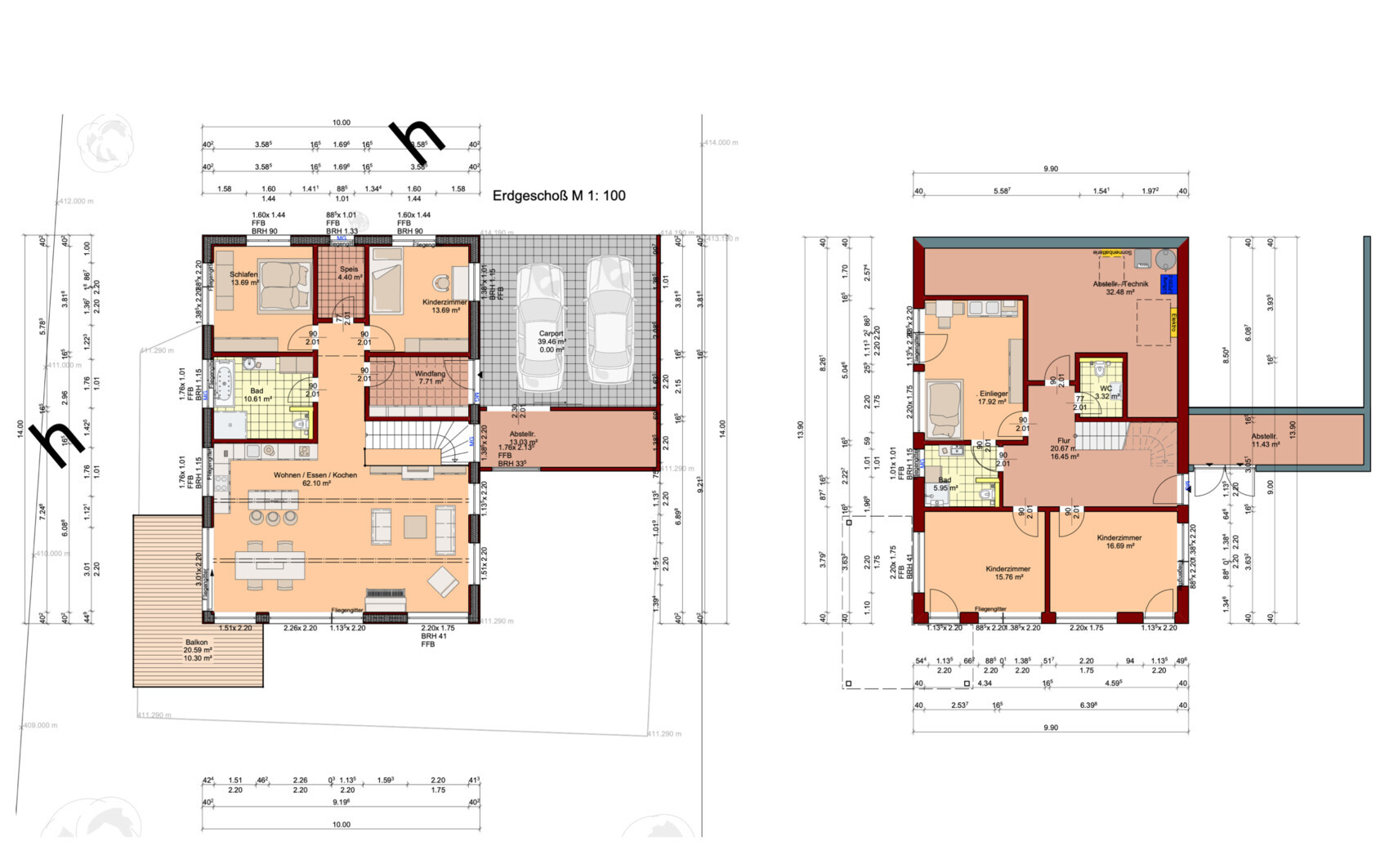
Räume:
- offene Wohn-Ess-Küche
- 5 (fast) gleichwertige Zimmer zur Nutzung (je nach Lebenslage) als Eltern-Schlafzimmer, Kinderzimmer, Büro, Home-Office-Büro oder Vermietung als Einliegerwohnung
- Familienbad (inkl. Waschmaschine und Trockner)
- Kinderbad (alternativ als Bad der Einliegerwohnung)
- Gäste-WC (inkl. Abflussbecken)
- Speise-/Rumpelkammer
- Stauraum inkl. Technikraum
- Carport mit Fahrrad-Schuppen und Teil-Unterkellerung (als Gartenhäuschen)
- Balkon
- EG = Wohnfläche, da schöner Ausblick
- UG = teilweise Keller, teilweise normale Räume Richtung Garten (geht sich vom Hang her gut aus)
- Offener Dachstuhl über dem großen Wohn-Ess-Bereich
- Zwischendecke mit Dachboden über den weiteren Zimmern im EG
- Sitzfenster im Wohn-Ess-Bereich sowie ggf. in den Zimmern im UG
- Barrierearm
- Direkter ebenerdiger und überdachter Eingang vom Carport ins Haus
- Großzügiger Balkon → Wie würdet ihr den Balkon beschatten, sodass man im Hochsommer, aber auch im leicht windigen und regnerischen Frühling dort verweilen kann und man sich trotzdem im Freien fühlt (kein Wintergarten)?
- Wir haben gezielt auf einen Hauswirtschaftsraum verzichtet
- Aktuell haben wir an allen Fenstern Raffstores geplant. Da die beiden Kinderzimmer im UG Richtung Süden ausgerichtet sind, wird man hier eine Beschattung benötigen. Findet ihr Raffstores für Schlafräume geeignet?
- Wir haben bisher keine Dachfenster eingeplant, da diese angeblich eher wartungsintensiv sind. Würdet ihr noch mit Dachfenstern arbeiten?
- Durch die Raumaufteilung im UG, könnte man ein Zimmer oder mit nachträglicher Zwischenwand zwei oder sogar drei Zimmer vermietet werden.
Hausentwurf
Vorwiegend eigene Planung
Zusammenarbeit mit einem Bauunternehmen und einer Architektin
- Wir finden die Raumaufteilung und den Grundriss im EG super, was meint ihr?
- Im UG müssen wir noch ein paar Wände verschieben, aber die Raumaufteilung gefällt uns bereits so. Was meint ihr?
- Wir haben das Haus Richtung Süden ausgerichtet. Wird es so im Sommer zu warm?
- Wir haben viele Fenster eingeplant (davon nur wenige zum Öffnen). → Würdet ihr lieber weniger Fenster empfehlen? (Hitze im Sommer, Blick durch Nachbarn)
→ Reicht es, wenn in jedem Raum nur wenige Fenster zum Öffnen sind?
Uns ist zunächst wichtig unseren Traum-Grundriss zu gestalten. Preislich wurde uns ganz grob 540.000 € genannt.
KfW40+ mit 10 kWP Photovoltaik und Batterie mit 10 kWh
Heizung & Lüftung:
• luftwärmepumpe
• zentrale Lüftungsanlage mit eventuellem Entalpie Wärmetauscher
• Fußbodenheizung (aber nicht in der Speisekammer, eventuell mit Kühlmöglichkeit)
Weiteres:
• vermutlich Grundausstattung für Loxone Smart Home
• eventuell Entkalkungsanlage
• eventuell Decken-LEDs in Räumen ohne sichtbaren Dachstuhl
Warum ist der Entwurf so geworden, wie er jetzt ist? ZB
Aufgrund der Hanglage würden wir gerne den Wohn- und Aufenthaltsraum im EG (= oberes Geschoss) haben sowie zwei zusätzliche Zimmer. Da das EG durch den Hang über dem zweiten Stockwerk (dem UG) ist, muss das UG zwangsläufig gleich groß werden. Alternativ bräuchte man einen herausragendes Obergeschoss, was preislich wohl extrem teuer ist.
Die Zusatz-Fläche im UG, die wir nicht als Wohnfläche benötigen befindet sich sowieso im Hang, sodass dies im Grunde ein Keller ist.
Was ist die wichtigste/grundlegende Frage zum Grundriss in 130 Zeichen zusammengefasst?
Wir findet ihr die Raumaufteilung? Fällt euch etwas negativ aus? Oder was würdet ihr ändern?
Wir findet ihr die Raumgrößen?
Wird es durch die Süd-Ausrichtung und die vielen Fenster im Sommer zu warm?
Wir freuen uns auf eure Ideen, Gedanken und Tipps!
Ich helfe mal @driver55, bevor er selbst seinen Beitrag aus einem anderen Forum kopieren muss:
Driver55 schrieb:
Ich muss gestehen, ich habe keine Ahnung was vorne/hinten/oben ist und was wann/wie/weshalb evtl. als Einliegerwohnung vermietet werden soll.
Chaos pur und Raumaufteilung furchtbar.
Nur soviel. Deine 62 qm W/E/K sind knappe 50 qm.
Aber darauf muss man genaugenommen überhaupt nicht eingehen, weil das gesamte Konstrukt mehr als fragwürdig ist.
H
hampshire18.05.21 16:01Einfamilienhaus-Sued-Hang schrieb:
Süd-Hang mit Zufahrt im Norden und schönem Ausblick in Richtung SüdenGlückwunsch!Einfamilienhaus-Sued-Hang schrieb:
Wie würdet ihr den Balkon beschatten, sodass man im Hochsommer, aber auch im leicht windigen und regnerischen Frühling dort verweilen kann und man sich trotzdem im Freien fühlt (kein Wintergarten)?Sonnensegel aus natürlichem Material. Würde zum Stil des Hauses passen, wenn die Fassade wie angedeutet aus Holz ist. wird in der dunklen Jahreszeit einfach demontiert.Einfamilienhaus-Sued-Hang schrieb:
Wir haben das Haus Richtung Süden ausgerichtet. Wird es so im Sommer zu warm?Das ist Neigungs- und Verschattungssache. Mir wäre das nicht zu warm.Einfamilienhaus-Sued-Hang schrieb:
Würdet ihr lieber weniger Fenster empfehlen? (Hitze im Sommer, Blick durch Nachbarn)Auf keinen Fall!Einfamilienhaus-Sued-Hang schrieb:
Reicht es, wenn in jedem Raum nur wenige Fenster zum Öffnen sind?Ich lebe gerne an wärmeren Tagen "drinnen=draußen". Da können mir ebenerdige Öffnungen nach draußen nicht groß genug sein.Einfamilienhaus-Sued-Hang schrieb:
Wir findet ihr die Raumaufteilung?Mir gefällt der klare Pragmatismus der Lösung. Der Wohnraum kann ein Schmuckstück werden. Die Zusatzräume hinter dem Carport und eine Ebene darunter sind pfiffig und werden sich in der Praxis gut bewähren. Die Eingangslösung durch den Carport kann mitunter eng werden. Kenne das aus vielen englischen Häusern. Die Einliegerlösung ist disfunktional mit indischem Klo (jenseits des Ganges). Mir gefällt's trotzdem.Einfamilienhaus-Sued-Hang schrieb:
Fällt euch etwas negativ aus?Wenn die "Speisekammer" eine echte solche ist, ist sie recht weit von der Küche entfernt. Als Abstellraum auch für Getränke klappt das prima.Der "Einlieger" ist nicht gut genug vom Rest des Hauses getrennt, man muss sich schon sehr gut verstehen, wenn es ein "Fremder" ist. Ich würde den Raum lassen und die Idee einen Einlieger dort wohnen zu lassen knicken. Maximal Air BnB Messegäste...
Carport ist etwas zu schmal. Die alten und schmalen Automodelle, die auch noch ausstiegsunfreundlich geparkt sind suggierieren mehr Platz als da ist. Sobald Kinder mit ihren Fahrzeugen dazu kommen wird es eng - sollten wirklich 2 Autos zum Unterstellen vorgesehen sein.
Einfamilienhaus-Sued-Hang schrieb:
Oder was würdet ihr ändern?Einliegerbereich überdenkenCarport verbreitern
Einfamilienhaus-Sued-Hang schrieb:
Wir findet ihr die Raumgrößen?Die Zimmer sind zwar recht klein aber durch ihre klare Form gut nutzbar. Ich finde die Raumgrößen gut.Einfamilienhaus-Sued-Hang schrieb:
Wird es durch die Süd-Ausrichtung und die vielen Fenster im Sommer zu warm?s.o.Ich finde sowohl den Eingang im Carport/Garage, als auch fehlenden Gartenzugang aus den Wohnräumen ungünstig.
Schon angesprochen wurde, dass die Speis sehr weit von der Küche weg ist und viel Fläche für Flur/Abstellräume draufgeht.
Für die Mini Einliegerwohnung(/zimmer) inkl. merkwürdigem Bad mit 2 Türen gibt es einen konkreten Verwendungszweck, Au-Pair oder so? Oder soll das im wesentlichen nur dem Abgreifen von Subventionen für noch eine Wohneinheit dienen?
Schon angesprochen wurde, dass die Speis sehr weit von der Küche weg ist und viel Fläche für Flur/Abstellräume draufgeht.
Für die Mini Einliegerwohnung(/zimmer) inkl. merkwürdigem Bad mit 2 Türen gibt es einen konkreten Verwendungszweck, Au-Pair oder so? Oder soll das im wesentlichen nur dem Abgreifen von Subventionen für noch eine Wohneinheit dienen?
H
hampshire18.05.21 16:24Gudeen. schrieb:
als auch fehlenden Gartenzugang aus den Wohnräumen ungünstigDie Terrasse bietet eine schöne Möglichkeit einen Gartenzugang Richtung Norden bereit zu stellen. Das würde mir reichen.Gudeen. schrieb:
Oder soll das im wesentlichen nur dem Abgreifen von Subventionen für noch eine Wohneinheit dienen?Wäre eine Erklärung.Mich stört - wie so oft - der fehlende Gartenzugang.
Der Garten ist von den Wohnräumen nicht direkt zugänglich.
Soll nur auf der Terrasse gegessen, getrunken, gespielt werden?
So habt ihr den gleichen Aufwand wie ein Spielplatzbesuch.
Ihr schränkt euch ein wie bei einer Wohnung.
Außen gehört doch genauso zum Leben
Zeichne einmal alle Möbel ein mit Bewegungsraum. Der Durchgang Esstisch Terrasse wird klein
Schlafzimmer Türe auf und da ist der Schrank wirkt beengt. Der Durchgang Bett, Schrank wird so eng, dass die Türen bzw. Schubladen nicht richtig aufgehen.
Großes Haus und einige Punkte die alles klein wirklen lassen.
Wo wollt ihr Wäsche waschen?
Wie hoch ist das Budget?
Einlieger mit 18 qm?
Der Garten ist von den Wohnräumen nicht direkt zugänglich.
Soll nur auf der Terrasse gegessen, getrunken, gespielt werden?
So habt ihr den gleichen Aufwand wie ein Spielplatzbesuch.
Ihr schränkt euch ein wie bei einer Wohnung.
Außen gehört doch genauso zum Leben
Zeichne einmal alle Möbel ein mit Bewegungsraum. Der Durchgang Esstisch Terrasse wird klein
Schlafzimmer Türe auf und da ist der Schrank wirkt beengt. Der Durchgang Bett, Schrank wird so eng, dass die Türen bzw. Schubladen nicht richtig aufgehen.
Großes Haus und einige Punkte die alles klein wirklen lassen.
Wo wollt ihr Wäsche waschen?
Wie hoch ist das Budget?
Einlieger mit 18 qm?
Ähnliche Themen