ᐅ Grundriss 2-geschossige Stadtvilla - Änderungsvorschläge/Ideen
Erstellt am: 15.04.18 20:11
N
NenschnLiebe Forumsmitglieder,
bislang war ich eher stille Mitleserin und hab Ideen für die Zukunft gesammelt. Die Zukunft ist jetzt Realität und so soll der Hausbau realisiert werden.
Dank Forum und Hausbaukatalogen haben wir (m31/w28) eigentlich ziemlich konkrete Vorstellungen gehabt, wie der Grundriss aussehen soll. Leider bin im Thema räumliches Vorstellungsvermögen und Skizzieren eine ziemliche Niete und somit kann ich meine Ideen auch nicht zu Papier bringen. Unsere befreundete Architektin hat nachfolgenden Grundriss nach einem Gespräch mit uns realisiert. Was soll ich sagen? Wir sind noch etwas unglücklich, da unsere Wünsche nicht so gut umgesetzt wurden. Bevor ich viel schreibe, denke ich, macht es mehr Sinn den Fragenkatalog auszufüllen, damit ihr eine Idee davon bekommt, was wir uns vorstellen und was wir bauen dürfen. Ich bin sehr dankbar um Ideen/Anreize und Änderungsmöglichkeiten! Danke im Voraus 🙂
Bebauungsplan/Einschränkungen:
Größe des Grundstücks: 892qm
Hang: nein
Grundflächenzahl: 0,3
Geschossflächenzahl: 0,6 bei 2-geschossig
Baufenster, Baulinie und -grenze: offene Bauweise,
Anzahl Stellplatz: 2, bei Garage: Stauraum von 5m Tiefe
Geschossigkeit: max. 2-geschossig
Dachform: Pult- (10-25Grad) , Walm-, und Satteldach (15-30 Grad bei Wandhöhe 6,50, 15-40 Grad bei Wandhöhe unter 5,0m)
Stilrichtung: offen
Ausrichtung:
Maximale Höhen/Begrenzungen: TH (Traufhöhe) 6,50m über OK Straße, FH (Firsthöhe) bei Pultdächer max. 7,50m über OK Straße, OK Fertigfußboden EG max. 50cm über OK Straße, Garage max. 3,0m
Anforderungen der Bauherren
Stilrichtung, Dachform, Gebäudetyp: Stadtvilla/Kubus, Walmdach/Zeltdach, Einfamilienhaus
Keller, Geschosse: kein Keller, 2 Geschosse
Anzahl der Personen, Alter: 2 (m 31/ w28), später 1-2 Kinder
Raumbedarf im EG, OG: ca. 100qm pro Geschoss
Büro: Familiennutzung oder Homeoffice? Homeoffice
Schlafgäste pro Jahr: circa 2-4
offene oder geschlossene Architektur: offen, aber mit Möglichkeit zum schließen zw. Wohnzimmer und Küche/Esszimmer
konservativ oder moderne Bauweise: Kombi
offene Küche, Kochinsel: Küche & Esszimmer offen, Kochinsel
Anzahl Essplätze: 8-12
Kamin: Kachelofen
Balkon, Dachterrasse: optional, aber nicht unbedingt, wenn großzügige Terrasse
Garage, Carport: Doppelgarage mit angrenzendem Raum für Gartengeräte/-möbel, sowie Zugang über Hauswirtschaftsraum ins Haus, Überlegung hinsichtlich Drittgarage an der Südseite
Nutzgarten, Treibhaus: später geplant
weitere Wünsche/Besonderheiten/Tagesablauf, gern auch Begründungen, warum dieses oder das nicht sein soll:
EG
- Büro mit Möglichkeit zur Umfunktionierung als Schlafzimmer für Alter
- Gäste-WC mit Dusche (Altersnutzung)
- Schiebetür zwischen Küche/Esszimmer und Wohnzimmer
- Hauswirtschaftsraum als Durchgang vom Haus in Garage
- Speisekammer an Küche angegliedert
- Küche mit Kochinsel
- Lichtdurchflutete Räume, gerne große Fenster/Glasschiebetür auf Terrasse
OG
- Stauraum unter der Treppe
- Bad: vllt T-Lösung? Begehbare Dusche ohne Türe, zwei Waschbecken, Badewanne
- Schlafzimmer- Ankleidezimmer- Bad gern mit Durchgangsmöglichkeit
- 2 Kinderzimmer
- Kein Kinderbad!
- Optional: kleine Abstellkammer
- Optional: Galerie
Hausentwurf
Von wem stammt die Planung: befreundete Architektin
Was gefällt besonders? Warum? Extra Zugang Garage, Stauraum unter Treppe genutzt, Büro nahe Hauseingang (Kunden müssen nicht durchs Haus)
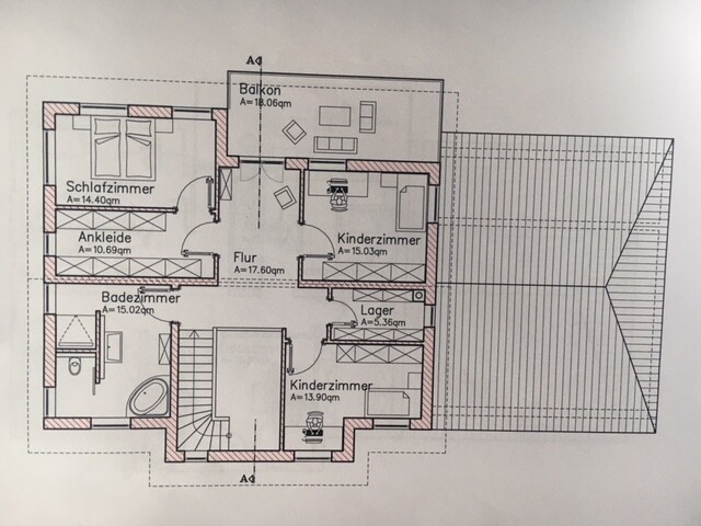
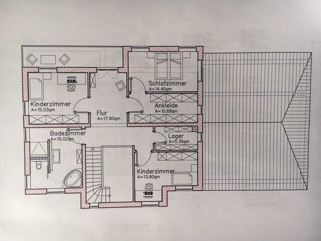
Was gefällt nicht? Warum? Insgesamt verwinkelter Grundriss,
EG: Kochen/Essen nicht auf einer Höhe, keine Schiebetür zw. Kochen/Essen und Wohnzimmer, Durchgang durch Technikraum statt, wie gewollt Hauswirtschaftsraum, Hauswirtschaftsraum zu klein, Kachelofen fehlt
OG: Schlafzimmer/Ankleide/Bad als Durchgang nicht umgesetzt, Zugang Schlafzimmer durch Ankleide, Kinderzimmer etwas klein
Wenn Ihr verzichten müsst, auf welche Details/Ausbauten
-könnt Ihr verzichten: Balkon, Galerie, freistehende Badewanne
-könnt Ihr nicht verzichten: Schiebetür zw. Kochen/Essen und Wohnzimmer, Schlafzimmer/Ankleide/Bad mit Durchgangsmöglichkeit





bislang war ich eher stille Mitleserin und hab Ideen für die Zukunft gesammelt. Die Zukunft ist jetzt Realität und so soll der Hausbau realisiert werden.
Dank Forum und Hausbaukatalogen haben wir (m31/w28) eigentlich ziemlich konkrete Vorstellungen gehabt, wie der Grundriss aussehen soll. Leider bin im Thema räumliches Vorstellungsvermögen und Skizzieren eine ziemliche Niete und somit kann ich meine Ideen auch nicht zu Papier bringen. Unsere befreundete Architektin hat nachfolgenden Grundriss nach einem Gespräch mit uns realisiert. Was soll ich sagen? Wir sind noch etwas unglücklich, da unsere Wünsche nicht so gut umgesetzt wurden. Bevor ich viel schreibe, denke ich, macht es mehr Sinn den Fragenkatalog auszufüllen, damit ihr eine Idee davon bekommt, was wir uns vorstellen und was wir bauen dürfen. Ich bin sehr dankbar um Ideen/Anreize und Änderungsmöglichkeiten! Danke im Voraus 🙂
Bebauungsplan/Einschränkungen:
Größe des Grundstücks: 892qm
Hang: nein
Grundflächenzahl: 0,3
Geschossflächenzahl: 0,6 bei 2-geschossig
Baufenster, Baulinie und -grenze: offene Bauweise,
Anzahl Stellplatz: 2, bei Garage: Stauraum von 5m Tiefe
Geschossigkeit: max. 2-geschossig
Dachform: Pult- (10-25Grad) , Walm-, und Satteldach (15-30 Grad bei Wandhöhe 6,50, 15-40 Grad bei Wandhöhe unter 5,0m)
Stilrichtung: offen
Ausrichtung:
Maximale Höhen/Begrenzungen: TH (Traufhöhe) 6,50m über OK Straße, FH (Firsthöhe) bei Pultdächer max. 7,50m über OK Straße, OK Fertigfußboden EG max. 50cm über OK Straße, Garage max. 3,0m
Anforderungen der Bauherren
Stilrichtung, Dachform, Gebäudetyp: Stadtvilla/Kubus, Walmdach/Zeltdach, Einfamilienhaus
Keller, Geschosse: kein Keller, 2 Geschosse
Anzahl der Personen, Alter: 2 (m 31/ w28), später 1-2 Kinder
Raumbedarf im EG, OG: ca. 100qm pro Geschoss
Büro: Familiennutzung oder Homeoffice? Homeoffice
Schlafgäste pro Jahr: circa 2-4
offene oder geschlossene Architektur: offen, aber mit Möglichkeit zum schließen zw. Wohnzimmer und Küche/Esszimmer
konservativ oder moderne Bauweise: Kombi
offene Küche, Kochinsel: Küche & Esszimmer offen, Kochinsel
Anzahl Essplätze: 8-12
Kamin: Kachelofen
Balkon, Dachterrasse: optional, aber nicht unbedingt, wenn großzügige Terrasse
Garage, Carport: Doppelgarage mit angrenzendem Raum für Gartengeräte/-möbel, sowie Zugang über Hauswirtschaftsraum ins Haus, Überlegung hinsichtlich Drittgarage an der Südseite
Nutzgarten, Treibhaus: später geplant
weitere Wünsche/Besonderheiten/Tagesablauf, gern auch Begründungen, warum dieses oder das nicht sein soll:
EG
- Büro mit Möglichkeit zur Umfunktionierung als Schlafzimmer für Alter
- Gäste-WC mit Dusche (Altersnutzung)
- Schiebetür zwischen Küche/Esszimmer und Wohnzimmer
- Hauswirtschaftsraum als Durchgang vom Haus in Garage
- Speisekammer an Küche angegliedert
- Küche mit Kochinsel
- Lichtdurchflutete Räume, gerne große Fenster/Glasschiebetür auf Terrasse
OG
- Stauraum unter der Treppe
- Bad: vllt T-Lösung? Begehbare Dusche ohne Türe, zwei Waschbecken, Badewanne
- Schlafzimmer- Ankleidezimmer- Bad gern mit Durchgangsmöglichkeit
- 2 Kinderzimmer
- Kein Kinderbad!
- Optional: kleine Abstellkammer
- Optional: Galerie
Hausentwurf
Von wem stammt die Planung: befreundete Architektin
Was gefällt besonders? Warum? Extra Zugang Garage, Stauraum unter Treppe genutzt, Büro nahe Hauseingang (Kunden müssen nicht durchs Haus)
Was gefällt nicht? Warum? Insgesamt verwinkelter Grundriss,
EG: Kochen/Essen nicht auf einer Höhe, keine Schiebetür zw. Kochen/Essen und Wohnzimmer, Durchgang durch Technikraum statt, wie gewollt Hauswirtschaftsraum, Hauswirtschaftsraum zu klein, Kachelofen fehlt
OG: Schlafzimmer/Ankleide/Bad als Durchgang nicht umgesetzt, Zugang Schlafzimmer durch Ankleide, Kinderzimmer etwas klein
Wenn Ihr verzichten müsst, auf welche Details/Ausbauten
-könnt Ihr verzichten: Balkon, Galerie, freistehende Badewanne
-könnt Ihr nicht verzichten: Schiebetür zw. Kochen/Essen und Wohnzimmer, Schlafzimmer/Ankleide/Bad mit Durchgangsmöglichkeit
Oh, danke für den Hinweis. Das hab ich im Eifer des Gefechts wohl vergessen.
Die Garage soll so weit es geht an die nordwestliche Grundstücksgrenze. Ziemlich ähnlich wie auf dem Lageplan. Die Garage gerne etwas versetzt nach hinten und das Haus nahe an die Ringstraße. Der kleine Weg ist nur ein Fußweg und für Autos nicht befahrbar.
Die Garage soll so weit es geht an die nordwestliche Grundstücksgrenze. Ziemlich ähnlich wie auf dem Lageplan. Die Garage gerne etwas versetzt nach hinten und das Haus nahe an die Ringstraße. Der kleine Weg ist nur ein Fußweg und für Autos nicht befahrbar.
Das Zimmer von Kind 2 ist schlecht (auch mal anders als eingezeichnet) zu möblieren. Die Hausform scheint mir vom Grundriss her mit einem Flachdach stimmiger, ein echtes Pultdach ginge ebenfalls. Das Garagendach paßt so nur zu einem Walmdach oder Zeltdach.
https://www.instagram.com/11antgmxde/
https://www.linkedin.com/company/bauen-jetzt/
Nenschn schrieb:Erkläre doch ´mal (mit Worten oder eben einer "wenig talentierten" Zeichnung), wo Verwinkelungen nicht Euer Wunsch waren bzw. wie Ihr es anders haben wolltet.
Insgesamt verwinkelter Grundriss,
https://www.instagram.com/11antgmxde/
https://www.linkedin.com/company/bauen-jetzt/
Hauswirtschaftsraum mit dem Durchgang von Technik macht m.E. wenig Sinn und nimmt Stellfläche.
Treppe am Eingang finde ich immer suboptimal, da im Schmutzbereich.
EG würde ich also im Eingangsberich nochmal völlig neu konzipieren. Hauswirtschaftsraum ggf. ins OG (siehe unten) und mir den Zugang von der Garage gut überlegen, ob der nötig ist. Wir hatten diese Diskussion hier schon zig mal und ich wiederhole mich: ja, ich find's auch cool, wenn es geht, aber richtig Sinn macht es erst, wenn man entsprechend groß baut und dieser Durchgang nicht zu Kompromissen an anderer Stelle führt. Lieber geschützten (überdachten) Weg von der Garage zum Eingang und die Sache ist gut.
Balkon, warum? Ihr habt Garten, ich gebe euch Brief und Siegel, dieser Balkon wird so gut wie nie genutzt werden. Wer soll das den? Ihr, für die Zigarette danach? Oder um sich die Sterne vor dem Schlafen anzugucken?
Den würde ich lieber als Wohnfläche nutzen und den Hauswirtschaftsraum mit Waschmaschine und Trockner ins OG nehmen (da fällt die Wäsche nämlich auch größtenteils an; ist doch blöd, sie zum Waschen nach unten zu tragen und dann wieder hoch, oder?). Dann allerhöchstens einen kleinen Wirtschaftsbalkon, wo man den Wäschetrockner hinstellen kann. Das tut aber auch ein bodentiefes Fenster im Hauswirtschaftsraum, das man aufmachen kann um der zu trocknenden Wäsche ausreichend Luft zu gönnen.
Treppe am Eingang finde ich immer suboptimal, da im Schmutzbereich.
EG würde ich also im Eingangsberich nochmal völlig neu konzipieren. Hauswirtschaftsraum ggf. ins OG (siehe unten) und mir den Zugang von der Garage gut überlegen, ob der nötig ist. Wir hatten diese Diskussion hier schon zig mal und ich wiederhole mich: ja, ich find's auch cool, wenn es geht, aber richtig Sinn macht es erst, wenn man entsprechend groß baut und dieser Durchgang nicht zu Kompromissen an anderer Stelle führt. Lieber geschützten (überdachten) Weg von der Garage zum Eingang und die Sache ist gut.
Balkon, warum? Ihr habt Garten, ich gebe euch Brief und Siegel, dieser Balkon wird so gut wie nie genutzt werden. Wer soll das den? Ihr, für die Zigarette danach? Oder um sich die Sterne vor dem Schlafen anzugucken?
Den würde ich lieber als Wohnfläche nutzen und den Hauswirtschaftsraum mit Waschmaschine und Trockner ins OG nehmen (da fällt die Wäsche nämlich auch größtenteils an; ist doch blöd, sie zum Waschen nach unten zu tragen und dann wieder hoch, oder?). Dann allerhöchstens einen kleinen Wirtschaftsbalkon, wo man den Wäschetrockner hinstellen kann. Das tut aber auch ein bodentiefes Fenster im Hauswirtschaftsraum, das man aufmachen kann um der zu trocknenden Wäsche ausreichend Luft zu gönnen.
Ähnliche Themen