ᐅ Stufen zwischen Küche/Esszimmer und Wohnzimmer
Erstellt am: 17.10.25 16:36
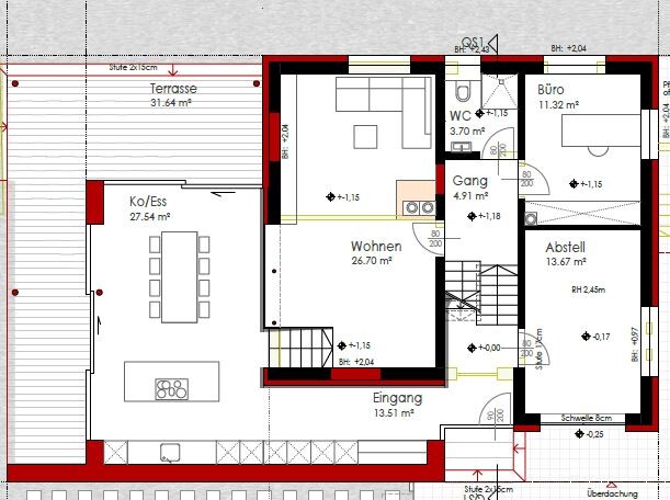
Wir sanieren ein Siedlungshaus aus den 60er Jahren mit Halbstöcken. Da wir gerne ebenerdig in den Garten gehen möchten, hat unser Architekt einen ebenerdigen Zubau empfohlen (Eingang, Garderobe, Küche und Esszimmer). Mittels 7 Stufen wäre dann der erste Halbstock erreichbar. In diesem sind dann das Wohnzimmer, Klo und Büro untergebracht. Eine Außenwand des alten Hauses wird entfernt.
Zuerst dachte ich das wird sehr cool, wie eine Art Galerie oder Split Level Haus. Nun bin ich mir nicht sicher, ob es evtl doch mühsam ist im Alltag. Ins Wohnzimmer kommt man eben durch 7 Stufen im Esszimmer. Die Wand wird entfernt, damit es "offen" ist.
Wäre total froh über eure Meinungen!

Zuerst dachte ich das wird sehr cool, wie eine Art Galerie oder Split Level Haus. Nun bin ich mir nicht sicher, ob es evtl doch mühsam ist im Alltag. Ins Wohnzimmer kommt man eben durch 7 Stufen im Esszimmer. Die Wand wird entfernt, damit es "offen" ist.
Wäre total froh über eure Meinungen!
P
Papierturm17.10.25 17:00dbertig schrieb:
Zuerst dachte ich das wird sehr cool, wie eine Art Galerie oder Split Level Haus. Nun bin ich mir nicht sicher, ob es evtl doch mühsam ist im Alltag. Ins Wohnzimmer kommt man eben durch 7 Stufen im Esszimmer. Die Wand wird entfernt, damit es "offen" ist.Meine Schwieger-Großmutter wohnte in einer recht ähnlichen Situation: Wohnzimmer und Küche, dann (soweit ich mich erinnere) drei Stufen hoch zu Eingangsflur und Toilette, dann nochmal fünf Stufen hoch zu Badezimmer, Esszimmer, Schlafraum und Gästeraum.Sie ist darin über 90 geworden und kam da bis kurz vorm Schluss zurecht.
Hängt aber natürlich auch etwas von dem eigenen körperlichen Zustand ab. Ist man gut zu Fuß, glaube ich, wird man da gut zurecht kommen. Hat man da Schwierigkeiten, wird es anders aussehen.
J
Jesse Custer17.10.25 17:33Wir wohnen seit 27 Jahren so, da wir am Hang wohnen - Erdgeschoss = Toilette/Eingang + Küche/Esszimmer -> 5 Stufen runter ins Wohnzimmer samt Wintergarten. Man hat also immer 5 oder 10 Stufen ins nächste Stockwerk.
Als solches wie bei Euch, nur anders herum.
Ich würde es nie mehr anders haben wollen - so verlierst Du Dich nicht in einem Riesenraum ohne Bezugspunkte...
Als solches wie bei Euch, nur anders herum.
Ich würde es nie mehr anders haben wollen - so verlierst Du Dich nicht in einem Riesenraum ohne Bezugspunkte...
Mega!
Das war Euch vor dem Kauf klar. Es ist ja nicht neu entstanden, sondern wurde mit diesen 7 Stufen in den 60ern gebaut. Ihr habt es gekauft - mit diesen 7 Stufen. Jetzt kommen 7 Stufen an einer Stelle, wo man sie sehr gut gebrauchen kann, dazu. Ist doch super!
Als erstes finde ich es gut, wenn Ihr den Wunsch nach Ebenerdigkeit zum Garten habt. Viele unterschätzen die Barriere im Garten und planen sich eine steile Treppe von einer Hochterrasse zum Garten ein. Andere gehen noch weiter und wünschen sich eine Terrasse auf einer Garage mit Treppe in den Garten. Ihr macht es in meinen Augen richtig und familienfreundlich: tagsüber oder im Sommer verbringt man gern den Tag draußen und pendelt von Küche zur Terrasse, abends erst oder in den tristen Monaten hält man sich dann im Wohnbereich auf.
Und dann muss man halt mal 7 Stufen gehen. Das verbraucht zwar nicht die Cola- oder Chipskalorien, aber auch wirklich kein Disaster.
Plant den Küchen/Garderobengang geschickt, die Treppe sehr bequem und ggf. etwas breiter, und alles ist bestens. Wenn Du magst, dann kannst Du das ganze Haus inkl. Anbau mal vorstellen. Vielleicht immer mal wieder Vorher-Nachher-Fotos in einem Gesamt-Thread. Ich würde mich freuen und einige andere hier auch.
dbertig schrieb:Auch damals gab es schon Splitlevel und hat man auch so genannt 😉
ein Siedlungshaus aus den 60er Jahren mit Halbstöcken.
dbertig schrieb:Super Idee, finde ich auf den ersten Blick gelungen.
hat unser Architekt einen ebenerdigen Zubau empfohlen (Eingang, Garderobe, Küche und Esszimmer)
dbertig schrieb:Es ist SplitLevel, und es ist sehr cool, was Ihr da bekommt.
Zuerst dachte ich das wird sehr cool, wie eine Art Galerie oder Split Level Haus.
dbertig schrieb:
Nun bin ich mir nicht sicher, ob es evtl doch mühsam ist im Alltag. Ins Wohnzimmer kommt man eben durch 7 Stufen im Esszimmer.
Das war Euch vor dem Kauf klar. Es ist ja nicht neu entstanden, sondern wurde mit diesen 7 Stufen in den 60ern gebaut. Ihr habt es gekauft - mit diesen 7 Stufen. Jetzt kommen 7 Stufen an einer Stelle, wo man sie sehr gut gebrauchen kann, dazu. Ist doch super!
Als erstes finde ich es gut, wenn Ihr den Wunsch nach Ebenerdigkeit zum Garten habt. Viele unterschätzen die Barriere im Garten und planen sich eine steile Treppe von einer Hochterrasse zum Garten ein. Andere gehen noch weiter und wünschen sich eine Terrasse auf einer Garage mit Treppe in den Garten. Ihr macht es in meinen Augen richtig und familienfreundlich: tagsüber oder im Sommer verbringt man gern den Tag draußen und pendelt von Küche zur Terrasse, abends erst oder in den tristen Monaten hält man sich dann im Wohnbereich auf.
Und dann muss man halt mal 7 Stufen gehen. Das verbraucht zwar nicht die Cola- oder Chipskalorien, aber auch wirklich kein Disaster.
Plant den Küchen/Garderobengang geschickt, die Treppe sehr bequem und ggf. etwas breiter, und alles ist bestens. Wenn Du magst, dann kannst Du das ganze Haus inkl. Anbau mal vorstellen. Vielleicht immer mal wieder Vorher-Nachher-Fotos in einem Gesamt-Thread. Ich würde mich freuen und einige andere hier auch.
Ich finde die Lösung des Architekten elegant und stylisch - natürlich von den Verkehrsflächen recht großzügig (Eingang/TRH/Gang) etc. Aber dies liegt ev. in der Gebäudestruktur des Bestandes begründet. Die versetzten Ebenen gliedern m. E. etwas großzügigere Grundrisszusammenhänge immer auf eine spannende Weise.
Es wird natürlich eine Blickbeziehung zwischen Ko/Ess. + Wohnen geben, ohne geschlossenen Wand zwischen diesen Bereichen ?! Eher im Sinne einer Galerie. So kann auch der Kamin vom Essplatz aus gesehen werden. Zwischen "Galerie-Wohnen" und "Gang" besteht noch ein Höhenunterschied von 3cm. Den müsste der Architekt noch nivellieren. Die Küchensituation ist von den Arbeitsflächen ev. etwas klein geraten.
Es wird natürlich eine Blickbeziehung zwischen Ko/Ess. + Wohnen geben, ohne geschlossenen Wand zwischen diesen Bereichen ?! Eher im Sinne einer Galerie. So kann auch der Kamin vom Essplatz aus gesehen werden. Zwischen "Galerie-Wohnen" und "Gang" besteht noch ein Höhenunterschied von 3cm. Den müsste der Architekt noch nivellieren. Die Küchensituation ist von den Arbeitsflächen ev. etwas klein geraten.
Vielen Dank für eure Antworten, freue mich sehr darüber! Ich stelle in den nächsten Tagen die geplante Sanierung mit Zubau, komplettem Grundriss, Fotos usw. vor.
Zur Info bezüglich Höhe der Stufen und Galerie anbei der Querschnitt. Mir war eben auch der ebenerdige Zugang zum Garten wichtig, aber natürlich wird der nicht so oft verwendet gerade zur jetzigen Jahreszeit. Und nicht nur das, denn neben dem Grundstück geht eine Einbahnstraße vorbei, diese wird sehr viel von Fussgängern und Fahrradfahrern genutzt. Hätten wir den Zubau höher geplant, hatten wir Angst, dass man uns sehr gut in den Wohnbereich sieht. So machen wir eine Hecke und sind denke ich eher privat.
Die Treppe etwas breiter planen ist ein sehr guter Punkt. Hatte schon überlegt, eventuell wie man es in Gärten öfters sieht, eine breitere Sitztreppe oder ähnliches neben die Stufen. Das Manko ist nämlich, dass wir im Esszimmer schlecht Platz haben für eine gemütliche Sitz-Liegemöglichkeit für die Kinder.

Zur Info bezüglich Höhe der Stufen und Galerie anbei der Querschnitt. Mir war eben auch der ebenerdige Zugang zum Garten wichtig, aber natürlich wird der nicht so oft verwendet gerade zur jetzigen Jahreszeit. Und nicht nur das, denn neben dem Grundstück geht eine Einbahnstraße vorbei, diese wird sehr viel von Fussgängern und Fahrradfahrern genutzt. Hätten wir den Zubau höher geplant, hatten wir Angst, dass man uns sehr gut in den Wohnbereich sieht. So machen wir eine Hecke und sind denke ich eher privat.
Die Treppe etwas breiter planen ist ein sehr guter Punkt. Hatte schon überlegt, eventuell wie man es in Gärten öfters sieht, eine breitere Sitztreppe oder ähnliches neben die Stufen. Das Manko ist nämlich, dass wir im Esszimmer schlecht Platz haben für eine gemütliche Sitz-Liegemöglichkeit für die Kinder.
Ähnliche Themen