Renovierung eines Altbaus Grundriss-Einteilung Erfahrungen

4,60 Stern(e) 5 Votes
Zuletzt aktualisiert 09.01.2026
Sie befinden sich auf der Seite 3 der Diskussion zum Thema: Renovierung eines Altbaus Grundriss-Einteilung Erfahrungen
>> Zum 1. Beitrag <<

B

Bikerin91

und einmal der Lageplan des Grundstücks. Norden ist unten beim Bordstein mit Hecke. Der Garten ist komplett mit Südausrichtung, daher auch die Idee der Photovoltaikanlage
Lageplan eines Hauses mit Garage und Garten auf einem Grundstück
 
B

Bikerin91

Die Statik kann ich morgen einmal abfotografieren. Es ist jedoch so, dass er mir das auch erklärt hat. Da klang es schlüssig, ich packe euch die Bilder zur Statik dann gerne einmal rein
 
B

Bikerin91

Moin,

hier sind einmal der Auszug der Statik, da sieht man, laut Statiker, dass die Wand von der Küche zum Wohnzimmer tragend sein soll. Aber wie gesagt, ich kenne mich damit nicht aus (Auf dem Bild Nummer 1 ist die Küche).

Zudem füge ich euch Bilder vom Ist-Zustand und die Bilder von den Abseiten hinzu. Diese gibt es in jedem Raum im Obergeschoss. Die würde ich wirklich gerne entfernen, die Frage ist nur, ob diese auch tragend sind. Benötigt ihr noch mehr Bilder oder Infos?

Vielen lieben Dank schon einmal für euren Input.
Handgezeichnete Grundrissskizze mit mehreren Räumen, Wänden, Maßlinien, Pfeilen und Nummern.

Technische Zeichnung einer langen rechteckigen Platte mit keilförmigen Enden und Maßangaben.

Holzkommode mit Geschirr, Vase und gerahmten Bildern in einer Dachboden-Ecke.

Helles Wohnzimmer mit Sitzgruppe, Vitrinenschrank, Bilderrahmen, Deckenlampe, Fenster mit Vorhängen.

Helles Wohnzimmer mit Holzboden, Fensterfront/Vorhängen; Glastür mit Rosen-Aufkleber.

Wohnzimmer unter Renovierung: Teppich, Fernseher auf Rollwagen, Leiter, Hängeleuchte, kahle Wände.

Dachbodenraum mit silberner Isolierung an Wänden und Decke, Holzverkleidung, Teppichboden.

Enge Dachboden-Nische mit schrägem Dach, Holzbalken, Dämmung, Metallkanal, Tür rechts.

Enge Dachboden-Nische mit Folien-Isolierung, Holzbalken, Kartonband und staubigem Boden.

Küche mit hellgrünen Schränken, offene Tür zum Garten, Mikrowelle und Toaster.
 
11ant

11ant

Zudem füge ich euch Bilder vom Ist-Zustand und die Bilder von den Abseiten hinzu. Diese gibt es in jedem Raum im Obergeschoss. Die würde ich wirklich gerne entfernen, die Frage ist nur, ob diese auch tragend sind. Benötigt ihr noch mehr Bilder oder Infos?
Schnitte wären noch gut. Und zeichne zu den Abseiten mal in den Grundriss ein, welches Bild mit welcher Blickrichtung wo hingehört.
 
H

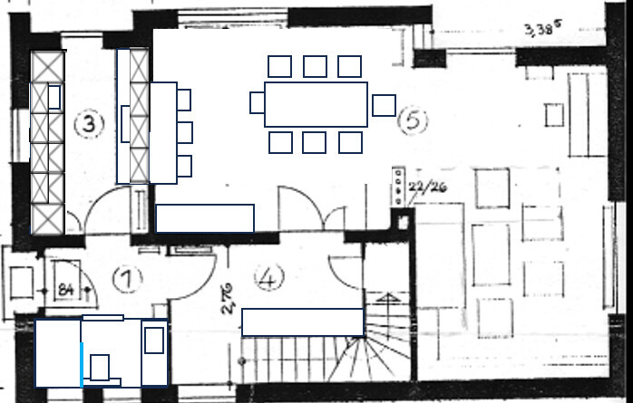
hanghaus2023

Ich würde nur einen Durchbruch in der Mauer herstellen. Dann eine Arbeitsplatte mit 1,2 m durchlegen. In der Küche dann Hängeschränke.


Grundriss von oben mit nummerierten Räumen; zentrale Essecke mit großem Tisch und Stühlen, Treppe.






Grundrissplan eines Hauses mit Außenwand, Innenaufteilung und zentraler Kücheninsel.



Im Dachgeschoss kann man den Drempel mMn in Teilbereichen entfernen. Es sind nicht alle Wände aussteifend. Das Dach wurde ja bereits isoliert.
 
B

Bikerin91

Schnitte habe ich leider nicht gefunden, ich bin mir aber auch nicht sicher, was du genau, damit meinst. Habe diese Ansichten mal gegoogelt aber bisher sehe ich das nicht in den Unterlagen.

Bzgl. der Drempel habe ich diese im 1. OG mal eingezeichnet:

Also in jedem Zimmer sind diese Drempel. Das oben gezeigte Foto ist von Raum Nr. 7 und geht rechts rum. Es geht mir darum, die Wand links und eben auch die neben dem Fenster zu entfernen. Ihr seht zwei Fotos von dem Drempel, der zu Raum Nr. 7 angrenzend ist, und diese zwei Wände würde ich gerne entfernen, um mehr Wohnraum zu gewinnen. Diese Drempel gibt es in jedem Zimmer oben. Meine Überlegung ist, mehr Fenster einbauen zu können, um das Ganze auch heller gestalten zu können
Grundriss Dachgeschoss: Flur, Schlafzimmer, Fremdenzim., Bad; blaue Markierungen
 
Zuletzt aktualisiert 09.01.2026
Im Forum Grundrissplanung / Grundstücksplanung gibt es 2565 Themen mit insgesamt 88787 Beiträgen


Ähnliche Themen zu Renovierung eines Altbaus Grundriss-Einteilung Erfahrungen
Nr.ErgebnisBeiträge
1Aufteilung?! Kleines Zimmer / starke Schräge / Heizkörper - Seite 461
2Dusche direkt am Fenster - kompatibel oder inkompatibel? - Seite 222
3Riesiges Problem mit dem Kondenswasser am Fenster 34
4 Küchenplanung mit tiefen Fenster 43
5Gaube nicht möglich, weil Drempel zu hoch 12
6Panoramafenster - Sind die Preise der Fenster günstig? - Seite 352
7Garagenbau aus Beton! 3 Wände oder Hausanbau? Was meint ihr? 26
8Was ist teurer? Mauerwerk oder Fenster? - Seite 321
9Was kostet die Statik für ein Einfamilienhaus? - Seite 324
10Altbau Baujahr ca. 1970, kein Keller, Fenster erneuern/vergrößern? 11
11Passivhaus Grundriss Feedback EG OG offene Küche Garderobe und Familienräume diskutieren 12
12Geschlossene oder offene Küche ? 11
13Probleme bei der aufteilung Küche, Essen , Wohnen 16
14Grundrissfrage, Treppe, Fenster, Ausrichtung 12
15Sichere Fenster/Haustüre für Randlage - Seite 534
16Finaler Grundriss-Entwurf - bis auf die Fenster - Seite 535
17Fenster / Türen / Garderobe 13
18Grundriss Einfamilienhaus - Problemfall Küche 20
19Aufmusterung Elektro, Q2, Badfliesen, Drempel, bodentiefe Fenster 23
20Kleine Küche - Hilfe bei der Anordnung benötigt - Seite 532

Oben