Dusche direkt am Fenster - kompatibel oder inkompatibel?

4,80 Stern(e) 5 Votes
Zuletzt aktualisiert 19.11.2025
Sie befinden sich auf der Seite 2 der Diskussion zum Thema: Dusche direkt am Fenster - kompatibel oder inkompatibel?
>> Zum 1. Beitrag <<

H

Hardi88

den Charme eines Reihenmittelhaus
Stimme ich dir komplett zu. Das gefällt mir gar nicht!

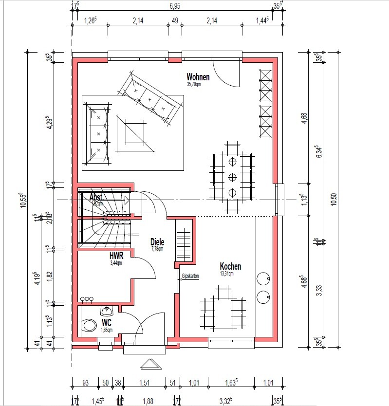
Gibt es eigentlich irgendwo auch den Plan des EG?
Bis eben nicht, weil es mir bis vor Kurzem nur um die Kompatibiltät von Dusche und Fenster ging.

Ich stelle das EG nun auch ein und bereite mich auf den technischen K.O. vor.

Und apropos, mit der Möblieung habe ich nix zu tun. So soll das Ganze auch nicht eingerichtet werden. :D Akzeptiert es einfach und hinterfragt nicht, warum denn nun die Möbel so stehen, wie sie stehen.

Grundriss eines Hauses mit Wohnzimmer, Küche, Diele, WC, HWR und Treppe.
 
Y

ypg

Ich hatte schon Sorge, das hier online zu stellen, weil es sich hier um einen leidenschaftslosen Standard handelt.
Der ist leidenschaftslos, das macht aber nichts. Kann man optimieren, aber bitte im Grundrissdiskussionsunterforum. Mit Ausfüllen des Fragekatalogs.
Dass ein GU-DH wenig Finesse hat, bedeutet nicht, dass man ihn nicht optimieren kann.
Der GU baut Dir leidenschaftslos alles ein, was Du willst.

Und bitte mit Ausrichtung und Lageplan/Carport..
 
AxelH.

AxelH.

Ich stelle das EG nun auch ein und bereite mich auf den technischen K.O. vor.
Ich fürchte, das könnte tatsächlich passieren ... ;)
Was gleich auffällt, ist die Tatsache, dass das Fenster-Dilemma sich auch im Erdgeschoss fortsetzt bzw. im Erdgeschoss anfängt und sich dann im OG manifestiert.
Und warum wird der direkte Zugang zur Küche mit Gipskarton verschlossen? Gehört das zum täglichen Fitnessprogramm, die Einkäufe besonders weit zu tragen (und dann auch das, was vielleicht noch in einem kleinen Regal im Hauswirtschaftsraum gelagert wird, möglichst weite Wege zu transportieren, wenn man es in der Küche braucht)?
Ich glaube, wenn ich das so sehe, darfst Du Dich auf viel Feedback aus unseren Reihen freuen ...

Ach ja, wo auf dem Plan ist eigentlich Norden? Das könnte für die Fenster- und Lichtplanung auch noch hilfreich sein ...
 
P

Pinkiponk

Ich hatte schon Sorge, das hier online zu stellen, weil es sich hier um einen leidenschaftslosen Standard handelt.
:) Das Forum hier ist wirklich toll, enorm hilfreich und sehr, sehr, sehr hilfsbereit. ... Aber eines geht hier nicht, leidenschaftslos beim Bauen. ;-) Das habe auch ich überaus schmerzlich erfahren müssen. ;-) Aber genau das macht aus meiner Sicht u.a. die Qualität des Forums aus. ;-)
 
H

Hardi88

ist wirklich toll, enorm hilfreich und sehr, sehr, sehr hilfsberei
Ich bin seit vielen Monaten Leser und nehme die Hilfsbreitschaft auch so wahr.
Fakt ist, dass ich mich lange Zeit nicht getraut habe, hier Dinge reinzustellen, weil die meisten in anderen Dimensionen bauen und Doppelhaushälfte-Grundrissen von GU zerrissen wurden.

Dass die aktuelle Situation katastrophal ist und man in meiner Region an so gut wie gar keine Grundstücke kommt, macht das Ganze nicht einfach und ist dann an einem GU gebunden. In meinem Vertrag kann ich eben nicht tragende Wände verschieben wie ich will, tragende Wände eben nicht.

Ach ja, wo auf dem Plan ist eigentlich Norden? Das könnte für die Fenster- und Lichtplanung auch noch hilfreich sein ...
Die Wohnzimmerfront zeigt nach Westen. Die Hausseite mit dem Fensterdilemma zeigt nach Norden.


Ggf. schreibe ich jemanden privat an, um ggf. das Schlimmste zu vermeiden. :D :(
 
Zuletzt bearbeitet:
Zuletzt aktualisiert 19.11.2025
Im Forum Fenster / Türen gibt es 1364 Themen mit insgesamt 15526 Beiträgen


Ähnliche Themen zu Dusche direkt am Fenster - kompatibel oder inkompatibel?
Nr.ErgebnisBeiträge
1Riesiges Problem mit dem Kondenswasser am Fenster 34
2Grundriss Erstskizze - Verbesserungswürdig? 42
3Geschlossene oder offene Küche ? 11
4feuchte Wände an Terrassentüren und Haustür - Seite 211
5Wände aus Styrodur oder Styropor? 10
6Hilfe bei der Anordnung der Fenster benötigt! 32
7Probleme bei der aufteilung Küche, Essen , Wohnen 16
8 Küchenplanung mit tiefen Fenster 43
9Grundrissfrage, Treppe, Fenster, Ausrichtung 12
10Feedback zur Ikea-Küche - Seite 15167
11Sichere Fenster/Haustüre für Randlage - Seite 534
12Finaler Grundriss-Entwurf - bis auf die Fenster - Seite 535
13Fenster / Türen / Garderobe 13
14Terrassentür / Schiebetür / bodentiefe Fenster 13
15Grundriss Einfamilienhaus - Problemfall Küche 20
16Aufmusterung Elektro, Q2, Badfliesen, Drempel, bodentiefe Fenster 23
17Kleine Küche - Hilfe bei der Anordnung benötigt - Seite 532
18Mehrkosten falsch geplante Belüftungsanlage + Bodentiefe Fenster? 50
19IKEA Metod Küche - Ideen / Anregungen zum Plan? - Seite 529
20Planungsbeginn neue Küche - Seite 222

Oben