Realistische Kosteneinschätzung: Einfamilienhaus mit ungünstiger Erschließungslage

4,90 Stern(e) 20 Votes
Zuletzt aktualisiert 21.11.2025
Sie befinden sich auf der Seite 11 der Diskussion zum Thema: Realistische Kosteneinschätzung: Einfamilienhaus mit ungünstiger Erschließungslage
>> Zum 1. Beitrag <<

schmeissrein

schmeissrein

Das ist einer der fertigen Entwürfe des GU, die Anpassung für uns würde noch folgen. Vielen Dank schonmal für eure Hinweise! Hauswirtschaftsraum an der Küche finden wir ziemlich praktisch, dann kann man Einkäufe durch die NET direkt auf Hauswirtschaftsraum (Vorratsregal) und Küche verteilen auf kurzem Wege.
@SoL
Genau, das Elternschlafzimmer finden wir auch sehr groß, wir würden das eher als Kinderzimmer nehmen oder die Größen noch etwas umverteilen. So viel Platz brauchen wir wirklich nicht. Der Raum ums den gnädigen Lokus soll noch verlängert werden, genau aus dem von dir genannten Grund :D

@WilderSueden
Das machen wir auf jeden Fall mit dem Essbereich, würde mich auch sehr interessieren, ob der entspannt reinpasst. Das mitten im Raum ist ein Kaminofen, der würde bei uns wegfallen.
 
WilderSueden

WilderSueden

Unterschätzt nicht, was die ganze Haustechnik an Platz braucht. Da sind die Wände ganz schnell voll, dazu noch Waschmaschine, etc. Im Zweifelsfall würde ich lieber mehr Platz in der Küche einplanen als mich zwischen Wand und Waschmaschine durchzuquetschen.

der würde bei uns wegfallen.
Dann macht das am besten gleich weg, zur Not selbst mit Paint oder Kugelschreiber auf dem ausgedruckten Plan. Diskussionen über Grundrisse sind müßig, wenn sie ganz anders gebaut werden

Nö, der hat eine Nebeneingangstür, aber kein Fenster.
Stimmt, hatte das NET übersehen.
 
H

hanghaus2023

Hier mal meine Änderungen zum Erdgeschoss.

Grundriss einer Wohnung: offenes Wohnzimmer/Essbereich, Küche links, Diele, Gästezimmer rechts.


Ob man den Kamin im WZ wirklich da installiert??? Wenn dann an die Wand.
 
11ant

11ant

Keine Dramen, meine Damen ! - selbstverständlich kann man auch in eine Nebeneingangstür ein Fenster integrieren, nicht nur als Klöntür.
Das ist einer der fertigen Entwürfe des GU, die Anpassung für uns würde noch folgen.
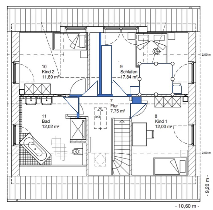
Aber bitte nicht mit diesem GU, den hatte ich für so unfähig gar nicht gehalten. Aber das ist so eine Katastrophe, für einen solchen Lehrlingsscherz braucht man kein Typenhaus. Der Clou des Typenhauses sollte gerade in der Ausgereiftheit liegen, die hier offensichtlichst nicht gegeben ist - ich gebe (ohne Anspruch auf Vollständigkeit) einige Beispiele: die Differenz zwischen Neunmeterzwanzig und Zehnmetersechzig sind Einmetervierzig: nicht teilbar durch Oktameter, wir werden es hier also mit Pfuschertaschen zu tun bekommen. In den Bädern ist offenbar nicht konsequent an Vorwände gedacht worden, das gibt Trockenbauwarzen wie bei @chrisw81. In beiden Kinderzimmern gibt es ominöse Lüftungskanäle (?) ohne Koordination mit dem EG ...
 
Zuletzt aktualisiert 21.11.2025
Im Forum Bauplanung gibt es 5072 Themen mit insgesamt 100814 Beiträgen


Ähnliche Themen zu Realistische Kosteneinschätzung: Einfamilienhaus mit ungünstiger Erschließungslage
Nr.ErgebnisBeiträge
1Speisekammer vs. größere Küche vs. Hauswirtschaftsraum 13
2Geschlossene Küche planen mit Durchgang zum Hauswirtschaftsraum - Seite 318
3Kleinstmögliches Fenster für Lüftung Hauswirtschaftsraum 22
4Hauswirtschaftsraum Raum ohne Fenster - Lüftungsanlage ausreichend? 26
5Waschmaschine und Geschirrspüler in Ikea Metod Hochschrank? - Seite 532
6Bungalow 135qm: Grundriss + Fenster - Seite 7104
7Standort Küche und Wohnzimmer - Seite 255
8Müllentsorgung in der Küche / Wanddurchbruch - Seite 542
9OG Stadtville optimieren. Fenster Bodentief - Seite 13104
10Ikea Pax Hauswirtschaftsraum/Waschküche System? - Was habt ihr? 64
11Erstentwurf Nolte Küche - Meinungen und Verbesserungsvorschläge - Seite 430
12Grundriss 170m2 - Hauswirtschaftsraum zu klein? Verbesserungsvorschläge? - Seite 342
13Dusche direkt am Fenster - kompatibel oder inkompatibel? - Seite 322
14 2 Vollgeschosse, Durchgang Garage, Hauswirtschaftsraum unter Treppe - Seite 225
15Heizungsanlage passt nicht wie geplant in den Hauswirtschaftsraum - Seite 427
16Planung HAR/Hauswirtschaftsraum - Technikpläne unbekannt 12
17Was können wir im Hauswirtschaftsraum alles machen? - Seite 211
18Tipps und Ideen zum Grundriss Einfamilienhaus 136qm 11
19Geschlossene oder offene Küche ? 11
20Wohnen/Essen/Küche: Wie wohnt ihr oder werdet ihr wohnen? - Seite 852

Oben