Hausbau - Ratgeber
Bauherrenhilfe
- Bauherrenhilfe vor Vertragsabschluss
-- Warum einen unabhängigen Baubetreuer?
-- Vertragsgrundlagen
-- Bausumme
-- Zahlungsplan zur Kostenkontrolle
-- Pflichten des Bauherren vor Vertragsabschluss
-- Unterlagen beim Hausbau vor Vertragsabschluss
- Bauherrenhilfe nach Vertragsabschluss
-- Bauantrag bei Behörden
-- Bau-Genehmigungsverfahren bei Baubehörden
-- Bauspezifische Versicherungen
-- Bauzeitenplan
-- Baubeginn - die Letzten Pflichten der Bauherrschaft
- Bauherrenhilfe während der Bauzeit
- Gewährleistungsansprüche
- Bauabnahme
Baufinanzierung
- Baufinanzierung - Allgemeine Fragen
- Kreditarten
- Kredit-Konditionen
- Bausparen
- Staatliche Förderungen
- Verkehrswert
- Haushaltsrechnung und Bonität
Hausbau Planung
- Haustypen
- Hausbau Vorbereitungsarbeiten
- Das Baugrundstück
- Baugrund beim Hausbau
- Baurecht
- Gebäudeschutz
- Erdarbeiten und Wasserhaltung
- Stützmauern
- Einfriedung
- Untergeschoss
- Kanalisation
- Tragende Elemente
- Nichttragende Innenwände
- Fundation / Fundament
- Deckenkonstruktionen
- Dächer
- Kaminanlagen
- Treppen Rampen Leitern
- Dachbeläge und Spengler
- Fenster
- Sonnen und Wetterschutz
- Aussenputze
- Einbauten, Küchen, Türen
- Bodenbeläge und Unterlagsböden
- Parkett
- Gips, Wand, Decke
Haustechnik und Energie
- Heiztechnik
- Lüftung und Klimatechnik
- Sanitärtechnik
- Elektrotechnik
- Erneuerbare Energie
Whirlpools / Jacuzzi
Hausbau Magazin
- Baufinanzierung trotz Krise?
- Das Blockhaus
- Moderne Dämmstoffe im Vergleich
- Erker Vor- und Nachteile
- Glasflächen beim Hausbau
- Günstig ein Haus Bauen
- Mediterraner Hausbaustil
- Mehrgenerationenhaus
- Moderne Architektur
- Gartengestaltung leicht gemacht
- Traditioneller Ziegelbau
- Villa als höchster Traum
- Im Eigenheim Ruhestand geniessen
- Altbau sanieren
- Kauf einer Holzgarage
- Immobilienmakler
- Arbeitshandschuhe für den Winter
- Zuhause verschönern
- Outdoor-Plissees
- Schlafzimmer planen
- Terrassenüberdachung
- Wohngebäudeversicherung
- Zaunarten und Eigenschaften
- Hauseingang gestalten
- Der perfekte Grundriss
- Sparsamer heizen im Altbau
- Einfamilienhaus smart finanzieren
- Planung einer PV-Anlage
- Neues Haus
- Immobilienfinanzierung
- Installation einer Photovoltaikanlage
- Asbest erkennen und entfernen
- Gartenpflege im Frühling – worauf achten
- Sauna im Fokus - Wellness zuhause
- Erfolgreich vermieten
- Die perfekte Winterbekleidung
- Das Niedrigenergiehaus
- Der April und seine Stürme
- Architektonische Vielfalt
- Ökologisch und nachhaltig bauen
- Das perfekte Schlafzimmer
- Nachhaltige Energieversorgung
- Zukunftsorientiert bauen
- Nachhaltigkeit beim Hausbau
- Tiny Houses
- Wärmepumpen als nachhaltige Heizvariante
- Maßgeschneiderten Kleiderschrank
- Der richtige Baukredit
- Ratgeber für erfolgreichen Hausbau
- Haus als Altersvorsorge
Do-it-yourself Anleitungen
- Verlegeanleitung für Bodenbeläge und Parkett
- Bodenbeläge und Parkett reinigen und pflegen
- Malerarbeiten am Haus
- Garten Tipps
- Umzug und Reinigung

ᐅ Nordterrasse und Küche im Süden? Feedback erwünscht

Erstellt am: 12.09.18 19:33
H
Hamburch
H
Hamburch
12.09.18 19:33

Luftbild eines Grundstücks mit rotem Umriss in Wohngebiet und umliegenden Häusern


Hallo zusammen,

Ein Grundstück (s.o.) ist in Reichweite, mit dem Haus beschäftige ich mich schon länger.
Nun bin ich mir bei einigen Punkten nicht sicher und hoffe auf eure Meinungen.

Es geht um das eingezeichnete Grundstück.

Problem: Das Grundstück ist nur 17m breit UND auf der Südseite des Grundstücks wird eine Zuwegung (3,5m) für die hinteren Grundstücke gebaut werden.
Dadurch entfällt jegliche südliche Nutzung des Grundstücks.
Rechts (Nord) muss ein Abstand von 2,50m zur Grundstücksgrenze eingehalten werden.
Das Baufenster ist also nur 11 m breit.

Meine Überlegung ist nun, die Küche in den Südwesten zu legen, um einerseits ein Fenster zu haben, andererseits keinen direkten Blick von der Zuwegung ins Wohnzimmer zuzulassen.

Dafür müsste man das Haus quer zur Straße bauen.
Vorteil: breite Westfront, Küche mit Fenster im Süden.
Nachteil: Blick aus den Fenstern im 1.OG ist stark eingeschränkt aufgrund Nachbarbebauung. Könnte sehr beengt wirken....? Richtung Osten und Westen wäre die Sicht deutlich großzügiger.

Die Überlegung ist nun, ein Walmdach zu nehmen, um auch Fenster nach Osten und Westen zu haben und nicht nur auf die Nachbarhäuser nach Nord und Süd.
Nach RS mit dem Bauträger könnte man es noch eingeschossig (Bebauungsplan) halten, wenn man das Walmdach auf 1,90m beginnen lässt.


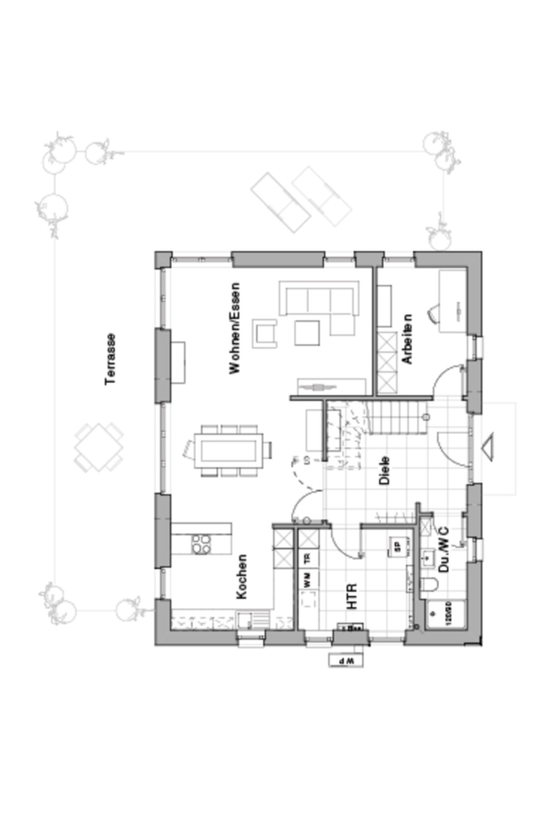
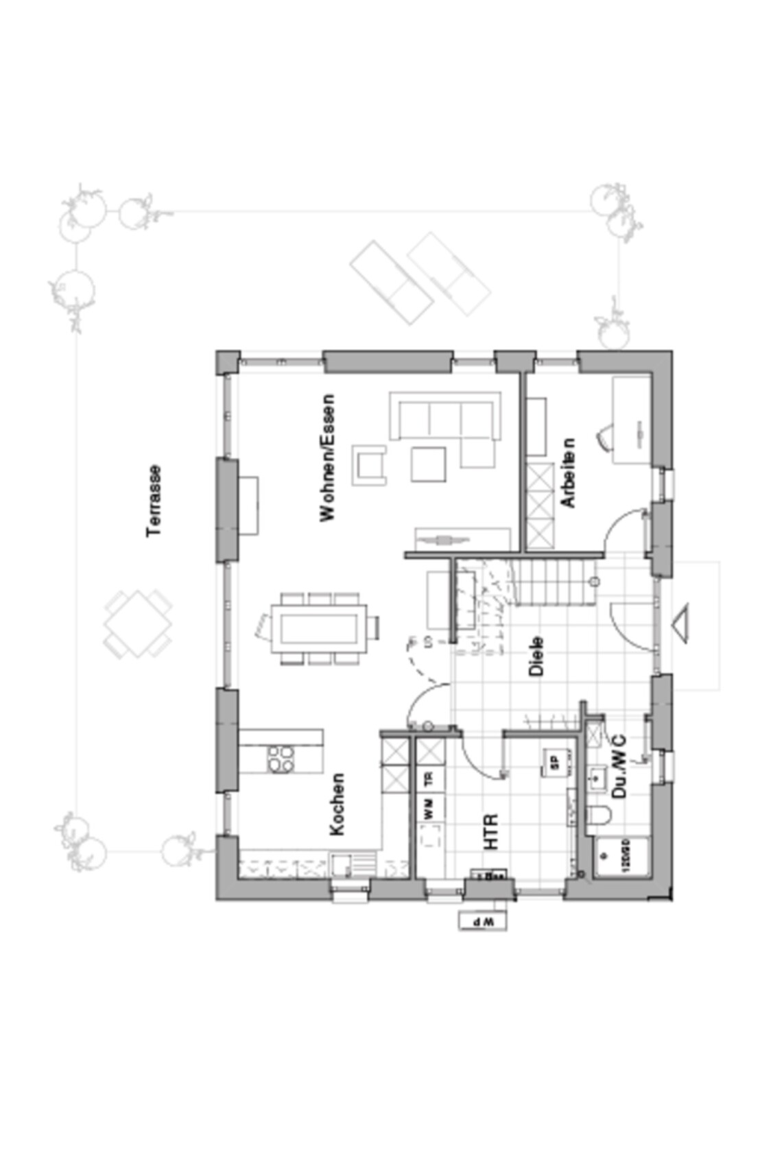
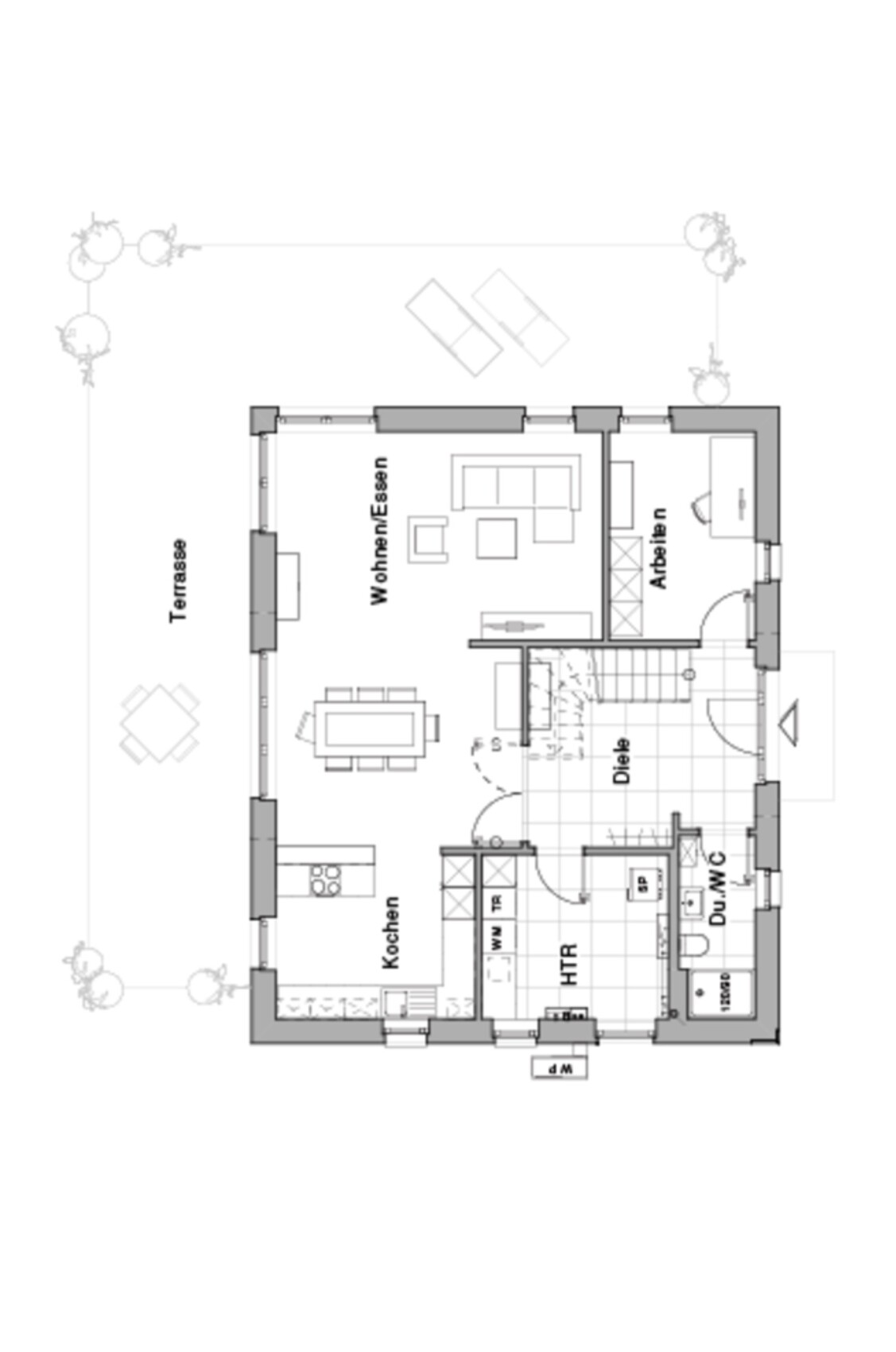
Der Grundriss würde dann so aussehen:

Nordausrichtung:


Grundriss eines Hauses: Küche links, offener Wohn-/Essbereich, Arbeitszimmer, Diele, Terrasse.


OG:


Grundriss Obergeschoss: Schlafzimmer mit Ankleide, zwei Kinderzimmer, Bad, Empore, Flur, Abstellraum.


Größe des Grundstücks 750qm

Stilrichtung, Dachform, Gebäudetyp. Einfamilienhaus Satteldach 35 Grad
Keller, Geschosse kein Keller, 1,5 G.
Anzahl der Personen, Alter 2 (38, 13)
Raumbedarf im EG, OG Büro im EG, 3 Schlafzimmer oben
Büro: Familiennutzung oder Homeoffice? Beides
Schlafgäste pro Jahr. Selten
offene Küche, Kochinsel. Ja
Anzahl Essplätze. 6
Kamin. Ja
Musik/Stereowand. Ja
Balkon, Dachterrasse. Nein
Garage, Carport. Carport
Nutzgarten, Treibhausll

Hausentwurf
Von wem stammt die Planung:
-Planer eines Bauunternehmens
K
kbt09
12.09.18 23:46
Hamburch schrieb:
Problem: Das Grundstück ist nur 17m breit UND auf der Südseite des Grundstücks wird eine Zuwegung (3,5m) für die hinteren Grundstücke gebaut werden.
Heißt das, das Haus soll und kann direkt neben der Zuwegung beginnen?

Seid ihr auf den gezeigten Grundriss fixiert? Welche Außenmaße hat das Haus denn? Für sinnvolle Tipps auch immer den OG-Grundriss mit einstellen.

Kann es passieren, dass auf dem Grundstück im Norden vielleicht auch mal eine Zuwegung für den hinteren Bereich fällig ist?

Warum wird die Zuwegung nicht in den Norden gelegt? Evtl. geteilt mit nördlichen Nachbargrundstück.
O
Obstlerbaum
13.09.18 01:03
Der Plan noch mal in Nordausrichtung und das Grundstück in Nordausrichtung wäre hilfreich. Dein Post ist leicht unverständlich.
H
Hamburch
13.09.18 09:05
kbt09:

Heißt das, das Haus soll und kann direkt neben der Zuwegung beginnen?

Ja, ziemlich direkt (Max. 1 m Abstand). Kann aber auch direkt.
Bei der quergestellten Variante bleibt gar kein Abstand.

Seid ihr auf den gezeigten Grundriss fixiert? Welche Außenmaße hat das Haus denn? Für sinnvolle Tipps auch immer den OG-Grundriss mit einstellen.

Die Ausmaße sind flexibel. In diesem Falle 9,60 x 11,55.
Nein, auf den gezeigten Grundriss bin ich nicht fixiert. Was fällt dir denn auf?

Kann es passieren, dass auf dem Grundstück im Norden vielleicht auch mal eine Zuwegung für den hinteren Bereich fällig ist?

Nein, der Norden ist dann Safe.
alle hinteren Grundstücke werden von der Zuwegung bedient.


Warum wird die Zuwegung nicht in den Norden gelegt? Evtl. geteilt mit nördlichen Nachbargrundstück.

Weil der nördliche Nachbar der Verkäufer des Grundstücks ist und das als Bedingung stellt
H
Hamburch
13.09.18 09:08

Luftaufnahme eines Wohngebietes mit roter Grundstücksgrenze markiert

Obstlerbaum schrieb:
Der Plan noch mal in Nordausrichtung und das Grundstück in Nordausrichtung wäre hilfreich. Dein Post ist leicht unverständlich.

Hast natürlich Recht!
Das Grundstück ist bereits in N-Ausrichtung.


Grundriss eines Wohnhauses: Küche, Wohnen/Essen, Arbeitszimmer, Diele, HWR, Dusche/WC, Terrasse.



Grundriss einer Wohnung: Wohnzimmer mit Esstisch, Küche mit Insel, Schlafzimmer, Bad und Flur.
C
Climbee
13.09.18 09:23
Ich würde dann aber nicht spiegeln. Was soll der HTR im Süden?
Ggf. nur die Treppe in den Norden, Kochen in Süd und Wohnen in NW
zuwegunggrundstückeküchefenstergrundrisswalmdachkellercarportaußenmaßenachbargrundstück