P
palmenhaus28.01.20 21:36Hallo Hausbau-Community,
auch wir möchten gerne den Traum vom Eigenheim in die Tat umsetzen.
Die Planungen des Grundrisses sind bei uns im Kopf schon weit fortgeschritten, nach den ersten Gesprächen mit Bauträgern kommen nun langsam auch konkrete Bilder. Wir würden uns sehr freuen über Idee, Kritik, Feedback und Sonstiges.
Die vorgestellten Zeichnungen sind noch nicht 100% rund, das wissen wir. Aber wir würden gerne den Prozess mit Hilfe eurer Ideen gerne beschleunigen, daher bitte ich um etwas Nachsicht. Offene Themen oder Fragen versuche ich dann kurzfristig zu beantworten.
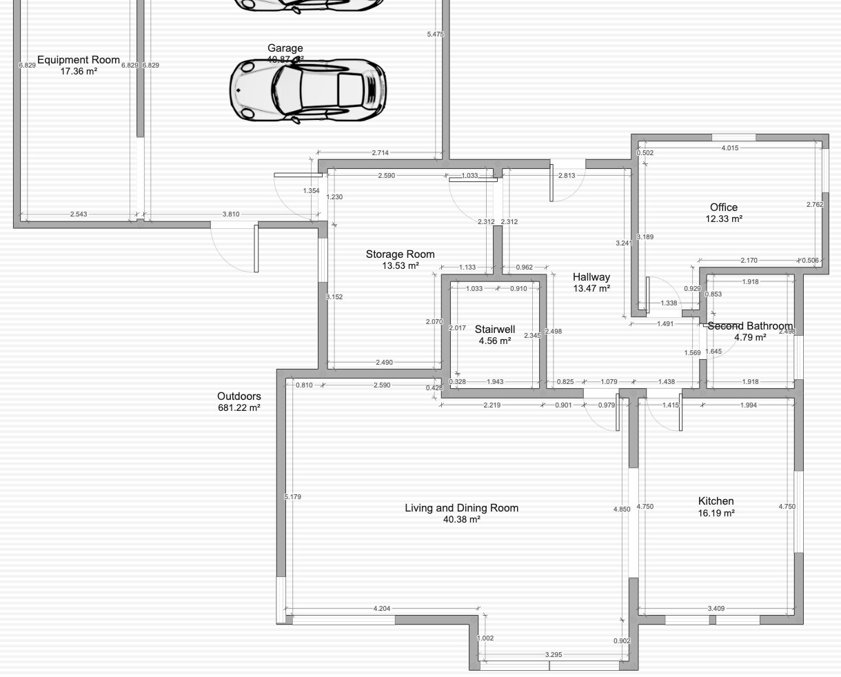
Auf Basis der Skizze (ebenfalls als Anlage Verfügbar) wurde ein konkreter Grundriss gezeichnet. Die Garage fehlt allerdings, und die Tür des HWRs zur Garage ist noch nicht richtig. Aber in Summe - was die Raum Anordnung, Raumgrößen, Fenster usw angeht - passt das grob. Es geht uns hier um ein erstes Feedback. Danke vorab
Bebauungsplan/Einschränkungen
Größe des Grundstücks: 756qm
Hang: nein
Grundflächenzahl: s. Bild
Geschossflächenzahl: s. Bild
Baufenster, Baulinie und -grenze: s.Bild
Randbebauung: nein
Anzahl Stellplatz: 2
Geschossigkeit: 2
Dachform: Satteldach
Stilrichtung: modern
Ausrichtung: Süden
Maximale Höhen/Begrenzungen: 9.5m Firsthöhe
weitere Vorgaben: 3.80m Traufenhöhe, Dachneigung 38-45grad
Anforderungen der Bauherren
Stilrichtung, Dachform, Gebäudetyp: modernes Satteldach verklickert mit Putz-Erker
Keller, Geschosse: kein Keller, 2 Geschosse
Anzahl der Personen, Alter: 4 Personen, 2 Erwachsene, 2 Kinder (2,5)
Raumbedarf im EG, OG: EG=95 ; OG=75
Büro: Familiennutzung oder Homeoffice? Homeoffice und Gästezimmer
Schlafgäste pro Jahr: 20
offene oder geschlossene Architektur
konservativ oder moderne Bauweise
offene Küche, Kochinsel: ja
Anzahl Essplätze: 6
Kamin: ja
Musik/Stereowand: TV - Wand
Balkon, Dachterrasse: nein
Garage, Carport: Doppelgarage mit direktem Hauszugang und Gerätebereich
Nutzgarten, Treibhaus: Beete und Rasen
weitere Wünsche/Besonderheiten/Tagesablauf, gern auch Begründungen, warum dieses oder das nicht sein soll
- Giebelseite zur Straße, um den Wohnbereich inkl. Dach in den Süden zu bekommen
- Garage 90grad zum Haus ausrichten
- Keine Wohnräume zum Netto-Markt, welcher NW zum Haus steht
- Bisher keine Speisekammer, die wir jedoch gerne hätten
- 2 gleich große Kinderzimmer in den Süden / Erker
Hausentwurf
Von wem stammt die Planung: Do-it-Yourself
Was gefällt besonders? Warum? - Moderne Elemente durch Erker, Wohnbereich und Gästezimmer getrennt von Schlafzimmern oben
Was gefällt nicht? Warum?
Preisschätzung lt Architekt/Planer: - 380.000 EUR
Persönliches Preislimit fürs Haus, inkl Ausstattung: 420.000 EUR
favorisierte Heiztechnik: Sole-Wasser-Wärmepumpe mit Bohrung
Wenn Ihr verzichten müsst, auf welche Details/Ausbauten
-könnt Ihr verzichten: Speisekammer, 2ter Ausbau, Hauswirtschaftsraum und Technik in einem Raum
-könnt Ihr nicht verzichten: offener Wohn/Essbereich, Gäste-WC mit Dusche, Direkter Durchgang Hauswirtschaftsraum in Garage
Warum ist der Entwurf so geworden, wie er jetzt ist? ZB
Standardentwurf vom Planer? Orientiert sich an Haus von Freunden, welches wir toll finden
Entsprechende/Welche Wünsche wurden vom Architekten umgesetzt? Ja
Was macht ihn in Euren Augen besonders gut oder schlecht? Im EG genug Platz zum Leben, ordentlich Stauraum im Hauswirtschaftsraum, klare Linien
Was ist die wichtigste/grundlegende Frage zum Grundriss in 130 Zeichen zusammengefasst?
Trennung von Wohnraum inkl. Büro/Gäste mit Dusch-WC im EG sowie Schlafbereich im OG, klare Linien, Küche sowie Wohn/Essbereich nicht in einer Flucht, sondern etwas gebrochen, Südausrichtung
Kopfzerbrechen bereitet uns noch das OG, das finden wir derzeit nicht optimal




auch wir möchten gerne den Traum vom Eigenheim in die Tat umsetzen.
Die Planungen des Grundrisses sind bei uns im Kopf schon weit fortgeschritten, nach den ersten Gesprächen mit Bauträgern kommen nun langsam auch konkrete Bilder. Wir würden uns sehr freuen über Idee, Kritik, Feedback und Sonstiges.
Die vorgestellten Zeichnungen sind noch nicht 100% rund, das wissen wir. Aber wir würden gerne den Prozess mit Hilfe eurer Ideen gerne beschleunigen, daher bitte ich um etwas Nachsicht. Offene Themen oder Fragen versuche ich dann kurzfristig zu beantworten.
Auf Basis der Skizze (ebenfalls als Anlage Verfügbar) wurde ein konkreter Grundriss gezeichnet. Die Garage fehlt allerdings, und die Tür des HWRs zur Garage ist noch nicht richtig. Aber in Summe - was die Raum Anordnung, Raumgrößen, Fenster usw angeht - passt das grob. Es geht uns hier um ein erstes Feedback. Danke vorab
Bebauungsplan/Einschränkungen
Größe des Grundstücks: 756qm
Hang: nein
Grundflächenzahl: s. Bild
Geschossflächenzahl: s. Bild
Baufenster, Baulinie und -grenze: s.Bild
Randbebauung: nein
Anzahl Stellplatz: 2
Geschossigkeit: 2
Dachform: Satteldach
Stilrichtung: modern
Ausrichtung: Süden
Maximale Höhen/Begrenzungen: 9.5m Firsthöhe
weitere Vorgaben: 3.80m Traufenhöhe, Dachneigung 38-45grad
Anforderungen der Bauherren
Stilrichtung, Dachform, Gebäudetyp: modernes Satteldach verklickert mit Putz-Erker
Keller, Geschosse: kein Keller, 2 Geschosse
Anzahl der Personen, Alter: 4 Personen, 2 Erwachsene, 2 Kinder (2,5)
Raumbedarf im EG, OG: EG=95 ; OG=75
Büro: Familiennutzung oder Homeoffice? Homeoffice und Gästezimmer
Schlafgäste pro Jahr: 20
offene oder geschlossene Architektur
konservativ oder moderne Bauweise
offene Küche, Kochinsel: ja
Anzahl Essplätze: 6
Kamin: ja
Musik/Stereowand: TV - Wand
Balkon, Dachterrasse: nein
Garage, Carport: Doppelgarage mit direktem Hauszugang und Gerätebereich
Nutzgarten, Treibhaus: Beete und Rasen
weitere Wünsche/Besonderheiten/Tagesablauf, gern auch Begründungen, warum dieses oder das nicht sein soll
- Giebelseite zur Straße, um den Wohnbereich inkl. Dach in den Süden zu bekommen
- Garage 90grad zum Haus ausrichten
- Keine Wohnräume zum Netto-Markt, welcher NW zum Haus steht
- Bisher keine Speisekammer, die wir jedoch gerne hätten
- 2 gleich große Kinderzimmer in den Süden / Erker
Hausentwurf
Von wem stammt die Planung: Do-it-Yourself
Was gefällt besonders? Warum? - Moderne Elemente durch Erker, Wohnbereich und Gästezimmer getrennt von Schlafzimmern oben
Was gefällt nicht? Warum?
Preisschätzung lt Architekt/Planer: - 380.000 EUR
Persönliches Preislimit fürs Haus, inkl Ausstattung: 420.000 EUR
favorisierte Heiztechnik: Sole-Wasser-Wärmepumpe mit Bohrung
Wenn Ihr verzichten müsst, auf welche Details/Ausbauten
-könnt Ihr verzichten: Speisekammer, 2ter Ausbau, Hauswirtschaftsraum und Technik in einem Raum
-könnt Ihr nicht verzichten: offener Wohn/Essbereich, Gäste-WC mit Dusche, Direkter Durchgang Hauswirtschaftsraum in Garage
Warum ist der Entwurf so geworden, wie er jetzt ist? ZB
Standardentwurf vom Planer? Orientiert sich an Haus von Freunden, welches wir toll finden
Entsprechende/Welche Wünsche wurden vom Architekten umgesetzt? Ja
Was macht ihn in Euren Augen besonders gut oder schlecht? Im EG genug Platz zum Leben, ordentlich Stauraum im Hauswirtschaftsraum, klare Linien
Was ist die wichtigste/grundlegende Frage zum Grundriss in 130 Zeichen zusammengefasst?
Trennung von Wohnraum inkl. Büro/Gäste mit Dusch-WC im EG sowie Schlafbereich im OG, klare Linien, Küche sowie Wohn/Essbereich nicht in einer Flucht, sondern etwas gebrochen, Südausrichtung
Kopfzerbrechen bereitet uns noch das OG, das finden wir derzeit nicht optimal
N
NatureSys28.01.20 22:24Der Hauswirtschaftsraum hat aktuell keine Verbindung zum Rest des EG. Ist das so gewollt, oder ein Fehler in der Zeichnung?
P
palmenhaus28.01.20 22:32Fehler in der Zeichnung. Tür geht in den Flur ab.
Danke für den Hinweis. Hatte ich vergessen zu erwähnen
Danke für den Hinweis. Hatte ich vergessen zu erwähnen
N
NatureSys28.01.20 22:35Problematisch sind in der jetzigen Version die Laufwege im EG. Rund um den Tisch ist es eng, sodass man schlecht von der Terrasse zum WC kommt und auch schlecht von der Küche ins Wohnzimmer. Wenn man bedenkt wie groß die Diele ist, ist der Bereich und den Tisch zu knapp bemessen.
N
NatureSys28.01.20 22:47Ich finde oben im OG den Erker zu schmal. Da passen vielleicht schreibtische hin, die Max. 1,20m breit sind. Und dann fehlt den Kinder jeglicher Platz um dort was abzustellen. Weder ein Regal, noch ein Rollco Tai er haben dort wirklich Platz.
N
NatureSys28.01.20 22:48Rollcontainer war gemeint
Ähnliche Themen