Meinung zur Küchengröße bzw. Raumplan

4,30 Stern(e) 8 Votes
Zuletzt aktualisiert 22.10.2025
Sie befinden sich auf der Seite 2 der Diskussion zum Thema: Meinung zur Küchengröße bzw. Raumplan
>> Zum 1. Beitrag <<

kaho674

kaho674

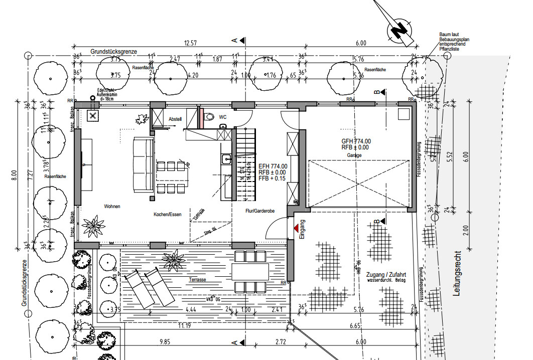
Okay. Der Kühlschrank (ist doch das Kästchen oben links in der Küche, oder?) ist dann eigentlich ziemlich blöd positioniert. Wenn er wirklich dort steht, sitzt ihr auf der Couch mit dem Ohr am Kühlschrank... S
Nicht nur das. Üblicherweise sind Küchenschränke von hinten nicht furniert. Heißt, wenn Ihr da nicht irre Aufpreis legt für eine schöne Rückansicht, sieht man die unbehandelten billigen Pressplatten der Möbel. Das gleiche gilt übrigens für das Sofa, wobei hier schon eher eine volle "Bestoffung" gängig ist.

Ich würde tatsächlich auf die Kochinsel verzichten und ein L stellen. Zwischen Sofa und Tisch ne halbhohe Trennwand.


Grundriss eines Einfamilienhauses mit Wohnzimmer, Küche, Terrasse und Garage
 
kbt09

kbt09

So wie die Küche aktuell eingezeichnet ist, bleiben oben zu wenig Durchgangsabstände.

Der gesamte Raum hat im Grunde die Crux des quadratischen Raums.

@Fummelbrett! ... da passt kein Tisch mehr.

Das L mit dem Tisch hinter dem Sofa finde ich leider auch nicht so gelungen.

Ich würde tendenziell die Insel eher quer stellen, damit nach unten auch mehr Platz für den Tisch bleibt. Denn, an dem muss man ja auf dem Weg zum Sofa noch vorbei.

Offener Grundriss: Wohnzimmer mit Sofa, Kücheninsel, Esstisch, Treppe, Abstellraum, WC.



Was sind das für Fenster planoben? Fensterbänder mit welcher Brüstungshöhe?
 
kaho674

kaho674

So wie die Küche aktuell eingezeichnet ist, bleiben oben zu wenig Durchgangsabstände.

Der gesamte Raum hat im Grunde die Crux des quadratischen Raums.

@Fummelbrett! ... da passt kein Tisch mehr.

Das L mit dem Tisch hinter dem Sofa finde ich leider auch nicht so gelungen.

Ich würde tendenziell die Insel eher quer stellen, damit nach unten auch mehr Platz für den Tisch bleibt. Denn, an dem muss man ja auf dem Weg zum Sofa noch vorbei.
Anhang anzeigen 38374


Was sind das für Fenster planoben? Fensterbänder mit welcher Brüstungshöhe?
So komste ja aber gar nicht mehr vom Flur ins WZ, ohne über den Tisch zu krabbeln.
Das Sofa auf die Art zu stellen, find ich auch sehr ungünstig. Wer will beim chillen ständig von hinten genervt werden? Gemütlichkeit entsteht so nicht.

Einfach nen großen Raum hinzeichnen und dann versuchen alle Möbel rein zu quetschen, ist Quark. Schönes Beispiel dafür. Raumplanung geht anders - mit Gruß an den Architekt.
 
kbt09

kbt09

Ich weiß, Katja, deshalb zeichne ich Stühle ja immer eher in Gebrauch als untergeschoben. Und ich habe in der Querstellung der Insel schon mehr Platz für den Tisch als bei der Längsstellung der Insel bzw. dem U.

Ich mag das Sofa mitten im Raum ja auch so gar nicht .
 
H

hampshire

Tja, Kücheninseln brauchen eben viel Platz. Wenn sie sein muss, bei der Ursprungsidee bleiben und den Tipp hinsichtlich der Rückwände zum Wohnbereich beachten. Der L-Vorschlag von @kaho674 ist sicher praktischer.
 
H

hippjoha

Vielen Dank für die ganzen Antworten!

Okay. Der Kühlschrank (ist doch das Kästchen oben links in der Küche, oder?) ist dann eigentlich ziemlich blöd positioniert. Wenn er wirklich dort steht, sitzt ihr auf der Couch mit dem Ohr am Kühlschrank... Seid ihr vielleicht mal in einem Küchenstudio gewesen? Wenn es ein Gutes ist, dann können die euch sicher sehr wertvolle Tipps geben. Ich finde den Schnitt an sich recht schwierig, muss aber auch gestehen dass ich persönlich kein Fan offener Küchen bin.
Ja, das wird 'ne enge Kiste. Aber da muss man ja noch mehr rausholen können. Habt ihr Hängeschränke geplant bzw. wie soll der Stil generell sein?
Ja, das haben wir auch schon überlegt. Vorteil in der Ecke wäre halt, dass dort ein freistehender Kühlschrank stehen könnte und somit auch keine Möbel mit Rückwand etc. nötig wären. Ja, an der Wand mit der Küchenzeile würden wir schon hängeschränke hängen. Im Küchenstudio waren wir bisher noch nicht. Das kommt aber noch

Das gleiche gilt übrigens für das Sofa, wobei hier schon eher eine volle "Bestoffung" gängig ist.
Ja, unser jetziges Sofa dient auch schon als Raumteiler in unserer Wohnung, hat also eine Bestoffung. Hier haben wir auch einen offenen Koch, Ess, Wohnbereich. Sofa trennt hier quasi auch Wohn und Essbereich

Ich würde tendenziell die Insel eher quer stellen, damit nach unten auch mehr Platz für den Tisch bleibt. Denn, an dem muss man ja auf dem Weg zum Sofa noch vorbei.
Das hatten wir auch schon überlegt. Allerdings wäre dann die Küchenzeile noch kleiner. Auch könnte es sonst generell etwas zu eng werden.

Was sind das für Fenster planoben? Fensterbänder mit welcher Brüstungshöhe?
Welche meinst du genau? Die Fenster vorne zur Terrasse sind bodentiefe Türen/Fixverglasung.

Das Sofa auf die Art zu stellen, find ich auch sehr ungünstig. Wer will beim chillen ständig von hinten genervt werden? Gemütlichkeit entsteht so nicht.
Hmm ja, hier sind wir für jeden Vorschlag offen

Ich mag das Sofa mitten im Raum ja auch so gar nicht .
Wie gesagt, haben wir in unserer jetzigen Wohnung auch einen offenen Schnitt und das Sofa dient als "Raumteiler". Wir mögen den offenen Raum ganz gerne. Aber falls ihr noch bessere Ideen habt, wie wir das Sofa und vor allem die Wohnwand stellen könnten und trotzdem noch einen offenen Raum haben, dann sind wir für jeden Vorschlag dankbar
 
Zuletzt aktualisiert 22.10.2025
Im Forum Küchenplanung und Küchenbau gibt es 1074 Themen mit insgesamt 12736 Beiträgen


Ähnliche Themen zu Meinung zur Küchengröße bzw. Raumplan
Nr.ErgebnisBeiträge
1Bungalow 135qm: Grundriss + Fenster - Seite 12104
2Bodentiefe Fenster - wie Sofa stellen? 12
3Einteilung Grundriss Allraum Küche Wohnen Essen 58
4Platzierung der Möbel im Wohnzimmer im Grundriss 10
5Wohnbereich falsch konzipiert Änderungsideen? 53
6Riesiges Problem mit dem Kondenswasser am Fenster - Seite 334
7Ideen für Aufteilung und Planung einer Wohnung - Seite 541
8Wohnzimmer: Wie Sofa, TV und Schränke stellen? 32
9Kramfors Sofa Leder Braun - defekt... 12
10Sichtschutz zwischen Küche und Wohnbereich - Seite 317
11Bewertung Grundriss 3 Zi Wohnung - Seite 273
12Varianten zur Anordnung TV- und Sofa-Bereich! - Seite 424
13Mögliche Sofa- und TV-Position im Wohnzimmer gesucht. 15
14Raumteiler - einseitig oder beidseitig ? - Seite 481
15Bodentiefe Fenster nach außen öffnend, für mehr nutzbaren Platz innen - Seite 333
16Feng Shui in der Wohnung ? 11
17Bodentiefe Fenster - Warum bodentiefe Fenster? Vor- Nachteile? - Seite 4112
18Alte/frühere Möbel mitnehmen ins neue Haus oder "alles" neu? 42
19Müssen Heizkörper im Neubau immer unter die Fenster? - Seite 741
20Rollladen Zwangsentriegelung an einem Fenster vorgeschrieben? 41

Oben