Hausbau - Ratgeber
Bauherrenhilfe
- Bauherrenhilfe vor Vertragsabschluss
-- Warum einen unabhängigen Baubetreuer?
-- Vertragsgrundlagen
-- Bausumme
-- Zahlungsplan zur Kostenkontrolle
-- Pflichten des Bauherren vor Vertragsabschluss
-- Unterlagen beim Hausbau vor Vertragsabschluss
- Bauherrenhilfe nach Vertragsabschluss
-- Bauantrag bei Behörden
-- Bau-Genehmigungsverfahren bei Baubehörden
-- Bauspezifische Versicherungen
-- Bauzeitenplan
-- Baubeginn - die Letzten Pflichten der Bauherrschaft
- Bauherrenhilfe während der Bauzeit
- Gewährleistungsansprüche
- Bauabnahme
Baufinanzierung
- Baufinanzierung - Allgemeine Fragen
- Kreditarten
- Kredit-Konditionen
- Bausparen
- Staatliche Förderungen
- Verkehrswert
- Haushaltsrechnung und Bonität
Hausbau Planung
- Haustypen
- Hausbau Vorbereitungsarbeiten
- Das Baugrundstück
- Baugrund beim Hausbau
- Baurecht
- Gebäudeschutz
- Erdarbeiten und Wasserhaltung
- Stützmauern
- Einfriedung
- Untergeschoss
- Kanalisation
- Tragende Elemente
- Nichttragende Innenwände
- Fundation / Fundament
- Deckenkonstruktionen
- Dächer
- Kaminanlagen
- Treppen Rampen Leitern
- Dachbeläge und Spengler
- Fenster
- Sonnen und Wetterschutz
- Aussenputze
- Einbauten, Küchen, Türen
- Bodenbeläge und Unterlagsböden
- Parkett
- Gips, Wand, Decke
Haustechnik und Energie
- Heiztechnik
- Lüftung und Klimatechnik
- Sanitärtechnik
- Elektrotechnik
- Erneuerbare Energie
Whirlpools / Jacuzzi
Hausbau Magazin
- Baufinanzierung trotz Krise?
- Das Blockhaus
- Moderne Dämmstoffe im Vergleich
- Erker Vor- und Nachteile
- Glasflächen beim Hausbau
- Günstig ein Haus Bauen
- Mediterraner Hausbaustil
- Mehrgenerationenhaus
- Moderne Architektur
- Gartengestaltung leicht gemacht
- Traditioneller Ziegelbau
- Villa als höchster Traum
- Im Eigenheim Ruhestand geniessen
- Altbau sanieren
- Kauf einer Holzgarage
- Immobilienmakler
- Arbeitshandschuhe für den Winter
- Zuhause verschönern
- Outdoor-Plissees
- Schlafzimmer planen
- Terrassenüberdachung
- Wohngebäudeversicherung
- Zaunarten und Eigenschaften
- Hauseingang gestalten
- Der perfekte Grundriss
- Sparsamer heizen im Altbau
- Einfamilienhaus smart finanzieren
- Planung einer PV-Anlage
- Neues Haus
- Immobilienfinanzierung
- Installation einer Photovoltaikanlage
- Asbest erkennen und entfernen
- Gartenpflege im Frühling – worauf achten
- Sauna im Fokus - Wellness zuhause
- Erfolgreich vermieten
- Die perfekte Winterbekleidung
- Das Niedrigenergiehaus
- Der April und seine Stürme
- Architektonische Vielfalt
- Ökologisch und nachhaltig bauen
- Das perfekte Schlafzimmer
- Nachhaltige Energieversorgung
- Zukunftsorientiert bauen
- Nachhaltigkeit beim Hausbau
- Tiny Houses
- Wärmepumpen als nachhaltige Heizvariante
- Maßgeschneiderten Kleiderschrank
- Der richtige Baukredit
- Ratgeber für erfolgreichen Hausbau
- Haus als Altersvorsorge
Do-it-yourself Anleitungen
- Verlegeanleitung für Bodenbeläge und Parkett
- Bodenbeläge und Parkett reinigen und pflegen
- Malerarbeiten am Haus
- Garten Tipps
- Umzug und Reinigung

ᐅ Meinung zu Grundriss - 2-geschossiges Einfamilienhaus

Erstellt am: 18.03.15 00:11
K
Katana
K
Katana
18.03.15 00:11

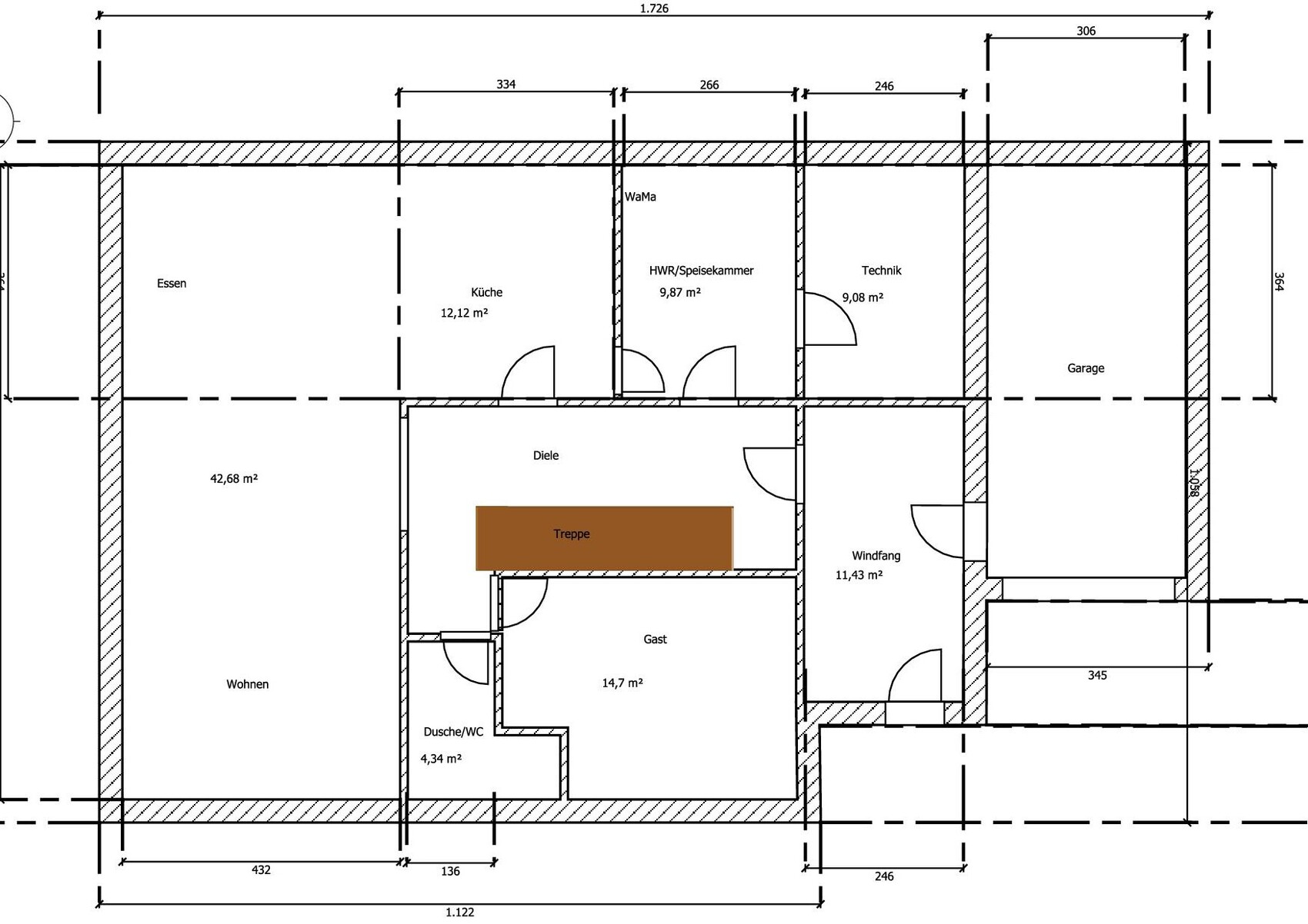
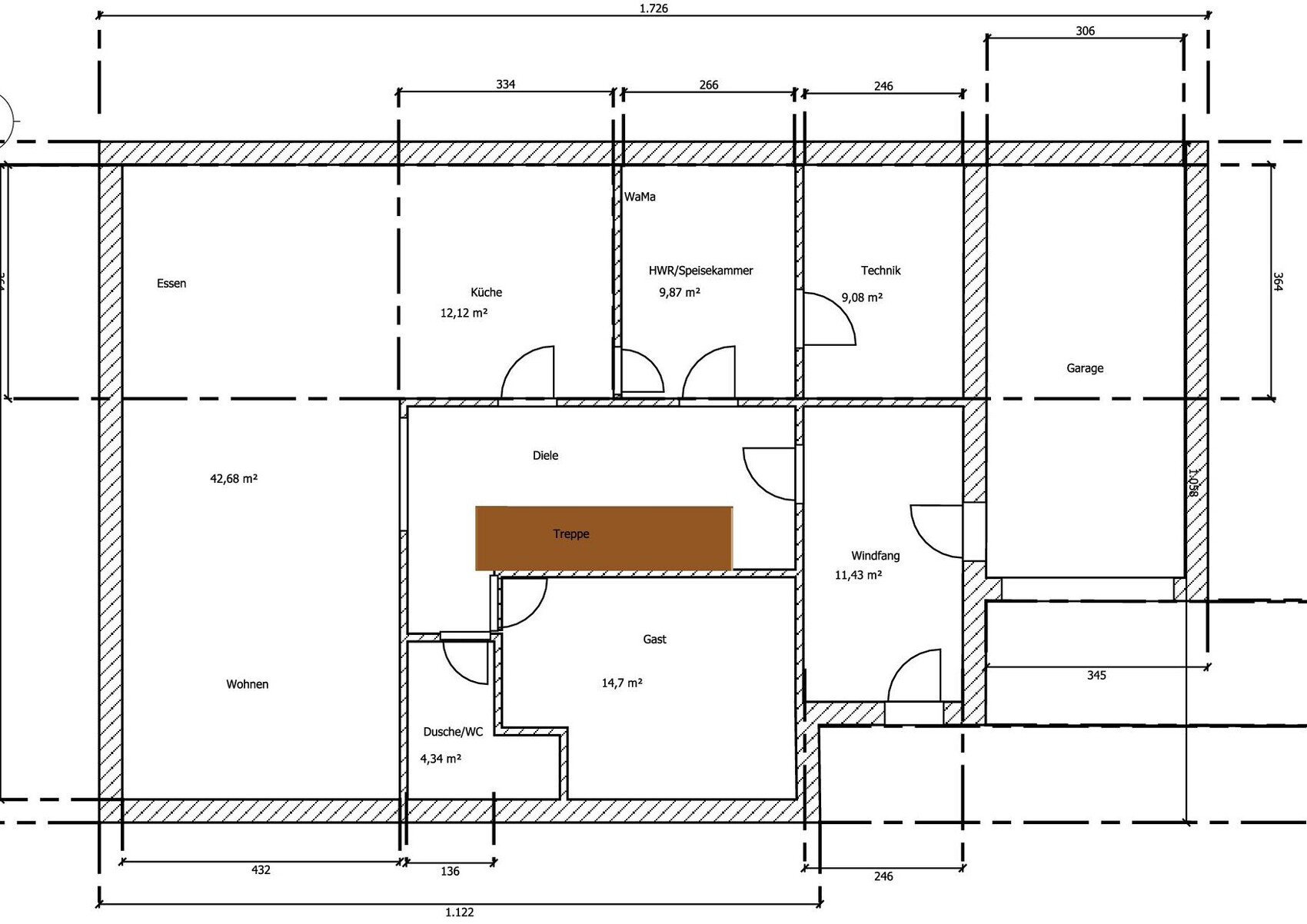
2D-Grundriss eines Hauses mit Wohnen, Essen, Kuche, Diele und Treppe

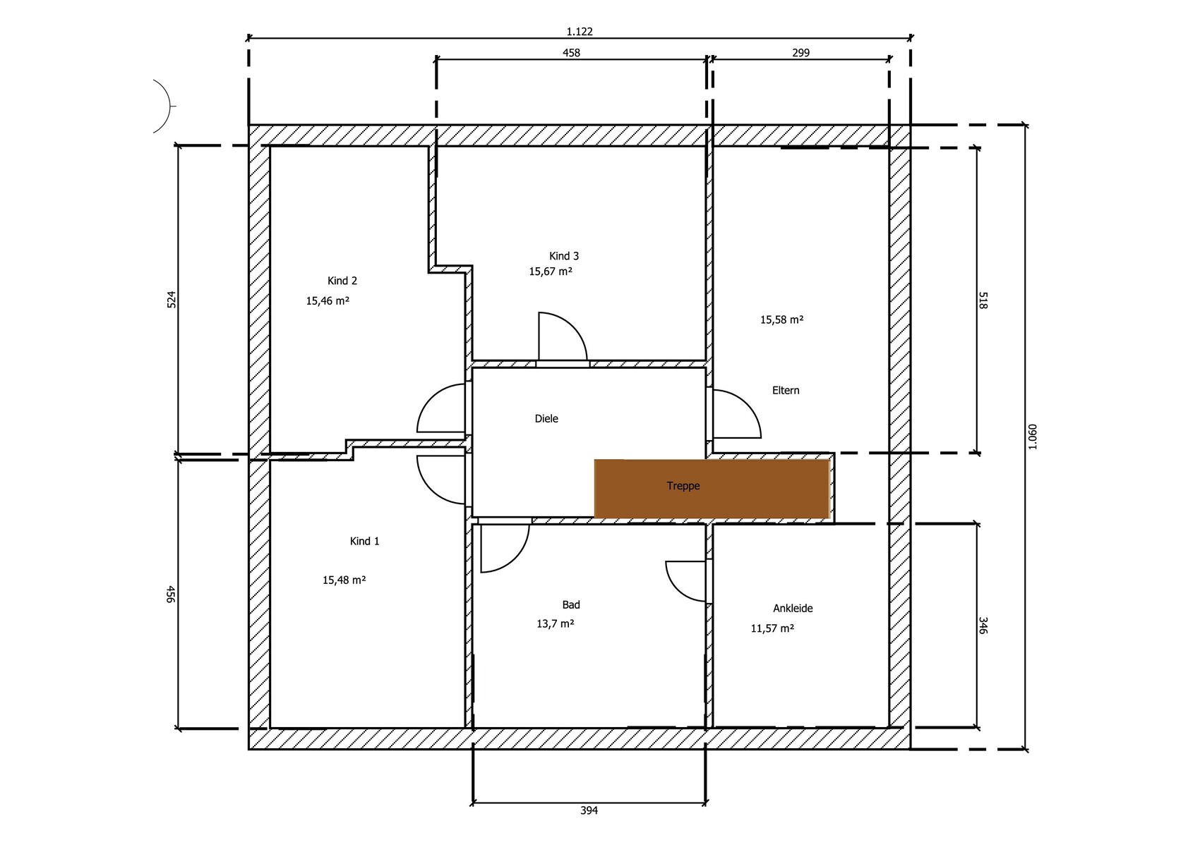
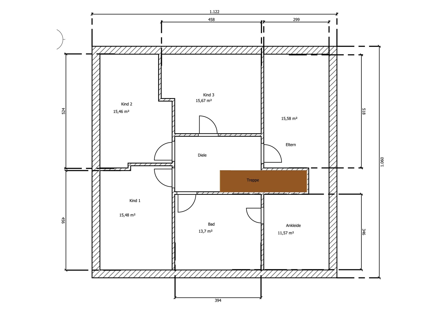
2D-Grundriss eines Hauses mit Diele, Treppe, Bad, Ankleide und Schlafzimmern
L
lastdrop
18.03.15 08:15
Die Ankleide als gefangene Zimmer hinterm Bad? Was soll das?

Ansonsten sehe ich im EG lange Wege und viel Türen ...
C
Curly
18.03.15 08:19
Hallo,

ich finde die Diele und den Windfang viel zu dunkel, ebenso den Flur oben. Warum habt ihr solche Knicke in den Kinderzimmerwänden? Habt ihr euch mal überlegt, dass ihr bei jedem Toilettengang zwei Türen abschließen müsst und wieder aufschließen? Das gilt auch für die Kinder! Meine Kinder würden zu 100% (aus Faulheit) die Tür zur Ankleide nicht mehr aufschließen und so wäre euch der Weg zur Toilette ständig versperrt, was bei drei Teenies irgendwann sowieso der Fall sein wird 🙂.

LG
Sabine
L
lastdrop
18.03.15 08:21
lastdrop schrieb:
Die Ankleide als gefangene Zimmer hinterm Bad? Was soll das?

Ahh ... habe den Durchgang übersehen. Diese Tür wird aber ein Ärgernis werden, s. Curly.
Y
Yaso2.0
18.03.15 08:21
Ich finde das Ankleidezimmer angrenzend zum Bad nicht gut, weil es keinen weiteren Zugang außer direkt durchs Bad gibt.

Was wenn jemand auf Toilette sitzt und ein anderer da was rausholen möchte 😀

mir persönlich wäre das zu viel vergebene Fläche für Windfang und Diele.
Y
Yaso2.0
18.03.15 08:24
lastdrop schrieb:
Ahh ... habe den Durchgang übersehen. Diese Tür wird aber ein Ärgernis werden, s. Curly.

Übersehe ich da jetzt was? Ins Ankleidezimmer kommt man doch nur direkt durchs Bad, oder wo ist der weitere Durchgang??
türenankleidezimmerdielewindfangtoilettedurchgang