Hausbau - Ratgeber
Bauherrenhilfe
- Bauherrenhilfe vor Vertragsabschluss
-- Warum einen unabhängigen Baubetreuer?
-- Vertragsgrundlagen
-- Bausumme
-- Zahlungsplan zur Kostenkontrolle
-- Pflichten des Bauherren vor Vertragsabschluss
-- Unterlagen beim Hausbau vor Vertragsabschluss
- Bauherrenhilfe nach Vertragsabschluss
-- Bauantrag bei Behörden
-- Bau-Genehmigungsverfahren bei Baubehörden
-- Bauspezifische Versicherungen
-- Bauzeitenplan
-- Baubeginn - die Letzten Pflichten der Bauherrschaft
- Bauherrenhilfe während der Bauzeit
- Gewährleistungsansprüche
- Bauabnahme
Baufinanzierung
- Baufinanzierung - Allgemeine Fragen
- Kreditarten
- Kredit-Konditionen
- Bausparen
- Staatliche Förderungen
- Verkehrswert
- Haushaltsrechnung und Bonität
Hausbau Planung
- Haustypen
- Hausbau Vorbereitungsarbeiten
- Das Baugrundstück
- Baugrund beim Hausbau
- Baurecht
- Gebäudeschutz
- Erdarbeiten und Wasserhaltung
- Stützmauern
- Einfriedung
- Untergeschoss
- Kanalisation
- Tragende Elemente
- Nichttragende Innenwände
- Fundation / Fundament
- Deckenkonstruktionen
- Dächer
- Kaminanlagen
- Treppen Rampen Leitern
- Dachbeläge und Spengler
- Fenster
- Sonnen und Wetterschutz
- Aussenputze
- Einbauten, Küchen, Türen
- Bodenbeläge und Unterlagsböden
- Parkett
- Gips, Wand, Decke
Haustechnik und Energie
- Heiztechnik
- Lüftung und Klimatechnik
- Sanitärtechnik
- Elektrotechnik
- Erneuerbare Energie
Whirlpools / Jacuzzi
Hausbau Magazin
- Baufinanzierung trotz Krise?
- Das Blockhaus
- Moderne Dämmstoffe im Vergleich
- Erker Vor- und Nachteile
- Glasflächen beim Hausbau
- Günstig ein Haus Bauen
- Mediterraner Hausbaustil
- Mehrgenerationenhaus
- Moderne Architektur
- Gartengestaltung leicht gemacht
- Traditioneller Ziegelbau
- Villa als höchster Traum
- Im Eigenheim Ruhestand geniessen
- Altbau sanieren
- Kauf einer Holzgarage
- Immobilienmakler
- Arbeitshandschuhe für den Winter
- Zuhause verschönern
- Outdoor-Plissees
- Schlafzimmer planen
- Terrassenüberdachung
- Wohngebäudeversicherung
- Zaunarten und Eigenschaften
- Hauseingang gestalten
- Der perfekte Grundriss
- Sparsamer heizen im Altbau
- Einfamilienhaus smart finanzieren
- Planung einer PV-Anlage
- Neues Haus
- Immobilienfinanzierung
- Installation einer Photovoltaikanlage
- Asbest erkennen und entfernen
- Gartenpflege im Frühling – worauf achten
- Sauna im Fokus - Wellness zuhause
- Erfolgreich vermieten
- Die perfekte Winterbekleidung
- Das Niedrigenergiehaus
- Der April und seine Stürme
- Architektonische Vielfalt
- Ökologisch und nachhaltig bauen
- Das perfekte Schlafzimmer
- Nachhaltige Energieversorgung
- Zukunftsorientiert bauen
- Nachhaltigkeit beim Hausbau
- Tiny Houses
- Wärmepumpen als nachhaltige Heizvariante
- Maßgeschneiderten Kleiderschrank
- Der richtige Baukredit
- Ratgeber für erfolgreichen Hausbau
- Haus als Altersvorsorge
Do-it-yourself Anleitungen
- Verlegeanleitung für Bodenbeläge und Parkett
- Bodenbeläge und Parkett reinigen und pflegen
- Malerarbeiten am Haus
- Garten Tipps
- Umzug und Reinigung

ᐅ Bitte um ehrliche Meinung zu unserem Grundriss!!

Erstellt am: 30.05.12 20:54
V
Vronal30
V
Vronal30
30.05.12 20:54
Anbei unser Grundriss. Wie findet ihr ihn und was ist schlecht daran?

Zwei Außenansichten eines modernen Hauses von Norden und Süden mit Dach und Fensterfronten


Architekturzeichnung der West- und Ostansicht eines Hauses


Erdgeschoss Grundrissplan mit Wohnzimmer, Küche, Essbereich, Terrasse und Garage


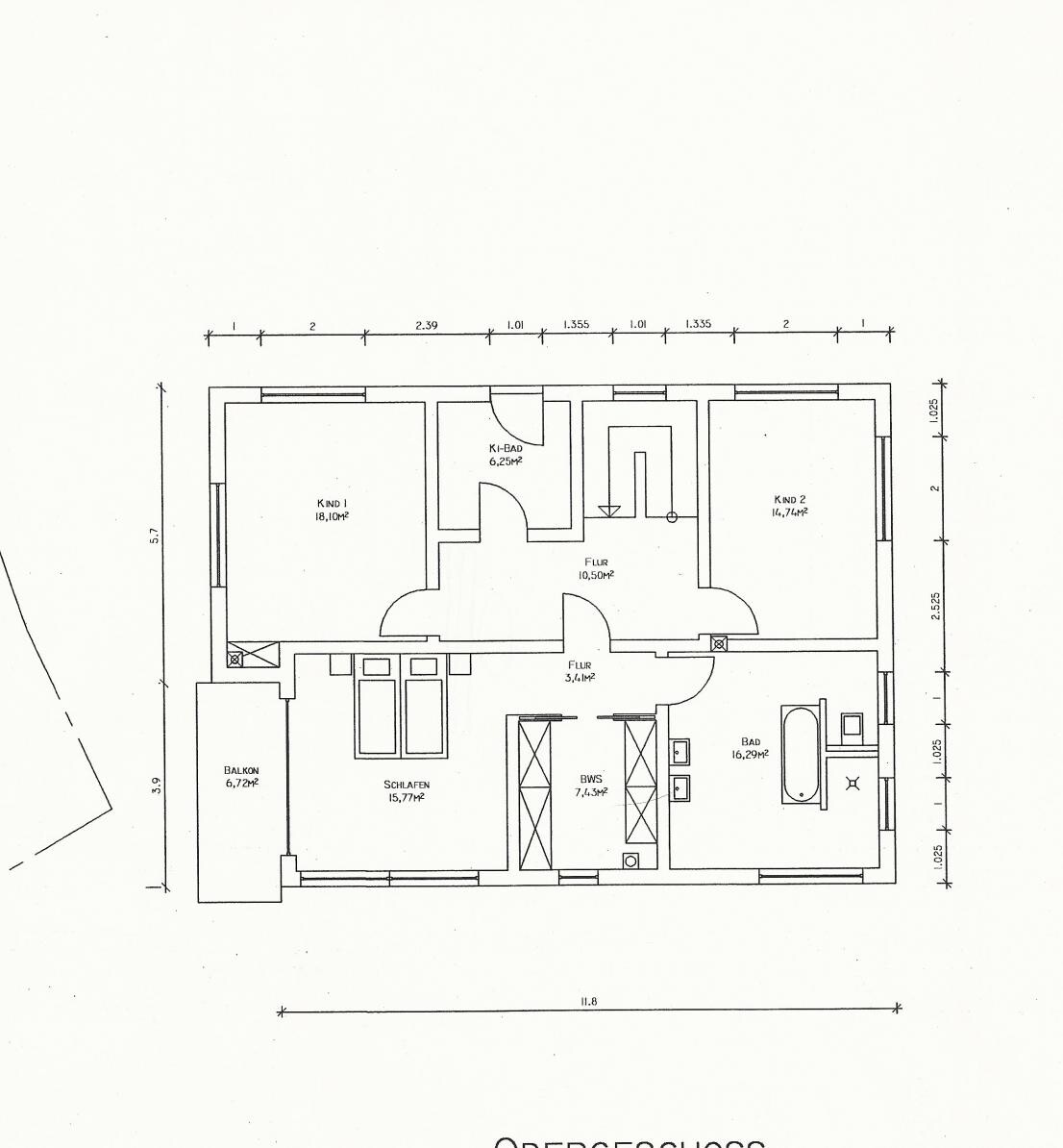
Grundriss eines Wohnhauses mit Schlafzimmer, Kinderzimmer, Bad, Flur und Balkon.
D
Der Da
30.05.12 22:29
Was ich nicht gut finde: Ein Kinderzimmer ist doch arg klein geraten, wenn man bedenkt wieviel Platz da im Obergeschoss ist. Dafür ist das Schlafzimmer riesig, die Ankleide groß und das Bad noch viel größer. Das Kinderbad dagegen ist winzig. Vielleicht sollte man da nochmal seine Prioritäten überprüfen.
Im EG finde ich den Wohnraum sehr Merkwürdig.... soll das Sofa in die Ecke, was macht Ihr im Rest des Raumes? dagegen ist am Esstisch mit der Kochinsel wohl weniger Platz, vielleicht kann man das einfach tauschen.
Und den Seiteneingang finde ich unnütz. Aber ist alles Geschmackssache.
Allgemein sind es sehr viele Fenster (Kostenfaktor für Kfw Berechnung und es kostet Stellfläche für Bücherregale, falls es sowas in Ebookzeiten noch gibt. Für mich undenkbar)
Der Balkon oben, wird der gebraucht....


Was ich toll finde ist die große Speis. Leider sind die in modernen Häusern kaum geeignet um Lebensmittel zu lagern, da es einfach zu warm ist, undmag kann keine lüftungsgitter nach Außen setzen, wie das damals üblich war. Da stellt sich dann die Frage, ob die Speis so groß sein muss, oder würden nicht 4 qm reichen?


Ohje... lauter Gemecker von mir... 🙂 Ich denke das der Grundriss funktionieren kann, aber für ein haus, wahrscheinlich ohne Keller fehlt definitiv Platz zum Stellen von großen Schränken. Ich bin kein Architekt, aber ich glaube die Planung hat Ihre Schwächen. Aber ist eben alles Geschmackssache. Vielleicht hilf die Meckerei Euch ja das ein oder andere zu überdenken.
V
Vronal30
30.05.12 22:40
Der Da schrieb:
Was ich nicht gut finde: Ein Kinderzimmer ist doch arg klein geraten, wenn man bedenkt wieviel Platz da im Obergeschoss ist. Dafür ist das Schlafzimmer riesig, die Ankleide groß und das Bad noch viel größer. Das Kinderbad dagegen ist winzig. Vielleicht sollte man da nochmal seine Prioritäten überprüfen.

Hm, ja das stimmt schon, aber das ist gar nicht so einfach damit alles zusammen passt. Kinderbad soll nur 1 Toilette, Waschbecken und Dusche rein. Aber es stimmt schon das es klein ist.

Im EG finde ich den Wohnraum sehr Merkwürdig.... soll das Sofa in die Ecke, was macht Ihr im Rest des Raumes? dagegen ist am Esstisch mit der Kochinsel wohl weniger Platz, vielleicht kann man das einfach tauschen.

Wir wollten ein großes Wohnzimmer das war mir sehr wichtig. Die eine Seite wo der Kamin hinkommt da soll die Couch hin ins Eck und gegenüber kommt der Fernseher.


Und den Seiteneingang finde ich unnütz. Aber ist alles Geschmackssache.

Warum unnütz? da kann man doch dann gleich in die Garage gehen. Aber wie gesagt das ist Geschmacksache.

Allgemein sind es sehr viele Fenster (Kostenfaktor für Kfw Berechnung und es kostet Stellfläche für Bücherregale, falls es sowas in Ebookzeiten noch gibt. Für mich undenkbar)
Der Balkon oben, wird der gebraucht....

Naja ich wollte eigentlich keinen Balkon. Der lockert das Haus aber nun ein bisschen auf und darum haben wir den reingemacht. Und damit wir auf der Terrasse etwas schatten haben.


Was ich toll finde ist die große Speis. Leider sind die in modernen Häusern kaum geeignet um Lebensmittel zu lagern, da es einfach zu warm ist, undmag kann keine lüftungsgitter nach Außen setzen, wie das damals üblich war. Da stellt sich dann die Frage, ob die Speis so groß sein muss, oder würden nicht 4 qm reichen?

Die Speis ist tatsächlich sehr groß. Evtl werden wir das Büro noch ein klein wenig größer machen. Aber eine große Speis ist schon gut da wir auch einen Gefrierschrank und die Getränkekisten reinstellen können.


Ohje... lauter Gemecker von mir... 🙂 Ich denke das der Grundriss funktionieren kann, aber für ein haus, wahrscheinlich ohne Keller fehlt definitiv Platz zum Stellen von großen Schränken. Ich bin kein Architekt, aber ich glaube die Planung hat Ihre Schwächen. Aber ist eben alles Geschmackssache. Vielleicht hilf die Meckerei Euch ja das ein oder andere zu überdenken.

Sorry, Keller haben wir natürlich. Habe ich nur nicht eingescannt. Dachte der ist unwichtig :-)


Ach ja erstmal vielen Dank auch für dein "Gemecker" :-) Ne dafür ist ja das Forum da und wir wollten ja eine ehrliche Meinung haben. Wir werden bestimmt noch einige Sachen überdenken.

Danke und liebe Grüße Vroni
P
perlenmann
31.05.12 07:23
Als Vater zweier Kinder: Welches Kind bekommt welches Zimmer? Wenn 2 da/geplant sind, ändern!
Wenn ein Keller da ist, warum eine Speisekammer? Ich hab alles im Keller und gut ist. Den Platz würde ich dann definitiv für die Küche nehmen, und diese aus dem Wohnzimmer rausholen.
Ihr habt da eine Showküche geplant. Kocht ihr auch? Wird die immer nach SHOW aussehen und Tiptop aufgeräumt sein? Ich bin froh, bald meine Schiebetür zur Küche zumachen zu können, wenn mir dannach ist (Frau backt Kuchen, Spülmaschine läuft, Besuch ist da, Küche nicht Tiptop....)
P
perlenmann
31.05.12 07:27
Keine Ahnung wie man bearbeiten kann.... noch zwei Punkte:

Schatten für die Terrasse bekommt man auch billiger, wie durch einen Balkon (nur als Anmerkung... Wenn Geld da ist und es so gefällt, dann lass es).
Und wie euer TV Bedürfnis ist, weiß ich auch nicht.... mir sind 47zoll auf 3m gerade noch groß genug. Bei euch dürften das ein paar Meter mehr sein...
S
svenson
31.05.12 09:18
Ich kann perlenmann bei den Anmerkungen zur Küche nur zustimmen. Sieht zwar bestimmt toll aus, wie ihr es geplant habt, aber auf dauer total unpraktisch. Des Weiteren was ich bei allen geplanten Häusern vermisse und warum eine Vielzahl der Häuslebauer auch ein zweites Mal bauen: Was ist wenn eure Kinder mal ausziehen? Ich könnte das OG in der jetzigen Planung niemals vermieten. Ich bin auch gerade an eigenen Grundrissen dran und ich würde unten die Räume so planen, dass aus dem Büro im hohen Alter, wenn nicht mehr so viel Platz benötigt wird, ein Schlafzimmer werden kann. Ein große Wohnzimmer / Esszimmer könnte verkleinert werden (2-3 Wände einziehen) - Anschlüsse sollten natürlich jetzt beim Bau für ein zukünftiges Bad gelegt werden. Die Treppe muss so geplant werden, dass Sie auch für einen Mieter zugänglich sein kann, aber so lange nicht vermietet wird (wenn die Kinder 20-25 Jahre da wohnen), im Wohnen integriert ist.

Das ist alles machbar und auf jeden Fall echt nicht zu vernachlässigen!!!
kellerküchegrundrissschlafzimmerbalkonwohnzimmer