ᐅ Ideen Tipps Grundrissplanung Einfamilienhaus mit drei Kinderzimmer, ohne Keller
Erstellt am: 19.05.20 16:58
R
RaInEliBebauungsplan/Einschränkungen
Größe des Grundstücks: 470qm
Hang: nein
Grundflächenzahl: 0,4
Geschossflächenzahl: 0,8
Baufenster, Baulinie und -grenze: 14x15
Randbebauung: Nein Neubaugebiet
Anzahl Stellplatz: 2
Geschossigkeit: 1 1/2
Dachform: Satteldach
Stilrichtung: Modern
Ausrichtung: Ost /West
Maximale Höhen/Begrenzungen: TH 5,2; FH 9,5
weitere Vorgaben
Anforderungen der Bauherren
Stilrichtung, Dachform, Gebäudetyp: Einfamilienhaus, Satteldach
Keller, Geschosse: kein Keller, zwei Geschosse möglichst hoher Kniestock (1,8 oder 2m)
Anzahl der Personen, Alter: 5 (41, 36, 12, 8, 1)
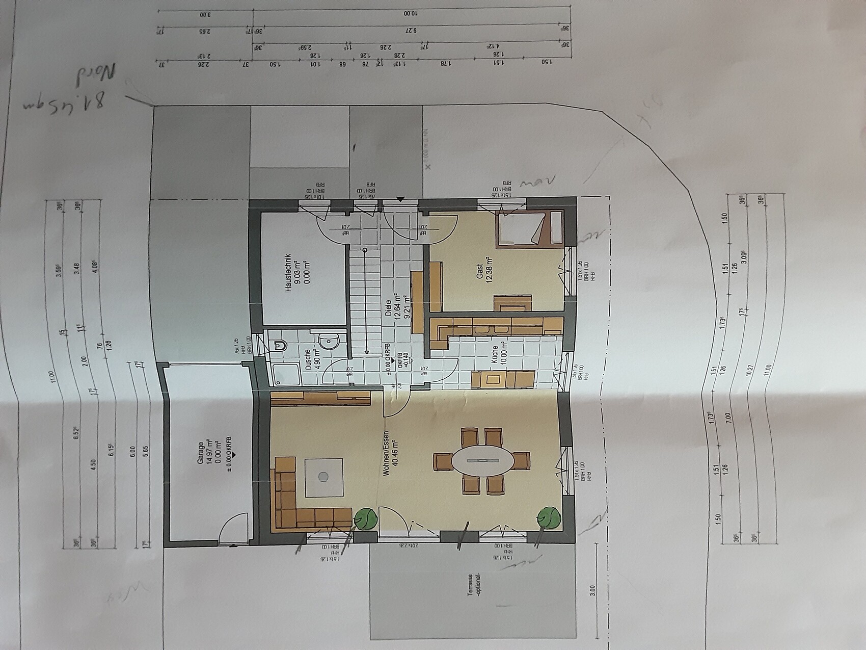
Raumbedarf im EG, OG: EG Gästezimmer bzw. Büro gewünscht; OG 3Kinderzimmer + Elternzimmer
Büro: Familiennutzung oder Homeoffice? Beides je nach Bedarf
Schlafgäste pro Jahr: 6
offene oder geschlossene Architektur: halboffen
konservativ oder moderne Bauweise: modern aber auch bisschen konservativ (nicht zu modern)
offene Küche, Kochinsel: halboffen
Anzahl Essplätze: 6
Kamin: Nein
Musik/Stereowand: Nein
Balkon, Dachterrasse: Nein
Garage, Carport: Garage
Nutzgarten, Treibhaus: Nein
weitere Wünsche/Besonderheiten/Tagesablauf, gern auch Begründungen, warum dieses oder das nicht sein soll
Hausentwurf
Von wem stammt die Planung: GU
Was gefällt besonders? Warum? Küche Wohnzimmer, Küche halboffen in die Ecke aber trotzdem offen
Was gefällt nicht? Warum? Treppe unsicher, OG!?
Preisschätzung lt Architekt/Planer: 370 Tsd
Persönliches Preislimit fürs Haus, inkl Ausstattung: 400 Tsd (Haus + Außenanlage) + möbel Extra
favorisierte Heiztechnik: Fußbodenheizung ist schon unsere Wunsch und ist überall Standard
Wenn Ihr verzichten müsst, auf welche Details/Ausbauten
-Wir haben schon auf Keller verzichtet
-Haus nur so groß wie nötig
-Gästezimmer könnte man notfalls darauf verzichten
Warum ist der Entwurf so geworden, wie er jetzt ist?
Wir hatten am Anfang überhaupt kein Plan wie das Haus aussehen soll, aber nach mehrere Gespräche mit Bauunternehmen, wissen wir jetzt ungefähr wie es sein soll.
Treppe sind wir unsicher ob gerade Treppe das richtige für uns ist oder besser andere Form, sowie es momentan ist steht irgendwie die Treppe als Mittelpunkt im Haus.
EG Aufteilung Küche Wohnzimmer, Büro gefällt uns sehr.
OG ist noch nicht optimal, Ankleide wäre nicht schlecht, Licht im Flur/Treppe wichtig
Dachausrichtung: im Moment Ost/West so dass alle Kinderzimmer auf der Südseite sind, sind unsicher ob das wirklich die bessere Lösung ist.
Für uns stehen die Kinder im Vordergrund (die haben Priorität)
Wir haben viele Kataloge geschaut, bis jetzt gefällt uns EG ganz gut, nur Treppe und OG ist noch nicht ganz klar.
Der erste Entwurf ist von einem GU, habe ich allerdings selber gezeichnet, also nicht Maßstabsgetreu, nur als Orientierung für Raumaufteilung.
Zweite Entwurf von einem GU gezeichnet.
Was ist die wichtigste/grundlegende Frage zum Grundriss in 130 Zeichen zusammengefasst?
Ideen, Tipps, was ist total falsch, was wir als Laie nicht sehen, [U]was kann man besser machen?[/U]





Größe des Grundstücks: 470qm
Hang: nein
Grundflächenzahl: 0,4
Geschossflächenzahl: 0,8
Baufenster, Baulinie und -grenze: 14x15
Randbebauung: Nein Neubaugebiet
Anzahl Stellplatz: 2
Geschossigkeit: 1 1/2
Dachform: Satteldach
Stilrichtung: Modern
Ausrichtung: Ost /West
Maximale Höhen/Begrenzungen: TH 5,2; FH 9,5
weitere Vorgaben
Anforderungen der Bauherren
Stilrichtung, Dachform, Gebäudetyp: Einfamilienhaus, Satteldach
Keller, Geschosse: kein Keller, zwei Geschosse möglichst hoher Kniestock (1,8 oder 2m)
Anzahl der Personen, Alter: 5 (41, 36, 12, 8, 1)
Raumbedarf im EG, OG: EG Gästezimmer bzw. Büro gewünscht; OG 3Kinderzimmer + Elternzimmer
Büro: Familiennutzung oder Homeoffice? Beides je nach Bedarf
Schlafgäste pro Jahr: 6
offene oder geschlossene Architektur: halboffen
konservativ oder moderne Bauweise: modern aber auch bisschen konservativ (nicht zu modern)
offene Küche, Kochinsel: halboffen
Anzahl Essplätze: 6
Kamin: Nein
Musik/Stereowand: Nein
Balkon, Dachterrasse: Nein
Garage, Carport: Garage
Nutzgarten, Treibhaus: Nein
weitere Wünsche/Besonderheiten/Tagesablauf, gern auch Begründungen, warum dieses oder das nicht sein soll
Hausentwurf
Von wem stammt die Planung: GU
Was gefällt besonders? Warum? Küche Wohnzimmer, Küche halboffen in die Ecke aber trotzdem offen
Was gefällt nicht? Warum? Treppe unsicher, OG!?
Preisschätzung lt Architekt/Planer: 370 Tsd
Persönliches Preislimit fürs Haus, inkl Ausstattung: 400 Tsd (Haus + Außenanlage) + möbel Extra
favorisierte Heiztechnik: Fußbodenheizung ist schon unsere Wunsch und ist überall Standard
Wenn Ihr verzichten müsst, auf welche Details/Ausbauten
-Wir haben schon auf Keller verzichtet
-Haus nur so groß wie nötig
-Gästezimmer könnte man notfalls darauf verzichten
Warum ist der Entwurf so geworden, wie er jetzt ist?
Wir hatten am Anfang überhaupt kein Plan wie das Haus aussehen soll, aber nach mehrere Gespräche mit Bauunternehmen, wissen wir jetzt ungefähr wie es sein soll.
Treppe sind wir unsicher ob gerade Treppe das richtige für uns ist oder besser andere Form, sowie es momentan ist steht irgendwie die Treppe als Mittelpunkt im Haus.
EG Aufteilung Küche Wohnzimmer, Büro gefällt uns sehr.
OG ist noch nicht optimal, Ankleide wäre nicht schlecht, Licht im Flur/Treppe wichtig
Dachausrichtung: im Moment Ost/West so dass alle Kinderzimmer auf der Südseite sind, sind unsicher ob das wirklich die bessere Lösung ist.
Für uns stehen die Kinder im Vordergrund (die haben Priorität)
Wir haben viele Kataloge geschaut, bis jetzt gefällt uns EG ganz gut, nur Treppe und OG ist noch nicht ganz klar.
Der erste Entwurf ist von einem GU, habe ich allerdings selber gezeichnet, also nicht Maßstabsgetreu, nur als Orientierung für Raumaufteilung.
Zweite Entwurf von einem GU gezeichnet.
Was ist die wichtigste/grundlegende Frage zum Grundriss in 130 Zeichen zusammengefasst?
Ideen, Tipps, was ist total falsch, was wir als Laie nicht sehen, [U]was kann man besser machen?[/U]
Anzeige
Hallo RaInEli,
schau mal hier: Ideen Tipps Grundrissplanung Einfamilienhaus mit drei Kinderzimmer, ohne Keller. Da wird jeder fündig!
schau mal hier: Ideen Tipps Grundrissplanung Einfamilienhaus mit drei Kinderzimmer, ohne Keller. Da wird jeder fündig!
D
Drasleona19.05.20 18:27Ich fühle mich veräppelt. Hat dir die Entwicklung des letzten Themas nicht gefallen und jetzt machst du einfach ein neues auf, in dem du auch zusätzlich alle Hinweise ignorierst, die dir im vorherigen gegeben wurden?
Ähnliche Themen